7.57M

LIVING AND DINING

1.

LIVING
AND
DINING
HK Architecture Plot 155, Banafseg 2, 1 st Settlement - New Cairo, Egypt + 2 01017799909
www.hk -architecture.com Tax reg. n. 454/931/972

2.

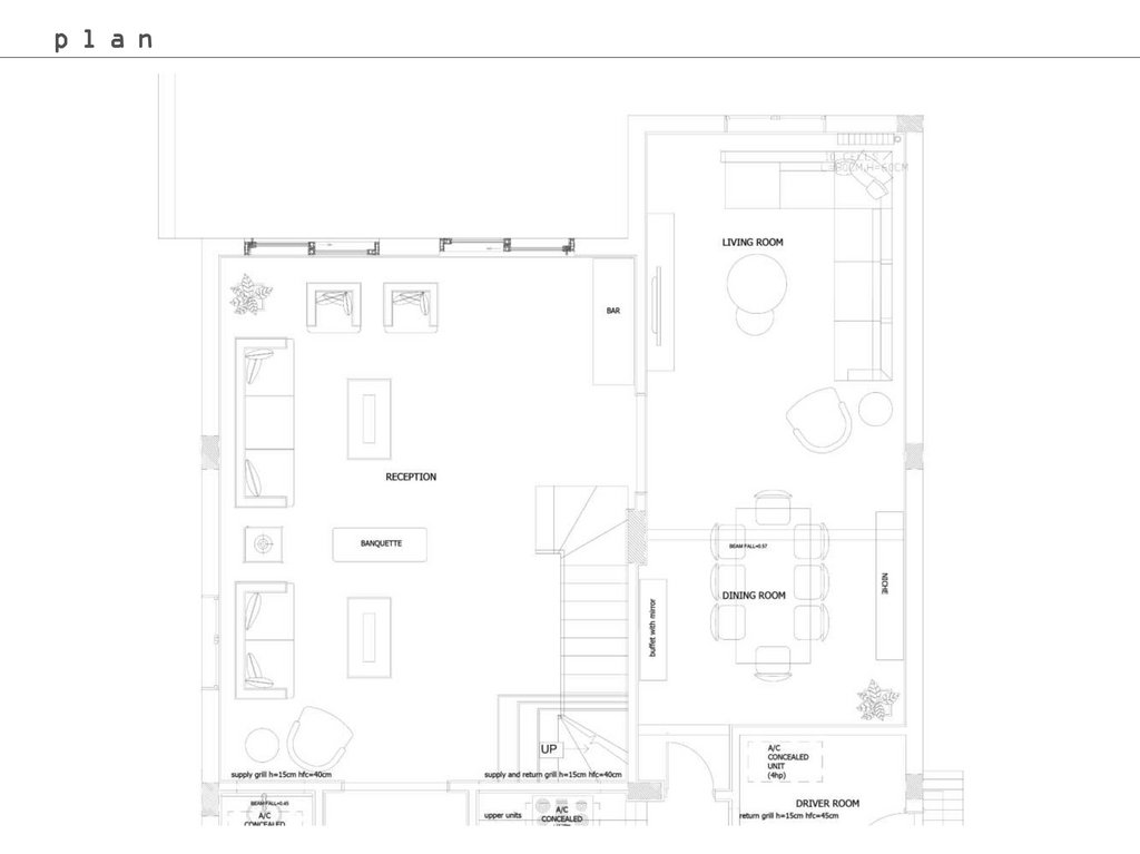
p l a n

3.

F u r n i t u r e
p l a n
(B-B)
(A-A)
(D-D)
(D-D)
(C-C)
(C-C)
(B-B)
(A-A)

4.

C e i l i n g
p l a n

5.

F l o o r i n g
p l a n

6.

E l e v a t i o n
A
a c c e s s o r i e s
paint
niche
L shape sofa
design and colors
living chandelier
table design
Arm chair
design
chair color
Dining chandelier

7.

E l e v a t i o n
A
living table accessories
a c c e s s o r i e s

8.

E l e v a t i o n
B
A c c e s s o r i e s
Tv unit and buffet accessories
Mirror size
Tv unit
WOOD
TV
WALL
PAINT
Buffet with
mirror
Indirect light in front of the marble like
the pic

9.

D i n i n g
t a b l e
Table top design
f u r n i t u r e
Dining table and
chairs design
Chair color

10.

E l e v a t i o n
c
Wall accessories
WALL PAINT texture

11.

l i n k s
https://3dsky.org/3dmodels/show/supboard_with_dishes_my_des
ign_14
https://3dsky.org/3dmodels/show/article_beta_l_shaped
https://3dsky.org/3dmodels/show/armchair_760
https://3dsky.org/3dmodels/show/art_luxury_chandelier_9
https://3dsky.org/3dmodels/show/decor_set_07_8
https://3dsky.org/3dmodels/show/dekorativnyi_nabor_325
English     Русский Rules