Проект участка механического цеха с разработкой технологического процесса изготовления детали «Втулка»
Общая часть
Рабочий чертеж детали
Чертеж заготовки
Технологический процесс спроектированный
Чертеж приспособления
План участка
Технико-экономическое обоснование инвестиционного проекта
Технико-экономическое обоснование инвестиционного проекта
Технико-экономическое обоснование инвестиционного проекта
Доклад окончен. Спасибо за внимание!
3.16M
Category: mechanicsmechanics
Similar presentations:

Проект участка механического цеха с разработкой технологического процесса изготовления детали «Втулка»

1. Проект участка механического цеха с разработкой технологического процесса изготовления детали «Втулка»

Проект подготовил Султанов Фларис Наркисович
Под руководством Асланян А.В.

2. Общая часть

Деталь «Втулка» предназначена для снижения трение и износ деталей механизма,
продлевать срок их эксплуатации. Втулка берёт на себя нагрузку, что позволяет защитить
подвижные элементы от повреждений, имеет форму ступенчатого вала с габаритными
размерами ∅59е8 мм и длиной 37 мм относящийся к деталям 72 класса.
Деталь
«Втулка»
изготовлена
из
материала БрАЖН 10-4-4 ГОСТ1628-2019-это
бронза безоловянная, обрабатываемая давлением.
Метод получения
заготовки
для
детали
«Втулка»
штамповка
на кривошипных
горячештамповочных прессах.
Штамповка относится к видам обработки давлением и позволяет получать детали близкие
по конфигурации к готовым деталям.

3. Рабочий чертеж детали

4. Чертеж заготовки

5. Технологический процесс спроектированный

6. Чертеж приспособления

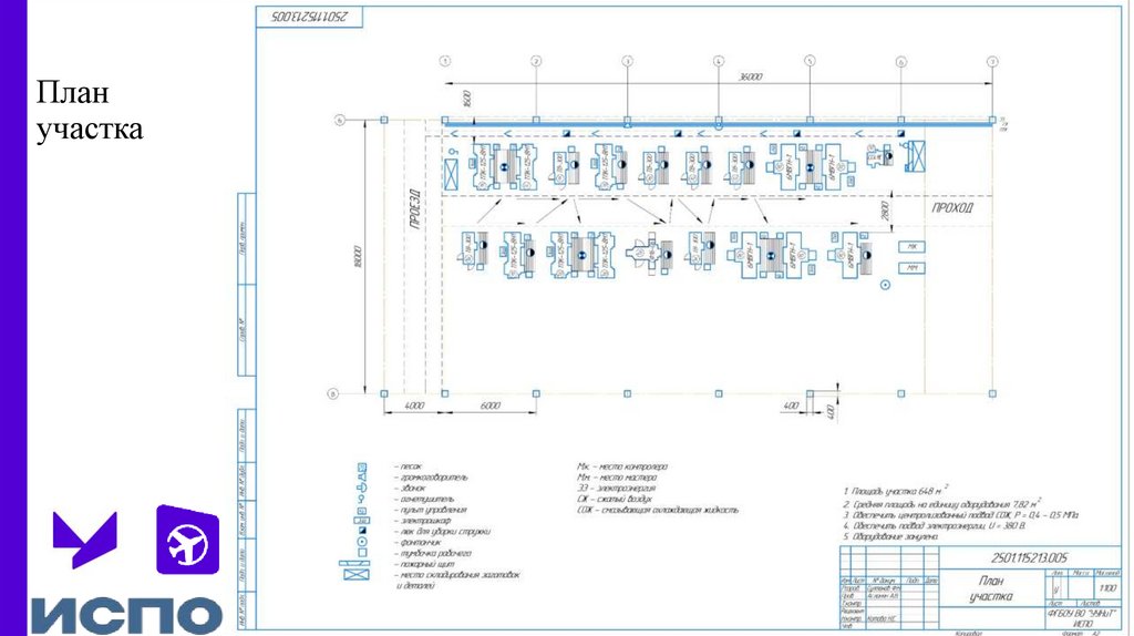
7. План участка

8. Технико-экономическое обоснование инвестиционного проекта

План производства
План по кадрам

Наименование показателей
1
Годовая производственная мощность
Единица
измерени
я
шт.
2
Трудоемкость годовой программы выпуска
н. час.
3
Количество наименований деталей,
обрабатываемых на участке
Показател
и
90518
№ Наименование показателей
Количество работников на участке
чел.
30
2
Количество рабочих:
А. основных
Б. вспомогательных
чел.
18
12
шт.
4
Количество деталей в партии
шт.
5
Норма расхода материалов годовой программы
выпуска
т
6
Количество оборудования на участке
шт.
7
8
Средний коэффициент загрузки
оборудования
Балансовая стоимость оборудования
тыс. руб.
61908
9
Средняя стоимость единицы оборудования
тыс. руб.
3258,32
10
Производительная площадь участка
м2
11
Производительная площадь на единицу
оборудования
м2
220
29,87
19
3
Средний разряд основных производственных рабочих
4
Средний разряд вспомогательных рабочих
5
Среднемесячная зарплата основных
производственных рабочих
6
Среднемесячная зарплата работников участка
Наладчиков
ИТР
МОП
0,68
148,5
7,82
Показатели
1
48019,8
15
Единица
измерения
4,3
5,8
Руб.
English     Русский Rules