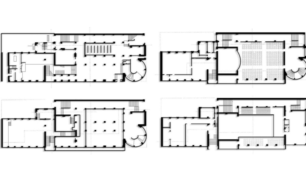
Арх. Гегелло, ДК. В Ленинграде
ДК Пролетарского р-на Москвы – арх. Веснины
К. Мельников Клуб в Дулево
Свердловск, Клуб Металлургов , арх. Г. Попов и др.
В. Щусев, Библиотека им. Ленина
ВХУТЕМАС , проект клуба, рук. Веснены
г. Сталинск. Кинофабрика
Планетарий , арх. Синявский и Барщ
Клаузура 2: Советский авангард -Жилой дом, Здание Горисполкома в г. Иваново
«Стилистика» КОНСТРУКТИВИЗМА
51.64M
Category: ConstructionConstruction

История архитектуры и градостроительства (отечественная архитектура 1917–1980-х годов). Учебное пособие

1.


КЛАУЗУРА № 2

2.

Министерство науки и высшего образования Российской Федерации
федеральное государственное бюджетное образовательное учреждение высшего образования
«Новосибирский государственный университет архитектуры, дизайна и искусств имени
А.Д. Крячкова»
Н. П. Журин
ИСТОРИЯ АРХИТЕКТУРЫ И ГРАДОСТРОИТЕЛЬСТВА
(отечественная архитектура 1917–1980-х годов)
Учебное пособие

3.

4.

Журин, Н.П.
Ж
История архитектуры и градостроительства (отечественная архитектура 1917–1980х годов): учебное пособие / Н.П. Журин; Новосибирский государственный
университет архитектуры, дизайна, искусств имени А.Д. Крячкова. – Новосибирск,
2022. – с.
ISBN 978-5-89170-288-2
В учебном пособии содержится материал об основных этапах развития отечественной
архитектуры советского периода, кратко представлены основные памятники архитектуры
различных
стилистических
направлений.
Также
уделено
внимание
региональной
градостроительной практике – на примере динамично развивающейся архитектуры Новосибирска.
В пособии предложена авторская методика проведения практических занятий в виде
творческих клаузур, которые выполняются обучающимися по оригинальным проектным заданиям
изучаемых периодов развития отечественного градостроительства.
Предназначено для обучающихся по направлениям подготовки 07.03.01 Архитектура,
07.03.03 Дизайн архитектурной среды, 07.03.04 Градостроительство и может быть использовано
ими при изучении курса «История архитектуры и градостроительства», состоящего из лекционных
и практических занятий.

5.

6.

7.

8.

9.

10.

11.

12.

Вопрос: Каковы признаки новой организации рабочего клуба?
Ответ: Вот признаки старой организации сооружений: замкнутые дворы, отсутствие
зрительных перспектив, каморки-комнаты, отсутствие достаточного количества воздуха,
света и цвета, казарменные коридоры. Отсутствие плановой организации. Нервность,
геморрой, пониженный жизненный тонус, пониженная производительность труда.
Поэтому не пышность, не витиеватая мишурность деталей и форм, а, напротив,
простота, строгость, гармоничная динамичность архитектурных форм и масс,
содержательность должны лечь в основу композиции рабочего клуба.
С коммунистическим приветом Культпросветотделпроф РСФСР.
А ты запроектировал рабочий клуб? Даешь рабочий клуб для трудовых масс! 1929 г

13.

Руководство работой клуба
Руководство углубленно-аналитической и массовой работой должно происходить
главным образом из организованного института – центра высококвалифицированных
педагогов – средствами радио, телевидения (видение на расстоянии) и кино, чем и
обеспечивается высокое качество руководства, экономичное и охватывающее самые
широкие слои.
Клубная работа идет путем практики и научно-популярного изложения научных и
бытовых фактов при помощи кино, радио, телевидения, аэроплана, фото и т.д.

14.

• Состав помещений рабочего клуба , посвященного 10-й годовщине Октября – 1917- 1927 год , надпись
можно выполнить на фасаде клубного комплекса.
• 1.
Вестибюль с наглядной политической агитацией- 50 кв.м.
• 2.
Универсальный зал – 300 кв. м. со сценой и двумя подсобными помещениями по 25 кв. м.
каждое.
• 3.
Кинопроекционная – 25 кв. м.
• 4.
Библиотека с читальным залом -100 кв. м.
• 5.
Восемь лабораторий для углубленной аналитической работы по 25-30 кв. м.
• 6.
Спортивный зал с подсобными помещениями общей площадью 200 кв. м.
• 7.
Комната администрации и руководства клубной работой -30 кв. м.
• 8.
Раздельные санузлы ( мужские и женские) по 25 метров .
• 9.
Планетарий с куполом диаметром 12 метров и служебными техническими лабораториями -две
по 25 м.
• В парковом пространстве клуба – 2 га Спортплощадка, Демонстрационное поле для авиационного
моделирования, автомобильной техники , сдачи нормативов Готов к труду и обороне.

15.

Материал
Оболочка главным образом из стекла, несущая конструкция – из железобетона
(железобетонный каркас). До сих пор стена в основном являлась теплозвукоизолятором.
Теперь дело за тем, чтобы сделать ее источником света и воздуха. Сегодняшние
технические средства позволяют делать стену прозрачной – стеклянной (армированное
стекло), чтобы зрительно связать внутреннее пространство с окружающей природой. Долой
изоляцию непрозрачным каменным или деревянным массивом – от окружающей жизни
улиц и площадей! Даешь самый широкий охват человеком бытовой обстановки в ее
динамике!

16.

Вопрос: Как рисуется проблема фасада рабочего клуба в свете современной
строительной техники?
Ответ: Прежде всего, фасадной плоскости как таковой в клубе может и не быть.
Фасад должен быть исключительно пространственно-объемным. Иначе можно к любому
фронту сооружения приклеить любую фасадную декорацию. Да так оно, в сущности, в
громадном большинстве случаев и бывает сейчас. Это не подлинное архитектурное
творчество, а нечто вроде «архитектурной аппликации», маскирующей убожество вкусов и
творческое бессилие мастеров.
Вопрос: Как использовать цвет в архитектуре клуба?
Ответ: Цветовая обработка фасада, в том числе и железобетонного (цветной
штукатуркой и другими изолирующими материалами), обязательна. Цвет не должен
маскировать строительную конструкцию и материал, закрашивая его. Цвет должен
подчеркивать их возможности с предельной выразительностью.

17.

Вопрос: Каковы признаки новой организации рабочего клуба?
Ответ: Вот признаки старой организации сооружений: замкнутые дворы, отсутствие
зрительных перспектив, каморки-комнаты, отсутствие достаточного количества воздуха,
света и цвета, казарменные коридоры. Отсутствие плановой организации. Нервность,
геморрой, пониженный жизненный тонус, пониженная производительность труда.
Поэтому не пышность, не витиеватая мишурность деталей и форм, а, напротив,
простота, строгость, гармоничная динамичность архитектурных форм и масс,
содержательность должны лечь в основу композиции рабочего клуба.
С коммунистическим приветом Культпросветотделпроф РСФСР.
А ты запроектировал рабочий клуб? Даешь рабочий клуб для трудовых масс! 1929 г

18.

19.

20.

21.

22. Арх. Гегелло, ДК. В Ленинграде

23. ДК Пролетарского р-на Москвы – арх. Веснины

24.

25.

26.

27.

28.

29.

30.

31.

32.

33.

34.

35.

36.

37.

38. К. Мельников Клуб в Дулево

39. Свердловск, Клуб Металлургов , арх. Г. Попов и др.

40.

41.

42.

43.

44.

45. В. Щусев, Библиотека им. Ленина

46.

47.

48. ВХУТЕМАС , проект клуба, рук. Веснены

49.

50. г. Сталинск. Кинофабрика

51.

52. Планетарий , арх. Синявский и Барщ

53.

54.

55.

56. Клаузура 2: Советский авангард -Жилой дом, Здание Горисполкома в г. Иваново

57.

• Жилой дом Государственного института экспериментальной
ветеринарии в Москве
• К сожалению часто эклектизм и декоративная мишура, скрывает за
собой жалкое жилище, нередко лишенное основных завоеваний
социальной гигиены.
• Но и деляческий примитивизм некоторых строителей, воздвигающих
каменные казармы и коробки — мешки для людей,— отстоит также
далеко от подлинной жилищной культуры. Плохо понимаемая
экономия и недооценка действительных потребностей человека,
которому далеко не безразличен и внешний облик жилища, нередко
маскируется в наше время аскетизмом так называемого „нового
стиля".

58.

• Между этими двумя крайними полюсами, в сущности своей
одинаково далеко отстоящими от задач новой архитектуры,
между эклектизмом архитекторов, обслуживающих мещанское
тщеславие обывателя и деляческим примитивизмом строителей,
должны быть найдены черты нашей новой социалистической
культуры жилья.
• В связи с тем, что предполагаемый жилой комплекс
проектируется в садово-парковой части земель института, автору
проекта предлагается самостоятельно принять решение о его
этажности, объёмно-пространственном решении.

59.

• Дом состоит из 14 достаточно больших трехкомнатных квартир,
предназначенных для профессорско- преподавательского состава
института и общежития для молодых специалистов, санитаров и
сторожей

60.

• Трехкомнатная квартира:
• Проектируется трехкомнатная квартира с отдельной кухней,
душевой и уборной. Кухня, рационализованная по графику
процессов производства, значительно сокращена против
обычных преувеличенных площадей. За счет кухни увеличена
жилая пло-щадь соседней комнаты. При ненадобности изоляции
кухонного помещения — перегородки частично устраняются; так
как самый кухонный элемент заранее установлен с учетом
возможного устройства кухни-ниши. Спальные комнаты
ориентированы все по одну сторону.

61.

• В каждой квартире две изолированные комнаты по 12 кв. м. каждая
и одна общая, площадью 20 кв. м. В плоскости квартиры в имеется
небольшая (5 кв. м.) кухня с газовой плитой, горячей и холодной водой
и холодным шкафом под окном. Смежная с кухней часть общей
комнаты используется как столовая, имеется уборная, душевая ,
хозпомещение и балкон. Высота жилых помещений – 3.2 м.
• . В торцах общего коридора жилого комплекса помещены две
лестницы; при главной лестнице в первом этаже находится общий
вестибюль дома. Возможно часть пространства первого этажа
оставить открытым для вентиляции массами свежего воздуха и
коммуникаций. Здесь же сосредоточены помещения для технического
обслуживания жилого комплекса.

62.

• Общежитие жилого дома представляет собой коридор с 12-ю
изолированными комнатами по 6 кв. м. каждая с общей для всех
кухней - 25 кв. м. , туалетом , душевой на 4 кабины, помещением
для хозяйственной деятельности – 36 кв. м. Количество
проживающих в общежитии – до 30-35 человек персонала
института.
• Предполагается соединение жилого корпуса легкой галереей или
коридором с общей столовой жилого комплекса – обеденный
зал -60 кв. м., кухонный блок , хозяйственный блок – 35 кв. м.
• В проекте общежития высота комнат рекомендуется в 2,50 м, как
вполне достаточная для комнат столь небольшой площади.

63.

• Следует предусмотреть возможность приспособление общего
обеденного зала для проведения политических и культурномассовых мероприятий для жильцов жилого комплекса.
• Распределительный коридор, имеющий боковое освещение по
всей своей длине, настолько широк, что ближайшая к окнам часть
его может служить помещением общего пользования (комнатой
дневного пребывания, собраний и т. д.

64.

• Площадь обобществленных помещений делится передвижными
перегородками на произвольные части. Благодаря этому
неиспользуемая в данный момент площадь столовой может быть
превращена в комнату дневного пребывания, клубное помещение.
Частично столовая может быть отделена от проходной части
стеклянной перегородкой.
• Конструктивное решение здания – ж.б. каркас с толщиной наружных
стен из теплого бетона , внутренние ненесущими стенами -20 см.
Крыша плоская с уклоном 5 градусов, эксплуатируемая для
физических упражнений и отдыха проживающих. Возможно
устройство на ней небольшого объёма для складирования
спортинвентаря и одежды для проживающих.

65.

• ГОРИСПОЛКОМ И ГОРОДСКОЙ СОВЕТ ГОРОДА ИВАНОВО
• Требуется запроектировать: Здание Горисполкома и Совета
депутатов рабочих города, которое предполагается разместить в
центральной части городской застройки. Здание Горисполкома
решается согласно идее и принципам современной архитектуры
и должно являться своеобразным наглядным знаком четкого
делового, рационального мышления, современных строительных
приёмов и деловой организации процессов, протекающих в нём.
В нём проектируется фойе с элементами агитации и информации
о мировых событиях, ходе строительства социализма в СССР,
текущих задач и новостей города-текстильщиков -Иваново,
доступное для всех трудящихся города.

66.

• В первом этаже следует разместит :
• 1. Фойе и входной узел, выставочно-агитационный зал - 70
кв.м.
• 2. Универсальный зал заседаний Горсовета и Горисполкома
площадью 300 кв. м, оборудованный сценическим пространством
с подсобными помещениями – 40 кв м., оборудованный для
возможности показа звукового кино с кинопроекционной – 30
кв. м. с отдельным выходом на улицу с винтовой
противопожарной лестницей. Противопожарные, аварийные
выходы из зала также следует предусмотреть.

67.

• 3. Столовая и фабрика кухня – обеденный зал -60 кв. м. ,
обслуживающие помещения с элементами фабрики кухни с
доготовочной, с выдачей обедов на дом - 40 кв.м. с отдельным
служебным входом.
• 4. Административные помещения – 60 кв. м.
• На втором этаже следует разместить рабочие кабинеты в
количестве 25 каждый площадью - 40 кв. м., а также
спортивный зал для работников горисполкома площадью 80 кв.
м. с выходом на плоскую эксплуатируемую кровлю здания.

68.

• На ней в безопасном месте следует разместить антенны радиотелеграфной связи, громкоговорители.
• На фасаде здания на достаточно высоком уровне видимым с
площади следует разместить городские часы с двумя
циферблатами по обе стороны.
• Конструкции здания- ж.б. каркас и ограждающие стены из
кирпича с внутренним утеплителем. Стены следует оштукатурить
и покрасить краской светлых тонов, что придаст современный
облик зданию с большим количеством ленточных оконных
проёмов. Над главным входом в здание следует запроектировать
козырёк , сообразный современного облику здания.

69.

70.

71.

72. «Стилистика» КОНСТРУКТИВИЗМА

Столбы-опоры. Дом приподнят над
землей на железобетонных столбахопорах, при этом освобождается место
под жилыми помещениями — для сада
или стоянки автомобиля.
Плоская крыша-терраса. Вместо
традиционной наклонной крыши с
чердаком под ней, Корбюзье предлагал
устраивать плоскую крышу-террасу, на
которой можно было бы развести
небольшой сад или создать место для
отдыха.

73.

Свободная планировка. Поскольку
стены больше не являются несущими (в
связи с применением ж/б каркаса),
внутреннее пространство полностью от
них освобождается. В результате
внутреннюю планировку можно
организовать с гораздо большей
эффективностью.
Ленточное остекление. Благодаря
каркасной конструкции здания и
отсутствию, в связи с этим, несущих
стен, окна можно сделать практически
любой величины и конфигурации, в том
числе свободно протянуть их лентой
вдоль всего фасада, от угла до угла.
English     Русский Rules