9.11M
Category: ConstructionConstruction

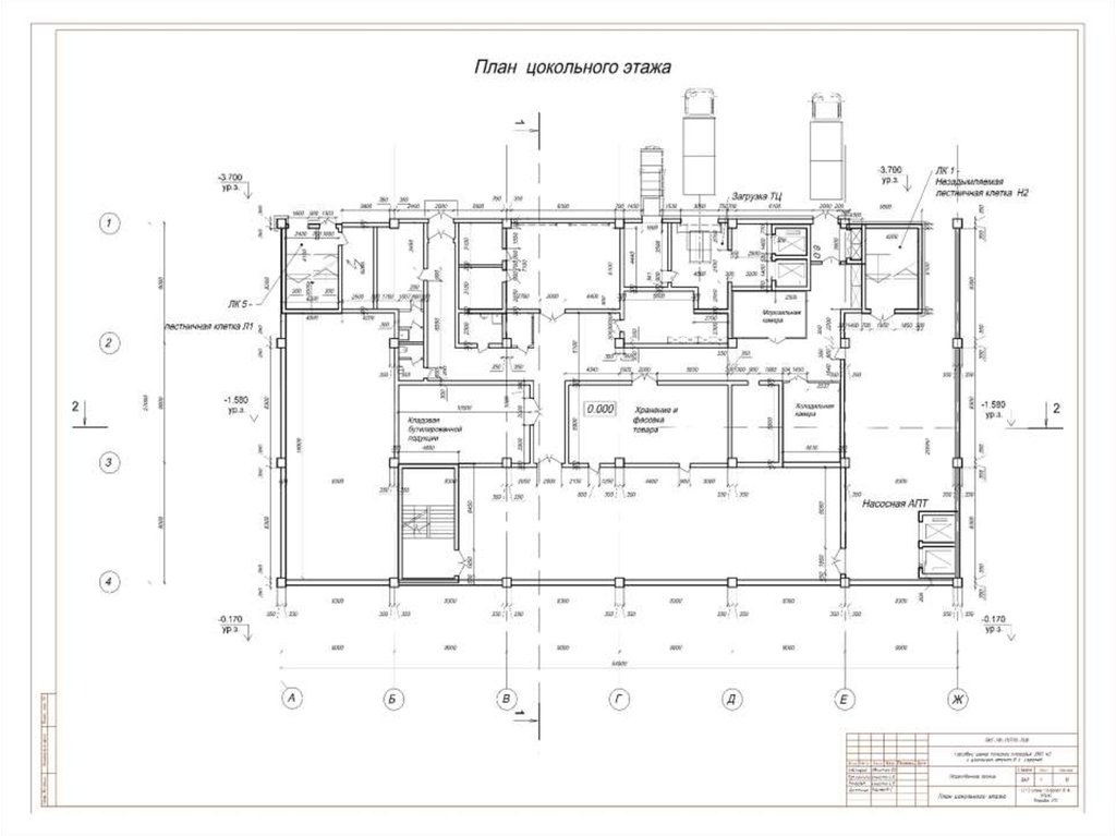
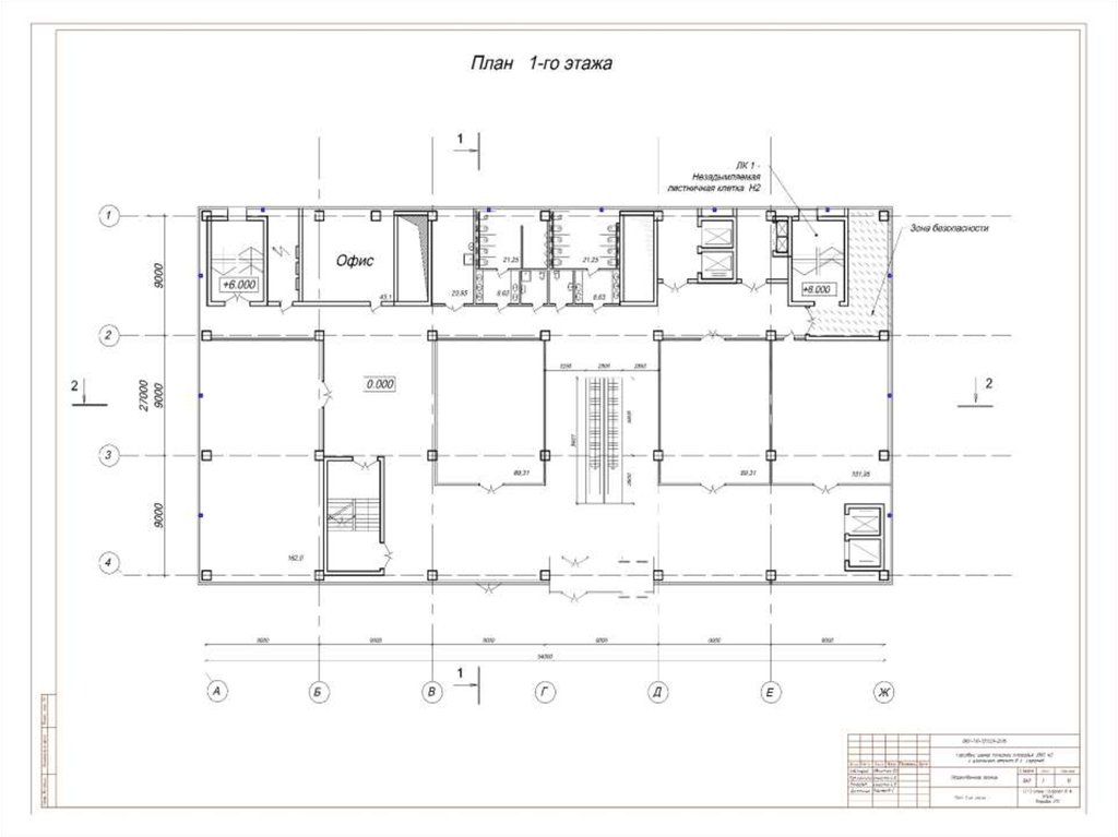
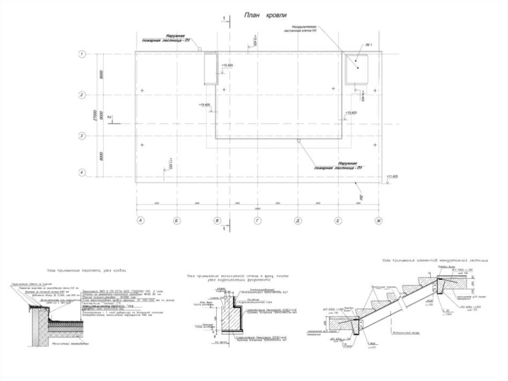
Торговый центр с цокольным этажом площадью 3900 м2 в городе Саратове

1.

2.

3.

4.

5.

6.

7.

8.

3D-модель монолитного каркаса
Деформированная схема

9.

Изополя перемещений от постоянного загружения по
оси Z, м
Изополя перемещений от ветрового давления по оси Y, м

10.

Изополя верхней арматуры вдоль
Х(фунд.плита)
Изополя верхней арматуры вдоль
У(фунд.плита)

11.

Изополя нижней арматуры вдоль
Х(фунд.плита)
Изополя нижней арматуры вдоль
У(фунд.плита)
Изополя
поперечной
арматуры
вдоль оси X
English     Русский Rules