3.90M
Category: ConstructionConstruction

Строительство Детского сада в г. Санкт-Петербург

1.

МИНОБРНАУКИ РОССИИ
САНКТ-ПЕТЕРБУРГСКИЙ ГОСУДАРСТВЕННЫЙ
АРХИТЕКТУРНО-СТРОИТЕЛЬНЫЙ УНИВЕРСИТЕТ
Выпускная квалификационная
работа на тему:
Строительство Детского сада в г.
Санкт-Петербург
Работу выполнил:
Юрченкова А.В. Гр. 10-Сб-4
Руководитель выпускной работы:
к.т.н. Воронцова Н.С.

2.

План первого этажа на отм. +0.000
Фасад в осях 1-11

3.

Генеральный план участка
Зона участка
Экспликация генерального
плана

4.

План первого этажа на отм. +0.000
План второго этажа на отм. +3.900

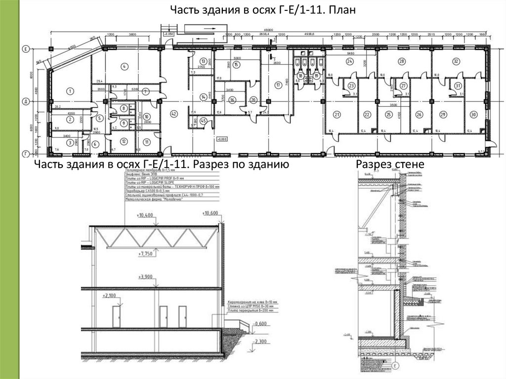
5.

Часть здания в осях Г-Е/1-11. План
Часть здания в осях Г-Е/1-11. Разрез по зданию
Разрез стене

6.

Часть здания в осях А-Г/2-10 . План
Часть здания в осях А-Г/2-10 . Разрез по зданию
Разрез стене

7.

Разрез по лестнице

8.

Расчетная модель в программе ЛИРА-САПР

9.

Примеры нагрузок приложенных к расчетной схеме
Собственный вес
Мозаика q(площ.) вдоль оси Z(G)
Единицы измерения - т/м**2
Ветер вдоль оси х
Мозаика q(площ.) вдоль оси X(G)
Единицы измерения - т/м**2
0.83
0.80
-0.01
0.75
0.55
0.50
-0.01
0.44
0.40
Z
Y
X
Z
Y
X
Снег
Мозаика q(площ.) вдоль оси Z(G)
Единицы
измерения - т/м**2
0.55
0.49
Ветер вдоль оси х
Мозаика q(площ.) вдоль оси Z(G)
Единицы измерения - т/м**2
0.01
0.42
0.36
0.01
0.30
0.00
0.23
0.17
-0.01
0.10
-0.01
0.04
YZ X
Z
Y
X

10.

Анализ результов. Мозаики напряжений и перемещений
РСН1(СП 20.13330.2011_1)
Изополя перемещений по Z(G)
Единицы измерения - мм
РСН1(СП 20.13330.2011_1)
Мозаика напряжений по Nx
Единицы измерения - т/м**2
302.95
-3.50
153.54
-7.06
3.03
-10.62
-3.03
-14.17
-153.54
-17.73
-307.08
-21.29
-460.61
-614.15
-24.85
-767.69
-28.40
-922.15
Z
-31.99
Y
X
Y
Отм.+
6.300
X
РСН1(СП 20.13330.2011_1)
Мозаика напряжений по My
Единицы измерения - (т*м)/м
5.78
4.90
3.67
2.45
1.22
0.06
-0.06
-1.22
-2.45
-3.67
-4.90
-6.12
-7.35
-8.57
-9.81
Y
Отм.+
6.300
X
РСН1(СП 20.13330.2011_1)
Изополя перемещений по Z(G)
Единицы измерения - мм
0.15
0.00
-0.00
-2.77
-5.55
-8.32
-11.10
-13.87
-16.66
Отм.
0.000
X
Y

11.

Армирование К-2
Армирование К-1
Армирование колонн полученное в ЛИРА САПР

12.

Плита перекрытия на отм. +0,000. Верхнее армирование Деталь фиксации арматуры
Типовое сечение у торца
Обрамление отверстия
Установка арматурных каркасов
КР-1 и КР-2
1-1

13.

Армирование Ст-1
1-1
2-2
Фрагмент армирования 2.
Фрагмент армирования 1.

14.

Календарный план
График использования трудовых ресурсов

15.

Строительный генеральный план строительства

16.

Схема производства работ по устройству
монолитного перекрытия на отм. +3,900
Календарный план выполнения работ
1-1
Опалубка под плиту

17.

СПАСИБО ЗА ВНИМАНИЕ!
English     Русский Rules