Разработка концепции Серого пояса
Проблемы:
Пути решения:
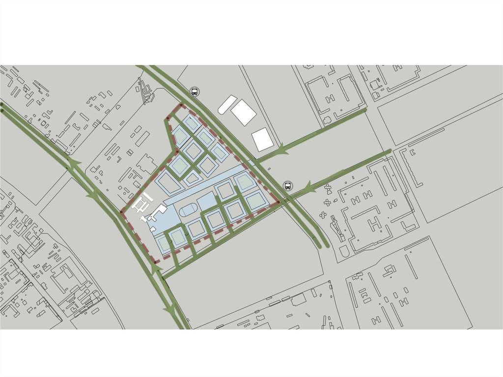
Схема пешеходных дорог
Схема функционального зонирования
4.42M
Category: ConstructionConstruction

Разработка концепции Серого пояса

1. Разработка концепции Серого пояса

2. Проблемы:

• Высокий износ существующих застроек
• Проблема шума, создаваемого проезжей частью
• Наличие на территории неэксплуатируемых
зданий, входящих в КГИОП
• Нехватка жилой площади в историческом центре
=> проблема разрастания мегаполиса
• Проблема озеленения промышленного района
• Неэксплуатируемость большой территории с
высоким потенциалом

3. Пути решения:

• Реновация исторических построек
• Создание домов, способствующих
шумоизоляции района
• Снос неэксплуатируемых зданий
• Создание внутриквартальных дорог и
кармана для удобства подъезда к жилым
и общественным зонам
• Озеленение вдоль фронта
• Застройка территории жилыми и
общественными зданиями

4. Схема пешеходных дорог

5. Схема функционального зонирования

Процент озеленения 18%
Процент общественных пространств 20%
Процент жилья 62%
Торговая зона
Жилая зона
Общественная зона
Офисы
Общеобразовательная школа
English     Русский Rules