9.64M

Презинтация2

1.

Приднестровский государственный университет
им. Т.Г. Шевченко
Физико-технический институт
кафедра «Электроэнергетики и электротехники
ВЫПУСКНАЯ КВАЛИФИКАЦИОННАЯ РАБОТА
по направлению 2.13.03.02 - «электроэнергетика и электротехника»
«Разработка системы резервного и автономного
электроснабжения моторного завода с использованием
альтернативных источников энергии»
Разработал:
Студент группы
ИТ21ВР62ЭТ
А.А. Пак
Руководитель:
Старший преподаватель
Тирасполь 2026г.
Сырбу А.М.

2.

ТЕХНИКО-ЭКОНОМИЧЕСКИЕ ХАРАКТЕРИСТИКИ МОТОРНОГО ЗАВОДА
Сведения об электрических нагрузках цехов моторного завода
План расположения цехов моторного завода

Наименование цеха
Кат. пом. цеха Категории
Установленна
по
электросн
я мощность,
электробезопа абжения
кВт
сности
цехов
11600
2750
4860
2
Главный корпус:
а) Механическое отделение
б) Кузнечное отделение
в) механосборочное отделение
Лабораторно-бытовой корпус
3
4
1
1
II
654
1
II
Инструментально-механический цех
2240
2
II
Транспортный цех
707
2
II
250
5000
----1045
2
I
2
2
II
I
8
Компрессорная 0,4кВ
6кВ
Ремонтно-механический цех
Сварочно-сборочное отделение
Деревообрабатывающий цех
450
1
I
9
Электроремонтный цех
260
2
II
10 Заготовительный и термический цех
860
1
I
Административно-бытовой корпус
350
1
II
Сталелитейный цех 0,4кВ
6кВ
13 Кузнечно-прессовое отделение
2880
5000
2
I
1060
2
II
14 Цех ширпотреба
340
2
II
15 Цех консервации и комплектации
1895
2
II
16 Заводоуправление и проходная
290
2
II
17 Цех топливной аппаратуры
4852
2
II
18 Экспериментальный цех
445
2
II
19 Гальванический участок
20 Склад готовой продукции
250
2
I
140
1
III
5
6
7
11
12
2

3.

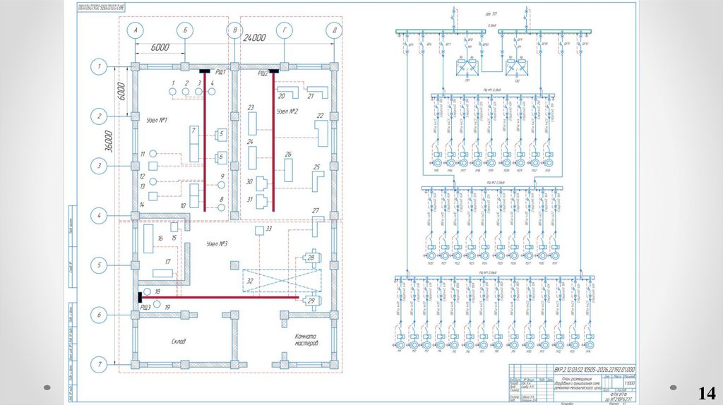
РАСЧЁТ НАГРУЗОК РЕМОНТНО-МЕХАНИЧЕСКОГО ЦЕХА
Схема расположения светильников по территории ремонтно-механического цеха
Схема расположения светильников аварийного освещения ремонтно-механического цеха
Разбивка электроприёмников ремонтно-механического цеха по узлам
3

4.

РАСЧЁТ НАГРУЗОК МОТОРНОГО ЗАВОДА И ЦЭН
Расчет координат центра энергетических нагрузок моторного завода

Помещение
Ррасч.i кВТ Росв. i кВт
Xi м
Yi м
Pi∙Xi
Pi∙Yi
R.i мм
α, [°]
Механическое отделение
10033,16
173,16
100,6
230,3
102655
235051
57
6,11
Кузнечное отделение
2417,15
79,653
51,7
218,1
129085
544503,5
28
11,48
Механосборочное отделение
4200,26
69,264
103,4
145,7
441469
622070,2
37
5,84
2
Лабораторно-бытовой корпус
507,25
16,752
8,46
155,5
4433,07
81489,75
13
11,51
3
Инструментальномеханический цех
252,23
8,732
109,7
68,88
28627,2
17976,04
9
12,05
4
Транспортный цех
474,63
15,081
11,28
61,61
5523,95
30169,98
12
11,09
Главный корпус:
1
5
Компрессорная 0,4кВ
280,22
6,185
56,4
72,87
16153
20869,62
10
7,77
6
Ремонтно-механический цех
577,08
11,598
142,3
69,26
83778
40771,23
14
7,09
7
Сварочно-сборочное отделение
928,10
18,95
181,1
63,13
171547
59787,65
17
7,20
8
Деревообрабатывающий цех
276,89
6,886
107,6
41,28
30542,4
11715,47
9
8,74
9
Электроремонтный цех
161,83
5,825
102,1
19,04
17114,4
3192,794
7
12,51
619,08
17,081
175,6
20,54
111711
13066,13
14
9,67
279,81
17,311
172,9
223,9
51379
66536,37
10
20,97
10
11
Заготовительный и
термический цех
Административно-бытовой
корпус
12
Сталелитейный цех 0,4кВ
2188,38
172,38
252,1
228
595035
538136,6
27
26,29
13
Кузнечно-прессовое отделение
928,92
27,92
274,7
133,8
262813
128060,8
17
10,50
14
Цех ширпотреба
254,42
16,424
183,4
136,3
49671,9
36906,4
9
21,83
15
Цех консервации и
комплектации
1639,92
29,168
284,2
60,14
474291
100380,8
23
6,29
16
Заводоуправление и проходная
218,33
15,329
262
8,028
61213,3
1875,713
9
23,62
17
Цех топливной аппаратуры
3919,92
38,322
356,9
201,5
1412769
797728,7
35
3,49
18
Экспериментальный цех
295,73
6,482
325,1
152,8
98235,3
46168,87
10
7,72
19
Гальванический участок
164,26
6,472
326,9
116,7
55818,7
19928,16
7
13,65
20
Склад готовой продукции
97,33
13,325
90,15
363,3
9974,65
40201,29
6
43,35
30714,90
772,3
-
-
5137736
5572051
-
-
163,2
177
Сумма
Центр энергетических нагрузок и картограмма нагрузок моторного завода
Координаты центра нагрузок ПЗ
4

5.

ГРАФИКИ НАГРУЗКИ МОТОРНОГО ЗАВОДА
Летний суточный график график нагрузки моторного завода
Годовой график нагрузки моторного завода
Зимний суточный график график нагрузки моторного завода
Значение мощностей годового графика нагрузки моторного завода
Ступень
Ррасч,%
Ррасч, кВт
Р1
100
40614,25
Р2
95
38583,54
Р3
90
36552,83
Р4
85
34522,11
Р5
80
32491,4
Р6
75
30460,69
Р7
65
26399,26
Р8
55
22337,84
Р9
50
20307,13
Р10
45
18276,41
Р11
10
4061,425
Р12
5
2030,713
Сумма
5

6.

ВЫБОР СХЕМЫ ВНЕШНЕГО ЭЛЕКТРОСНАБЖЕНИЯ ЗАВОДА
Вариант электроснабжения от п/Ст 35
Вариант электроснабжения от п/Ст 110 кВ
Сравнение вариантов 35 кВ и110 кВ для подключения завода к электроэнергетической системе
Ежегодные расходы, руб/год
Вариант
1 (35 кВ)
2 (110 кВ)
Капитальные
затраты, тыс. руб.
ПМР
Издержки на
обслуживание
оборудования, тыс.
руб. ПМР/год
Амортизационные
издержки на реновацию,
тыс. руб. ПМР/год
Стоимость годовых
потерь электроэнергии,
тыс. руб. ПМР/год
Приведенные
затраты, тыс.
руб.ПМР/год
96664
10055
2887
369 224
20 361 858
113390
11110
3296
48 113
323 001
6

7.

ВЫБОР СХЕМЫ ВНУТРЕННЕГО ЭЛЕКТРОСНАБЖЕНИЯ ЗАВОДА
Потоконаправление мощностей Варианта№1
7

8.

ВЫБОР СХЕМЫ ВНУТРЕННЕГО ЭЛЕКТРОСНАБЖЕНИЯ ЗАВОДА
Потоконаправление мощностей Варианта№2
8

9.

ПРИНЦИПИАЛЬНАЯ СХЕМА ЭЛЕКТРОСНАБЖЕНИЯ ЗАВОДА
9

10.

СХЕМА ЭЛЕКТРОСНАБЖЕНИЯ И СХЕМА ЗАМЕЩЕНИЯ СИСТЕМЫ ЭЛЕКТРОСНАБЖЕНИЯ МОТОРНОГО ЗАВОДА ДЛЯ РАСЧЕТА ТОЧЕК КЗ
10

11.

11

12.

Система резервного и автономного электроснабжения моторного завода с
использованием солнечных панелей
Солнечные панели Leapton Solar LP210-M-66-MH
Технические характеристики Leapton Solar LP210-M-66-MH
Размещение солнечных панелей на крышах цехов моторного завода
Параметры
Значение
Производитель
LEAPTON SOLAR
Тип панели
Монокристалл
Материал изготовления модуля
Чистый кремний
Материал рамки
Алюминий
Мощность
655 Вт
Напряжение холостого хода
45,78 В
Ток короткого замыкания
18,21 А
Напряжение при максимальной
37,81 В
мощности
Ток при максимальной мощности
17,32 А
Количество элементов
132 (2х66)
Минимальная рабочая температура
-40 °С
Максимальная рабочая температура
85 °С
Степень защиты IP
68
КПД, не менее
21.09 %
Цена
3 тыс. руб
Габаритные размеры
Вес
34 кг
Длина
2384 мм
Ширина
1303 мм
Толщина
35 мм
12

13.

Система резервного и автономного электроснабжения моторного завода с использованием ветрогенераторов
Ветрогенератор V163-4.5 MW™ IEC IIIB
Технические характеристики ветрогенератора V163-4.5 MW™ IEC IIIB
Номинальная
Номинальное
Скорость ветра
Максимальная
мощность,
выходное
при включении
скорость ветра,
кВт
напряжение, кВ
м/с
м/с
4500
0,69
3
24
Высота башни,
м
98
Частота, Гц
50/60
Результат расчета капиталовложений
Потребление в
год, кВт⸱ч
Экономия от Годовые расходы
Генерация
собственной
на обслуживание
в год,
генерации, руб. и амортизацию,
кВт⸱ч
ПМР
руб. ПМР
Прибыль в год,
руб. ПМР
242 446 765,40
61 106 765
-89 493 372,85
141 156 627,2
230 650 000
13

14.

14

15.

МОЛНИЕЗАЩИТА ГПП
15

16.

Спасибо за внимание
English     Русский Rules