Габарит приближения строений ГАБАРИТ С для скоростей движения до 200км/ч
ГАБАРИТ Сп
ГАБАРИТ С250 для скоростей движения от 200км/ч до 250 км/ч
Исключения для габарита приближения строения
Перевозка длинномерных грузов
Перевозка длинномерных грузов
9.90M
Category: industryindustry

Габариты

1.

ГАБАРИТЫ
НА ЖЕЛЕЗНОДОРОЖНОМ
ТРАНСПОРТЕ

2.

С 1 июля 2014 года введен новый ГОСТ 9238-2013
На железнодорожном
транспорте установлено три
вида габаритов:
габарит приближения строений,
габарит подвижного состава
габарит погрузки.

3.

4.

Габаритом приближения строений железных дорог называется
предельное поперечное перпендикулярное оси железнодорожного пути
очертание, внутрь которого помимо железнодорожного подвижного
состава не должны попадать никакие части сооружений и устройств, а
также лежащие около железнодорожного пути материалы, запасные части
и оборудование, за исключением частей устройств, предназначаемых для
непосредственного взаимодействия с железнодорожным подвижным
составом (контактные провода с деталями крепления, хоботы
гидравлических колонок при наборе воды и другие), при условии, что
положение этих устройств во внутригабаритном пространстве увязано с
соответствующими частями железнодорожного подвижного состава и что
они не могут вызвать соприкосновения с другими элементами
железнодорожного подвижного состава.

5. Габарит приближения строений ГАБАРИТ С для скоростей движения до 200км/ч

6. ГАБАРИТ Сп

7. ГАБАРИТ С250 для скоростей движения от 200км/ч до 250 км/ч

8. Исключения для габарита приближения строения

9.

Сооружения
и
устройства,
не
удовлетворяющие
нормам
габарита,
называются негабаритными и требуют к
себе повышенного внимания при пропуске
подвижного
состава,
особенно
негабаритного.

10.

11.

Габаритом подвижного состава железных дорог называется
поперечное перпендикулярное оси пути очертание, в котором, не
выходя наружу, должен помещаться установленный на прямом
горизонтальном пути (при наиболее неблагоприятном
положении в колее и отсутствии боковых наклонений на
рессорах и динамических колебаний) как в порожнем, так и в
нагруженном состоянии железнодорожный подвижной состав, в
том числе имеющий максимально нормируемые износы.

12.

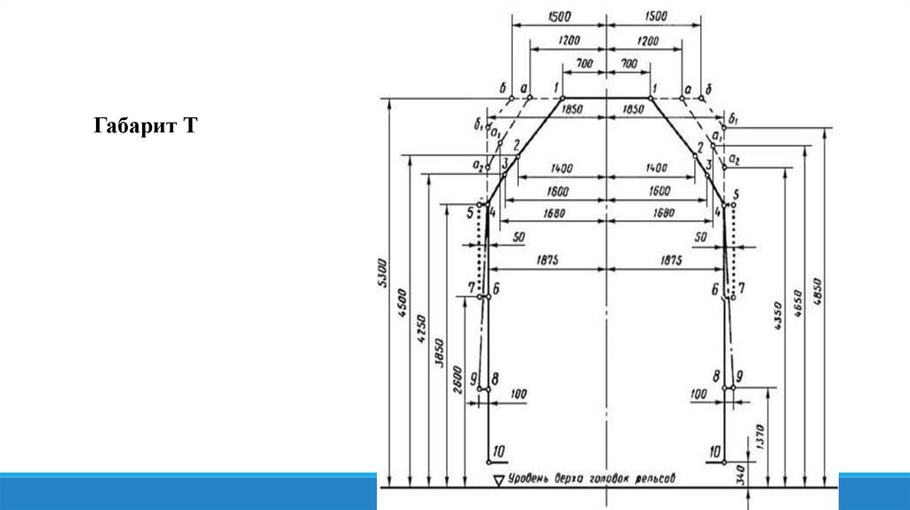
Габарит Т

13.

ГАБАРИТ Тц

14.

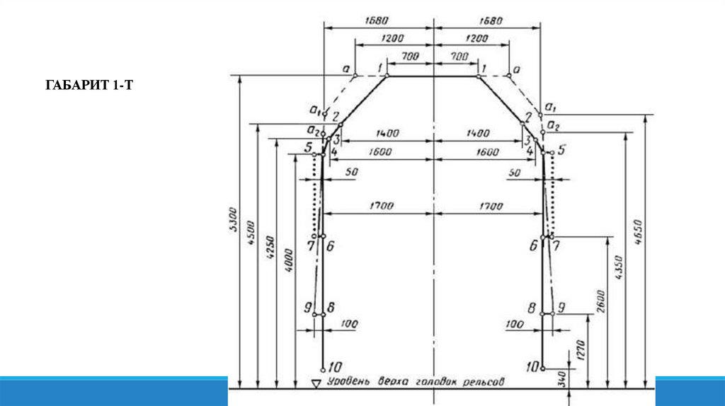
ГАБАРИТ 1-Т

15.

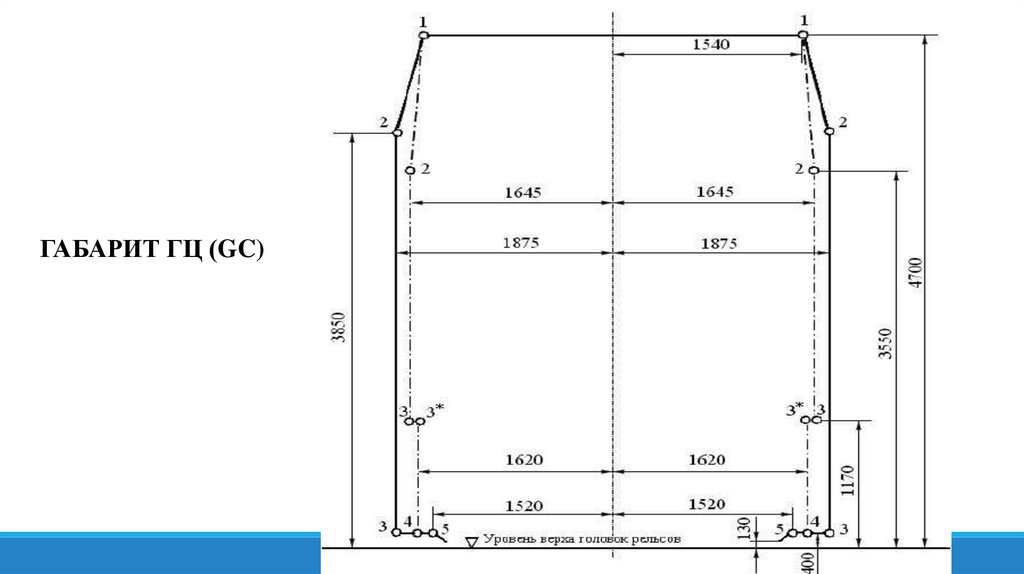
ГАБАРИТ ГЦ (GC)

16.

Габариты 1-ВМ, 0-ВМ, 02ВМ, 03-ВМst, 03-ВМk
применяются для
обращения подвижного
состава по
железнодорожным путям
шириной колеи 1520 мм и
шириной колеи 1435 мм

17.

18.

Габаритом
погрузки
называется
предельное,
поперечное,
перпендикулярное оси пути очертание, в пределах которого
должен располагаться груз на открытом подвижном составе,
расположенном на прямом горизонтальном участке пути.

19.

Погруженный
на
открытый
подвижной состав груз с учетом
упаковки и крепления грузов должен
помещаться в пределах установленного
инструкциями ОАО «РЖД» габарита
погрузки с обязательным обеспечением
безопасности движения поездов.

20.

21.

22.

Обозначения в индексе негабаритности:
1-й знак - всегда буква Н (негабаритность);
2-й знак - степень нижней негабаритности,
может принимать значение от 1 до 6.
3-й знак - степень боковой негабаритности,
может принимать значения от 1 до 6.
4-й знак - степень верхней негабаритности,
может принимать значения от 1 до 3.
5-й знак - вертикальная сверхнегабаритность,
имеет значение 8.
Н(0,1-6,8)(0,1-6,8)(0,1-3,8)(0,8)
Н0000
Н8888

23.

24.

25.

26.

Расчетная негабаритность
Расчетной негабаритностью называется негабаритность груза, определенная с учетом
геометрических выносов данного груза в условной расчетной кривой радиусом R = 350 м,
не имеющей возвышения наружного рельса

27.

Расчетная негабаритность
Геометрическим выносом груза
или подвижного состава
называется отклонение его
продольной оси от оси пути при
установке вагона в кривом участке
по хорде
Геометрический вынос расчетного
вагона длиной 24 м с базой 17 м в
расчетной кривой радиусом 350 м
принят равным 105 мм.

28.

Расчетная негабаритность
Расчетную негабаритность определяют для внутренних и наружных сечений груза. Внутренними
сечениями называются все поперечные сечения, расположенные в пределах базы вагона или сцепа,
наружными (или консольными) — за пределами базы вагона или сцепа.

29.

Расчетная негабаритность

30.

Расчетную негабаритность, хст, мм, определяют путем увеличения расстояния от оси пути до
точек груза на данной высоте на разность между геометрическими выносами рассматриваемого
поперечного сечения груза и расчетного вагона в условной расчетной кривой по формулам:
— для внутренних сечений груза
— для наружных сечений груза
где хi , — расчетная негабаритность частей груза, расположенных соответственно во внутренних и
наружных сечениях, мм;
Xj — расстояние от оси пути до рассматриваемой точки груза на данной высоте, мм;
ΔbR , ΔbR — разность между геометрическими выносами соответственно внутреннего и наружного
поперечного сечения груза и расчетного вагона в условной расчетной кривой, мм.
Определяются либо по справочным таблицам, либо расчетным путем.

31. Перевозка длинномерных грузов

Размещение длинномерных грузов на сцепе с опорой на один вагон производится без
применения турникетов.
При выходе груза за пределы концевой балки рамы с одной стороны вагона более чем на
400 мм используется одна платформа прикрытия, при выходе груза за пределы концевых
балок рам с обеих сторон вагона более чем на 400 мм - две платформы прикрытия.

32. Перевозка длинномерных грузов

При перевозке груза на сцепе с
опорой на два вагона
крепление груза (растяжки,
стойки, борта и др.) не должно
препятствовать перемещению
вагонов сцепа относительно
груза при проходе кривых
участков пути.

33.

34.

35.

Для размещения и крепления груза на каждом
грузонесущем вагоне сцепа устанавливают турникетные
опоры (турникеты).
Турникет – это комплект опорно-крепежных устройств
(турникетных опор), предназначенный для компенсации
всех видов усилий, действующих на груз в процессе
перевозки, а также для обеспечения безопасного
прохождения сцепа по криволинейным участкам пути и
участкам с переломным профилем при различных режимах
движения.
Применяются турникеты двух видов:
- неподвижные турникеты, обеспечивающие неподвижное
закрепление груза в продольном направлении
относительно одной из грузонесущих платформ;
- подвижные турникеты, обеспечивающие закрепление
груза с возможностью ограниченного продольного
перемещения груза относительно обеих грузонесущих
платформ.

36.

37.

Подвижной состав для перевозки негабаритных грузов
Универсальный подвижной
состав (платформа, полувагон)

38.

Подвижной состав для перевозки негабаритных грузов
Транспортеры площадочного типа
Грузоподъемность, т
55 – 225
Масса тары вагона, т
31 – 126,5
Габарит по ГОСТ 9238
Т, 1-Т, 02-ВМ
Длина по осям автосцепок, мм:
19470 – 40830
Количество осей, шт.
4 – 16

39.

Подвижной состав для перевозки негабаритных грузов
Колодцевого типа
Грузоподъемность, т
120
Масса тары вагона, т
56
Габарит по ГОСТ 9238
1-Т
Длина по осям автосцепок, мм: 25280
Количество осей, шт.
8

40.

Подвижной состав для перевозки негабаритных грузов
Платформенного типа
Грузоподъемность, т
92-120
Масса тары вагона, т
40 – 55,24
Габарит по ГОСТ 9238
Т, 1-Т,
02-ВМ
Длина по осям автосцепок, мм:
22080 –
25220
Количество осей, шт.
6–8

41.

Подвижной состав для перевозки негабаритных грузов
Сочлененного типа
Грузоподъемность, т
250-500
Масса тары вагона, т
160-227
Габарит по ГОСТ 9238
1-Т, 0-Т,
0-ВМ
Длина по осям автосцепок, мм:
48260 – 66410
Количество осей, шт.
28-32

42.

ПОРЯДОК ПРОИЗВОДСТВА МАНЕВРОВОЙ
РАБОТЫ С ТРАНСПОРТЁРАМИ И ВАГОНАМИ,
ЗАГРУЖЕННЫМИ НЕГАБАРИТНЫМИ ГРУЗАМИ
РАЗРЕШАЕТСЯ
• НА ОБЩИХ ОСНОВАНИЯХ: вагоны (транспортеры) с грузами боковой и нижней негабаритности 1, 2, 3 степени, верхней
негабаритности
• СКОРОСТЬ НЕ БОЛЕЕ 15 км/ч: вагоны (транспортеры) с грузами боковой и нижней негабаритности 4, 5, 6 степени и
сверхнегабаритными
ЗАПРЕЩАЕТСЯ
• платформы и полувагоны с грузами боковой и нижней негабаритности 4, 5, 6 степени, верхней 3 степени и
сверхнегабаритные
• груженные транспортеры
ЗАПРЕЩАЕТСЯ
• платформы и полувагоны с грузами боковой и нижней негабаритности 4, 5, 6 степени, верхней 3 степени и
сверхнегабаритные
ЗАПРЕЩАЕТСЯ
• груженные и порожние транспортеры 12-осные и более
• груженные транспортеры грузоподъемностью 120т и более

43.

ПОРЯДОК ПОСТАНОВКИ В ПОЕЗДА
ТРАНСПОРТЁРОВ И ВАГОНОВ, ЗАГРУЖЕННЫХ НЕГАБАРИТНЫМИ ГРУЗАМИ
Вагоны, загруженные негабаритными грузами:
Вид и степень
негабаритности груза
нижней 1-3
боковой 1-3
верхней 1-3
нижней 4-5
боковой 4-5
Порядок постановки в поезда
в соответствии с действующим планом формирования
прикрытие с головы и хвоста поезда не менее одного вагона с габаритным грузом или
порожнего
в общих поездах: ставятся в состав не ближе 20 вагонов от вагона с контрольной рамой
в специальном поезде с отдельным локомотивом: не ближе 5 вагонов от вагона с
контрольной рамой (максимальный вес не должен превышать 1900 т, длина не должна
быть более 25 усл. вагонов)
нижней 6
боковой 6
в числе вагонов прикрытия груза от контрольной рамы допускается использовать
сверхнегабаритный
вагоны, загруженные негабаритными грузами негабаритности: нижней 1- 2, боковой 1
- 3, верхней 1- 2 степеней
нижней 4-6
боковой 4-6
Вагон с контрольной рамой
должны иметь прикрытие от хвоста поезда не менее одного вагона с габаритным грузом
или порожнего
запрещается ставить в длинносоставные поезда
отделяется от локомотива одной порожней платформой для улучшения видимости
контрольной рамы

44.

ПОРЯДОК ПОСТАНОВКИ ТРАНСПОРТЕРОВ В ПОЕЗДА
Число осей и грузоподъемность
Порожние транспортеры, груженые 4осные
и
сцепного
типа
грузоподъемностью 120 т
Груженые и порожние транспортеры,
имеющие 8 и более осей
Груженые 8-осные транспортеры
Порожние транспортеры, имеющие 8 и
более осей, а также порожние и груженые
транспортеры
сцепного
типа
грузоподъемностью 120 т и 240т
Груженые транспортеры с числом осей 12 и
более
(кроме
сцепного
типа
грузоподъемностью 120 т с одной или
двумя промежуточными платформами)
Транспортеры грузоподъемностью более
240 т
Порядок постановки в поезда
Постановка в состав без прикрытия
Запрещается ставить в поезда с подталкиванием
Разрешается ставить в состав поезда без прикрытия (кроме участков
железных дорог, на которых запрещено или ограничено обращение 8-осных
вагонов)
При следовании их в поездах весом более 3 тыс.т: разрешается ставить
только в последнюю четверть состава поезда
При меньшем весе поезда можно ставить в любую часть состава поезда
С каждой стороны необходимо ставить не менее двух вагонов прикрытия из
числа 4-осных вагонов с грузом не более 40 т или порожних любого типа
При следовании в одном поезде двух и более таких транспортеров между
ними ставится не менее трех вагонов прикрытия из числа 4-осных вагонов с
грузом не более 40 т или порожних любого типа
В соответствии с техническими условиями эксплуатации этих транспортеров

45.

ПЕРЕВОЗКА НЕГАБАРИТНЫХ ГРУЗОВ С КОНТРОЛЬНОЙ РАМОЙ
Для обеспечения безопасности движения перевозка
сверхнегабаритных грузов в любой зоне, а также
грузов нижней и боковой негабаритности 6-й
степени осуществляется с контрольной рамой.
Контрольная рама устанавливается
на крытом вагоне, платформе или
полувагоне. Допускается установка
контрольной рамы на груженом
вагоне.
Основное назначение рамы –
выявлять внезапно возникшие или в
полной мере не учтенные препятствия
для данного груза

46.

ПЕРЕВОЗКА НЕГАБАРИТНЫХ ГРУЗОВ С КОНТРОЛЬНОЙ РАМОЙ
Раму изготовляет и устанавливает отправитель. Крепление контрольной рамы к
крытому вагону должно осуществляться в поперечной вертикальной плоскости,
в которой находится ось шкворня, с конца, обращенного к локомотиву. Если
неизвестно направление следования или оно будет изменяться, то контрольная
рама должна устанавливаться в двух шкворневых сечениях вагона.
Контрольная рама должна иметь два контура:
основной - для проверки наличия препятствий в прямых участках пути размеры должны точно соответствовать поперечным фактическим размерам
груза
дополнительный - для кривых участков пути - размеры определяются путем
увеличения основного на величину геометрических выносов соответствующих
критических точках груза в расчетной кривой радиусом 350 м.

47.

ПЕРЕВОЗКА НЕГАБАРИТНЫХ ГРУЗОВ С КОНТРОЛЬНОЙ РАМОЙ
Груз, следующий с контрольной рамой, должен
сопровождаться опытным работником дистанции пути
по квалификации не ниже дорожного (мостового) мастера, а
при необходимости и других подразделений отделения
дороги (дистанций сигнализации и связи,
электроснабжения).
Сопровождающий должен знать местонахождение и
особенности сооружений, при проследовании которых
необходимо проявить особую бдительность, наблюдая за
прохождением контрольной рамы и груза. Работник,
сопровождающий груз с контрольной рамой, должен
находиться в задней кабине или в кабине задней секции
локомотива и вести наблюдение за прохождением на
прямых участках основного контура контрольной рамы, в
кривых – дополнительного контура.

48.

ПЕРЕВОЗКА НЕГАБАРИТНЫХ ГРУЗОВ С КОНТРОЛЬНОЙ РАМОЙ
При соприкосновении контрольной рамы с частями сооружений и устройств
сопровождающий должен подавать машинисту тифоном звуковой сигнал об остановке
поезда.
Решение о дальнейшем следовании и скорости продвижения груза в опасном месте
принимает сопровождающий.
Он дает машинисту поезда указания, а при
необходимости после остановки выходит из локомотива и ведет визуальное наблюдение
за прохождение груза с минимальной скоростью мимо препятствий.
Локомотивная бригада поезда, в котором находится груз с контрольной рамой,
помимо условий следования, указанных в предупреждении, должна строго выполнять
указания сопровождающего о порядке следования поезда в пределах искусственных
сооружений.
В ночное время контрольная рама должна освещаться прожектором локомотива.
English     Русский Rules