МИНИСТЕРСТВО НАУКИ И ВЫСШЕГО ОБРАЗОВАНИЯ РОССИЙСКОЙ ФЕДЕРАЦИИ ФЕДЕРАЛЬНОЕ ГОСУДАРСТВЕННОЕ АВТОНОМНОЕ ОБРАЗОВАТЕЛЬНОЕ УЧРЕЖДЕНИЕ
Ассортимент выпускаемых изделий
Разрез
Сводная таблица расчета экономического эффекта от предложенных в проекте прогрессивных решений
Маркетинговое исследование
Экономическая эффективность проекта
4.83M
Category: industryindustry

Проект мясоперерабатывающего завода мощностью 300 тонн варёных колбасных изделий в сутки

1. МИНИСТЕРСТВО НАУКИ И ВЫСШЕГО ОБРАЗОВАНИЯ РОССИЙСКОЙ ФЕДЕРАЦИИ ФЕДЕРАЛЬНОЕ ГОСУДАРСТВЕННОЕ АВТОНОМНОЕ ОБРАЗОВАТЕЛЬНОЕ УЧРЕЖДЕНИЕ

ВЫСШЕГО
ОБРАЗОВАНИЯ «СЕВЕРО-КАВКАЗСКИЙ ФЕДЕРАЛЬНЫЙ УНИВЕРСИТЕТ»
ФАКУЛЬТЕТ ПИЩЕВОЙ ИНЖЕНЕРИИ И БИОТЕХНОЛОГИЙ ИМЕНИ АКАДЕМИКА А.Г. ХРАМЦОВА
КАФЕДРА ПИЩЕВЫХ ТЕХНОЛОГИЙ И ИНЖИНИРИНГА
ВЫПУСКНАЯ КВАЛИФИКАЦИОННАЯ РАБОТА
«Проект мясоперерабатывающего завода мощностью 300 тонн варёных колбасных
изделий в сутки»
Выполнила:
Островская А. И.
студентка 4 курса
группы ППЖ-б-о-21-1
Руководитель проекта:
Барыбина Л. И.
доцент кафедры ПТиИ
ФПИиБ

2. Ассортимент выпускаемых изделий

Вид
изделия
Наименование
Группа
продукта
Категория
Выработка
в смену, кг
ГОСТ или ТУ на
продукцию
1
2
3
4
5
6
Вареные
колбасы
1.Докторская
2.Молочная
3.Губернская
4.Филейная
Сосиски
1.Ганноверские
2.Бистро
Мясной
Мясной
Мясосодержащий
Мясной
Мясной
Мясной
А
Б
Г
60000
40000
90000
В
50000
В
Г
30000
30000
ГОСТ Р 521962011
ГОСТ Р 521962011
ТУ 10.13.14-03951585456-2015
ТУ 10.13.14-03951585456-2015
ТУ 10.13.14-03951585456-2015
ТУ 10.13.14-03951585456-2015

3.

4.

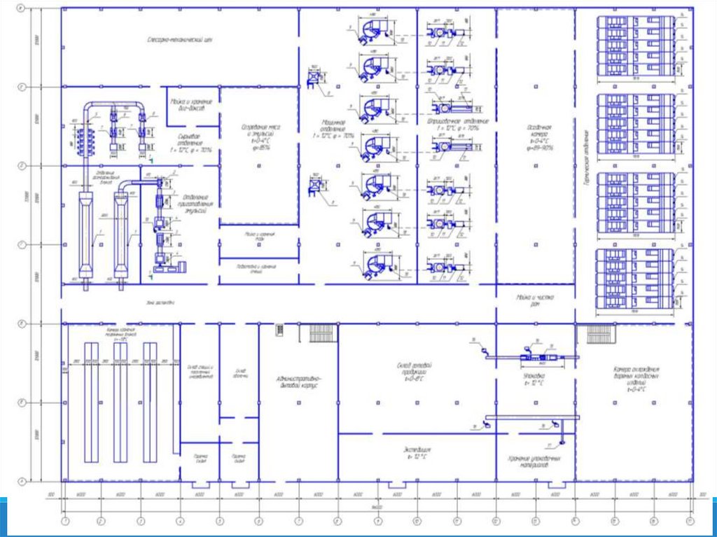
5. Разрез

6.

7. Сводная таблица расчета экономического эффекта от предложенных в проекте прогрессивных решений


Предложенные мероприятия
Эффективность мероприятия
6
Применение микроволнового
Сокращение потерь при размораживании мясных
дефростера для размораживания мясных
блоков
блоков
Применение эмульситатора для
получения эмульсий из свиной шкурки и
Сокращение потребления электроэнергии
говяжьей жилки
Применение фаршевых насосов для
Сокращение 14 рабочих и экономия заработной
перекачивания фарша из куттеров в
платы
бункер формователя
Применение оборудования
Сокращение численности рабочих-2,
непрерывного действия для
механизация погрузочно-разгрузочных,
термообработки вареных колбасных
транспортных и складских работ, экономия энергии,
изделий
автоматическая система мойки
Сокращение численности рабочих-40,
Применение робототехники на участке
повышение санитарно-гигиенического уровня
упаковки готовой продукции
производства, автоматизация процессов
Итого
7
Снижение производственных затрат на 1 кг
1
2
3
4
5
Годовой
экономический
эффект, тыс. руб
159910,27
10459
13832,0
3952,0
39520
227673,27
46,9

8. Маркетинговое исследование

9.

Колбаса вареная Молочная
Наименование сырья и
материалов
Говядина 1 сорта
Свинина п/ж
Молоко сухое
Меланж
Итого
Вода питьевая
Соль нитритная
Соль
КПД ФС №4 «ГОСАРОМ»
Итого сырье и специи
Оболочка полиамид
Клипсы
Петли
Итого оболочка
Нормы
Цена
Стоимость
35
60
3
2
100
35
1,39
0,7
0,9
137,99
521,00
216,00
325,00
100,00
18235,00
12960,00
975,00
200,00
32370
0,00
50,04
15,40
702,00
33137,44
40
500
250
790
0
36
22
780
240,14
30
0,15
0,07
Итого стоимость сырья и материалов
Выход готовой продукции
Сырьевая стоимость продукции
138
1200,00
75,00
17,50
1292,50
34429,94
249,49
138,00%
34429,94
Упаковка
1,05
4,50
Работа основных рабочих
Работа АУП
Энергоресурсы
Налоговые отчисления
Прочие расходы
Итого производственные расходы на 1 кг
4,73
1,89
0,95
12,47
24,95
17,46
62,45
Себестоимость 1 кг
311,94
Базовая цена от производителя
Наценка
15,0%
Стоимость
358,73

10. Экономическая эффективность проекта


п/п
1.
2.
3.
4.
5.
6.
7.
8.
9.
Наименование показателя
Мощность цеха
Объём производства
Товарная продукция
Себестоимость товарной продукции
Общая численность рабочих
(производственных и
вспомогательных)
Численность АУП и ИТР
Прибыль от реализации продукции
Производственные расходы на 1 кг
продукции (среднее значение)
Плановая рентабельность
продукции, %
Ед.
измерения
т/сутки
т/год
млн.руб
млн.руб
Значение показателя
300
74100
18211593,18
15836167,98
чел
67
чел
млн.руб
10
2375425.2
руб
46,9
%
15

11.

СПАСИБО ЗА ВНИМАНИЕ!
English     Русский Rules