Similar presentations:
Автоматизации установки депарафинизации
1.
Тема выпускной квалификационной работы:«Автоматизации установки депарафинизации»
Вып. ст. Якубова П.Д. гр. АТПП-21
Руководитель проекта: Пашаев В.В.
Грозный 2025
2.
20г22г
TE
4а
ПП 19
FE
TE
6а
TE
7а
ПП 21
FE
9а
7д
ВОДА
TE
8г
TE
Р 27
9д
ВОДА
6г
10г
TE
29а
Р 11
20а
31а
Х 23
19г
LT
22а
30а
FE
Р 12
34а
21г
TE
ПАР
19а
TE
TE
10а
TE
8а
Р 28
LT
21а
Х 24
32а
18г
LT
ВОДА
LT
LT
13а
2а
FE
15а
35а
28г
TE
LT
11а
Р 29
18а
К 17
К 20
LT
11г
28а
TE
33а
Х 25
Ц 10
Ц 14
13г
15г
Ц9
TE
12а
12г
К 22
LT
Ц 15
16а
17г
14г
П 18
16г
LT
27г
14а
TE
17а
FE
1а
FE
FE
3а
5а
LT
27а
36г
Н1
1 2 3 4
Н2
5
6
5
7
11
LT
Н3
6
4
ПРИБОРЫ ПО МЕСТУ
FТ
1б
ПРЕОБРАЗОВАТЕЛИ
FY
FY
LY
LY
1в
1г
2б
2в
8
8
7
36а
9
2
3
FТ
3б
10
10
11 12
9
16
13 14 15 16
12
FТ
5б
FY
FY
TY
TY
3в
3г
4б
4в
Х 26
П 16
5д
3д
1д
Р 30
19
18
24
23
FТ
7б
FY
FY
TY
TY
5в
5г
6б
6в
29
28
17 18 19 20 21
35
36
14
22 23 24
13
42
47
21
26
25
22
26
27 28 29 30 31
25
32
31
32
40
34
33
41
46
45
48
49
35
50
51
36
52
37
53
56
59
57
38
58
FТ
9б
FY
FY
TY
TY
7в
7г
8б
8в
39
40
1
15
17
27
PT
PT
PT
PT
23а
24а
25а
26а
42 43 44 45
41
54
61
55
46
60
37
38
FТ
34б
FТ
35б
33
47 48 49 50 51 52 53
34
2030 39 44 43
FY
FY
TY
TY
LY
LY
TY
TY
LY
LY
LY
LY
LY
LY
LY
LY
TY
TY
TY
TY
TY
TY
TY
TY
LY
LY
LY
LY
PY
PY
PY
PY
LY
LY
LY
LY
FY
FY
LY
LY
TJR
9в
9г
10б
10в
11б
11в
12а
12б
13б
13в
14б
14в
15б
15в
16б
16в
17б
17в
18б
18в
19б
19в
20б
20в
21б
21в
22б
22в
23б
24б
25б
26б
27б
27в
28б
28в
34в
35в
36б
36в
29б
54 55 56 57
58 59 60 61
УМК
РЕГУЛИРОВАНИЕ
СИГНАЛИЗАЦИЯ
РЕГИСТРАЦИЯ
МНЕМОСХЕМА
ВКР АТПП ПЧ
Изм Лист
Ф.И.О.
Подпись Дата
Дипломн. Якубова П.Д.
Руководит. Пашаев В.В.
Автоматизация установки
депарафинизации
Лит
Лист
Н.контр. Хакимов З.Л..
Зав. каф. ИсаеваМ.Р.
Проектная часть
Масса
Масштаб
Листов
ГГНТУ, ИЭ
ст. гр. АТПП-21
3.
Структура АСУТП на базе МФК1500ВКР АТПП ПЧ
Изм Лист
подп Датадата
докум Подпись
Изм
Лист Ф.И.О.
П.Д. З.Х.
Разраб Якубова
Дипломн.
Довлетукаев
В.В. Х.Р.
Визирова
Руководит. Пашаев
Провер
Т.конт
Н.контр. Хакимов З.Л..
Зав. каф. Исаева М.Р.
Н.конт
Утв
Хакимов З.Л.
Лит
ПЧ
АТПП
ВКР
Автоматизация установки
депарафинизации
Проектирование АСУТП
для процесса
депарафинизации
Проектная
часть
Проектная часть
ЛИТЕР
Лист
Масса
Масштаб
МАССА
МАСШТ.
Листов
ГГНТУ, ИЭ
ЛИСТОВ
ст. гр. АТПП-21
ЛИСТ
ГГНТУ, ИЭ
гр. АТПП-19
4.
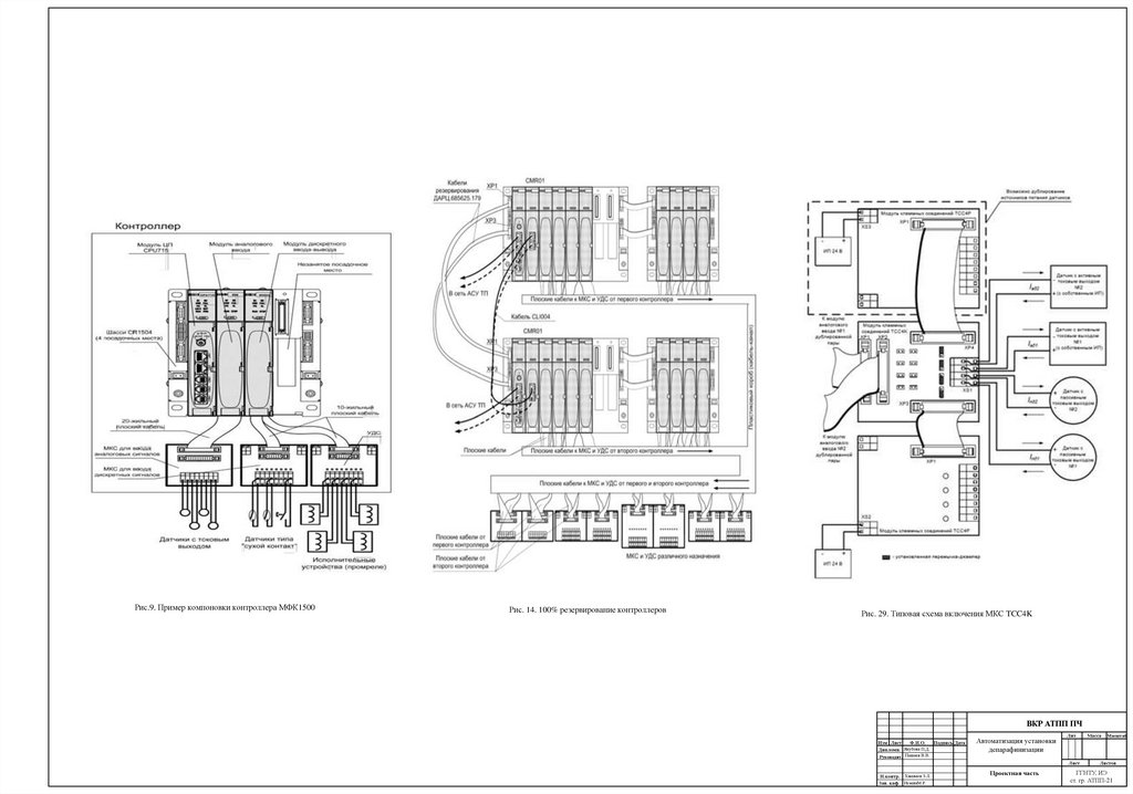
Рис.9. Пример компоновки контроллера МФК1500Рис. 14. 100% резервирование контроллеров
Рис. 29. Типовая схема включения МКС TCC4K
ВКР АТПП ПЧ
Изм Лист
Ф.И.О.
Подпись Дата
Дипломн. Якубова П.Д.
Руководит. Пашаев В.В.
Автоматизация установки
депарафинизации
Лит
Лист
Н.контр. Хакимов З.Л..
Зав. каф. ИсаеваМ.Р.
Проектная часть
Масса
Масштаб
Листов
ГГНТУ, ИЭ
ст. гр. АТПП-21
5.
Рис. 26. Нормирующие измерительные преобразователи ПНТРис. 25. Термопары марки «ТХА-0515»
Рис.27. Клапаны КМР с позиционерами Sipart PS2
Рис. 23. Буйковый уровнемер Proservo
NMS5
Рис. 24. Преобразователь избыточного давления
«Сапфир-22» Ех М-ДИ-2120
ВКР АТПП ПЧ
Рис. 22. Расходомер ALTOSONIC III
Изм Лист
Ф.И.О.
Подпись Дата
Дипломн. Якубова П.Д.
Руководит. Пашаев В.В.
Автоматизация установки
депарафинизации
Лит
Лист
Н.контр. Хакимов З.Л.
Зав. каф. Исаева М.Р.
Проектная часть
Масса
Масштаб
Листов
ГГНТУ, ИЭ
ст. гр. АТПП-21
6.
ВКР АТПП ПЧИзм Лист
Ф.И.О.
Подпись Дата
Дипломн. Якубова П.Д.
Руководит. Пашаев В.В.
Автоматизация установки
депарафинизации
Лит
Лист
Н.контр. Хакимов З.Л..
Зав. каф. ИсаеваМ.Р.
Проектная часть
Масса
Масштаб
Листов
ГГНТУ, ИЭ
ст. гр. АТПП-21
7.
X(t)1
С0
0,4
1,2
0,3
0,2
0,8
0,1
0,6
С1
0
1
2
3
4
5
6
7
8
9
10
11
12
13
14
15
16
0,4
-0,1
Рис. 33. Кривая равной степени затухания
0,2
-0,2
t
0
1
2
3
4
5
6
7
8
9
10
11
12
13
14
-0,3
Рис. 29. Графики кривых разгона по каналу регулирования
H(t)
1
X(t)
1,2
0,8
1
0,6
0,8
0,4
0,6
0,2
0,4
t
0
1
2
3
4
5
6
7
8
9
10
11
12
13
14
15
16
17
18
19
20
21
22
23
24
25
26
27
28
29
30
31
0,2
t
-0,2
Рис. 37. График переходного процесса
0
1
2
3
4
5
6
7
8
9
10
11
12
-0,4
Рис. 30. Графики кривых разгона по каналу возмущения
ВКР АТПП ПЧ
Изм Лист
Ф.И.О.
Подпись Дата
Дипломн. Якубова П.Д.
Руководит. Пашаев В.В.
Автоматизация установки
депарафинизации
Лит
Лист
Н.контр. Хакимов З.Л.
Зав. каф. Исаева М.Р.
Проектная часть
Масса
Масштаб
Листов
ГГНТУ, ИЭ
ст. гр. АТПП-21
industry