3.80M
Category: softwaresoftware

Общество с ограниченной ответственностью «Фенсма» (ООО «Фенсма»)

1.

Общество с ограниченной ответственностью
«Фенсма» (ООО «Фенсма»)
11.06.2020 г.
Исх: 2511/2020-ф
Оптимизация дополнительных затрат и
сроков выполнения работ в рамках
первоначальной концепции здания 399,85
метров и свайное основание из
буронабивных свай
Общество с ограниченной ответственностью «Фенсма»
(ООО «Фенсма»)
ул. Мосфильмовская, д. 17Б, мансарда пом. II, комн.8,
Москва, 119330
ИНН 7728748323, КПП 772901001, ОГРН 1107746742784
тел.: +7 (495) 780-48-14; факс: +7 (495) 780-48-14
e-mail: corp@fensma.ru web: www.fensma.ru

2.

Изменение сроков старта работ (Без оптимизации)
График производства работ
на комплекс работ
на объекте: Бизнес-центр по адресу: г. Москва, внутригородское муниципальное образование Пресненское, Краснопресненская набережная, земельный участок 16/1, 77:01:0004042:20645
2025
Название
Ключевые события
Получение Заказчиком разрешения на строительство и предоставление
Подрядчику
Открытие Подрядчиком ордера ОАТИ для начала выполнения работ по
1.11
устройству "Стены в грунте"
Перенос, сохранение, ликвидация действующих коммуникаций силами
1.12
Заказчика
2 Подготовительный период
Кол-во,
Дней
Начало
работ
Окончание
работ
280
25.12.2024
30.09.2025
1
01.04.2025
01.04.2025
1
1
21.04.2025
21.04.2025
1
1
10.04.2025
10.04.2025
70
15.01.2025
25.03.2025
Ед. изм.
Объём
компл
1
компл
компл
1
1.10
2.1
Мобилизация технологического оборудования и техники
компл
1
14
15.01.2025
28.01.2025
2.2
Устройство временного ограждения строительной площадки
компл
1
30
15.01.2025
13.02.2025
2.3
Устройство пункта мойки колёс
шт
2
20
25.01.2025
13.02.2025
2.4
Устройство временных дорог по периметру котлована, в том числе
планировка площадки
компл
1
60
25.01.2025
25.03.2025
451
15.01.2025
10.04.2026
мес.
14,43
451
15.01.2025
10.04.2026
61
15.02.2025
16.04.2025
61
15.02.2025
16.04.2025
3
Содержание площадки
3.1
Содержание строительной площадки
4
Демонтажные работы
4.1
Демонтаж надземной части с погрузкой и вывозом с территории площадки (В
срок производства работ учтен механизированный демонтаж, ручной
демонтаж и мероприятия по сохранению зданий и сооружений не учтены)
м3
18 523
5
Устройство ограждения котлована
91
17.04.2025
16.07.2025
5.1
Устройство форшахты, бетон B15, армирование дорожной сетки 100х100х5,
коэф. арм. 20 кг/м3
м3
303
38
17.04.2025
24.05.2025
5.2
Устройство "стены в грунте", бетон B30 П4 F200 W10, коэф. арм. 150,0 кг/м3
м3
10 665,6
61
27.04.2025
26.06.2025
5.3
Устройство обвязочной балки бетон B30, коэф. арм. 109,64 кг/м3
м3
242,4
51
27.05.2025
16.07.2025
6
Устройство свайного поля
144
06.06.2025
27.10.2025
6.1
Устройство буронабивных свай d=1500мм, бетон B50 F150 W12, коэф. арм. 235
кг/м3
144
06.06.2025
27.10.2025
м3
12 447
7
Земляные работы
231
23.08.2025
10.04.2026
7.1
Разработка грунта котлована
м3
122 758
181
12.10.2025
10.04.2026
7.2
Устройство шпунтового ограждения
т
20,4
14
28.10.2025
10.11.2025
7.3
Устройство строительного водопонижения
шт
19
50
23.08.2025
11.10.2025
7.4
Устройство распорной системы
т
1 622,10
174
19.10.2025
10.04.2026
8
Демобилизация
10
01.04.2026
10.04.2026
8.1
Демобилизация технологического оборудования и техники
10
01.04.2026
10.04.2026
компл
1
На сегодняшний день подписан
контракт
на
3 152 262 715,30 сроком выполнения
работ
14.43
месяцев.
В
виду
обстоятельств
старт
начала
выполнения строительно-монтажных
работ был смещен, из-за чего
происходит
пропорциональное
Январь Февраль
Март
Апрель
Май
Июнь
Июль
2026
Август
Сентябрь Октябрь
Ноябрь
Декабрь
Январь
Февраль
Март
Апр
8-14
15-21
22-31
1-7
8-14
15-21
22-28
1-7
8-14
15-21
22-31
1-7
8-14
15-21
22-30
1-7
8-14
15-21
22-31
1-7
8-14
15-21
22-30
1-7
8-14
15-21
22-31
1-7
8-14
15-21
22-31
1-7
8-14
15-21
22-30
1-7
8-14
15-21
22-31
1-7
8-14
15-21
22-30
1-7
8-14
15-21
Пр 22-31
1-7
8-14
15-21
22-31
1-7
8-14
15-21
22-28
1-7
8-14
15-21
22-31
1-7
8-14

п/п
Разница сроков:
Фактические:
Договорные:
Начало работ – 15.02.25 г.Начало работ – 20.05.25 г.
Окончание -10.04.26 г. Окончание -17.09.26 г.

3.

Причины увеличения стоимости
Сравнение стоимости
подписанного договора и
обновленной структуры
договора с доп. работами
Сравнение стоимости подписанного договора и обновленной
структуры договора с доп. работами

п/п
Стоимость согласно
подписанному договору
Стоимость согласно обновленной
структуры договора с доп.
работами
1
2
3
4
1
3 152 262 748,03 ₽
3 581 103 737,63 ₽
428 840 989,6 ₽
1
2

п/п
Наименование добавленных работ
Стоимость добавленных работ
Примечание
1
2
3
4
1
Устройство дополнительных опытных БНС
4 шт.
16 291 787,94 ₽
В связи с ускорением
проведения
испытаний
2
3
Корректировка ПОДД и ПОС, Разработка
СГП на период строительства (по
требованиям МГГТ ОПС), сопровождение в
МГСН, в МГГТ ОПС и Префектуре
Ручная разборка скульптуры "Древо Жизни"
с устройством защитного короба
5 060 000,00 ₽
5 050 790,07 ₽
Увеличение
стоимости
4
РД на отсечные стены и Jet
3 730 000,00 ₽
5
Устройство отсечных ЖБ стен
12 637 757,66 ₽
Согласование РД
6
Устройство Jet-свай
44 785 604,95 ₽
Согласование РД
7
Засыпка помещений подземной части
здания ПЕСКОМ путем вскрытия плиты
перекрытия подвала
109 788 500,00 ₽
8
Снос подземной части здания
комбинированным способом с
погрузкой и вывозом мусора с территории
строительной площадки (с
учетом утилизации мусора на полигоне)
60 000 000,00 ₽
9
Обратная засыпка котлована песком, после
демонтажа подземной части
36 425 000,00 ₽
10
Добавление объема на устройство узлов
крепления распорной системы из труб
23 821 086,75 ₽
11
Управление проектом
74 939 709,57 ₽
12
Содержание строительной площадки
36 310 752,66 ₽
Итого
428 840 989,6 ₽
Примечания
Все цены с учетом НДС 20%
Не учтено изменения размера Аванса и
Банковской гарантии в связи с увеличением
срока работ.
Согласно КП от
07.04.2025
Не учтено в базовой
ведомости
В связи с
увеличением срока
выполнения работ

4.

Заказчиком ООО «ВБ Инжиниринг» поставлена
задача по оптимизации затрат и сроков.
11.06.2020 г.
Исх: 2511/2020-ф
По результатам проведенного анализа и поиска
оптимизации рассмотрим каждый из этапов более
детально, уделяя внимание тому, где возникли
дополнительные
работы
и
где
удалось
оптимизировать процессы.
Этапы

5.

11.06.2020 г.
Исх: 2511/2020-ф
Характерный
разрез

6.

11.06.2020 г.
Исх: 2511/2020-ф
Характерный
разрез

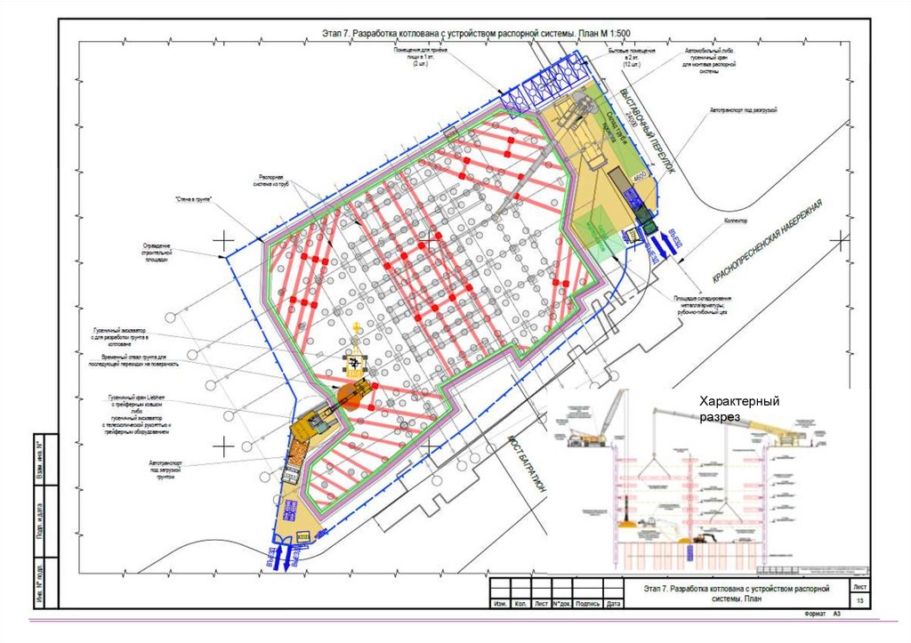
7.

11.06.2020 г.
Исх: 2511/2020-ф

8.

11.06.2020 г.
Исх: 2511/2020-ф
Характерный
разрез

9.

11.06.2020 г.
Исх: 2511/2020-ф

10.

11.06.2020 г.
Исх: 2511/2020-ф
Характерный
разрез

11.

11.06.2020 г.
Исх: 2511/2020-ф
Характерный
разрез

12.

Причины итогового увеличения стоимости
№ п/п Наименование добавленных работ
1
Стоимость
первоначально
добавленных работ
Стоимость
добавленных работ
после оптимизации
Полученная разница
при оптимизации
Примечание
3
4
5
6
2
Итоговая оптимизация с
расчетом дельты
11.06.2020 г.
Исх: 2511/2020-ф
дополнительных работ сверх
суммы контракта
Включение опытных БНС в
ряд рабочих свай
1
Устройство дополнительных опытных БНС 4 шт.
16 291 787,94 ₽
0,00 ₽
16 291 787,94 ₽
2
Корректировка ПОДД и ПОС, Разработка СГП на период строительства
(по требованиям МГГТ ОПС), сопровождение в МГСН, в МГГТ ОПС и
Префектуре
5 060 000,00 ₽
0,00 ₽
5 060 000,00 ₽ Отказ от выполнения работ
3
Ручная разбока скульптуры "Древо Жизни" с устройством защитного
короба
5 050 790,07 ₽
5 050 790,07 ₽
4
Работы по корректировке проектной документации с учетом изменения
диаметра свай
5
0,00 ₽
0,00 ₽
6 650 000,00 ₽
-6 650 000,00 ₽ Возможно исключение
РД на отсечные стены и Jet
3 730 000,00 ₽
3 730 000,00 ₽
0,00 ₽
6
Устройство отсечных ЖБ стен
12 637 757,66 ₽
12 636 481,17 ₽
1 276,49 ₽
7
Устройство Jet-свай
44 785 604,95 ₽
41 070 535,05 ₽
8
Засыпка подземной части здания ПЕСКОМ путем вскрытия плиты
перекрытия подвала
109 788 500,00 ₽
9
Снос подземной части здания комбинированным способом с
погрузкой и вывозом мусора с территории строительной площадки (с
учетом утилизации мусора на полигоне)
10

п/п
Наименование добавленных работ
Разница при
оптимизации
1
2
3
Пересчет СВГ согласно выпущенной РД
1 в связи с уменьшением коэф.
армирования с 150 кг/м3 на 106 кг/м3;
-11 937 187,48 ₽
-44 720 000,00 ₽
3 715 069,90 ₽ Уменьшение объемов
Уменьшение объема экскавации грунта
за счет исключения повторной засыпки
2
котлована после демонтажа подземной
части здания
27 228 500,00 ₽
Замена большей части
82 560 000,00 ₽ песка на бетонный бой от
надземной части здания
Изменение холостого хода бурения в
3 связи с понижением отм. устройства БНС -94 067 426,61 ₽
и уменьшение диаметра БНС
60 000 000,00 ₽
32 000 000,00 ₽
28 000 000,00 ₽
Пересчет строительного
объема демонтажа
Итого -150 724 614,09 ₽
Обратная засыпка котлована песком, после демонтажа подземной
части
36 425 000,00 ₽
0,00 ₽
36 425 000,00 ₽
Исключение вида работ изм. отметки бурения БНС
11
Добавление объема на устройство узлов крепления распорной системы
из труб
23 821 086,75 ₽
23 821 086,75 ₽
0,00 ₽
12
Управление проектом
74 939 709,57 ₽
74 939 709,57 ₽
0,00 ₽
Не учтено в базовой
ведомости
В связи с увеличением
срока выполнения работ
13
Содержание строительной площадки
36 310 752,66 ₽
Итого
428 840 989,60
36 310 752,66 ₽
263 437 855,27 ₽
0,00 ₽
165 403 134,33 ₽

п/п
Стоимость
согласно
подписанному
договору
Стоимость с
учетом
дополнительных
работ
Первоначальное
Увеличение стоимости
Стоимость с учетом
проведенной
оптимизации
Итоговое
Увеличение
стоимости
1
2
3
4
5
6
404 090 364,52 ₽
3 264 977 233,90 ₽
112 714 485,87 ₽
1
3 152 262 748,03 ₽ 3 556 353 112,55 ₽
По
результатам
проведенной
оптимизации
удалось достичь уменьшения
дополнительных затрат до 112
714 485,87 руб..
Итоговая
стоимость
контракта составляет: 3 264
977 233,90 руб.

13.

Изменение сроков в связи с добавлением видов работ в контракт
после проведенной оптимизации
Ключевые события
632
25.12.2024
17.09.2026
2
Проектирование
211
04.03.2025
30.09.2025
3
Подготовительный период
215
15.01.2025
17.08.2025
3.1 Устройство временного ограждения строительной площадки
3.2 Устройство пункта мойки колёс
3.3 Устройство временных дорог по периметру котлована, в том числе планировка площадки
4
1
30
15.01.2025
13.02.2025
шт
2
20
25.01.2025
13.02.2025
компл
1
65
14.06.2025
17.08.2025
611
15.01.2025
17.09.2026
611
15.01.2025
17.09.2026
163
20.05.2025
29.10.2025
Содержание строительной площадки и управление проектом
4.1 Содержание строительной площадки и управление проектом
5
компл
мес.
20,0
Демонтажные работы
Демонтаж надземной части с погрузкой и вывозом с территории площадки (В срок производства работ
5.1 учтен механизированный демонтаж, ручной демонтаж и мероприятия по сохранению зданий и сооружений
не учтены)
м3
18 523
28
20.05.2025
16.06.2025
Вскрытие плиты перекрытия здания на отметке 0.000 м с последующей обратной засыпкой и уплотнением
5.2
песка подвальных помещений
м3
11 400
35
04.06.2025
08.07.2025
5.3 Демонтаж подземных конструкций здания в зонах препятствующих выполнению "Стены в грунте"
м3
1 100
27
20.07.2025
15.08.2025
Демонтаж подземной части с погрузкой и вывозом с территории площадки (В срок производства работ
5.4 учтен механизированный демонтаж и обратная подсыпка площадки, ручной демонтаж и мероприятия по
сохранению зданий и сооружений не учтены)
м3
16 000
30
30.09.2025
29.10.2025
5.5 Разработка грунта в пазухах
м3
8 000
20
14.09.2025
03.10.2025
88
13.05.2025
08.08.2025
6
Обеспечение сохранности конструкций подземных сооружений, технических каналов, подземных
частей существующих зданий
Устройство отсечных стенок Ст.1, Ст.2, Ст.4, Ст.5, бетон В25 F150 W6 согласно разработанной Рабочей
6.1
документации выданной со штампом в "В производство работ"
м3
60,36
63
13.05.2025
15.07.2025
Устройство Jet - свай ф300-600 мм и геотехничекого экрана с обвязочной балкой согласно разработанной
6.2
Рабочей документации выданной со штампом в "В производство работ" после получения Ордера
шт
339
30
10.07.2025
08.08.2025
43
06.07.2025
17.08.2025
7
Устройство ограждения котлована
7.1 Устройство форшахты, бетон B15
м3
303
38
11.07.2025
17.08.2025
компл
1
12
06.07.2025
17.07.2025
м3
2 133,1
12
18.07.2025
29.07.2025
компл
1
12
18.07.2025
29.07.2025
м3
8 532,5
58
30.07.2025
25.09.2025
компл
1
10
25.09.2025
04.10.2025
м3
242,4
51
04.09.2025
25.10.2025
230
09.08.2025
26.03.2026
7.2 1 Этап ( в/о 1-5/А-Ж) - одной фрезой
7.2.1 Мобилизация завода ГСУ №1 и одной фрезы
7.2.2 Устройство "стены в грунте", бетон B30
7.3 2 Этап ( в/о 1-5/А-Ж) - двумя фрезами
7.3.1 Мобилизация завода ГСУ №2 и второй фрезы
7.3.2 Устройство "стены в грунте", бетон B30
7.3.3 Демобилизация завода ГСУ №1 и 2 и двух фрез
7.4 Устройство обвязочной балки бетон B30
8
Устройство свайного поля
8.1 Мобилизация Буровой установки в количестве 1 шт. под опытные сваи
компл
1
5
04.08.2025
08.08.2025
8.2 Устройство опытных свай свайного поля БНС за контуром подземной части демонтируемого здания
шт
4
10
09.08.2025
18.08.2025
Проведение испытаний опытных кустов свайного поля БНС методом ячейки Остерберга с учетом
интенсификации набора прочности бетона через 21 сутки
шт
4
7
08.09.2025
14.09.2025
шт
20
25,00
14.10.2025
07.11.2025
шт
234
128,00
08.11.2025
26.03.2026
337
16.10.2025
17.09.2026
8.3
8.4 1 Этап ( в/о 1-5/А-Ж) - двумя буровыми
8.4.1
Устройство буронабивных свай d=1500мм, бетон B50 F150 W12, коэф. арм. 235 кг/м3 с отметки низа
фундамента демонтированного здания
8.5 2 Этап ( в/о 5-9/А-Ж) - пять буровых
8.5.1
9
Устройство буронабивных свай d=1500мм, бетон B50 F150 W12, коэф. арм. 235 кг/м3 с отметки низа
фундамента демонтированного здания
Земляные работы
9.1 Устройство шпунтового ограждения
т
20,4
14
19.08.2025
01.09.2025
9.2 Устройство распорной системы
т
1 735,65
163
27.03.2026
05.09.2026
9.3 Разработка грунта котлована
м3
98 758
170,00
14.04.2026
17.09.2026
шт
19
50
16.10.2025
04.12.2025
10
08.09.2026
17.09.2026
10
08.09.2026
17.09.2026
9.4 Устройство стоек распорной системы
9.5 Устройство строительного водопонижения
10
Демобилизация
10.1 Демобилизация технологического оборудования и техники
компл
1
2026
1-7
8-14
15-21
Сентябрь
22-31
1-7
8-14
15-21
Август
22-31
1-7
8-14
15-21
Июль
22-30
1-7
8-14
Июнь
22-31
1-7
8-14
15-21
Май
22-30
1-7
8-14
15-21
Апрель
22-31
1-7
8-14
15-21
Март
22-28
15-21
1-7
8-14
Февраль
22-31
1-7
8-14
15-21
Январь
22-31
1-7
8-14
15-21
Декабрь
22-30
15-21
1-7
8-14
Ноябрь
22-31
1-7
8-14
15-21
Октябрь
22-30
15-21
1-7
8-14
Сентябрь
22-31
15-21
1-7
8-14
Август
22-31
1-7
8-14
Июль
15-21
Июнь
Праздничные и выходные дни с 31.12.2025 по 10.01.2026
1
Май
22-30
Окончание
работ
15-21
Начало
работ
1-7
Кол-во,
Дней
8-14
Объём
22-31
Ед. изм.
8-14
15-21
Название
15-21
2025

п/п

14.

Спасибо за внимание !
English     Русский Rules