Разработка технологического процесса изготовления детали M35006.83 – «Муфта шлицевая»
3D модель детали
Функциональное назначение поверхностей
Выбор исходной заготовки
Выбор исходной заготовки
Выбор технологических баз
Выбор технологических баз
Последовательность обработки детали
Последовательность операций
Последовательность обработки детали
Последовательность обработки детали
Последовательность обработки детали
Последовательность обработки детали
15.17M
Category: industryindustry

Разработка технологического процесса изготовления детали M35006.83 - «Муфта шлицевая»

1. Разработка технологического процесса изготовления детали M35006.83 – «Муфта шлицевая»

Руководитель: Глинская Н.Ю.
Исполнитель: Попова Л.В.
гр. 15КОМП(бп)ТМ

2. 3D модель детали

Материал: Сталь 25ХГТ ГОСТ 4545-71
Габаритные размеры, мм: L = 112 мм,
D = 78мм, d = 48мм
2 из 57

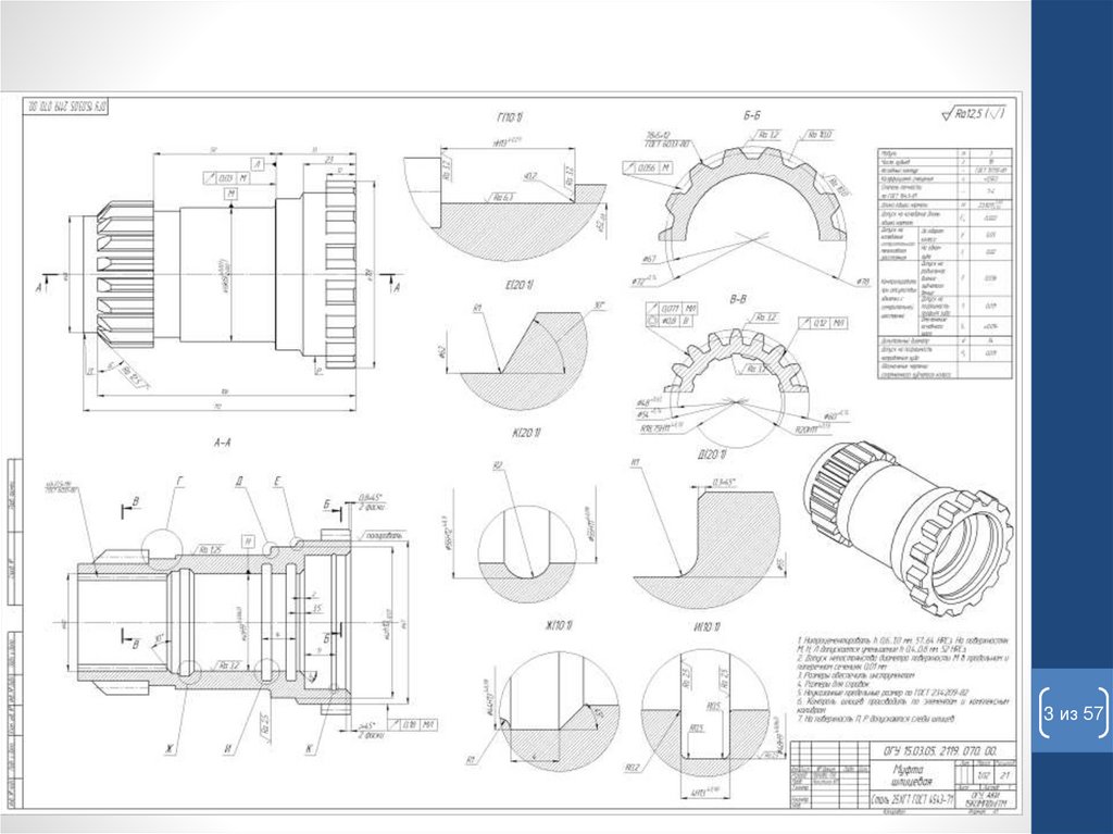
3.

3 из 57

4.

4 из 57

5.

5 из 57

6. Функциональное назначение поверхностей

6 из 57

7.

Определение типа производства
Объём выпуска, шт./год: 1000
Масса, кг: 1,02
Тип производства: Среднесерийный
7 из 57

8. Выбор исходной заготовки

8 из 57

9. Выбор исходной заготовки

Вид исходной
заготовки:
поковка
1 вариант
Ковка с помощью
молотов с
подкладными
штампами
2 вариант
штамповка
Вывод: Выбирается 1 вариант
для удобства базирования и изза простоты создания
9 из 57

10. Выбор технологических баз

Для первой и
второй операции
принимаем:
1,2 – двойная
опорная база
(лишает 2
степеней свободы)
3,4,5 –
установочная база
(лишает 3
степени свободы)
6 – опорная база
(лишает 1 степени
свободы)
10 из 57

11. Выбор технологических баз

Для большинства операции
принимаем:
1,2,3,4 – двойная направляющая (лишает 4 степеней
свободы)
5,6 – опорная база (лишает 1 степени свободы)
11 из 57

12. Последовательность обработки детали

1. Точение черновое торца диаметром 78h14 Ra 25;
2. Точение черновое диаметра 78h14 Ra 12,5
3. Точение чистовое торца диаметром 78h14 Ra 12,5;
4. Растачивание черновое диаметра 55H14 Ra 12,5
5. Растачивание черновое диаметра 56H12 Ra 12,5
6. Растачивание черновое диаметра 40H9 Ra 3,2
7. Растачивание чистовое диаметра 40H9 Ra 3,2
8. Растачивание черновое (2 канавки) диаметра 48H9 Ra 2,5
9. Растачивание чистовое (2 канавки) диаметра 48H9 Ra 2,5
10. Растачивание тонкое (2 канавки) диаметра 48H9 Ra 2,5
11. Точение фаски 2×45°
12. Точение фаски 2×45°
13. Точение черновое торца диаметром 48h14 Ra 25;
14. Точение чистовое торца диаметром 48h14 Ra 12,5;
15. Растачивание черновое диаметра 35H14 Ra 12,5
16. Фрезерование черновое диаметра 42H14 Ra 12,5
17. Фрезерование черновое диаметра 44H13 Ra 12,5
18. Фрезерование фаски 2×
English     Русский Rules