3.30M
Category: industryindustry

Электроснабжение промышленного предприятия с разработкой системы автоматического контроля параметров электрической энергии

1.

«Электроснабжение промышленного
предприятия с разработкой системы
автоматического контроля параметров и
учета электрической энергии»
Докладчик: Раскосов Ямен Александрович
Руководитель: к.т.н., доцент, доцент кафедры
"Возобновляемые источники энергии и электрические
системы и сети" Горпинченко А.В.

2.

1

3.

2

4.

3
1
1 – шифр направления подготовки
2 – ОФО/ЗФО
3 – номер по приказу
2 3 4
5
6
4 – год
5 – выпускная квалификационная работа
6 – шифр названия чертежа (ГП, СХ, СХ1)

5.

4

6.

«Электроснабжение промышленного предприятия с разработкой системы автоматического
контроля параметров и учета электрической энергии»
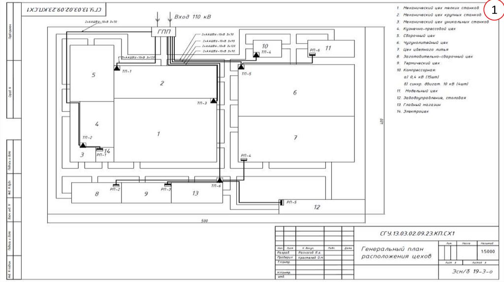
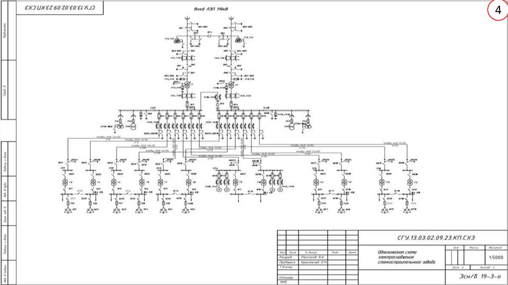
Разработка системы автоматического контроля параметров и учета
электрической энергии на станкостроительном заводе
АСКУЭ - это автоматизированная система,
обеспечивающая измерение
электроэнергиии и величин ее параметров,
передачу данных по коммуникационным
каналам на сервер, с дальнейшим
хранением и использованием данной
информации.
5

7.

«Электроснабжение промышленного предприятия с разработкой системы автоматического
контроля параметров и учета электрической энергии»
Цели и задачи АСКУЭ
Основной целью АСКУЭ является автоматический сбор информации о
потреблении энергоресурсов на выбранных узлах предприятия отдельными
потребителями и предоставление этой информации сотрудникам или
должностным лицам для принятия управленческих решений, связанных с
электропотреблением на предприятии.
АСКУЭ включает в себя ряд задач, таких как получение оперативной и точной
информации о потреблении электроэнергии, концентрация данных, их перенос
на следующий уровень, создание отчетов и графиков с заданными
зависимостями. Она также предоставляет хранение и защиту собранных
данных от потерь и несанкционированного доступа.
6
English     Русский Rules