2.24M
Similar presentations:
Во имя всех тех, кто жив, и тех, кого уже нет, и тех, кто будет потом…
Тех. задание
Мы в ответе за тех, кого приручили
Школа детективов. Игра тех для тех, кто знает кислород
Для тех, кто строит будущее
Задания для тех, кто не боится трудностей
Береги тех, кто жив. Помни о тех, кого нет
Комплекс упражнений «Для тех, кто дома!»
Мы в ответе за тех, кого приручили
Cтроки тех, кто был в бою
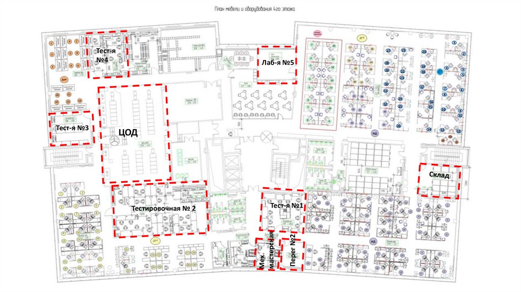
Тех. помещения. План
1.
1
Тест-я
№4
21
27
Лаб-я №5
28
20
2
19
29
22
4
3
18
5
23
30
17
7
31
6
8
24
32
16
15
10
9
11
12
13
26
14
ЦОД
Тест-я №1
Перег №2
Тестировочная № 2
Мех.
мастерская
Тест-я №3
25
2.
Водительская
Склад 2-25
Пом. 2,01
English
Русский
Rules