8.56M
Category: softwaresoftware

Выполнение чертежа в AutoCAD

1.

Курсовой проект
Выполнение чертежа в AutoCAD
Лист 3
часть 1 из 2

2.

Лист 3
1. Теория
2. Разрез по зданию
3. Несущие
элементы
4. Построение
плоскости разреза
5. Построение
разреза
6. Разрез по
несущим
элементам
(Каркасная система)
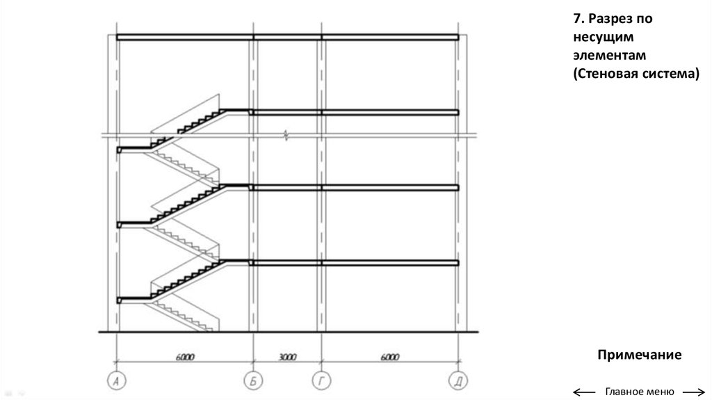
7. Разрез по
несущим
элементам
(Стеновая система)

3.

1. Теория
Сечение
Разрез
—изображение
мысленное
рассечени
фигуры,
В зависимости
от
еполучающейся
предмета
одной
или
при
числа
секущих
мысленном
несколькими
плоскост
плоскостей
разрезы
рассечении
ями.
На
предмета
разделяются на:разрезе
одной простыетакже
показываются
и
– или
при
несколькими
те
детали и их
части,
одной
секущей
плоскостями.
которые
В
плоскости (разрезы Всечении
расположены
за секущ
В, Г-Г ); показывается
только
ей
плоскостью.
то, – при
что
сложные
находится
нескольких в секущей
секущих
плоскости.
плоскостях (разрезы АА, Б-Б).
Примечание
Главное меню

4.

2. Разрез по
зданию
Примечание
Главное меню

5.

3. Несущие
элементы
Основная геометрия
несущих элементов в
разрезе
Примечание
Главное меню

6.

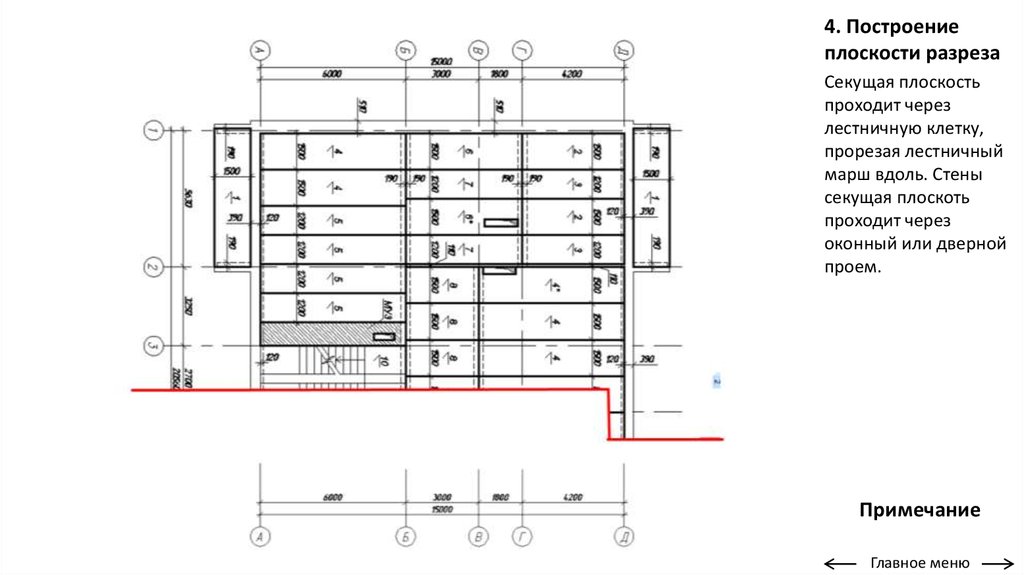
4. Построение
плоскости разреза
Секущая плоскость
проходит через
лестничную клетку,
прорезая лестничный
марш вдоль. Стены
секущая плоскоть
проходит через
оконный или дверной
проем.
Примечание
Главное меню

7.

5. Построение
разреза
Примечание
Главное меню

8.

6. Разрез по
несущим
элементам
(Каркасная
система)
Примечание
Главное меню

9.

7. Разрез по
несущим
элементам
(Стеновая система)
Примечание
Главное меню
English     Русский Rules