3.96M
Category: draftingdrafting

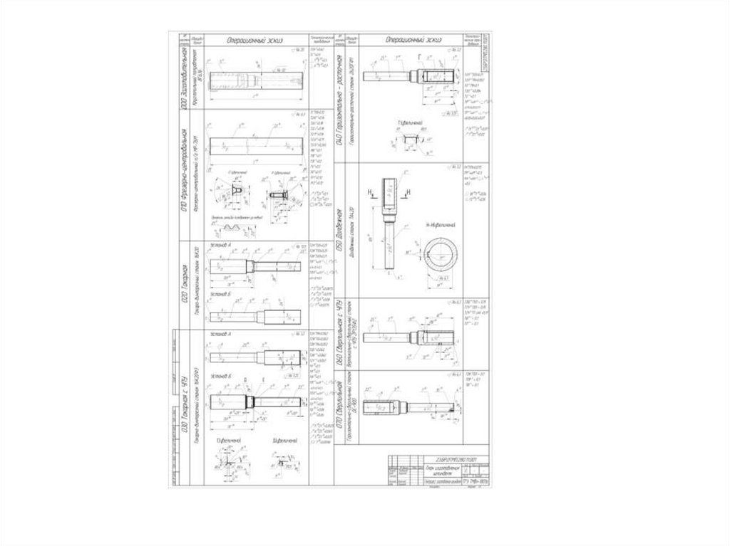
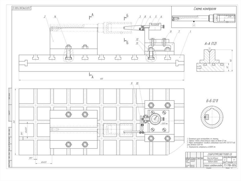
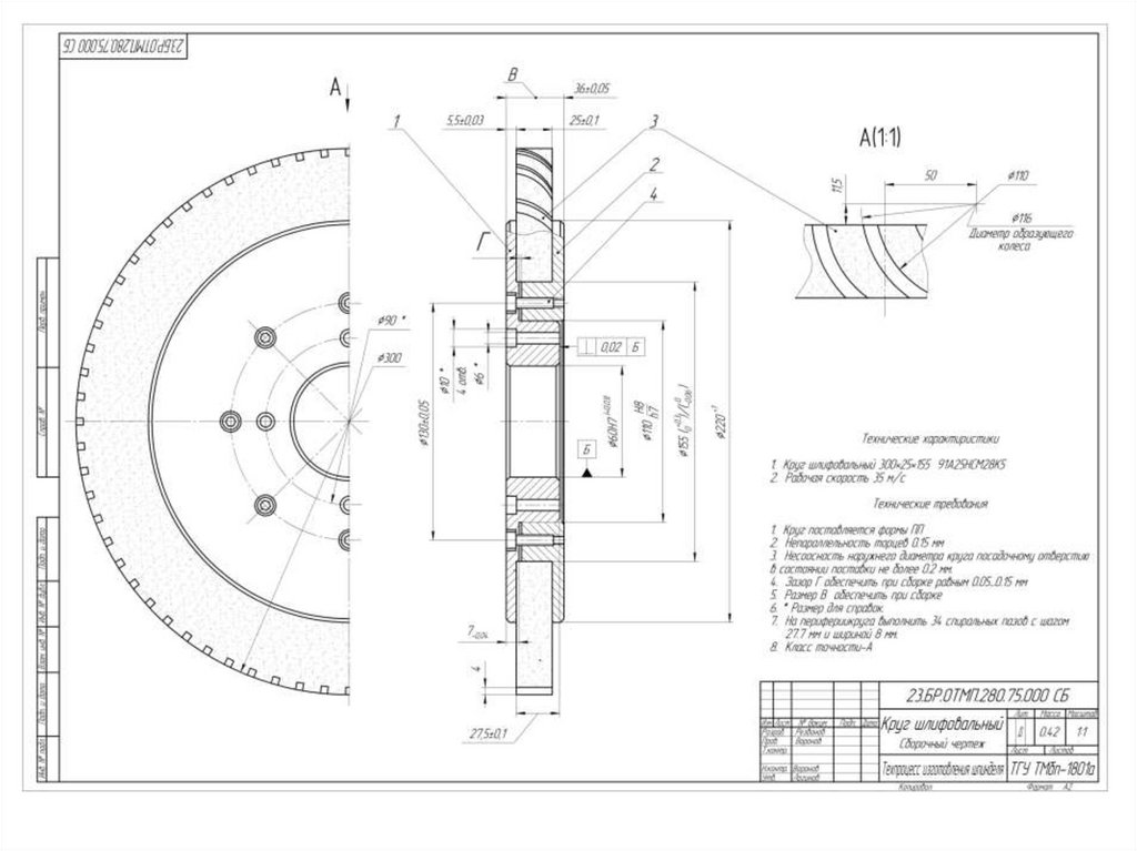
Технологический процесс изготовления шпинделя

1.

Тема: Технологический
процесс изготовления
шпинделя
Студент
Р.Р. Резванов
Руководитель Д.Ю. Воронов
Группа
ТМбп-1801а

2.

Цель работы: разработка технологического
процесса изготовления корпуса
приспособления с минимальной
себестоимостью
Материал детали - Сталь 19ХГН
Годовая программа выпуска детали – 5000 шт/год
Тип производства - среднесерийный
English     Русский Rules