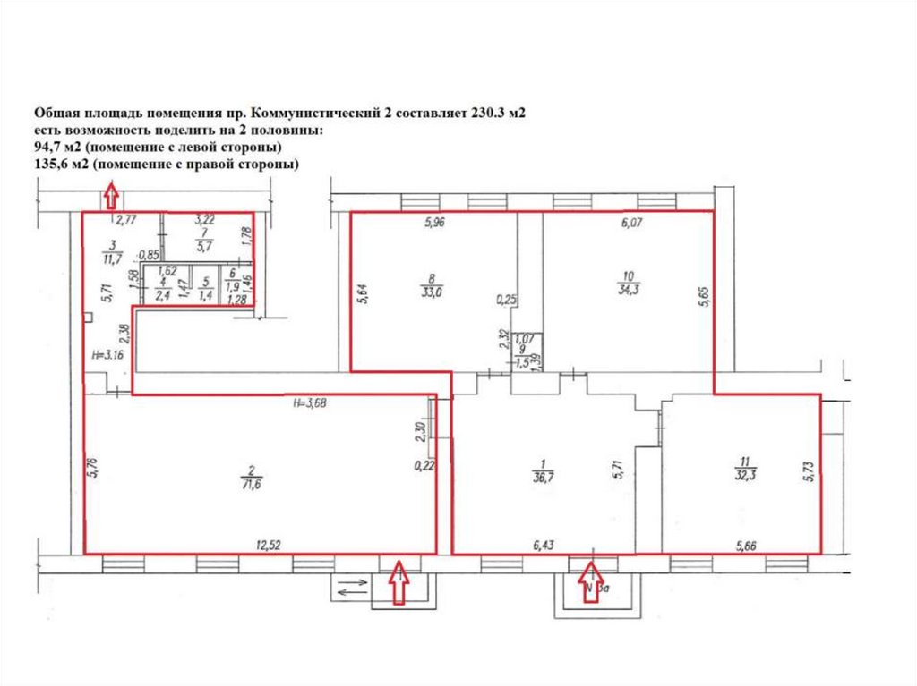
г. Междуреченск пр.Коммунистический,2
2.56M
Category: ConstructionConstruction

ООО Медис Групп

1. г. Междуреченск пр.Коммунистический,2

Площадь помещения 3а 230,3 кв.м
ООО МЕДИС ГРУПП
ИНН 5024132164 КПП 502401001
КПП ОП «Аврора» 421445001
143420, Московская область, г.Красногорск, д.Воронки, дор.Балтия 23км,к.1
652870, Кемеровская обл., г. Междуреченск, ул. Гули Королевой,4а
8 (384-75) 2-05-22
www.medisgroup.ru
English     Русский Rules