Дизайн-проект квартиры в воздушной галерее VERSIS
О
Заключение
1.77M
Category: artart

Дизайн-проект квартиры в воздушной галерее VERSIS

1. Дизайн-проект квартиры в воздушной галерее VERSIS

Код:330596
Дизайн-проект квартиры
в воздушной галерее
VERSIS

2.

СОДЕРЖАНИЕ
1. ВВОДНАЯ ЧАСТЬ
2. ПРОЕКТНЫЙ МАТЕРИАЛ
3. ЗАКЛЮЧЕНИЕ

3.

О ПРОЕКТЕ ...
Это уникальный проект квартиры в воздушной галерее ,
которая составляет 76,4 кв.м.. Данный проект имеет не
простую задачу . Цель проекта, создать функциональный
интерьер,
эстетическое
составляющее
интерьера
и
оригинальность работы. Автор концепции - юный и
талантливый архитектор. Квартира расположена в г. Москва,
Нахимовский проспект 73.
Архитектор стремился создать ощущение легкости
квартиры в интерьере , в заполнение свободного
пространства светом. Квартира выполнена в авангардном
стиле , изменяющий традиционное представление о
пространстве и архитектурной геометрии. Облицовка стен
предполагается из стеклофибробетона , а мебель из дерева
либо акрилового камня . Облицовка стен и полов будет
выполнена из шпоновых панелей (по типу дерева ) .
Оригинальная архитектура и уникальные отделочные
материалы превращают квартиру в произведение искусства.

4. О

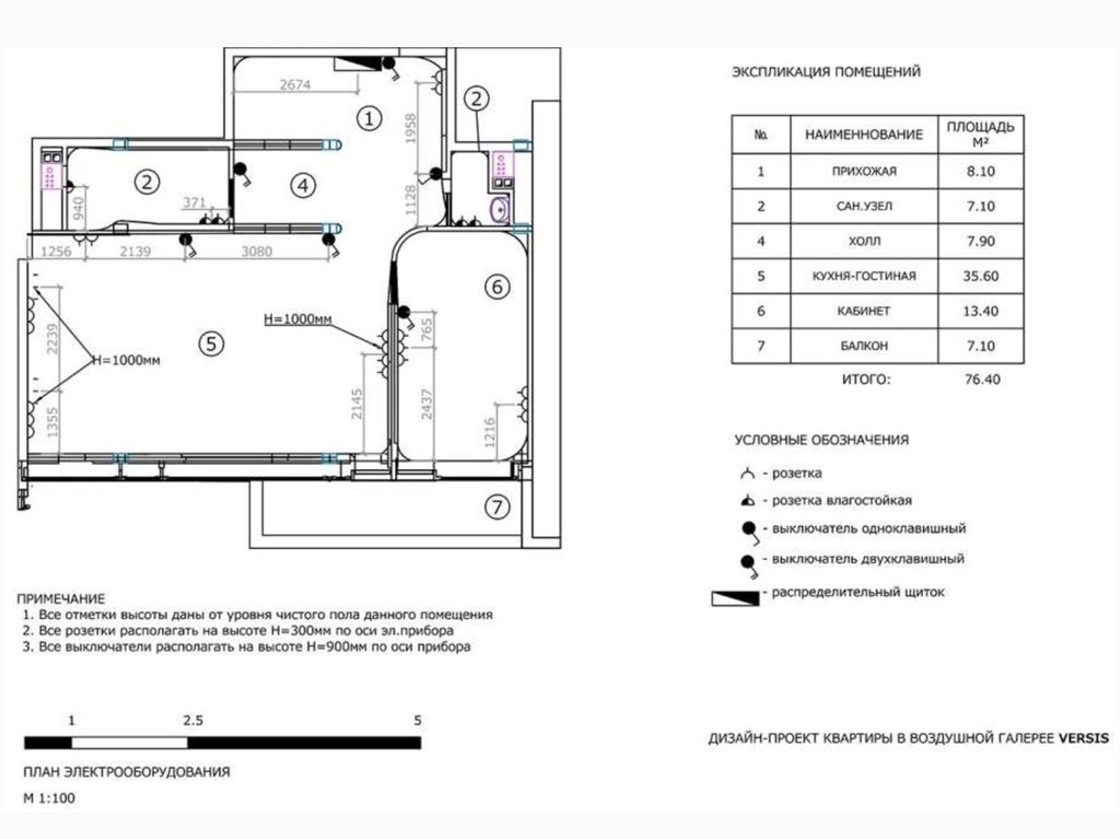
Обмерочный план
М 1:100

5.

6.

7.

8.

9.

10.

11.

12.

13.

14. Заключение

Проектирование данной квартиры представляло собой
сложную задачу , в плане обыграности той среды ,
которую мне предоставили архитекторы и инженеры , и
с которой , как мне кажется , я справился .
Я думаю , что такого рода проект понравиться не
только взрослому поколению , а и молодому и
развивающему поколению тоже , так как он
соответствует
всем
современным
нормам
строительства , дизайн очень динамичен , а само
пространство имеет много света , что придает квартире
легкость и уют .
Я считаю , что это действительно невероятный
результат для меня , как для начинающего архитектора
!

15.

Спасибо за просмотр !
English     Русский Rules