4.86M

Цех трансмиссий ПНК

1.

ООО «Универсальная индустриальная недвижимость»
Свидетельство: СРО-П-220-24082021
Выписка из СРО № 6685183762-20250415-1510 от 15.04.2025 г.
ШИФР ПРОЕКТА: 502/1-2/25
Универсальное индустриальное здание
ООО «Хавейл Мотор Мануфэкчуринг Рус»
Адрес: Тульская область, Узловский район, тер. Индустриальный парк, ул.
Индустриальная, здание 11к1, земельный участок с кадастровым номером
71:20:010101:339
РАБОЧАЯ ДОКУМЕНТАЦИЯ
Пожарная сигнализация. Склад.
502/1-2/25-ПС1
2025

2.

ООО «Универсальная индустриальная недвижимость»
Свидетельство: СРО-П-220-24082021
Выписка из СРО № 6685183762-20250415-1510 от 15.04.2025 г.
ШИФР ПРОЕКТА: 502/1-2/25
Универсальное индустриальное здание
ООО «Хавейл Мотор Мануфэкчуринг Рус»
Адрес: Тульская область, Узловский район, тер. Индустриальный парк, ул.
Индустриальная, здание 11к1, земельный участок с кадастровым номером
71:20:010101:339
РАБОЧАЯ ДОКУМЕНТАЦИЯ
Пожарная сигнализация. Склад.
502/1-2/25-ПС1
Управляющий
ООО «Универсальная
индустриальная недвижимость»
Директор ООО «Проект-Девелопмент
Павлов В.И.
Коряков И.Л.
Главный инженер проекта
2025

3.

Согласовано:
Разрешение
Обозначение
И943/25
Наименование
объекта
Изм.
Лист
-
-
Изм.внес
Составил
ГИП
Утв.
строительства
502/1-2/25-ПС1
Универсальное индустриальное здание
ООО «Хавейл Мотор Мануфэкчуринг Рус»
Адрес: Тульская область, Узловский район, тер. Индустриальный парк, ул.
Индустриальная, здание 11к1, земельный участок с кадастровым номером
71:20:010101:339
Содержание изменения
Пакет 3. Выдача рабочей документации. Склад.
Мазаев
Мазаев
Коряков
08.25
08.25
08.25
Код
Примечание
1
ООО « Универсальная индустриальная
недвижимость »
Лист Листов
1

4.

ООО «ЭБРО-СБ» 117587, РФ, Москва, Днeпропeтровская ул., д. 2, оф. 47
Тeл.: +7 (499) 110 66 04 E-mail: ebrо@ebrо-sb.ru
Номер в государственном реестре саморегулируемых организаций СРО-П-182-02042013
Заказчик:
Складской комплекс ООО «Хавейл Мотор Мануфэкчуринг Рус» по адресу:
Тульская область, Узловский район, тер. Индустриальный парк,
ул. Индустриальная, здание 11к1.
Рабочая документация
Система пожарной сигнализации
502/1-2/25-ПС1
Изм.
№док.
Подп.
Дата
2025 г.

5.

ООО «ЭБРО-СБ» 117587, РФ, Москва, Днeпропeтровская ул., д. 2, оф. 47
Тeл.: +7 (499) 110 66 04 E-mail: ebrо@ebrо-sb.ru
Номер в государственном реестре саморегулируемых организаций СРО-П-182-02042013
Заказчик:
Складской комплекс ООО «Хавейл Мотор Мануфэкчуринг Рус» по адресу:
Тульская область, Узловский район, тер. Индустриальный парк, ул.
Индустриальная, здание 11к1
Рабочая документация
Система пожарной сигнализации
Инв. № подл.
Подпись и дата
Взам.инв. №
Согласовано
502/1-2/25-ПС1
Главный инженер проекта
Изм.
№док.
Подп.
Д. С. Видус
Дата
2025 г.

6.

Содержание
Инв. № подл.
Пордл. И дата
Взам. Инв. №
Согласовано
1. Общая часть ...................................................................................................................................... 2
2. Основные решения, принятые в проекте .......................................................................................... 3
2.1 Пожарная сигнализация ......................................................................................................... 3
2.2 ЗКПС ........................................................................................................................................ 5
3 Электроснабжение установки .................................................................................................. 5
4. Кабельные линии связи ..................................................................................................................... 6
5. Заземление ........................................................................................................................................ 7
6. Требования к монтажу и эксплуатации установки ....................................................................... 8
7. Требования к пуско-наладке оборудования .................................................................................... 9
8. Противопожарная безопасность..................................................................................................... 11
502/1-2/25-ПС1.ПЗ
Изм. Кол. уч. Лист
N док. Подпись
Дата
Разработал
Крюкова
07.25
Стадия
Лист
Листов
Проверил
Видус
07.25
Р
1
11
ГИП
Видус
07.25
Н. контр.
Видус
07.25
Пояснительная записка

7.

Инв. № подл.
Пордл. И дата
Взам. Инв. №
1. Общая часть
Рабочая документация системы автоматической пожарной сигнализации складского
комплекса объекта ООО «Хавейл Мотор Мануфэкчуринг Рус» по адресу: Тульская область,
Узловский район, тер. Индустриальный парк, ул. Индустриальная, здание 11к1,, разработана на
основании технического задания и исходных данных, полученных от Заказчика.
1.1 Проектом предлагается оснащение следующими системами:
- cистема аспирационной автоматической пожарной сигнализации;
1.2 Проект выполнен в соответствии с требованиями:
- Федеральный закон Российской Федерации от 22 июня 2008 г. № 123-ФЗ «Технический
регламент о требованиях пожарной безопасности»;
- Федеральный закон Российской Федерации от 30 декабря 2009 г. № 384-ФЗ
«Технический регламент о безопасности зданий и сооружений»;
- Постановление Правительства Российской Федерации от 16 февраля 2008 г. N 87 «О
составе разделов проектной документации и требованиях к их содержанию»;
- СП 1.13130.2020 «Эвакуационные пути и выходы»;
- СП 3.13130.2009 «Система оповещения и управления эвакуацией людей при пожаре»;
- СП 484.1311500.2020 "Системы противопожарной защиты. Системы пожарной
сигнализации и автоматизация систем противопожарной защиты. Нормы и правила
проектирования";
- СП 486.1311500.2020 "Системы противопожарной защиты. Перечень зданий, сооружений,
помещений и оборудования, подлежащих защите автоматическими установками пожаротушения
и системами пожарной сигнализации. Требования пожарной безопасности";
- СП 6.13130.2021 "Системы противопожарной защиты. Электроустановки низковольтные.
Требования пожарной безопасности";
- СП 51.13330.2011 «Защита от шума»;
- ГОСТ 53325-2012 «Техника пожарная. Технические средства пожарной автоматики.
Общие технические требования и методы испытаний»;
- ГОСТ 31565-2012 «Кабельные изделия. Требования пожарной безопасности»;
- ГОСТ Р 53316-2021 «Электропроводки. Сохранение работоспособности в условиях
стандартного температурного режима пожара. Методы испытаний»;
- ГОСТ Р 21.101-2020 «СПДС. Основные требования к проектной и рабочей
документации»;
- ГОСТ Р 59638 «Системы пожарной сигнализации. Руководство по проектированию,
монтажу, техническому обслуживанию и ремонту. Методы испытаний на работоспособность»;
- ГОСТ Р 59639 «Системы оповещения и управления эвакуацией людей при пожаре.
Руководство по проектированию, монтажу, техническому обслуживанию и ремонту. Методы
испытаний на работоспособность»;
- ПУЭ изд.7 «Правила устройства электроустановок»;
- Постановление Правительства РФ от 16.09.2020 № 1479 «Об утверждении Правил
противопожарного режима в Российской Федерации»;
Данная документация допускается к производству работ после ее проверки и
согласования с Заказчиком.
502/1-2/25-ПС1.ПЗ
Изм. Кол. уч. Лист
N док. Подпись
Дата
Лист
2

8.

2. Основные решения, принятые в проекте
Инв. № подл.
Пордл. И дата
Взам. Инв. №
2.1 Пожарная сигнализация
В соответствии с техническим заданием на проектирование и требованиями
нормативных документов, перечисленных в ведомости ссылочных материалов, в настоящей
рабочей документации, приведены технические решения на оснащение объекта пожарной
сигнализацией.
Автоматическая пожарная сигнализация здания предназначена для решения
следующих задач:
обнаружения возгораний в защищаемых помещениях на стадии его
возникновения и развития;
оповещения людей о возникновении пожара в помещениях с помощью речевой и
световой сигнализации;
контроля состояния цепей пожарной сигнализации, оповещения,
технологических шлейфов, программирование системы оповещения людей о пожаре;
автоматический переход на питание от источника резервного питания при
отсутствии напряжения сети 220В, а при наличии напряжения сети - обеспечение его
заряда. Переход осуществляется с включением соответствующей индикации и без выдачи
ложных извещений при восстановлении питания.
В зданиях и сооружениях, следует защищать АУП и (или) СПС все помещения
независимо от площади, кроме помещений:
с мокрыми процессами, душевых, плавательных бассейнов, санузлов, мойки;
венткамер (за исключением вытяжных, обслуживающих производственные
помещения категории А или Б), насосных водоснабжения, бойлерных, тепловых пунктов;
категории В4 (за исключением помещений категории В4 в зданиях классов
функциональной пожарной опасности Ф1.1, Ф1.2, Ф2.1, Ф4.1 и Ф4.2) и Д по пожарной опасности;
лестничных клеток;
тамбуров и тамбур-шлюзов;
чердаков (за исключением чердаков в зданиях классов функционально пожарной
опасности Ф1.1, Ф1.2, Ф2.1, Ф4.1 и Ф4.2).
Согласно пункта 6.4 СП484.1311500.2020 алгоритм принятия решения о пожаре – B (п.
6.4.3 - при срабатывании одного автоматического пожарного извещателя после перезапроса
не более, чем через 60 с или после срабатывания другого извещателя в той же зоне в
течении 60 с от первой сработки первого извещателя).
Защита от ложных срабатываний в соответствии с п. 6.5.1 СП 484 обеспечивается:
- выбором типа ИП;
- выбором алгоритма В для автоматических извещателей.
Исходя из характеристик объекта, в качестве автоматической системы пожарной
сигнализации используется интегрированная система охраны "Орион" производства ЗАО НВП
"Болид" совместно с аспирационными извещателями производства ЗАО«ПО«Спецавтоматика»
и адресными извещателями ЗАО НВП "Болид".
Вывод сигналов систем пожарной сигнализации всего объекта выполняется на пост,
расположенного в помещении с постоянным пребыванием дежурного персонала на 1 этаже
(пожарный пост в помещении АБК).
В состав системы входят следующие приборы и блоки:
502/1-2/25-ПС1.ПЗ
Изм. Кол. уч. Лист
N док. Подпись
Дата
Лист
3

9.

прибор приемно-контрольный и управления охранно-пожарный «Сириус»;
блок индикации и управления С2000-БКИ 2RS485;
контроллеры двухпроводной линии связи С2000-КДЛ;
шкаф с резервированным источником питания «ШПС-12 исп.12»;
Пожарные
извещатели,
предназначенные
для
автоматического
включения
противопожарной автоматики размещаются в соответствии с СП484.1311500.2020.
Система противопожарной защиты здания должна быть запрограммирована следующим
образом:
1. При задымлении одного пожарного извещателя в помещениях формируется сигнал
«Пожар 1», сигнал на включение автоматики «ПОЖАР 2» не формируется.
2. Сигнал на включение автоматики «ПОЖАР 2» формируется в следующих случаях:
Автоматически:
- при повторной сработке пожарного извещателя, либо сработке второго извещателя той
же ЗКПС;
При поступлении сигнала «Пожар 2», ПКП формирует управляющие сигналы в систему
управления противопожарной автоматикой с помощью реле прибора по заранее
запрограммированной логике, а именно:
- включение систем оповещения и управления эвакуацией при пожаре;
Согласно п. 5.20 СП484.1311500.2020 в системе предусмотрен запас по емкости не менее 20%.
Инв. № подл.
Пордл. И дата
Взам. Инв. №
-
502/1-2/25-ПС1.ПЗ
Изм. Кол. уч. Лист
N док. Подпись
Дата
Лист
4

10.

2.2 ЗКПС
Согласно п.5.11 СП 484.1311500.2020 объект разделён на зоны контроля пожарной
сигнализации (ЗКПС).
Согласно п.6.3.3 СП 484.1311500.2020 в отдельные ЗКПС должны быть выделены:
квартиры, гостиничные номера и иные помещения, которые находятся во временном
или постоянном пользовании физическими или юридическими лицами;
лестничные клетки, кабельные и лифтовые шахты, шахты мусоропроводов, а также
другие помещения или пространства, которые соединяют два и более этажей;
эвакуационные коридоры (коридоры безопасности), в которые предусмотрен выход из
различных пожарных отсеков;
пространства за фальшпотолками;
пространства за фальшполами.
Состав ЗКПС см. лист 3 данного проекта.
3 Электроснабжение установки
Инв. № подл.
Пордл. И дата
Взам. Инв. №
3.1 Согласно ПУЭ установки пожарной сигнализации и оповещения в части обеспечения
надежности электроснабжения отнесены к электроприемникам 1 категории, поэтому
электропитание осуществляется от сети через резервированные источники питания. Переход на
резервированные источники питания происходит автоматически при пропадании основного
питания без выдачи сигнала тревоги:
- основное питание – сеть 220 В, 50 Гц;
- резервный источник – АКБ 12В.
В соответствии с ГОСТ Р53325-2012 для питания приборов и устройств пожарной
сигнализации и оповещения используются резервированные источники питания " РИП 24 исп.06 "
с адресной меткой, обеспечивающие контроль работоспособности.
В случае полного отключения напряжения 220В аккумуляторные батареи позволяют
работать оборудованию в течение 24 часов в дежурном режиме и 1 часа в режиме тревоги.
Электропитание источников питания осуществляется от существующей панели
противопожарных устройств (далее ППУ), расположенной в пом. б/н (электрощитовая).
Расчет источников приведен в 502/1-2/25-ПС1РР.
502/1-2/25-ПС1.ПЗ
Изм. Кол. уч. Лист
N док. Подпись
Дата
Лист
5

11.

4. Кабельные линии связи
Инв. № подл.
Пордл. И дата
Взам. Инв. №
4.1 На основании ст. 82 Федерального закона Российской Федерации от 22 июня 2008 г.
№ 123-ФЗ «Технический регламент о требованиях пожарной безопасности» проектом
предусмотрена огнестойкая кабельная линия.
4.2 ДПЛС выполняются кабелем КПСнг(А)-FRHF 1х2х0.75.
4.3 Линии подключения световых и речевых оповещателей кабелем КПСнг(А)-FRHF
1х2х1.5.
4.4 Линии питания 24 Ввыполняются кабелем КПСЭнг(А)-FRHF 1х2х0.75.
4.5 . Линии питания ДУ ввыполняются кабелем ППГнг(А)-FRHF 4x1,5.
4.6 Линии питания вентилятора ПД1 ввыполняются кабелем ППГнг(А)-FRHF 4x2,5.
4.7 Линии интерфейса RS-485 кабелем КОПСЭнг(А)-FRHF 1х2х0.8
4.8 Кабели прокладываются:
- в трубе жесткой ПВХ и оцинкованной трубе;
- в лотке.
При прокладке кабеля в трубе жесткой ПВХ крепление к огнестойкой поверхности
осуществляют при помощи держателя с крышкой д.32 мм, заклепки и винта. Крепление
осуществлять на каждые 30 см трубы, но не менее двух на одну часть, не менее 10 см от
стены и не более 50 мм от каждого края трубы.
502/1-2/25-ПС1.ПЗ
Изм. Кол. уч. Лист
N док. Подпись
Дата
Лист
6

12.

5. Заземление
Инв. № подл.
Пордл. И дата
Взам. Инв. №
5.1 Для обеспечения электробезопасности обслуживающего персонала в соответствии с
требованиями ПУЭ корпуса приборов пожарной сигнализации должны быть надежно заземлены.
Монтаж заземляющих устройств выполнить в соответствии с требованиями ПУЭ, СП
76.13330.2016 и других действующих нормативных документов.
Присоединение заземляющих и нулевых защитных проводников к частям
электрооборудования должно быть выполнено сваркой или болтовым соединением.
В качестве естественных заземлителей могут быть использованы проложенные в земле
металлические конструкции здания, находящие в соприкосновении с землей. В цепи заземляющих
и нулевых защитных проводников не должно быть разъединяющих приспособлений и
предохранителей.
Заземляющие проводники прокладываются непосредственно по стенам. Прокладка
заземляющих проводников в местах прохода через стены и перекрытия должна выполняться, как
правило, с их непосредственной заделкой.
В этих местах проводники не должны иметь соединений и ответвлений. Присоединение
заземляющих и нулевых защитных проводников к частям электрооборудования должно быть
выполнено сваркой или болтовым соединением.
502/1-2/25-ПС1.ПЗ
Изм. Кол. уч. Лист
N док. Подпись
Дата
Лист
7

13.

6. Требования к монтажу и эксплуатации установки
Инв. № подл.
Пордл. И дата
Взам. Инв. №
6.1 При монтаже и эксплуатации установок руководствоваться требованиями,
заложенными в ГОСТ 12.1.019, ГОСТ 12.3.046, «Правилами противопожарного режима в РФ»,
утвержденные Постановлением Правительства РФ от 16.09.2020 № 1479 «Об утверждении Правил
противопожарного режима в Российской Федерации».
К монтажу и эксплуатации допускаются организации, имеющие соответствующие
разрешения и лицензии.
Монтажные и ремонтные работы в электрических сетях и устройствах (или вблизи них),
а также работы по присоединению и отсоединению проводов должны производиться при снятом
напряжении.
Электромонтеры, обслуживающие электроустановки, должны быть снабжены защитными
средствами, прошедшими соответствующие лабораторные испытания. Все электромонтажные
работы, обслуживание электроустановок, периодичность и методы испытания защитных средств
должны выполняться с соблюдением Правил технической эксплуатации электроустановок
потребителей Госэнергонадзора.
502/1-2/25-ПС1.ПЗ
Изм. Кол. уч. Лист
N док. Подпись
Дата
Лист
8

14.

Инв. № подл.
Пордл. И дата
Взам. Инв. №
7. Требования к пуско-наладке оборудования
Пуско-наладка (Конфигурирование прибора (системы)) -это настройка параметров
работы каждого элемента прибора (системы) и взаимодействия между элементами для
выполнения требуемых функций на объекте эксплуатации.
Для настройки прибора на конкретный вариант применения и оптимального
использования его возможностей любой из параметров прибора, шлейфов или реле может быть
изменён. Для этого используется программа "Uprog.exe" или программа Администратор Базы
Данных АРМ "Орион".
Если прибор будет эксплуатироваться вместе с другими приборами в составе ИСБ
"Орион", то ему необходимо присвоить уникальный (отличный от других) сетевой адрес в
диапазоне от 1 до 127. Для этого необходимо подключить данный прибор к сетевому
контроллеру (другие приборы в это время должны быть отключены от интерфейса) и изменить
сетевой адрес, например, с помощью программы "UPROG.EXE". Для настройки прибора на
конкретный вариант применения и оптимального использования возможностей прибора,
возможно, потребуется изменить некоторые конфигурационные параметры.
Прибор работает в режиме пожарной сигнализации, если хотя бы один из шлейфов
имеет тип 1, 2 или 3. При этом прибор обеспечивает работоспособность ШС в следующих
режимах:
- режим "На охране";
- режим "Снят с охраны";
- режим "Задержка взятия";
- режим "Невзятие";
- режим "Сработка датчика";
- режим " ПОЖАР 1 ";
- режим "Пожар 2";
- режим "Неисправность".
Шлейф сигнализации находится в режиме "На охране", если перед этим он был взят на
охрану и его сопротивление лежит в диапазоне нормы. Кратковременные нарушения взятого
на охрану пожарного ШС на время менее 250 мс не приводят к переходу шлейфа в тревожный
режим.
Если ШС имеет ненулевое значение параметра "Задержка взятия на охрану" при
взятии, он переходит в режим "Задержка взятия". Нарушение данного ШС в течение времени
задержки не приводит к переходу в тревожный режим.
По истечении времени задержки взятия, если сопротивление ШС находится в диапазоне
нормы, шлейф перейдёт в режим "На охране". Если время задержки истекло, а сопротивление
ШС не вошло в диапазон нормы, шлейф перейдёт в режим "Невзятие". Если для данного ШС
установлен параметр "Автовзятие из Невзятия", то шлейф автоматически возьмётся на
охрану и перейдёт из режима "Невзятие" в режим "На охране", если его сопротивление будет
находиться в диапазоне нормы более 3 с.
При скачкообразном нарушении взятого на охрану пожарного ШС на время более 300 мс
прибор фиксирует нарушение ШС и переводит его в один из следующих режимов:
- "Сработка датчика", если сработал один "дымовой" (нормально-разомкнутый)
извещатель в ШС типа 1 или 2;
- "ПОЖАР 1", если сработал один "тепловой" (нормально-замкнутый) извещатель в ШС
типа 2 или 3;
502/1-2/25-ПС1.ПЗ
Изм. Кол. уч. Лист
N док. Подпись
Дата
Лист
9

15.

Взам. Инв. №
Пордл. И дата
Инв. № подл.
- "Пожар", если одновременно сработали два "дымовых" или "тепловых" извещателя в
ШС типа 1 или 3 соответственно;
- "Неисправность", если произошёл обрыв или короткое замыкание ШС.
ШС типов 1 и 2 переходит из режима "На охране" в режим "Сработка датчика" в
случае, если было зафиксировано срабатывание одного "дымового" извещателя. В этом случае
прибор осуществляет перезапрос состояния ШС: сбрасывает сработавший извещатель и
ожидает его повторного срабатывания. Если в течение 1 минуты в шлейфе повторно сработал
извещатель, прибор переводит ШС в режим " ПОЖАР 1", в противном случае (повторного
срабатывания извещателя не произошло) прибор возвращает шлейф в режим "На охране". Если
для данного ШС установлен параметр конфигурации "Блокировка перезапроса пожарного ШС",
он сразу перейдёт в режим " ПОЖАР 1 ". Пожарные ШС переходят в режим " ПОЖАР 1 " при
срабатывании одного извещателя.
Длительность режима " ПОЖАР 1" для каждого ШС ограничена временем "Задержки
перехода в Тревогу/Пожар". Эта задержка позволяет дать время для оценки ситуации на
объекте и, при необходимости, сбросить тревогу перед тем, как будет сформирован сигнал на
включение средств пожарной автоматики.
По окончании режима "Пожар1" шлейф переходит в режим "Пожар2". Для ШС типов 1 и 3
переход из режима " Пожар 1" в режим "Пожар 2" возможен до окончания времени задержки в
случае, если прибор зафиксирует, что в шлейфе сработал ещё один извещатель (имеется два
или более сработавших извещателя).
Если "Задержка перехода в Тревогу/Пожар 2" равна 255, для ШС типов 1 и 3 шлейф
перейдёт в "Пожар" только при срабатывании двух или более извещателей; ШС типа 2 будет
оставаться в режиме " ПОЖАР 1" до сброса тревоги. В режиме " ПОЖАР 1" прерывисто
включается индикатор "Пожар": 0,25 с включен / 0,75 с выключен. ШС переходит в режим
"Пожар2" при срабатывании двух извещателей в одном ШС типа 1 или 3, либо по окончании
режима " ПОЖАР 1". При переходе в режим "Пожар2", в том числе активируется управление
реле по программам 1…8, 33, 35. Если для данного ШС установлен параметр "Автовзятие из
тревоги", то шлейф автоматически возьмётся на охрану и перейдёт из режима "Пожар" в
режим "Задержка взятия", если его сопротивление будет находиться в диапазоне нормы
дольше времени, равному численному значению параметра "Задержка перехода в
Тревогу/Пожар" умноженному на 15 (в секундах). В режиме "Пожар" прерывисто включается
индикатор "Пожар": 0,25 с включен / 0,25 с выключен.
ШС переходит из режима "На охране" в режим "Неисправность" при обрыве или
коротком замыкании проводников шлейфа. Если целостность шлейфа была восстановлена и его
сопротивление находилось в диапазоне нормы в течение 3 с, шлейф автоматически возьмётся
на охрану и перейдёт в режим "На охране".
В режиме "Неисправность" прерывисто включается индикатор "Неисправность": 0,125 с
включен / 0,875 с выключен. В режимах "Неисправность", " ПОЖАР 1", "Пожар2" встроенный
звуковой сигнализатор может быть отключен нажатием на кнопку . Встроенный ЗС включится
вновь, если какой-либо иной ШС перейдёт в режим "Неисправность", " ПОЖАР 1" или "Пожар2".
В режимах " ПОЖАР 1", "Пожар 2" внешний речевой оповещатель, подключенный к
выходу, управляемому по программе 12 ("ОПВ"), может быть отключен нажатием на кнопку,
после ввода любого действующего PIN-кода пользователя.
Внешний ЗО включится вновь, если какой-либо иной ШС перейдёт в режим " ПОЖАР 1"
или "Пожар2".
502/1-2/25-ПС1.ПЗ
Изм. Кол. уч. Лист
N док. Подпись
Дата
Лист
10

16.

Инв. № подл.
Пордл. И дата
Взам. Инв. №
8. Противопожарная безопасность
8.1 При выполнении монтажных и пусконаладочных работ в соответствии с данным
проектом необходимо строго соблюдать все правила пожарной безопасности предусмотренные
Постановлением Правительства РФ от 16.09.2020 № 1479 «Об утверждении Правил
противопожарного режима в Российской Федерации».
При этом особое внимание обратить на следующие пункты:
- запрещается загромождать пути эвакуации оборудованием, материалами и другими
предметами;
- на путях эвакуации должно быть исправным рабочее и аварийное освещение;
- при возникновении возгорания оборудования использовать только углекислотные
огнетушители;
- после окончания смены возгораемые отходы и материалы необходимо убирать с
рабочего места.
502/1-2/25-ПС1.ПЗ
Изм. Кол. уч. Лист
N док. Подпись
Дата
Лист
11

17.

Ведомость рабочих чертежей
Лист
Наименование
Примечание
1. Исходные данные для проектирования
-
закрытие огнезадерживающих клапанов (ОЗК);
Настоящим разделом предусматривается оборудование объекта Складской комплекс ООО «Хавейл Мотор
-
отключение систем вентиляции;
Мануфэкчуринг Рус» по адресу: Тульская область, Узловский район, тер. Индустриальный парк, ул.
-
закрытие противопожарных ворот;
Индустриальная, здание 11к1, системой пожарной сигнализацией зоны склада.
-
открытие подпорных ворот системы дымоудаления;
-
открытие люков дымоудаления;
формирования и передачи сигналов о состоянии и работе установок в помещение с
1
Общие данные
2
Схема структурная
3
План ЗКПС (Сириусов)
ПУЭ издание 7 "Правила устройства электроустановок";
-
4
План расположения оборудования и проводок линии интерфейса RS-485 и АДУ
ГОСТ Р 21.101-2020 "Основные требования к проектной и рабочей документации";
круглосуточным наблюдением.
План расположения оборудования и проводок СПС
ГОСТ Р 21.703-2020 "Система проектной документации для строительства. Правила выполнения рабочей
5
6
План расположения оборудования и проводок СОУЭ световое
ГОСТ 21.210-2014 "Система проектной документации для строительства. Условные графические изображения
7
План расположения оборудования и проводок СОУЭ речевое
электрооборудования и проводок на планах";
В качестве прибора обнаружения возгорания проектом предусмотрена установка извещателя пожарного
адресно-аналогового оптико-электронного предназначеного для обнаружения загораний, сопровождающихся
появлением дыма в закрытых помещениях ДИП-34А-03 и ДИП-34А-04, включенные в линию ДПЛС и
подключенные к шкафам с резервированным источником питания ШПС-12 исп.12, которые подключены к ППКП
Сириус, расположенные в пом.2.37 зоны АБЧ (см. проект 502/1-2/25-ПС2).
8
План расположения оборудования и проводок ДУ
2. Проект СПС выполнен в соответствии с:
документации проводных средств связи";
ГОСТ Р 59638-2021 Системы пожарной сигнализации. Руководство по проектированию, монтажу, техническому
Линии речевого оповещения подключены в строку к усилителям. Запуск системы оповещения возможно
обслуживанию и ремонту. Методы испытаний на работоспособность"
9
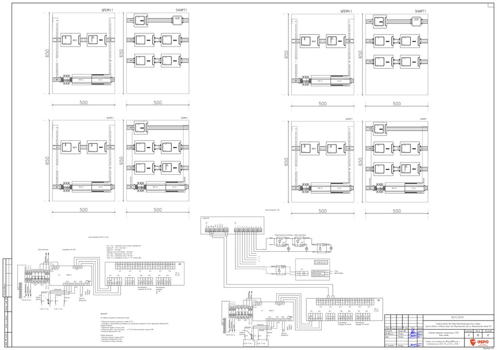
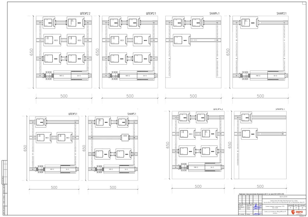
Схема расположения оборудования и подключения ШПС-12 исп.12
10
Схема расположения оборудования в шкафах
проектированию, монтажу, техническому обслуживанию и ремонту. Методы испытаний на работоспособность"
11
Схема подключения вентилятора к ШКП-10RS
Федеральный Закон №123 - ФЗ «Технический регламент о требованиях пожарной безопасности»;
12
Монтаж крепления кабеля в трубе к бетонному основанию
ГОСТ Р 59639-2021 Системы оповещения и управления эвакуацией людей при пожаре. Руководство по
При монтаже и эксплуатации установок руководствоваться требованиями, заложенными в ГОСТ 12.1.019, ГОСТ
Федеральный закон №384 - ФЗ «Технический регламент о безопасности зданий и сооружений»;
СП 3.13130.2009 «Системы противопожарной защиты. Системы оповещения и управления эвакуацией людей при
пожаре.Требования пожарной безопасности»;
Монтажные и ремонтные работы в электрических сетях и устройствах (или вблизи них), а также работы по
СП 485.1311500.2020 "Системы противопожарной защиты. Установки пожаротушения автоматические. Нормы и
присоединению и отсоединению проводов должны производиться при снятом напряжении.
правила проектирования";
Электромонтеры,
СП 486.1311500.2020 с изм.1 "Системы противопожарной защиты. Перечень зданий, сооружений, помещений и
прошедшими соответствующие лабораторные испытания. Все электромонтажные работы, обслуживание
электроустановки,
должны
быть
снабжены
защитными
средствами,
оборудования, подлежащих защите автоматическими установками пожаротушения и системами пожарной
электроустановок, периодичность и методы испытания защитных средств должны выполняться с соблюдением
2
SC
Блок сигнально-пусковой адресный С2000-СП2
сигнализации. Требования пожарной безопасности";
Правил технической эксплуатации электроустановок потребителей Госэнергонадзора.
LPA1
LPA1
Стойка с оборудованием речевого оповещения
Блок контрольно-пусковой ШКП-10RS, с указанием х-номер
Сириуса, у-номер шкафа, z- адрес шкафа
Шкаф с резервированным источником питания для монтажа
средств пожарной автоматики ШПС-12 исп.12, указанием х-номер
Сириуса, у-номер шкафа
СП
SHPx.y.z
ШПСx.y
ВЫХОД
iz
n
n
Оповещатель охранно-пожарный световой "Выход", с указанием
хBIALу.z х-номер ШПС-12 исп.12, y-номер линии С2000-КПБ; z-номер
оповещателя в линии
Оповещатель охранно-пожарный световой (табло) "Стрелка
хBIALу.z вправо" , "Стрелка влево", с указанием х-номер шкафа, y-номер
линии С2000-КПБ; z-номер оповещателя в линии
Извещатель пожарный дымовой адресно-аналоговый ДИП-34А-03,
хBTHy.z с указанием х-номер этажа, y-номер линии ДПЛС; z-адрес
извещателя
Извещатель пожарный дымовой адресно-аналоговый ДИП-34А-04,
хBTHy.z с указанием х-номер шкафа, y-номер линии ДПЛС; z-адрес
извещателя
Извещатель пожарный ручной адресный ИПР 513-3АМ ИСП.01 IP67,
хBTMy.z с указанием х-номер шкафа, y-номер линии ДПЛС; z-адрес
извещателя
Устройство дистанционного пуска адресное УДП 513-3АМ исп.02, с
хUDPy.z указанием х-номер шкафа, y-номер линии ДПЛС; z-адрес
извещателя
Расширитель адресный С2000-АР2, С2000-АР8, с указанием
хARy.z-z+1 х-номер шкафа, y-номер линии ДПЛС; z-адрес прибора;
n-количество зон
Блок контрольно-пусковой С2000-КПБ, блок сигнально -пусковой
SCх.у
С2000-СП1 с указанием х-номер шкафа, y-номер прибора
n-количество реле
СПЖх.у
Сигнализатор потока жидкости
6.13130.2021
Коробка распределительная, где n-порядковый номер
КVх.у
Концевой выключатель, где х-порядковый номер СПЖ;
у-порядковый номер выключателя
противопожарной
защиты.
Электрооборудование.
Требования
пожарной
6. Мероприятия по охране труда
Исходя из наличия на объекте сети электроснабжения напряжением 220В, для защиты обслуживающего
ГОСТ 31565-2012 "Кабельные изделия. Требования пожарной безопасности";
персонала от поражения электрическим током при повреждении изоляции, необходимо предусмотреть
СП 134.13330.2012 изм.1 «Системы электросвязи зданий и сооружений. Основные положения проектирования».
зануление металлических корпусов оборудования. Зануление оборудования выполнить металлическим
3. Система пожарной сигнализации строится на оборудовании фирмы Болид.
соединением их корпусов с нейтралью сети электроснабжения, для чего использовать нулевые жилы
Проектом предусматривается оснащение объекта системой пожарной сигнализацией.
питающих кабелей, нулевые провода и специально проложенные для этой цели проводники.
Установки предназначены для:
В
Проектируемая система пожарной сигнализации предназначена для:
предохранителей. Присоединение заземляющих и нулевых проводников к частям электрооборудования должно
-
быть выполнено сваркой или болтовым соединением, в соответствии с ПУЭ изд. 7.
обнаружения пожара на ранней стадии возгорания и обеспечения непрерывного
цепи
заземляющих
и
нулевых
проводников
не
должно
быть
разъединяющих
приспособлений
и
круглосуточного контроля обстановки в защищаемых помещениях;
-
получение, обработку и одновременную передачу сигналов, подаваемых с автоматических пожарных
извещателей, установленных в защищаемых помещениях на приемно-контрольный прибор;
-
выдачи управляющих сигналов в системы: оповещения и управления эвакуацией людей при пожаре и
приточно-вытяжной вентиляции, обеспечивая безопасное нахождение людей в здании при аварийных и
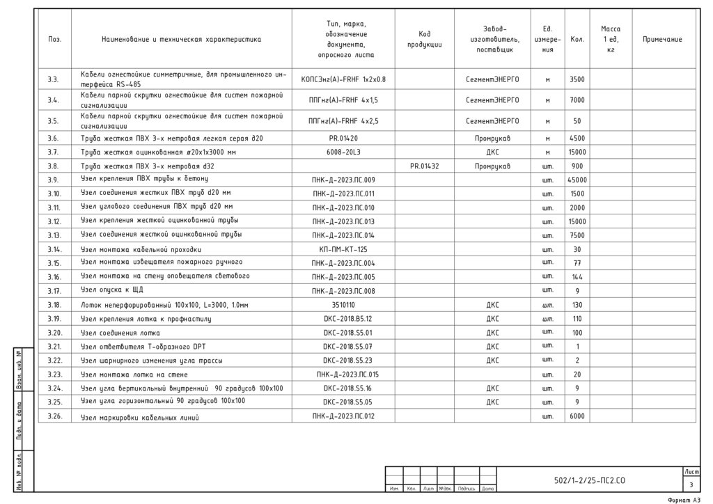
Ведомость ссылочных и прилагаемых документов
экстремальных ситуациях;
Обозначение
Условные графические обозначения кабельных линий.
№ кабеля
Марка кабеля
Назначение
Граф. обозначение
1
КПСЭнг(А)-FRHF 1х2х0.75
Линия ДПЛС
D1.1(1.2)
2
ППГнг(А)-FRHF 4x2,5
Линия питания
Xх.у.z
4
КОПСЭнг(А)-FRHF 1х2х0.8
Линия интерфейса RS-485
RSх
5
КПСЭнг(А)-FRHF 1х2х1.5
Линия оповещения речевого
6
КПСЭнг(А)-FRHF 1х2х1.5
Линия оповещения светового
Линия управления
7
Кn
«Системы
безопасности»;
Оповещатель речевой LPA-6W и LPA-20P, с указанием х-номер
BIADx.y(6Вт)
зоны, y-номер оповещателя в линии (мощность в Вт)
Согласовано:
обслуживающие
Прибор приемно-контрольный и управления пожарный Сириус
ШПС№2.1
Взам. инв. №
К монтажу и эксплуатации допускаются организации, имеющие соответствующие разрешения и лицензии.
ARК1
ШКП-10RS
Подп. и дата
12.3.046, «Правилами противопожарного режима в РФ», утвержденные Постановлением Правительства РФ от
16.09.2020 № 1479 «Об утверждении Правил противопожарного режима в Российской Федерации».
Нормы и правила проектирования;
Инв. № подл.
Взаимодействие с пожарной сигнализацией здания осуществляется по протоколу RS-485.
5.Требования к монтажу и эксплуатации установки
СП 484.1311500.2020 «Системы пожарной сигнализации и автоматизация систем противопожарной защиты.
Условные графические обозначения
включить зонально, определяется при пуско-наладочных работах.
КПСЭнг(А)-FRHF 1х2х0.75
КПСЭнг(А)-FRHF 1х2х1.5
Линия питания
Примечание
Наименование
Прилагаемые документы
502/1-2/25-ПС1.СО
Спецификация оборудования, изделий и материалов
502/1-2/25-ПС1.Э
Задание на электроснабжение
502/1-2/25-ПС1.ПЗ
Пояснительная записка
Sx.y
502/1-2/25-ПС1.РР
Расчет резервированных источников питания.
SLx.y
502/1-2/25-ПС1.Р
Расчет речевых оповещателей.
SLx.y
502/1-2/25-ПС1.КЖ
Кабельный журнал
Рх.у.z Nх.у.z
502/1-2/25-ПС1
Изм. Кол.уч Лист № док. Подп.
Крюкова
Разраб.
Проверил
Видус
Видус
ГИП
Н. контр.
Видус
Дата
Складской комплекс ООО «Хавейл Мотор Мануфэкчуринг Рус» по адресу:
Тульская область, Узловский район, тер. Индустриальный парк, ул. Индустриальная, здание 11к1
07.25
07.25
07.25
Система пожарной сигнализации (СПС),
зоны склада
Стадия
Лист
Листов
Р
1
12
Схема расположения оборудования и
подключения ШПС-12 исп.12 и SHA
07.25
Формат А2

18.

SL2.2.1 2.2BIAL1.1
2.2BIAL1.2
2.2BIAL1.3
2.2BIAL1.4
2.2BIAL1.5
ВЫХОД
ВЫХОД
SL2.2.2 2.2BIAL2.1
2.2BIAL2.2
2.2BIAL2.3
2.2BIAL2.4
2.2BIAL2.5
SL2.2.3 2.2BIAL3.1
2.2BIAL3.2
2.2BIAL3.3
2.2BIAL3.4
2.2BIAL3.5
2.2BIAL1.6
2.2BIAL1.7
Зона склада
2.2BIAL1.8
ВЫХОД
2.2BIAL3.7
2.2BIAL3.6
2.2BIAL3.9
2.2BIAL3.8
2.2BIAL3.10
NL4.13-16;
PL4.13-16
Х13-16.1;Х13-16.2;
SHK№4
№13-16
Люк дымовой
ДЫМОЗОР-300
Y4.1;Y4.2
Z4.1;Z4.2
2BTM2.5
2BTM2.1
2UDP2.13
SHA№4.1
2BTM2.6
ШК5
2BTM2.7
2BTM2.8
2BTM2.9
iz
iz
iz
2BTM2.10
ШК4
2
iz
ШПС№2.2
iz
iz
iz
iz
2BTM2.2
2BTM2.3
2BTM2.4
iz
закрытие ворот
закрытие ворот
D2.2.1
SHP2.1.15
ШКП-10RS
З
2BTM2.11
2BZ1.1
№1-4
Люк дымовой
ДЫМОЗОР-300
Z70.1
2BTM1.1
ШК1
2SC1.70-71
2
iz
D2.1.1
iz
2BTM1.2
2BTM1.3
2BTM1.4
iz
iz
iz
2BTM1.6
iz
iz
2BTM1.5
Z1.1;Z1.2
Y1.1;Y1.2
ШК2
2BTM1.8
2UDP1.9
№5-8
Люк дымовой
ДЫМОЗОР-300
Y2.1;Y2.2
Z2.1;Z2.2
NL1.1-4;
PL1.1-4
2BTM1.7
2UDP1.11
iz
SHK№1
iz
Х5-8.1;Х5-8.2;
NL2.5-8;
PL2.5-6
SHK№2
СИРИУС 1 ARK1
RS2.2
NL3.9-12;
PL3.9-12
Х1-4.1;Х1-4.2;
ШПС№2.1
СИРИУС 2 ARK2
Х9-12.1;Х9-12.2;
закрытие ворот
ПД1
5,18кВт
2UDP1.10
оборудование учтено в проекте
502/1-2/25ПС2
2SC2.86-90
ШК3
P1
№9-12
Люк дымовой
ДЫМОЗОР-300
2
Z70.1
Z70.1
Y3.1;Y3.2
SHK№3
D2.2.1
пом. 2.37 Серверная
Z3.1;Z3.2
iz
2SC2.72-73
2SC2.70-71
RS2.1
SL2.1.1 2.1BIAL1.1
2.1BIAL1.2
СИРИУС 3 ARK3
2.1BIAL1.3
2.1BIAL1.4
2.1BIAL1.5
2.1BIAL1.6
2.1BIAL1.7
2.1BIAL1.8
2.1BIAL2.8
2.1BIAL2.9
2.1BIAL2.10
2.1BIAL2.11
2.1BIAL2.12
2.1BIAL4.8
2.1BIAL4.9
2.1BIAL4.10
2.1BIAL4.11
2.1BIAL4.12
ВЫХОД
RS3.2
СИРИУС 4 ARK4
СИРИУС 5 ARK5
RS3.1
SL2.2.1 2.1BIAL2.1
2.1BIAL2.2
2.1BIAL2.3
2.1BIAL2.4
2.1BIAL2.5
2.1BIAL2.6
2.1BIAL2.7
SL2.3.1 2.1BIAL3.1
2.1BIAL3.2
2.1BIAL3.3
2.1BIAL3.4
2.1BIAL3.5
2.1BIAL3.6
2.1BIAL3.7
ВЫХОД
ВЫХОД
2.1BIAL4.3
2.1BIAL4.4
2.1BIAL4.5
2.1BIAL4.6
2.1BIAL4.7
SL2.4.1 2.1BIAL4.1
RS2.2
2.1BIAL4.2
RS2.1
SHA№2.1
S2.1 2BIAD1.1 (10Вт) 2BIAD1.2 (10Вт) 2BIAD1.3 (10Вт) 2BIAD1.4 (10Вт) 2BIAD1.5 (10Вт) 2BIAD1.6 (10Вт) 2BIAD1.7 (10Вт) 2BIAD1.8 (10Вт) 2BIAD1.9 (10Вт) 2BIAD1.10 (10Вт)
∑= 100Вт
S2.2 2BIAD2.1 (10Вт) 2BIAD2.2 (10Вт) 2BIAD2.3 (10Вт) 2BIAD2.4 (10Вт) 2BIAD2.5 (10Вт) 2BIAD2.6 (10Вт) 2BIAD2.7 (10Вт) 2BIAD2.8 (10Вт) 2BIAD2.9 (20Вт)
S2.3 2BIAD3.1 (20Вт) 2BIAD3.2 (20Вт) 2BIAD3.3 (20Вт) 2BIAD3.4 (20Вт) 2BIAD3.5 (20Вт) 2BIAD3.6 (20Вт)
∑= 100Вт
∑= 120Вт
S2.4 2BIAD4.1 (10Вт) 2BIAD4.2 (10Вт) 2BIAD4.3 (10Вт) 2BIAD4.4 (10Вт) 2BIAD4.5 (10Вт) 2BIAD4.6 (10Вт) 2BIAD4.7 (10Вт) 2BIAD4.8 (10Вт) 2BIAD4.9 (10Вт) 2BIAD4.10 (10Вт)
LPA1
S3.1
3BIAD1.1 (10Вт) 3BIAD1.2 (10Вт) 3BIAD1.3 (10Вт)
3BIAD1.4 (10Вт) 3BIAD1.5(20Вт) 3BIAD1.6 (20Вт)
3BIAD1.7 (20Вт)
∑= 100Вт
3BIAD1.8 (20Вт)
∑= 120Вт
S3.2
3BIAD2.1 (20Вт) 3BIAD2.2 (6Вт) 3BIAD2.3 (6Вт) 3BIAD2.4 (6Вт)
S3.3
3BIAD3.1 (6Вт) 3BIAD3.2 (6Вт)
RS5.2
RS5.1
SL3.1.1
3BIAD3.3 (6Вт)
3.1BIAL1.1
3.1BIAL1.2
3BIAD3.7 (6Вт) 3BIAD3.8 (6Вт) 3BIAD3.9 (6Вт) 3BIAD3.10 (6Вт)
3BIAD3.4 (6Вт) 3BIAD3.5 (6Вт) 3BIAD3.6 (6Вт)
3.1BIAL1.3
∑= 76Вт
3BIAD2.5(20Вт) 3BIAD2.6 (6Вт) 3BIAD2.7 (6Вт) 3BIAD2.8 (6Вт)
3.1BIAL1.4
3BIAD3.11 (6Вт) 3BIAD3.12 (6Вт) 3BIAD3.13 (6Вт)
∑= 78Вт
3BIAL1.5
ВЫХОД
ВЫХОД
SL3.1.2
3.1BIAL2.1
3.1BIAL2.2
3.1BIAL2.3
3.1BIAL2.4
3.1BIAL2.5
3.1BIAL2.6
3.1BIAL2.7
3.1BIAL2.8
ВЫХОД
ВЫХОД
ВЫХОД
ВЫХОД
ВЫХОД
3.1BIAL3.3
3.1BIAL3.4
3BIAL3.5
3.1BIAL3.6
ВЫХОД
ВЫХОД
ВЫХОД
3.1BIAL2.9
SL3.1.3
3.1BIAL3.1
5.1BIAL1.9
5.1BIAL1.8
5.1BIAL1.7
5.1BIAL1.6
ВЫХОД
5.1BIAL2.10
5.1BIAL2.9
5.1BIAL2.8
ВЫХОД
ВЫХОД
5.1BIAL1.5
5.1BIAL1.4
5.1BIAL1.2
ВЫХОД
ВЫХОД
5.1BIAL2.3
5.1BIAL2.2
5.1BIAL2.1
5.1BIAL3.3
5.1BIAL3.2
5.1BIAL3.1
ВЫХОД
5.1BIAL2.7
5.1BIAL3.8
5.1BIAL2.6
5.1BIAL2.5
5.1BIAL2.4
ВЫХОД
ВЫХОД
5.1BIAL3.6
5.1BIAL3.7
5.1BIAL2.4
5.1BIAL3.4
5.1BIAL3.5
SL5.1.1
5.1BIAL1.3
5.1BIAL1.1
3BIAL3.2
ВЫХОД
SL5.1.2
SL5.1.3
ШУ.В1
Р3.1.1
х5.6.1
СПЖ3.1
КV3.1.2
КV3.1.1
SA3.1.1;
SA3.1.2
H3.1.2
H3.1.1
КР3.1.1
3UDP1.4
SHA№5.1
5BTM2.6
ВЫХОД
КР3.1.2
3AR1.100-201 3AR1.102-103
3BTM1.1
2
iz
3BTH1.5
2
3BTM1.2
ШПС№3.1
D5.2.1
5BTM2.5
Y5.1;Y5.2
Z5.1;Z5.2
закрытие ворот
iz
Z72.1
закрытие ворот
5SC2.70-71
5BTM2.2
ШК13
5BTM2.3
2
iz
iz
5BTM2.1
5BZ1.1
iz
З
2
5UDP2.7
iz
Y8.1;Y8.2
Z8.1;Z8.2
ШПС№5.1
5SC1.72-73
закрытие ворот
2
5BTM1.6
iz
NL8.28-31;
PL8.28-31
Х32-35.1;
Х32-35.2;
№28-31
Люк дымовой
ДЫМОЗОР-300
iz
iz
3SC2.72-73
3BO1.1
3SC2.81-85D3.2.1
3UDP2.16
3BTM2.14
3BTM2.7
iz
iz
КV3.2.2
КV3.2.1 СПЖ3.2
SA3.3.1;
SA3.3.2
H3.3.2
H3.3.1
H3.2.2 SA3.2.1;
H3.2.1 SA3.2.2
3BTH2.29 3BTH2.28
3BTH2.31
3BTH2.24 3BTM2.9 3BTH2.23
3BTH2.26 3BTH2.25
КР3.3.2
3AR2.106-107 3AR2.104-105
КР3.2.2
КР3.2.1
3AR2.102-103
3AR2.100-101
iz
iz
iz
iz
СПЖ3.3
3BTM2.8
3BTH2.22
iz
Р3.3.1
КР3.3.1
3BTH2.19
iz
3BZ1.1
3SC1.86-90
КV3.3.2
КV3.3.1
ШК6
iz
Х17-20.1;Х17-20.2;
NL5.17-20;
PL5.17-20
3BTH2.17 3BTH2.18
3BTM2.6
iz 3BTM2.13
3BTH2.27
D3.1.1
З
Р3.2.1
3BTH2.30 3BTM2.10
iz
3SC2.74-75
3BTM2.12
3BTH2.20
Р4.1.1
закрытие ворот
2
RS4.2
RS4.1
Х28-31.1;
Х28-31.2;
Z70.1
5SC1.70-71
iz
iz
3BTH1.2
ШК7
2
iz 3BTM2.11
SHA№8.1
№32-35
Люк дымовой
ДЫМОЗОР-300
5BTM1.7
iz
SHK№8
Z72.1 D5.1.1
NL9.32-35;
PL9.32-35
iz
2
О
3BTH1.11
Z74.1
3BTM2.4 3BTM2.5
2
3SC2.70-71
iz
5UDP1.8
iz
3BTH1.10
закрытие ворот
Z72.1
3BTM2.1 3BTM2.2 3UDP2.15 3BTM2.3
Y9.1;Y9.2
Z9.1;Z9.2
SHK№9
закрытие ворот
Z70.1
5SC2.86-90
5SC2.72-73
3BTH1.7 3BTH1.8 3BTH1.9
№17-20
Люк дымовой
ДЫМОЗОР-300
SHK№5
закрытие ворот
Z72.1
iz 5BTM2.4
3BTH1.6
iz
iz
iz
3BTM1.3
2
3BTH2.21
2
2
2
S4.1 4BIAD1.1 (10Вт) 4BIAD1.2 (6Вт) 4BIAD1.3 (10Вт) 4BIAD1.4 (10Вт) 4BIAD1.5 (10Вт)
∑= 46Вт
S4.2 4BIAD2.1 (10Вт) 4BIAD2.2 (10Вт) 4BIAD2.3 (10Вт) 4BIAD2.4 (10Вт) 4BIAD2.5 (10Вт) 4BIAD2.6 (10Вт) 4BIAD2.7 (10Вт) 4BIAD2.8 (10Вт) 4BIAD2.9 (10Вт) 4BIAD2.10 (10Вт)
iz
5BTM1.5
КV4.1.2
КV4.1.1 СПЖ4.1
5UDP1.10
H4.1.2 SA4.1.1;
H4.1.1 SA4.1.2
∑= 100Вт
S4.3 4BIAD3.1 (10Вт) 4BIAD3.2 (10Вт) 4BIAD3.3 (10Вт) 4BIAD3.4 (10Вт) 4BIAD3.5 (10Вт) 4BIAD3.6 (6Вт) 4BIAD3.7 (6Вт) 4BIAD3.8 (6Вт) 4BIAD3.9 (10Вт) 4BIAD3.10 (10Вт) 4BIAD3.11 (10Вт) 4BIAD3.12 (10Вт) 4BIAD3.13 (10Вт) 4BIAD3.14 (10Вт) 4BIAD3.15 (10Вт) 4BIAD3.16 (10Вт) 4BIAD3.17 (10Вт)
∑= 158Вт
ШК12
5BTM1.4
5UDP1.9
ШК11
5BTM1.3
5BTM1.2
5BTM1.1
iz
iz
iz
iz
КР4.1.2
КР4.1.1
5AR1.102-103
5AR1.100-101
2
2
S5.1
5BIAD1.8 (20Вт) 5BIAD1.7 (20Вт) 5BIAD1.6 (20Вт) 5BIAD1.5 (10Вт) 5BIAD1.4 (20Вт) 5BIAD1.3 (20Вт) 5BIAD1.2 (10Вт) 5BIAD1.1 (10Вт)
4.1BIAL2.2
4.1BIAL2.3
4.1BIAL2.4
4.1BIAL2.5
4.1BIAL2.6
ВЫХОД
4.1BIAL1.1
4.1BIAL1.2
4.1BIAL2.7
ВЫХОД
4.1BIAL1.3
SL4.2.2 4.2BIAL2.1
S5.2
5BIAD2.9 (20Вт) 5BIAD2.8 (20Вт) 5BIAD2.7 (10Вт) 5BIAD2.6 (20Вт) 5BIAD2.5 (10Вт) 5BIAD2.4 (10Вт) 5BIAD2.3 (20Вт) 5BIAD2.2 (10Вт) 5BIAD2.1 (10Вт)
4.1BIAL2.1
SL4.2.1 4.2BIAL1.1
4.2BIAL1.2
4.2BIAL1.3
ВЫХОД
ВЫХОД
4.2BIAL2.2
4.2BIAL2.3
Р2.1.1
SL4.1.2
закрытие ворот
4.1BIAL2.8
ВЫХОД
Z70.1
SL4.1.1
4.1BIAL1.4
4.1BIAL1.5
4.1BIAL1.6
ВЫХОД
ВЫХОД
4.2BIAL1.4
4.2BIAL2.4
КV2.1.2
КV2.1.1
SA2.1.1;
SA2.1.2
H2.1.2
H2.1.1
КР2.1.1
2
ШПС№4.1
SHK№7
NL7.25-27;
PL7.25-27
ШПС№4.2
4.2BIAL1.6
4.2BIAL1.7
ВЫХОД
ВЫХОД
4.2BIAL2.6
4.2BIAL2.7
2
4.2BIAL1.8
4.2BIAL1.9
4.2BIAL2.8
4.2BIAL2.9
открытие ворот
открытие ворот
Z72.1
Z72.1
2
СПЖ1.1
ZR5.1
ZR5.2
ZR5.1
ZR6.2
Х25-27.1;Х25-27.2;
ZR1.1;ZR2.1;ZR3.1;ZR4.1
ZR1.2; ZR2.2;ZR3.2;ZR4.2
4SC2.82-83
КР2.2.2
КСК4
№25-27
Р2.2.1;
Р3.4.1;
Р3.5.1
КР1.1.2
4AR2.102-103
2
Люк дымовой
ДЫМОЗОР-300
H1.1.2
H1.1.1
КСК1
КСК6
КV1.1.2
КV1.1.1
КР3.4.2
Согласовано:
Взам. инв. №
Подп. и дата
Инв. № подл.
4SC2.84-85
iz
4BTM2.6
КV3.4.2
КV3.4.1
SA3.4.1;
SA3.4.2
iz
iz
2
4SC1.70-71 4BTM1.1
iz
2
2
ШК10
iz
закрытие ворот
закрытие ворот
4BTH1.9 4BTH1.7
СПЖ3.5
iz
iz
4BTM2.8
SHA№6.1
КР3.5.2
Y6.1;Y6.2
Z6.1;Z6.2
Z70.1
SA3.5.1;
SA3.5.2
КР3.5.1
4AR2.114-115 4AR2.112-113
2
2
H3.5.2
H3.5.1
КV3.5.2
КV3.5.1
iz
4BTH1.10
4SC1.72-73
Z74.1
4BTH1.8
4BTH2.13
4SC2.86-90
4BO1.1О
х6.6.1
4BTM1.3 4SC1.74-75 4BTM1.2
4BTM2.7
4BTH2.12
Z84.1
4BTM1.4
ШК9
4UDP2.11
2
2
ШУ.В2
Z72.1
iz
Z78.1
КР3.4.1
СПЖ3.4
4UDP1.6
iz
закрытие ворот
4AR2.108-109 4AR2.110-111
H3.4.2
H3.4.1
iz
КV2.2.2
КV2.2.1
СПЖ2.2
КСК7
закрытие ворот
2
iz
H2.2.2
H2.2.1
SA2.2.1;
SA2.2.2
ШК8
4BTM2.5 4SC2.78-79 4BTM2.4 4BTM2.3
2
2
Z80.1
закрытие ворот закрытие ворот
2
КСК2
КСК5
2
Z82.1
2
КСК3
4SC2.80-81 4AR2.106-107 4AR2.104-105
2
4AR1.100-101
2
iz
4SC2.70-71
SA1.1.1;
SA1.1.2
КР1.1.1
iz
4BTM2.2 4SC2.76-77
КР2.2.1
SHA№7.1
Z76.1
4SC2.74-75 4BGB2.16 4BGB2.17 4UDP2.10 4BTM2.1
4SC2.72-73 4BGB2.14 4BGB2.15
2
2
4.2BIAL2.10
закрытие ворот
КР2.1.2
4AR2.100-201 4AR2.102-103
4UDP2.9
4UDP1.5
Y6.1;Y6.2
Z6.1;Z6.2
4.2BIAL2.5
СПЖ2.1
4.1BIAL1.7
D4.1.1
4.2BIAL1.5
SHK№6
№17-20
Люк дымовой
Х21-24.1;Х21-24.2;
ДЫМОЗОР-300
NL6.21-24;
PL6.21-24
закрытие ворот
502/1-2/25-ПС1
Изм. Кол.уч Лист № док. Подп.
Крюкова
Разраб.
Проверил
Видус
Видус
ГИП
Дата
Складской комплекс ООО «Хавейл Мотор Мануфэкчуринг Рус» по адресу:
Тульская область, Узловский район, тер. Индустриальный парк, ул. Индустриальная, здание 11к1
07.25
07.25
07.25
Система пожарной сигнализации (СПС),
зоны склада
Стадия
Лист
Листов
Р
2
12
Схема структурная
Н. контр.
Видус
07.25
Формат А1

19.

Экспликация помещений (без АБЧ)
№ пом.
План на отм. +0.000
144560
84560
12
14
13
ЛМП-3
Ж
ЗКПС51
22
1600
1979
3
21
15
10
17
12420
6000
И
815
ЗКПС48
ЛМП-3
2500
ЗКПС49
1775
ЗКПС50
ЗКПС55
18
20
19
1580
ЗКПС57
500
500
1303
11
16
1520
740
1520
740
740
740
540
1000
1100
1000
960
1000
400
275
Сириус 3
23
Сириус 4
3000
30560
1250
24000
2
1000
1520
1250
3000
1640
1520
8
1225
ЗКПС56
3000
1225
1360
2000
ЗКПС47
2000
2000
2000
2000
2000
ЗКПС46
2000
1300
2000
2000
2000
430
1000
450
3000
620
1520
ЗКПС45
ЗКПС44
ЗКПС62
ЗКПС61
ЗКПС58
ЛМП-3
1360
24000
1360
800
250
600
4200
625
7
600
4200
6
600
625
ЗКПС54
5
4200
Е
4
600
ЗКПС53
ЗКПС52
1520
1520
Экспликация помещений АБЧ на отм. 0.000
Кат.
Класс зоны
Площадь, помещения по по ПУЭ/СП
СП
423.1325800
м²
12.13130.2009
.2018
Наименование
Этаж 1
1
Цех механической обработки
14749.6
2
Цех термообработки
2815.7
Станция охлаждения,
3
292.2
компрессорная станция
4
Помещене точных измерений
161.9
Буферная зона помещения
5
29.0
точных измерений
Зона резки в
6
22.9
металлографической камере
Зона подготовки и испытания
образцов в металлографической
7
95.4
камере
Помещение для демонтажа
8
29.8
коробок передач
10 Помещение сероочистки
97.0
11 Помещение с кулером для воды
3.5
12 Помещение для промывки
35.2
13 СУ
19.6
14 СУ
14.6
Помещение для сбора
15 металлической и алюминиевой
101.1
стружки
16 Тамбур
15.1
Помещение для обслуживания
17
47.1
оборудования
18 Склад запасных частей
198.6
19 Зона гидравлики
197.6
20 Зона разгрузки
68.5
21 СУ
18.3
22 СУ
14.4
23 Помещение с кулером для воды
4.1
24 Склад
5963.5
25 Цех сборки
6666.0
29 УУП+ТС
102.3
31762.9
Этаж 2
2
Цех термообработки
40.6
26 Электрощитовая
185.4
27 Венткамера
174.6
400.6
32163.5
В2
В1
П-IIa
П-I
В2
П-IIa
В2
П-IIa
В2
П-IIa
В2
П-IIa
№ пом.
Этаж 1
2.01
2.02
2.03
2.04
2.05
2.06
2.07
2.08
В2
П-IIa
2.09
В2
П-IIa
2.10
Д
Д
-
-
Д
-
-
-
Д
-
В3
В3
В1
В3
В2
Д
П-IIa
П-IIa
П-I
П-IIa
П-IIa
-
2.11
2.12
2.13
2.14
2.15
2.16
2.17
2.18
2.19
2.20
2.21
2.22
2.23
В1
В4
В1
2.24
2.25
2.26
2.27
2.28
2.29
2.30
2.31
2.32
2.33
2.34
П-I
П-IIa
П-I
Кат.
Класс
помещения зоны по
Площадь,
по СП
ПУЭ/СП
м²
12.13130.20 423.13258
09
00.2018
Наименование
Зона обмена
Тамбур
Гардероб персонала (мужской)
Сан. блок
Сан. блок
Гардероб персонала (женский)
Комната гигиены женщин
Помещение для настройки
инструментов
Подготовительная зона
лаборатории КИ
Лаборатория координатных
измерений (КИ)
СУ
Тамбур СУ
СУ
Тамбур
Переговорная комната
Демонтажный участок
Комната отдыха
Вестибюль
Тамбур
Переговорная
Учебный класс
Аналитическая лаборатория
Помещение отдыха
Лаборатория анализа
образцов
Помещение забора образцов
Гардеробная
Моечная
Помещение для внешнего
осмотра
Тамбур СУ
СУ
СУ
Тамбур
ЛК
Помещение маркировки
Д
-
-
31.1
Д
-
48.0
В3
П-IIa
204.3
В3
П-IIa
17.8
15.4
21.8
28.6
49.3
38.9
41.5
70.1
19.0
30.4
48.0
76.8
28.1
Д
В4
-
П-IIa
-
51.3
В4
П-IIa
27.1
12.2
14.2
В4
-
П-IIa
-
72.8
В4
П-IIa
14.7
15.9
21.4
27.0
21.2
97.7
1652.8
1652.8
В4
П-IIa
24000
Д
200.1
23.0
97.0
28.4
27.9
116.0
16.0
Сириус 2
Сириус 4
150000
Сириус 5
ЗКПС38
ЗКПС39
ЗКПС40
ЗКПС41
ЗКПС42
ЗКПС43
ЗКПС64
ЗКПС63
750
ЗКПС37
4000
138560
750
Г
1
25
24
ЗКПС60
114560
24000
ЗКПС59
750
4000
750
План на отм. +4.800
5000
750
4000
750
В
26
+4.800
ЗКПС49
Сириус 3 ЗКПС50
27
24000
Е
6000
12000
6
12000
7
12000
8
12000
9
12000
10
12000
11
12
3000
2.14
3000
2.12
1225
2.29
1225
2.02
1360
1360
16000
Б
1520
3000
1520
1000
1520
1520
1520
2000
2400
1520
740
1520
1000
1000
740
1520
1520
1520
1000
1520
1520
1520
1520
1225
1520
1534
2.06
2.08
2.10
2.09
Сириус 1
2.25
2.16
2.17
2.18
2.20
1640
1648
2.21
2.22
2.32
2.28
1000
2.15
1682
2.34
1520
2.23
1575
2.24
29
1400
1520
2.03
1200
8000
1641
2.01
8900
1360
1520
2050
А/1
1225
1520
500
1725
500
А
2.04
2.05
2.07
2.11
2.26 2.27
2.13
42560
2.31
2.33
138000
48560
2.19
ЛМП-3
12000
2.30
12000
12000
12000
12000
12000
12000
12000
12000
12000
ЛМП-3
12000
12000
12000
12000
12000
12000
12000
12000
12000
1
2
3
4
5
6
7
8
9
10
11
12
13
14
15
16
17
18
19
20
Инв. № подл.
Подп. и дата
Взам. инв. №
Согласовано:
228000
502/1-2/25-ПС1
Изм. Кол.уч Лист № док. Подп.
Крюкова
Разраб.
Проверил
Видус
Видус
ГИП
Дата
Н. контр.
07.25
Складской комплекс ООО «Хавейл Мотор Мануфэкчуринг Рус» по адресу:
Тульская область, Узловский район, тер. Индустриальный парк, ул. Индустриальная, здание 11к1
07.25
07.25
07.25
Система пожарной сигнализации (СПС),
зоны склада
Стадия
Лист
Листов
Р
3
12
План ЗКПС (Сириусов)
Видус
Формат А1

20.

Экспликация помещений (без АБЧ)
№ пом.
План на отм. +0.000
144560
84560
12
14
13
ЛМП-3
Ж
21
22
1600
1979
3
10
15
12420
6000
И
17
815
2500
х5.6.1
1775
ШУ.В1
18
ЛМП-3
20
19
1580
500
500
1303
Z6.6.1
16
1520
740
1520
740
740
740
1000
540
1000
2
1000
960
1000
400
275
23
SHA№6.1
ШПС№4.2
3000
1250
24000
1100
ШУ.В2
1520
30560
11
1250
3000
1520
1520
1225
3000
1225
1520
2000
2000
2000
2000
2000
2000
1300
2000
2000
2000
430
1000
450
3000
620
1520
ЛМП-3
ШКП-10RS
24000
ПД1
5,18кВт
1360
1360
800
250
P1
4200
2000
600
1360
600
625
8
600
4200
7
4200
625
6
ШПС№3.1
600
Е
5
1640
4
SHA№5.1
Д
SHP2.1.15
Экспликация помещений АБЧ на отм. 0.000
Кат.
Класс зоны
Площадь, помещения по по ПУЭ/СП
СП
423.1325800
м²
12.13130.2009
.2018
Наименование
Этаж 1
1
Цех механической обработки
14749.6
2
Цех термообработки
2815.7
Станция охлаждения,
3
292.2
компрессорная станция
4
Помещене точных измерений
161.9
Буферная зона помещения
5
29.0
точных измерений
Зона резки в
6
22.9
металлографической камере
Зона подготовки и испытания
образцов в металлографической
7
95.4
камере
Помещение для демонтажа
8
29.8
коробок передач
10 Помещение сероочистки
97.0
11 Помещение с кулером для воды
3.5
12 Помещение для промывки
35.2
13 СУ
19.6
14 СУ
14.6
Помещение для сбора
15 металлической и алюминиевой
101.1
стружки
16 Тамбур
15.1
Помещение для обслуживания
17
47.1
оборудования
18 Склад запасных частей
198.6
19 Зона гидравлики
197.6
20 Зона разгрузки
68.5
21 СУ
18.3
22 СУ
14.4
23 Помещение с кулером для воды
4.1
24 Склад
5963.5
25 Цех сборки
6666.0
29 УУП+ТС
102.3
31762.9
Этаж 2
2
Цех термообработки
40.6
26 Электрощитовая
185.4
27 Венткамера
174.6
400.6
32163.5
В2
В1
П-IIa
П-I
В2
П-IIa
В2
П-IIa
В2
П-IIa
В2
П-IIa
№ пом.
Этаж 1
2.01
2.02
2.03
2.04
2.05
2.06
2.07
2.08
В2
П-IIa
2.09
В2
П-IIa
2.10
Д
Д
-
-
Д
-
-
-
Д
-
В3
В3
В1
В3
В2
Д
П-IIa
П-IIa
П-I
П-IIa
П-IIa
-
2.11
2.12
2.13
2.14
2.15
2.16
2.17
2.18
2.19
2.20
2.21
2.22
2.23
В1
В4
В1
2.24
2.25
2.26
2.27
2.28
2.29
2.30
2.31
2.32
2.33
2.34
П-I
П-IIa
П-I
Наименование
Зона обмена
Тамбур
Гардероб персонала (мужской)
Сан. блок
Сан. блок
Гардероб персонала (женский)
Комната гигиены женщин
Помещение для настройки
инструментов
Подготовительная зона
лаборатории КИ
Лаборатория координатных
измерений (КИ)
СУ
Тамбур СУ
СУ
Тамбур
Переговорная комната
Демонтажный участок
Комната отдыха
Вестибюль
Тамбур
Переговорная
Учебный класс
Аналитическая лаборатория
Помещение отдыха
Лаборатория анализа
образцов
Помещение забора образцов
Гардеробная
Моечная
Помещение для внешнего
осмотра
Тамбур СУ
СУ
СУ
Тамбур
ЛК
Помещение маркировки
RS2.1
200.1
23.0
97.0
28.4
27.9
116.0
16.0
Д
-
-
31.1
Д
-
48.0
В3
П-IIa
204.3
В3
П-IIa
17.8
15.4
21.8
28.6
49.3
38.9
41.5
70.1
19.0
30.4
48.0
76.8
28.1
Д
В4
-
П-IIa
-
51.3
В4
П-IIa
27.1
12.2
14.2
В4
-
П-IIa
-
72.8
В4
П-IIa
14.7
15.9
21.4
27.0
21.2
97.7
1652.8
1652.8
В4
П-IIa
24000
RS2.2
Кат.
Класс
помещения зоны по
Площадь,
по СП
ПУЭ/СП
м²
12.13130.20 423.13258
09
00.2018
ШПС№2.2
RS2.1
150000
RS2.2
ШПС№5.1
RS3.1
RS3.2
План на отм. +4.800
RS4.1
RS4.2
750
4000
138560
750
Г
1
25
RS5.1
24
750
5000
114560
24000
RS5.2
26
27
+4.800
750
4000
Е
750
В
12000
12000
12000
12000
12000
12000
4000
6000
7
8
9
10
11
12
24000
750
6
Б
RS2.1
RS2.1
1520
1520
3000
2.14
3000
2.12
1225
2.29
1225
2.02
1360
1360
16000
RS2.2
RS4.1 RS4.2
3000
1520
1000
1520
2400
2000
1520
740
1000
1520
1520
1000
1520
2050
1360
RS2.2
На 2 этаж
RS1
RS2
1534
1641
8000
1520
2.25
2.08
2.10
2.09
2.15
1682
2.16
2.17
2.18
2.20
1640
1648
2.21
2.22
2.34
1520
2.23
1575
2.24
1520
ШПС№4.1
29
1400
1520
2.06
1200
2.03
1520
2.32
2.28
1000
2.01
1520
1225
1520
1520
1520
8900
ШПС№2.1 SHA№2.1
740
1225
1520
А/1
500
1725
500
А
2.04
2.05
2.07
2.11
2.26 2.27
2.13
42560
2.31
2.33
138000
48560
2.19
ЛМП-3
12000
2.30
12000
12000
12000
12000
12000
12000
12000
12000
12000
ЛМП-3
12000
12000
12000
12000
12000
12000
12000
12000
12000
1
2
3
4
5
6
7
8
9
10
11
12
13
14
15
16
17
18
19
20
Инв. № подл.
Подп. и дата
Взам. инв. №
Согласовано:
228000
502/1-2/25-ПС1
Изм. Кол.уч Лист № док. Подп.
Крюкова
Разраб.
Проверил
Видус
Видус
ГИП
Н. контр.
Дата
Складской комплекс ООО «Хавейл Мотор Мануфэкчуринг Рус» по адресу:
Тульская область, Узловский район, тер. Индустриальный парк, ул. Индустриальная, здание 11к1
07.25
07.25
07.25
Система пожарной сигнализации (СПС),
зоны склада
Стадия
Лист
Листов
Р
4
12
План расположения оборудования и проводок
линии интерфейса RS-485 и АДУ
Видус
07.25
Формат А1

21.

Экспликация помещений (без АБЧ)
№ пом.
План на отм. +0.000
144560
84560
12
14
13
ЛМП-3
Ж
iz
3BTM1.2
3BTM2.5
3UDP2.15
3BTM2.2
3BTH1.7
3BTH1.8
3BTH1.9
3BTH1.10
3BTH1.11
10
3BTH1.6
3BTH1.2
22
1600
1979
3BTH1.5
iz
15
17
Z72.1
Z70.1
2
3BTM2.3
D3.2.1
2500
3BO1.1
3SC2.81-85
3SC2.70-71
1775
Z74.1
3BTM2.4
3UDP2.16 3SC2.74-75
2
О
iz
iz
3BTM2.1
815
2
iz
iz
4BTM2.7
3SC2.72-73
18
ЛМП-3
SA3.1.1;
SA3.1.2
11
16
Р3.1.1
2
19
4AR2.104-105
4AR2.106-107
1520
Н2.2.1;
Н2.2.2
4BTM2.5
iz
2
2
740
2
20
SA3.4.1;
SA3.4.2
2
2
2
1520
500
4BTH2.12 4BTH2.13
4AR2.108-109 4SC2.84-85
4AR2.110-111
4BTM2.6 4UDP2.11
4SC2.80-81 4SC2.82-83
2
ШК7
2
СПЖ3.1
SA2.2.1;
SA2.2.2
1580
500
1303
О
iz
740
740
Z80.1
1520
Р2.2.1;
Р3.4.1
Z82.1
Р2.2.1
1000
4BO1.1
540
1000
1100
СПЖ3.4
3BTM2.6
1000
2
2
400
275
4AR2.114-115
Р2.2.1;
Р3.4.1;
Р3.5.1
SHA№6.1
4BTM2.8
СПЖ3.5
4SC2.78-79
2
iz
960
23
СПЖ2.2
Н3.1.1;
Н3.1.2
1000
Н3.5.1;
Н3.5.2
Z84.1
Н3.4.1;
Н3.4.2
D4.2.1
4SC2.86-90 4AR2.112-113
2
740
SA3.5.1;
SA3.5.2
iz
1250
24000
3AR1.100-101
3AR1.102-103
21
iz
iz
3BTM1.3
3
iz
12420
6000
iz
D3.1.1
3000
4UDP2.9
SA3.2.1;
SA3.2.2
Р3.2.1
3000
1250
На 2 этаж
D3.2.1
3BTM2.7
iz
ШК6
3UDP1.4 SHA№5.1
ШПС№3.1
ШК5
iz
4200
2
625
iz
1360
2SC2.70-71 2BTM2.6
3BTH2.29
3BTH2.28
3BTH2.27
5
D3.2.1
2BTM2.7
D2.2.1
2000
2000
2000
3BTM2.9
6
3BTH2.26
iz
Р3.3.1
7
3BTH2.23
3BTH2.24
на 1 этаж к ШПС№3.1
D3.2.1
2000
2000
3BTH2.18
8
3AR2.104-1053BTH2.17
3AR2.106-107
2SC2.72-73
iz
2BTM2.8
1300
2000
2000
iz
2000
ШК4
2BTM2.9
1520
2000
2
430
1000
Z70.1
2BTM2.10
450
СПЖ3.3
SA2.1.1;
SA2.1.2
СПЖ3.2
iz
2
iz
2000
Н3.2.1;
Н3.2.2
SA3.3.1;
SA3.3.2
iz
1225
3000
1225
5SC2.70-71
3SC1.86-90
З3BZ1.1
2
3000
Z70.1
Р2.1.1;
1520
2
iz
3BTH2.21 3BTM2.8
3BTH2.22
2
Z72.1
Н3.3.1;
Н3.3.2
iz
4BTM2.4
iz
ШК8
4BTM2.3
4AR2.100-101
4AR2.102-103
2
2
2
620
4SC2.70-71
2
2
iz
5SC2.72-73 5BTM2.2
600
Z70.1 3BTM1.1
625
3BTH2.30
3BTH2.31
3AR2.100-101
3AR2.102-103
1520
1520
4
iz
iz
ШК13 5BTM2.3
iz
D5.2.1
Z72.1
Н2.1.1;
Н2.1.2
4200
iz
1640
3BTH2.20
3BTH2.19
600
3BTM2.10
4200
3BTH2.25
iz
Е
ШПС№4.2
Z78.1
30560
И
ЛМП-3
СПЖ2.1
Z76.1
600
600
2SC2.86-90
2BZ1.1
iz
2BTM2.11
iz
5BZ1.1
5SC2.86-90
iz
iz
5BTM2.4
4SC2.76-77
4BTM2.2
24000
З
5BTM2.1
2
1360
250
З
4SC2.72-73
2
4BGB2.14
4BGB2.15
Z72.1
Экспликация помещений АБЧ на отм. 0.000
Кат.
Класс зоны
Площадь, помещения по по ПУЭ/СП
СП
423.1325800
м²
12.13130.2009
.2018
Наименование
Этаж 1
1
Цех механической обработки
14749.6
2
Цех термообработки
2815.7
Станция охлаждения,
3
292.2
компрессорная станция
4
Помещене точных измерений
161.9
Буферная зона помещения
5
29.0
точных измерений
Зона резки в
6
22.9
металлографической камере
Зона подготовки и испытания
образцов в металлографической
7
95.4
камере
Помещение для демонтажа
8
29.8
коробок передач
10 Помещение сероочистки
97.0
11 Помещение с кулером для воды
3.5
12 Помещение для промывки
35.2
13 СУ
19.6
14 СУ
14.6
Помещение для сбора
15 металлической и алюминиевой
101.1
стружки
16 Тамбур
15.1
Помещение для обслуживания
17
47.1
оборудования
18 Склад запасных частей
198.6
19 Зона гидравлики
197.6
20 Зона разгрузки
68.5
21 СУ
18.3
22 СУ
14.4
23 Помещение с кулером для воды
4.1
24 Склад
5963.5
25 Цех сборки
6666.0
29 УУП+ТС
102.3
31762.9
Этаж 2
2
Цех термообработки
40.6
26 Электрощитовая
185.4
27 Венткамера
174.6
400.6
32163.5
В2
В1
П-IIa
П-I
В2
П-IIa
В2
П-IIa
В2
П-IIa
В2
П-IIa
№ пом.
Этаж 1
2.01
2.02
2.03
2.04
2.05
2.06
2.07
2.08
В2
П-IIa
2.09
В2
П-IIa
2.10
Д
Д
-
-
Д
-
-
-
Д
-
В3
В3
В1
В3
В2
Д
П-IIa
П-IIa
П-I
П-IIa
П-IIa
-
2.11
2.12
2.13
2.14
2.15
2.16
2.17
2.18
2.19
2.20
2.21
2.22
2.23
В1
В4
В1
2.24
2.25
2.26
2.27
2.28
2.29
2.30
2.31
2.32
2.33
2.34
П-I
П-IIa
П-I
Кат.
Класс
помещения зоны по
Площадь,
по СП
ПУЭ/СП
м²
12.13130.20 423.13258
09
00.2018
Наименование
Зона обмена
Тамбур
Гардероб персонала (мужской)
Сан. блок
Сан. блок
Гардероб персонала (женский)
Комната гигиены женщин
Помещение для настройки
инструментов
Подготовительная зона
лаборатории КИ
Лаборатория координатных
измерений (КИ)
СУ
Тамбур СУ
СУ
Тамбур
Переговорная комната
Демонтажный участок
Комната отдыха
Вестибюль
Тамбур
Переговорная
Учебный класс
Аналитическая лаборатория
Помещение отдыха
Лаборатория анализа
образцов
Помещение забора образцов
Гардеробная
Моечная
Помещение для внешнего
осмотра
Тамбур СУ
СУ
СУ
Тамбур
ЛК
Помещение маркировки
4SC2.74-75
2
4BGB2.16
Z74.1
200.1
23.0
97.0
28.4
27.9
116.0
16.0
Д
-
-
31.1
Д
-
48.0
В3
П-IIa
204.3
В3
П-IIa
17.8
15.4
21.8
28.6
49.3
38.9
41.5
70.1
19.0
30.4
48.0
76.8
28.1
Д
В4
-
П-IIa
-
51.3
В4
П-IIa
27.1
12.2
14.2
В4
-
П-IIa
-
72.8
В4
П-IIa
14.7
15.9
21.4
27.0
21.2
97.7
1652.8
1652.8
В4
П-IIa
4BGB2.17
D4.2.1
Д
4BTM2.1
iz
4UDP2.10
24000
SHA№4.1
2UDP2.13
При пожаре ворота открываются и
ипользуются в качестве подпора
дымоудаления
План на отм. +4.800
ШК9
2BTM2.5
iz
SHK№3
ШПС№2.2
D4.1.1
150000
2BTM2.1
5UDP2.7
iz
ШПС№5.1
Г
5BTM2.5
D5.2.1
SHA№8.1
D2.2.1
iz
iz
5BTM2.6
iz
2
iz
4SC1.74-75
4UDP1.6
iz
5UDP1.8
2BTM2.2
с 1 этажа
D3.2.1
Z74.1
D5.1.1
4000
138560
iz
2BTM2.3
4BTM1.4
750
iz
2BTM2.4
4BTM1.3
iz
5000
750
25
24
Р4.1.1
24000
Е
Е
26
+4.800
iz
27
iz
iz
на 1 этаж к ШПС№3.1
D3.2.1
SA4.1.1;
SA4.1.2
СПЖ4.1
2
2
СПЖ4.1
6000
5AR1.100-101
5AR2.102-103
114560
1
+4.800
6
7
6
8
12000
7
9
12000
8
10
12000
9
11
12000
10
12000
12
11
12
4000
750
Н4.1.1;
Н4.1.2
12000
Z72.1
В
5BTM1.1
750
D2.1.1
2
4BTM1.2
iz
5SC1.72-73
iz
iz
4000
2BTM1.4
750
iz
2BTM1.3
750
Z72.1
4SC1.72-73
2
2BTM1.2
24000
iz
iz
2BTM1.5
iz
5BTM1.7
Б
iz
5BTM1.6
1360
iz
1360
16000
2BTM1.6
iz
1225
2.29
2.14
Z70.1
2BTM1.1 2UDP1.10
1520
ШПС№2.1
740
1520
SHK№1
2400
2BTM1.8
iz
ШК2
2000
2UDP1.11 2BTM1.7 SHA№2.1 ШК3
1520
iz
5BTM1.5 5UDP1.10
1520
1000
ШК12
1520
iz
iz
1360
2.25
1520
ШК10
1000
ШПС№4.1
2.10
2.09
SHA№7.1
1520
iz
2.15
1682
2.16
2.17
2.18
2.22
2.20
1640
1648
2.21
2.32
29
2.34
1520
2.23
1575
2.24
4BTH1.9
ZR5.1
ZR6.2
ZR1.1;ZR2.1;ZR3.1;ZR4.1
ZR1.2; ZR2.2;ZR3.2;ZR4.2
SA1.1.1;
КСК4
SA1.1.2
ZR5.1
ZR5.2
СПЖ1.1
4AR1.100-101 2
4AR1.102-103 2
iz
КСК3
iz
4BTH1.8 4BTH1.10
1400
1520
2.08
1200
2.06
1520
2.28
1000
2.03
5UDP1.9 ШК11 5BTM1.3
4UDP1.5
1534
2.01
1520
1520
iz
1641
8000
5BTM1.4
2050
2UDP1.9
8900
ШК1
1225
2SC1.70-71
А/1
3000
1520
2
4SC1.70-71
4BTM1.1
3000
Z70.1
3000
2.12
iz
1520
1520
1225
Z70.1
2
5BTM1.2
5SC1.70-71
1225
2
2.02
КСК5
ZR7.1
ZR7.2
500
1725
500
КСК2
4BTH1.7
КСК1
КСК6
КСК7
Н1.1.1;
Н1.1.2
А
2.04
2.05
2.07
2.11
2.26 2.27
2.13
42560
2.33
48560
2.19
12000
12000
12000
12000
12000
12000
12000
12000
12000
ЛМП-3
12000
12000
12000
12000
12000
12000
12000
12000
12000
228000
1
2
3
4
5
6
7
8
9
10
11
12
13
14
15
16
17
18
19
20
Инв. № подл.
Подп. и дата
Взам. инв. №
Согласовано:
2.31
138000
ЛМП-3
12000
2.30
502/1-2/25-ПС1
Изм. Кол.уч Лист № док. Подп.
Крюкова
Разраб.
Проверил
Видус
Видус
ГИП
Н. контр.
Видус
Дата
Складской комплекс ООО «Хавейл Мотор Мануфэкчуринг Рус» по адресу:
Тульская область, Узловский район, тер. Индустриальный парк, ул. Индустриальная, здание 11к1
07.25
07.25
07.25
07.25
Система пожарной сигнализации (СПС),
зоны склада
Стадия
Лист
Листов
Р
5
12
План расположения оборудования и
проводок СПС
Формат А1

22.

Экспликация помещений (без АБЧ)
№ пом.
План на отм. +0.000
144560
84560
12
14
13
ЛМП-3
3BIAL2.8
И
ВЫХОД
21
ВЫХОД
Ж
3
22
1600
1979
12420
6000
3BIAL1.5
15
10
17
815
ВЫХОД
4.2BIAL1.3
ВЫХОД
3.1BIAL1.2
3.1BIAL1.4
3.1BIAL1.3
2500
3.1BIAL2.9
1775
3.1BIAL2.7
18
ЛМП-3
20
19
1580
500
500
1303
SL4.2.1
11
16
ВЫХОД
1520
1520
4.2BIAL1.4
740
740
1520
740
4.2BIAL1.2
1000
540
1000
1100
1000
960
1000
400
275
ВЫХОД
4.2BIAL1.6
23
3000
30560
ШПС№4.2
1250
3.1BIAL2.6
ВЫХОД
4.2BIAL1.1
2
24000
4.2BIAL1.5
740
1250
3000
3.1BIAL2.3
3.1BIAL2.2
ВЫХОД
ВЫХОД
1520
1520
3.1BIAL2.5
3.1BIAL2.1
6
7
8
ВЫХОД
SL4.2.2
4.2BIAL1.9
4.2BIAL1.8
ВЫХОД
2000
2.2BIAL1.7
2000
2000
2000
2000
2.2BIAL1.6
2.2BIAL1.5
2000
2000
1300
2000
2000
2000
430
1000
4.2BIAL2.2
ВЫХОД
450
3000
4.2BIAL2.1
620
SL5.1.1
5.1BIAL1.3
2.2BIAL1.3
2.2BIAL1.4
1520
600
2.2BIAL1.8
5.1BIAL1.4
5.1BIAL1.5
ЛМП-3
600
1360
5.1BIAL1.6
ВЫХОД
1360
5.1BIAL1.2
ВЫХОД
ВЫХОД
2.2BIAL1.2
ВЫХОД
800
250
600
4200
1360
4.2BIAL1.7
600
625
SL4.2.1
1225
4200
4200
3000
ВЫХОД
ВЫХОД
625
1225
3.1BIAL2.4
ШПС№3.1
ВЫХОД
Е
5
1520
4
SL3.1.1
1640
3.1BIAL1.1
4.1BIAL2.8
24000
4.1BIAL1.7
2.1BIAL1.8
SL2.2.1
SL5.1.2
SL2.2.3
2.2BIAL3.10
2.2BIAL3.9
2.2BIAL3.8
2.2BIAL3.7
2.2BIAL3.6
2.2BIAL3.5
2.2BIAL3.4
2.2BIAL3.3
2.2BIAL3.2
4.2BIAL2.4
2.2BIAL3.1
5.1BIAL3.1
24000
2.2BIAL1.1
4.1BIAL1.6
4.2BIAL2.3
5.1BIAL3.2
5.1BIAL1.7
4.1BIAL2.7
5.1BIAL1.8
4.1BIAL2.6
ВЫХОД
Д
5.1BIAL1.1
2.1BIAL1.7
150000
ШПС№2.2
Экспликация помещений АБЧ на отм. 0.000
Кат.
Класс зоны
Площадь, помещения по по ПУЭ/СП
СП
423.1325800
м²
12.13130.2009
.2018
Наименование
Этаж 1
1
Цех механической обработки
14749.6
2
Цех термообработки
2815.7
Станция охлаждения,
3
292.2
компрессорная станция
4
Помещене точных измерений
161.9
Буферная зона помещения
5
29.0
точных измерений
Зона резки в
6
22.9
металлографической камере
Зона подготовки и испытания
образцов в металлографической
7
95.4
камере
Помещение для демонтажа
8
29.8
коробок передач
10 Помещение сероочистки
97.0
11 Помещение с кулером для воды
3.5
12 Помещение для промывки
35.2
13 СУ
19.6
14 СУ
14.6
Помещение для сбора
15 металлической и алюминиевой
101.1
стружки
16 Тамбур
15.1
Помещение для обслуживания
17
47.1
оборудования
18 Склад запасных частей
198.6
19 Зона гидравлики
197.6
20 Зона разгрузки
68.5
21 СУ
18.3
22 СУ
14.4
23 Помещение с кулером для воды
4.1
24 Склад
5963.5
25 Цех сборки
6666.0
29 УУП+ТС
102.3
31762.9
Этаж 2
2
Цех термообработки
40.6
26 Электрощитовая
185.4
27 Венткамера
174.6
400.6
32163.5
В2
В1
П-IIa
П-I
В2
П-IIa
В2
П-IIa
В2
П-IIa
В2
П-IIa
№ пом.
Этаж 1
2.01
2.02
2.03
2.04
2.05
2.06
2.07
2.08
В2
П-IIa
2.09
В2
П-IIa
2.10
Д
Д
-
-
Д
-
-
-
Д
-
В3
В3
В1
В3
В2
Д
П-IIa
П-IIa
П-I
П-IIa
П-IIa
-
2.11
2.12
2.13
2.14
2.15
2.16
2.17
2.18
2.19
2.20
2.21
2.22
2.23
В1
В4
В1
2.24
2.25
2.26
2.27
2.28
2.29
2.30
2.31
2.32
2.33
2.34
П-I
П-IIa
П-I
Наименование
Зона обмена
Тамбур
Гардероб персонала (мужской)
Сан. блок
Сан. блок
Гардероб персонала (женский)
Комната гигиены женщин
Помещение для настройки
инструментов
Подготовительная зона
лаборатории КИ
Лаборатория координатных
измерений (КИ)
СУ
Тамбур СУ
СУ
Тамбур
Переговорная комната
Демонтажный участок
Комната отдыха
Вестибюль
Тамбур
Переговорная
Учебный класс
Аналитическая лаборатория
Помещение отдыха
Лаборатория анализа
образцов
Помещение забора образцов
Гардеробная
Моечная
Помещение для внешнего
осмотра
Тамбур СУ
СУ
СУ
Тамбур
ЛК
Помещение маркировки
Кат.
Класс
помещения зоны по
Площадь,
по СП
ПУЭ/СП
м²
12.13130.20 423.13258
09
00.2018
200.1
23.0
97.0
28.4
27.9
116.0
16.0
Д
-
-
31.1
Д
-
48.0
В3
П-IIa
204.3
В3
П-IIa
17.8
15.4
21.8
28.6
49.3
38.9
41.5
70.1
19.0
30.4
48.0
76.8
28.1
Д
В4
-
П-IIa
-
51.3
В4
П-IIa
27.1
12.2
14.2
В4
-
П-IIa
-
72.8
В4
П-IIa
14.7
15.9
21.4
27.0
21.2
97.7
1652.8
1652.8
В4
П-IIa
2.1BIAL4.11
4.1BIAL1.5
4.2BIAL2.5
2.1BIAL4.12
750
2.1BIAL4.10
2.2BIAL2.1
2.2BIAL2.2
5.1BIAL3.3
5.1BIAL3.4
4.2BIAL2.6
750
4000
138560
2.1BIAL4.9
2.1BIAL2.9
2.1BIAL2.10
ВЫХОД
2.1BIAL2.12
ВЫХОД
Г
ВЫХОД
ШПС№5.1
SL2.2.2
SL2.1.4
2.1BIAL2.11
1
25
24000
24
4.1BIAL1.4
5.1BIAL2.1
2.1BIAL3.7
5.1BIAL1.9
114560
2.1BIAL1.6
План на отм. +4.800
750
4000
750
4.1BIAL2.5
2.1BIAL2.5
2.1BIAL2.6
2.1BIAL4.8
2.1BIAL2.8
2.1BIAL4.7
2.1BIAL4.6
2.1BIAL4.5
2.2BIAL2.3
2.1BIAL3.6
2.2BIAL2.4
5.1BIAL2.2
5.1BIAL3.5
4.2BIAL2.8
5.1BIAL3.6
4.2BIAL2.7
4.1BIAL1.3
Е
ВЫХОД
5000
4.1BIAL1.2
SL2.1.2
2.1BIAL2.3
2.1BIAL2.4
на 1 этаж к ШПС№3.1
SL3.3.1
2.1BIAL2.2
2.1BIAL4.1
2.1BIAL4.2
2.1BIAL4.4
2.1BIAL4.3
2.2BIAL2.6
2.2BIAL2.5
12000
6
SL5.1.3
SL2.1.4
2.1BIAL2.1
5.1BIAL3.7
4.2BIAL2.9
5.1BIAL3.8
27
+4.800
SL3.1.3
6000
Б
ВЫХОД
4.1BIAL2.4
5.1BIAL2.10
5.1BIAL2.3
2.1BIAL3.5
26
ВЫХОД
2.1BIAL1.5
3BIAL3.2
ВЫХОД
24000
750
4000
2.1BIAL2.7
750
В
12000
7
12000
8
12000
9
12000
10
12000
11
12
4.2BIAL2.10
1520
1520
740
2.1BIAL1.2
SL2.1.1
1520
3000
2.1BIAL1.1
1520
SHA№2.1
2.1BIAL3.2
2000
2400
2.1BIAL3.1
2.1BIAL3.3
1520
1520
ВЫХОД
740
1520
1000
5.1BIAL2.5
1000
1520
1225
2.1BIAL1.3
1520
1520
5.1BIAL2.6
1000
5.1BIAL2.7
1520
ВЫХОД
ВЫХОД
SL5.1.2
5.1BIAL2.8
1520
1520
1360
4.1BIAL2.2
1520
SL4.1.2
4.1BIAL2.1 ШПС№4.1
1000
1520
ВЫХОД
1520
SL4.1.1
1534
8000
1641
2.25
2.08
2.10
2.09
2.15
1682
2.16
2.17
2.18
2.20
1640
1648
2.21
2.22
2.34
1520
2.23
1575
2.24
29
1400
1520
2.06
1200
2.03
2.32
2.28
1000
2.01
8900
1360
1520
2050
А/1
ВЫХОД
3000
1225
2.29
2.14
3000
2.12
4.1BIAL1.1
4.1BIAL2.3
1225
1360
ВЫХОД
5.1BIAL2.9
1225
2.02
5.1BIAL2.4
ВЫХОД
2.1BIAL3.4
ВЫХОД
16000
2.1BIAL1.4
500
1725
500
А
2.04
2.05
2.07
2.11
2.26 2.27
2.13
42560
2.31
2.33
138000
48560
2.19
ЛМП-3
12000
2.30
12000
12000
12000
12000
12000
12000
12000
12000
12000
ЛМП-3
12000
12000
12000
12000
12000
12000
12000
12000
12000
228000
2
3
4
5
6
7
8
9
10
11
12
13
14
15
16
17
18
19
20
Инв. № подл.
Подп. и дата
Взам. инв. №
Согласовано:
1
502/1-2/25-ПС1
Изм. Кол.уч Лист № док. Подп.
Крюкова
Разраб.
Проверил
Видус
Видус
ГИП
Н. контр.
Видус
Дата
Складской комплекс ООО «Хавейл Мотор Мануфэкчуринг Рус» по адресу:
Тульская область, Узловский район, тер. Индустриальный парк, ул. Индустриальная, здание 11к1
07.25
07.25
07.25
07.25
Система пожарной сигнализации (СПС),
зоны склада
Стадия
Лист
Листов
Р
6
12
План расположения оборудования и
проводок СОУЭ световое
Формат А1

23.

Экспликация помещений (без АБЧ)
№ пом.
План на отм. +0.000
144560
84560
12
14
13
ЛМП-3
И
21
Ж
3BIAD2.6 (6Вт)
3BIAD2.7 (6Вт)
22
BIAD2.15 (6Вт)
1600
1979
3
3BIAD2.8 (6Вт)
12420
6000
3BIAD2.3 (6Вт)
15
10
3BIAD2.4 (6Вт)
3BIAD2.2(6Вт)
3BIAD2.5 (20Вт)
BIAD2.15 (10Вт)
3BIAD2.1 (20Вт)
2500
BIAD2.15 (6Вт) BIAD2.15 (3Вт)
BIAD2.15 (6Вт)
BIAD2.15 (6Вт)
BIAD2.15 (6Вт)
BIAD2.15 (6Вт) BIAD2.15 (6Вт)
815
ЛМП-3
4BIAD3.17 (10Вт)
3BIAD1.8 (20Вт)
11
4BIAD3.12 (10Вт)
4BIAD3.16 (10Вт)
BIAD2.15 (10Вт)
BIAD2.15 (10Вт)
1775
17
BIAD2.15 (6Вт)
4BIAD3.5 (10Вт)
18
20
19
4BIAD3.11 (10Вт)
4BIAD3.14 (10Вт)
1580
500
4BIAD3.10 (10Вт)
4BIAD3.8 (6Вт)
500
1303
4BIAD3.7(6Вт)
16
4BIAD3.4 (10Вт)
1520
740
4BIAD3.15 (10Вт)
1520
4BIAD3.13 (10Вт)
740
740
4BIAD3.9 (10Вт)
1520
740
1000
2
23
3000
30560
1250
24000
4BIAD3.6 (6Вт)
BIAD2.15 (10Вт)
3000
3BIAD1.3(10Вт)
3BIAD1.2 (10Вт)
4BIAD1.10 (10Вт)
1250
3BIAD1.4 (10Вт)
3BIAD1.7(20Вт)
3BIAD1.1 (10Вт)
1520
3BIAD3.12 (6Вт)
S3.3
на 2 этаж
S3.3
3BIAD3.11 (6Вт)
625
7
1520
6
8
на 2 этаж
S3.3.1
3BIAD3.13 (6Вт)
3BIAD3.10 (6Вт)
1225
3000
1225
4BIAD1.9 (10Вт)
4BIAD1.8 (10Вт)
4BIAD1.7 (10Вт)
1360
2000
2000
2000
2000
2000
2BIAD4.7 (10Вт)
2BIAD4.8(10Вт)
2BIAD4.6 (10Вт)
2000
2000
1300
1520
2000
S2.4
2000
2000
430
1000
450
3000
620
5BIAD1.7 (20Вт)
2BIAD4.5 (10Вт)
5BIAD1.8 (20Вт)
4200
2BIAD4.10 (10Вт)
4BIAD1.6 (10Вт)
600
4200
5
ЛМП-3
4200
625
3BIAD3.9 (6Вт)
BIAD2.15 (3Вт)
600
Е
4
3BIAD3.7 (6Вт)
3BIAD1.5(20Вт)
1640
3BIAD3.8 (6Вт)
3BIAD1.6 (20Вт)
BIAD2.15 (3Вт)
600
1360
24000
1360
800
250
600
5BIAD1.6 (20Вт)
2BIAD4.4(10Вт)
4BIAD3.3 (10Вт)
5BIAD1.5 (10Вт)
2BIAD1.10 (10Вт)
Д
2BIAD4.9 (10Вт)
2BIAD3.6 (20Вт)
2BIAD3.5 (20Вт)
2BIAD3.2 (20Вт)
5BIAD2.9 (20Вт)
4BIAD1.5 (10Вт)
5BIAD2.8 (20Вт)
24000
S2.4
150000
2BIAD4.3 (10Вт)
2BIAD1.9 (10Вт)
2BIAD2.8 (10Вт)
2BIAD2.7(10Вт)
S2.3
2BIAD3.4 (20Вт)
2BIAD3.3 (20Вт)
5BIAD1.4 (20Вт)
5BIAD2.6(20Вт)
5BIAD2.7 (10Вт)
4BIAD1.3 (10Вт)
Кат.
Класс зоны
Площадь, помещения по по ПУЭ/СП
СП
423.1325800
м²
12.13130.2009
.2018
Наименование
Этаж 1
1
Цех механической обработки
14749.6
2
Цех термообработки
2815.7
Станция охлаждения,
3
292.2
компрессорная станция
4
Помещене точных измерений
161.9
Буферная зона помещения
5
29.0
точных измерений
Зона резки в
6
22.9
металлографической камере
Зона подготовки и испытания
образцов в металлографической
7
95.4
камере
Помещение для демонтажа
8
29.8
коробок передач
10 Помещение сероочистки
97.0
11 Помещение с кулером для воды
3.5
12 Помещение для промывки
35.2
13 СУ
19.6
14 СУ
14.6
Помещение для сбора
15 металлической и алюминиевой
101.1
стружки
16 Тамбур
15.1
Помещение для обслуживания
17
47.1
оборудования
18 Склад запасных частей
198.6
19 Зона гидравлики
197.6
20 Зона разгрузки
68.5
21 СУ
18.3
22 СУ
14.4
23 Помещение с кулером для воды
4.1
24 Склад
5963.5
25 Цех сборки
6666.0
29 УУП+ТС
102.3
31762.9
Этаж 2
2
Цех термообработки
40.6
26 Электрощитовая
185.4
27 Венткамера
174.6
400.6
32163.5
В2
В1
П-IIa
П-I
В2
П-IIa
В2
П-IIa
В2
П-IIa
В2
П-IIa
№ пом.
Наименование
Этаж 1
2.01
2.02
2.03
2.04
2.05
2.06
2.07
Зона обмена
Тамбур
Гардероб персонала (мужской)
Сан. блок
Сан. блок
Гардероб персонала (женский)
Комната гигиены женщин
Помещение для настройки
инструментов
Подготовительная зона
лаборатории КИ
Лаборатория координатных
измерений (КИ)
СУ
Тамбур СУ
СУ
Тамбур
Переговорная комната
Демонтажный участок
Комната отдыха
Вестибюль
Тамбур
Переговорная
Учебный класс
Аналитическая лаборатория
Помещение отдыха
Лаборатория анализа
образцов
Помещение забора образцов
Гардеробная
Моечная
Помещение для внешнего
осмотра
Тамбур СУ
СУ
СУ
Тамбур
ЛК
Помещение маркировки
2.08
В2
П-IIa
2.09
В2
П-IIa
2.10
Д
Д
-
-
Д
-
-
-
Д
-
В3
В3
В1
В3
В2
Д
П-IIa
П-IIa
П-I
П-IIa
П-IIa
-
2.11
2.12
2.13
2.14
2.15
2.16
2.17
2.18
2.19
2.20
2.21
2.22
2.23
В1
В4
В1
2.24
2.25
2.26
2.27
2.28
2.29
2.30
2.31
2.32
2.33
2.34
П-I
П-IIa
П-I
Кат.
Класс
помещения зоны по
Площадь,
по СП
ПУЭ/СП
м²
12.13130.20 423.13258
09
00.2018
200.1
23.0
97.0
28.4
27.9
116.0
16.0
Д
-
-
31.1
Д
-
48.0
В3
П-IIa
204.3
В3
П-IIa
17.8
15.4
21.8
28.6
49.3
38.9
41.5
70.1
19.0
30.4
48.0
76.8
28.1
Д
В4
-
П-IIa
-
51.3
В4
П-IIa
27.1
12.2
14.2
В4
-
П-IIa
-
72.8
В4
П-IIa
14.7
15.9
21.4
27.0
21.2
97.7
1652.8
1652.8
В4
П-IIa
4BIAD2.5 (10Вт)
750
4000
138560
750
Г
4BIAD3.2 (10Вт)
Экспликация помещений АБЧ на отм. 0.000
25
24000
1
24
750
114560
2BIAD4.2 (10Вт)
4000
План на отм. +4.800
S5.2
2BIAD2.9 (20Вт)
2BIAD3.1 (20Вт)
5BIAD2.5 (10Вт)
5BIAD2.4 (10Вт)
4BIAD2.4(10Вт)
4BIAD3.1 (10Вт)
750
4000
750
2BIAD2.6(10Вт)
750
2BIAD1.8(10Вт)
В
5000
24000
S5.1
4BIAD1.2 (10Вт)
2BIAD4.1(10Вт)
3BIAD3.5 (6Вт)
26
+4.800
3BIAD3.6 (6Вт)
на 1 этаж
S3.3
SL3.1.3
273BIAD3.2 (6Вт)
3BIAD3.3 (6Вт)
3BIAD3.4 (6Вт)
3BIAD3.1 (6Вт)
Е
S4.1
на 1 этаж
S3.3.1
2BIAD1.7(10Вт)
6000
2BIAD2.3 (10Вт)
S2.2
2BIAD2.2 (10Вт)
S4.2
5BIAD1.3 (20Вт)
2BIAD2.1 (10Вт)
5BIAD2.3 (10Вт)
5BIAD2.2 (10Вт)
4BIAD1.1 (10Вт)
1360
16000
2BIAD2.4 (10Вт)
6
4BIAD2.3 (10Вт)
3000
2BIAD1.4 (10Вт)
2000
2BIAD1.3(10Вт)
2BIAD1.2 (10Вт)
1520
1520
740
1520
1000
2BIAD1.1 (10Вт)
8
12000
9
12000
10
12000
11
12
3000
1000
1520
1520
5BIAD1.2 (10Вт)
1520
5BIAD1.1 (10Вт)
1000
S4.2S4.3
1520
1520
1520
4BIAD2.2 (6Вт)
1534
1641
2.25
2.28
1000
2.08
2.10
2.09
2.15
1682
2.16
2.17
2.18
2.20
1640
1648
2.21
2.22
2.34
1520
2.23
1575
2.24
29
1400
1520
2.06
1200
2.03
2.32
8900
1360
1520
2050
А/1
1000
4BIAD2.1(10Вт)
1520
1520
1225
2400
1225
S2.1
1520
1520
8000
7
12000
1225
1225
2.29
2.14
3000
2.12
2BIAD1.5 (10Вт)
2.01
12000
5BIAD2.1 (10Вт)
2.02
2BIAD1.6 (10Вт)
12000
1360
2BIAD2.5 (10Вт)
Б
S2.3
500
1725
500
А
2.04
2.05
2.07
2.11
2.26 2.27
2.13
42560
2.31
2.33
138000
48560
2.19
ЛМП-3
12000
2.30
12000
12000
12000
12000
12000
12000
12000
12000
12000
ЛМП-3
12000
12000
12000
12000
12000
12000
12000
12000
12000
228000
2
3
4
5
6
7
8
9
10
11
12
13
14
15
16
17
18
19
20
Инв. № подл.
Подп. и дата
Взам. инв. №
Согласовано:
1
502/1-2/25-ПС1
Изм. Кол.уч Лист № док. Подп.
Крюкова
Разраб.
Проверил
Видус
Видус
ГИП
Н. контр.
Видус
Дата
Складской комплекс ООО «Хавейл Мотор Мануфэкчуринг Рус» по адресу:
Тульская область, Узловский район, тер. Индустриальный парк, ул. Индустриальная, здание 11к1
07.25
07.25
07.25
07.25
Система пожарной сигнализации (СПС),
зоны склада
Стадия
Лист
Листов
Р
7
12
План расположения оборудования и
проводок СОУЭ речевое
Формат А1

24.

Экспликация помещений (без АБЧ)
№ пом.
План на 144560
отм. +0.000
84560
12
14
13
ЛМП-3
15
10
17
815
2500
1775
18
ЛМП-3
20
19
1580
500
Х21.1;Х21.2;
Х22.1;Х22.2;
Х23.1;Х23.2;
Х24.1;Х24.2;
500
1303
NL5.19-20
Х17.1;Х17.2;
Х18.1;Х18.2;
Х19.1;Х19.2;
Х20.1;Х20.2;
1000
1100
1000
960
1000
400
275
SHA№6.1
Z6.1;Z6.2
SHK№6
NL6.23-24
PL6.23-24
1250
3000
1520
1520
1640
5
6
7
8
1225
3000
1225
2000
2000
2000
2000
2000
1300
2000
2000
2000
430
1000
450
3000
620
1520
ЛМП-3
№10
24000
№14
Люк дымовой
ДЫМОЗОР-300
Д
1360
1360
800
250
2000
4200
2000
600
SHA№5.1
Z5.1;Z5.2
1360
540
№21
Люк дымовой NL6.21-22PL6.21-22
ДЫМОЗОР-300
600
625
1000
№22
Люк дымовой
ДЫМОЗОР-300
600
4200
740
1520
4200
SHK№5
625
23
740
740
Люк дымовой
ДЫМОЗОР-300
№20
4
Е
1520
1250
ДЫМОЗОР-300
№17
Люк дымовой
ДЫМОЗОР-300
№19
740
600
NL5.17-18
PL5.19-20
1520
3000
2
PL5.17-18 Люк дымовой
Люк дымовой
ДЫМОЗОР-300
№18
16
1520
24000
11
30560
Ж
22
1600
1979
3
21
12420
6000
И
№33
Люк дымовой
ДЫМОЗОР-300
Люк дымовой
ДЫМОЗОР-300
№35
Люк дымовой
ДЫМОЗОР-300
№23
Люк дымовой
ДЫМОЗОР-300
Х13.1;Х13.2;
Х14.1;Х14.2;
SHA№4.1
PL4.13-14
Z4.1;Z4.2
Х9.1;Х9.2;
Х10.1;Х10.2;
SHK№4
NL4.13-14
24000
№13
Люк дымовой
ДЫМОЗОР-300
№11
Люк дымовой
ДЫМОЗОР-300
№9
Люк дымовой
ДЫМОЗОР-300
NL3.9-10 PL3.9-10
Z3.1;Z3.2
NL3.11-12 PL3.11-12
SHK№3
ШПС№2.2
Х32.1;Х32.2;
Х33.1;Х33.2;
NL9.34-35PL9.34-35
Х15.1;Х15.2;
Х16.1;Х16.2;
Х11.1;Х11.2;
Х12.1;Х12.2;
№24
№34
Люк дымовой
ДЫМОЗОР-300
№32
Люк дымовой
PL9.32-33
ДЫМОЗОР-300
NL9.32-33
Люк дымовой
ДЫМОЗОР-300
Х34.1;Х35.2;
Х34.1;Х35.2;
Наименование
Экспликация помещений АБЧ на отм. 0.000
Кат.
Класс зоны
Площадь, помещения по по ПУЭ/СП
СП
423.1325800
м²
12.13130.2009
.2018
Этаж 1
1
Цех механической обработки
14749.6
2
Цех термообработки
2815.7
Станция охлаждения,
3
292.2
компрессорная станция
4
Помещене точных измерений
161.9
Буферная зона помещения
5
29.0
точных измерений
Зона резки в
6
22.9
металлографической камере
Зона подготовки и испытания
образцов в металлографической
7
95.4
камере
Помещение для демонтажа
8
29.8
коробок передач
10 Помещение сероочистки
97.0
11 Помещение с кулером для воды
3.5
12 Помещение для промывки
35.2
13 СУ
19.6
14 СУ
14.6
Помещение для сбора
15 металлической и алюминиевой
101.1
стружки
16 Тамбур
15.1
Помещение для обслуживания
17
47.1
оборудования
18 Склад запасных частей
198.6
19 Зона гидравлики
197.6
20 Зона разгрузки
68.5
21 СУ
18.3
22 СУ
14.4
23 Помещение с кулером для воды
4.1
24 Склад
5963.5
25 Цех сборки
6666.0
29 УУП+ТС
102.3
31762.9
Этаж 2
2
Цех термообработки
40.6
26 Электрощитовая
185.4
27 Венткамера
174.6
400.6
32163.5
В2
В1
П-IIa
П-I
В2
П-IIa
В2
П-IIa
В2
П-IIa
В2
П-IIa
№ пом.
Этаж 1
2.01
2.02
2.03
2.04
2.05
2.06
2.07
2.08
В2
П-IIa
2.09
В2
П-IIa
2.10
Д
Д
-
-
Д
-
-
-
Д
-
В3
В3
В1
В3
В2
Д
П-IIa
П-IIa
П-I
П-IIa
П-IIa
-
2.11
2.12
2.13
2.14
2.15
2.16
2.17
2.18
2.19
2.20
2.21
2.22
2.23
В1
В4
В1
П-I
П-IIa
П-I
2.24
2.25
2.26
2.27
2.28
2.29
2.30
2.31
2.32
2.33
2.34
Наименование
Зона обмена
Тамбур
Гардероб персонала (мужской)
Сан. блок
Сан. блок
Гардероб персонала (женский)
Комната гигиены женщин
Помещение для настройки
инструментов
Подготовительная зона
лаборатории КИ
Лаборатория координатных
измерений (КИ)
СУ
Тамбур СУ
СУ
Тамбур
Переговорная комната
Демонтажный участок
Комната отдыха
Вестибюль
Тамбур
Переговорная
Учебный класс
Аналитическая лаборатория
Помещение отдыха
Лаборатория анализа
образцов
Помещение забора образцов
Гардеробная
Моечная
Помещение для внешнего
осмотра
Тамбур СУ
СУ
СУ
Тамбур
ЛК
Помещение маркировки
150000
SHK№9
Z9.1;Z9.2
Кат.
Класс
помещения зоны по
Площадь,
по СП
ПУЭ/СП
м²
12.13130.20 423.13258
09
00.2018
200.1
23.0
97.0
28.4
27.9
116.0
16.0
Д
-
-
31.1
Д
-
48.0
В3
П-IIa
204.3
В3
П-IIa
17.8
15.4
21.8
28.6
49.3
38.9
41.5
70.1
19.0
30.4
48.0
76.8
28.1
Д
В4
-
П-IIa
-
51.3
В4
П-IIa
27.1
12.2
14.2
В4
-
П-IIa
-
72.8
В4
П-IIa
14.7
15.9
21.4
27.0
21.2
97.7
1652.8
1652.8
В4
П-IIa
SHA№8.1
Z8.1;Z8.2
SHK№8
Х30.1;Х30.2;
Х31.1;Х31.2;
750
Х28.1;Х28.2;
Х29.1;Х29.2;
4000
138560
750
Г
NL8.30-31PL8.30-31
1
24
PL4.15-16
Люк дымовой
ДЫМОЗОР-300
№16
Люк дымовой
ДЫМОЗОР-300
№8
Люк дымовой
ДЫМОЗОР-300
№5
Люк дымовой
ДЫМОЗОР-300
№6
Люк дымовой
ДЫМОЗОР-300
№7
Люк дымовой PL2.7-8
ДЫМОЗОР-300
PL8.28-29
NL8.28-29
Люк дымовой
ДЫМОЗОР-300
№28
Люк дымовой
ДЫМОЗОР-300
№30
№29
Люк дымовой
ДЫМОЗОР-300
№31
Люк дымовой
ДЫМОЗОР-300
Люк дымовой
ДЫМОЗОР-300
№27
750
4000
750
NL4.15-16
114560
24000
№12
Люк дымовой
ДЫМОЗОР-300
№15
750
4000
750
В
24000
NL2.7-8
Люк дымовой
ДЫМОЗОР-300
№26
25
PL2.5-6
NL2.5-6
NL7.27
NL7.25-26
PL7.27
PL7.25-26
1360
2.02
№3
PL1.3-4
Х3.1;Х3.2;
Х2.1;Х2.2; NL1.1-2
1520
Х.4.1;Х.4.2
№4
Люк дымовой
ДЫМОЗОР-300
PL1.3-4
Люк дымовой NL1.1-2
ДЫМОЗОР-300
2.29
Х.4.1;Х.4.2
Х25.1;Х25.2;
Х26.1;Х26.2;
Х27.1;Х27.2;
Люк дымовой
ДЫМОЗОР-300
1225
PL1.1-2
3000
№2
Люк дымовой
ДЫМОЗОР-300
1225
№1
Люк дымовой
ДЫМОЗОР-300
3000
16000
Б
1360
Х5.1;Х5.2;
Х6.1;Х6.2;
Х7.1;Х7.2;
Х8.1;Х8.2;
№25
3000
1520
Y2.1;Y2.2
1000
1000
1520
1520
1520
1000
1520
2.25
2.10
2.09
2.15
1682
2.16
2.17
2.18
2.20
1640
1648
2.21
2.22
2.34
1520
2.23
1575
2.24
29
1400
1520
2.08
1200
2.06
SHA№7.1
2.32
2.28
1000
2.03
1520
Z7.1;Z7.2
1534
2.01
1520
Z2.1;Z2.2
1641
8000
1520
1520
SHK№7
1000
1360
2050
ШПС№2.1 Z1.1;Z1.2
1520
1520
8900
А/1
SHK№2
1520
2000
1225
1520
1520
SHK№1
Х1.1;Х1.2;
740
1225
1520
2400
500
1725
500
А
2.04
2.05
2.07
2.11
2.26 2.27
2.13
42560
12000
12000
12000
12000
12000
12000
2.33
48560
2.19
ЛМП-3
2.14
12000
2.31
138000
2.12
ЛМП-3
12000
2.30
12000
12000
12000
12000
12000
12000
12000
12000
12000
12000
12000
228000
2
3
4
5
6
7
8
9
10
11
12
13
14
15
16
17
18
19
20
Инв. № подл.
Подп. и дата
Взам. инв. №
Согласовано:
1
502/1-2/25-ПС1
Изм. Кол.уч Лист № док. Подп.
Крюкова
Разраб.
Проверил
Видус
Видус
ГИП
Н. контр.
Видус
Дата
Складской комплекс ООО «Хавейл Мотор Мануфэкчуринг Рус» по адресу:
Тульская область, Узловский район, тер. Индустриальный парк, ул. Индустриальная, здание 11к1
07.25
07.25
07.25
07.25
Система пожарной сигнализации (СПС),
зоны склада
Стадия
Лист
Листов
Р
8
12
План расположения оборудования и
проводок ДУ
Формат А1

25.

ШПС№2.2
РАБОТА
ШПС№2.1
РАБОТА
РАБОТА
SHA№4.1
SHA№2.1
РАБОТА
РАБОТА
ОБМЕН
РАБОТА
ОБМЕН
1
МАССА
1
МАССА
2
ДАВЛЕНИЕ
РАБОТА
2
ДАВЛЕНИЕ
3
4
3
4
5
5
6
6
С2000-СП2
С2000-КПБ
С2000-СП2
РАБОТА
РАБОТА
РАБОТА
RS-485
RS-485
RS-485
ЛИНИЯ
ЛИНИЯ
ЛИНИЯ
BOLID
С2000-СП2
BOLID
РАБОТА
РАБОТА
С2000-АР8
С2000-АР8
С2000-КДЛ
С2000-КДЛ
РАБОТА
РАБОТА
РАБОТА
РАБОТА
С2000-АР8
С2000-АР8
С2000-АР8
С2000-АР8
3
вкл
2
4
1
1
вкл
вкл
МИП-12
С2000-КПБ
BOLID
С2000-КДЛ
1
С2000-СП2
С2000-СП2
БК-12
3
вкл
2
2
вкл
4
1
1
МИП-12
вкл
БК-12
3
вкл
вкл
4
2
2
1
вкл
МИП-12
2
ШПС№4.2
ШПС№3.1
SHA№5.1
РАБОТА
РАБОТА
ОБМЕН
1
МАССА
2
ДАВЛЕНИЕ
БК-12
SHA№6.1
РАБОТА
РАБОТА
РАБОТА
С2000-СП2
С2000-СП2
С2000-СП2
РАБОТА
3
4
5
6
С2000-СП2
С2000-КПБ
С2000-СП2
РАБОТА
RS-485
ЛИНИЯ
РАБОТА
RS-485
RS-485
ЛИНИЯ
ЛИНИЯ
BOLID
С2000-КПБ
РАБОТА
РАБОТА
С2000-АР8
С2000-АР8
С2000-АР8
РАБОТА
С2000-АР8
1
1
3
3
вкл
вкл
МИП-12
БК-12
вкл
вкл
вкл
МИП-12
4
вкл
МИП-12
БК-12
4
2
2
Взам. инв. №
Согласовано:
2
вкл
БК-12
2
2
1
1
вкл
4
5
С2000-КДЛ
1
2
РАБОТА
С2000-КДЛ
С2000-АР8
вкл
ДАВЛЕНИЕ
6
УК-ВК
РАБОТА
3
МАССА
2
BOLID
С2000-КДЛ
1
ОБМЕН
1
3
4
BOLID
РАБОТА
РАБОТА
Инв. № подл.
Подп. и дата
Примечание: Схему расположения оборудования в ШК1-13 см проект 502/1-2/25ПС1.АПИ
502/1-2/25-ПС1
Изм. Кол.уч Лист № док. Подп.
Крюкова
Разраб.
Проверил
Видус
Видус
ГИП
Н. контр.
Дата
Складской комплекс ООО «Хавейл Мотор Мануфэкчуринг Рус» по адресу:
Тульская область, Узловский район, тер. Индустриальный парк, ул. Индустриальная, здание 11к1
07.25
07.25
07.25
Система пожарной сигнализации (СПС),
зоны склада
Стадия
Лист
Листов
Р
9
12
Схема расположения оборудования в
шкафах
Видус
07.25
Формат А1

26.

ШПС№4.1
SHA№7.1
ШПС№4.1
SHA№7.1
РАБОТА
УК-ВК
РАБОТА
УК-ВК
С2000-СП2
С2000-СП2
РАБОТА
РАБОТА
ОБМЕН
1
МАССА
2
ДАВЛЕНИЕ
RS-485
ЛИНИЯ
РАБОТА
РАБОТА
РАБОТА
BOLID
РАБОТА
РАБОТА
С2000-АР8
С2000-АР8
РАБОТА
РАБОТА
С2000-АР8
С2000-АР8
5
6
С2000-КПБ
С2000-АР8
С2000-АР8
РАБОТА
С2000-КПБ
РАБОТА
С2000-АР8
С2000-АР8
1
1
вкл
МИП-12
вкл
3
1
БК-12
вкл
4
2
ДАВЛЕНИЕ
3
4
С2000-КДЛ
вкл
МАССА
2
BOLID
6
3
ОБМЕН
1
ЛИНИЯ
5
С2000-КДЛ
1
РАБОТА
RS-485
3
4
вкл
МИП-12
вкл
БК-12
2
4
2
ШПС№5.1
2
SHA№8.1
ШПС№5.1
SHA№8.1
РАБОТА
РАБОТА
С2000-СП2
С2000-СП2
РАБОТА
РАБОТА
РАБОТА
RS-485
ЛИНИЯ
РАБОТА
RS-485
РАБОТА
ЛИНИЯ
RS-485
РАБОТА
РАБОТА
РАБОТА
С2000-АР8
С2000-АР8
RS-485
ЛИНИЯ
BOLID
ЛИНИЯ
BOLID
С2000-КДЛ
С2000-АР8
С2000-КДЛ
С2000-АР8
С2000-КДЛ
РАБОТА
РАБОТА
ОБМЕН
1
МАССА
2
ДАВЛЕНИЕ
С2000-КДЛ
РАБОТА
РАБОТА
ОБМЕН
1
МАССА
2
ДАВЛЕНИЕ
3
4
3
4
5
6
5
6
С2000-КПБ
С2000-АР8
С2000-КПБ
С2000-АР8
1
3
1
1
3
1
1
вкл
вкл
МИП-12
вкл
БК-12
вкл
вкл
МИП-12
вкл
3
БК-12
вкл
4
2
2
2
4
1
1
вкл
МИП-12
вкл
БК-12
3
вкл
1
вкл
вкл
МИП-12
БК-12
2
4
2
2
2
4
2
Схема подключения SHA
ХТ1
11+
22+
33+
44+
55+
66+
А
В
Uo+ ХТ2

Uр+

ШС1+
ШС1ШС2+
ШС2-
"С2000-КПБ"
Подключение нескольких табло световых
Схема подключения ШПС-12 исп.10
черн.
3 черн.
2
«0» и «+U» - подключение цепей питания потребителей
Выходы XT1 ... XT6 - 0,6А (макс.)
Выход XP3 - 1,0А (макс.)
Суммарный ток на все выходы - 3,0А (макс.)
«A1», «B1» - подключение линии 1 RS-485
«A2», «B2» - подключение линии 2 RS-485
Линии 1 и 2 изолированы от линий "А", "В" и между собой.
4
3
2
1

+U
А
В
ХТ2
ХТ3
ХТ4
ХТ5
ХТ6
ХP2
ХP3
ХP6
ХP8
ХP7
ХP9
А2
В2
0В 2
1
2
3
ХP1
4
3
2
1
"МИП-12"
0
+U
А
В
А1
ХТ1
А2
В2
0В 2
3 1
1
1
2
3
3
4
3
2
1
1
0
+U
А
В
1 1 1
12 В, 17 Ач
4 3 2 1
ХР2
3 2 1
220В, 50 Гц
1 0,6 А
А1
В1
0В 1
+
1
2
3
Датчик
вскрытия
4
3
2
1
4
3
2
1

+U
А
В
А2
В2
0В 2
1
2
3
Откл.
вентиляции
0
+U
А
В
4
3
2
1
0
+U
А
В
А2
В2
0В 2
1
2
3
А1
В1
0В 1
4
3
2
1
0
+U
А
В
1
2
3
Общее реле
Норм.разм.реле
1
2
3
Х1
Норм.замк.реле
4
3
2
1
4
3
2
1
0
+U
А
В
Изолированный
интерфейс
RS-485
№2
3
Упр Упр +
0
+U
А
В
4
3
2
1
0
+U
А
В
А1
В1
0В 1
черн. 2
4
3
В
А
+U

-
"БК-12
RS-485"
1
2
3
4
12 В, 17 Ач
+
Х2
ХТ1
-
4
3
2
1
-
Х3
ХP9
4
0
+U
А
В
Х4
ХP7
красн. 1
+
SB1
Красный
3 черн.
В
А
Синий
А4
Термодатчик
черн. 2
Нейтраль
Фаза
Синий
ХP8
Изолированный
интерфейс RS-485 №1
Выход
оптореле
"Авария"
Красный
ХТ5
1 2
ХP6
1
2
3
1 2
ХТ6
А1
В1
0В 1
ХР6
1 2
ХТ5
1
2
3
ХР7
ХТ4
В
А
+U

ХР4
1 2 3 4
ХТ3
ХP3
4 бел.
1
2
3
220 В, 50 Гц
QF2
2 2
ХТ2
ХP2
красн. 1
"УК-ВК исп. 02"
ХТ1.2
ХТ1.1
N L
QF1
4
2
ХТ3.2 "N"
ХТ3.1 "L"
8
ХТ2
Заземление
Нейтраль
Фаза
РЕ
4
2
ХP1
VD''
4 бел.
кр. 1
А3
ХТ1.3
Взам. инв. №
1
Согласовано:
2 2 2
"МИП-12"
ХТ1
1
2
3
4
А1
VD''
4 бел.
-
4
3
2
1
3 1
1
1
VD'
+
0
+U
А
В
3
В
А
1
1
2
3
1 1 1
4 3 2 1
ХР2
3 2 1
220В, 50 Гц
1 0,6 А

+Uin
ХТ1.2
ХТ1.1
ХТ1.3
Нейтраль
Фаза
потребители (до 10А)
1
2
3
Дополнительные
красн.
3 черный
2
VD'
Инв. № подл.
РЕ
N L
220 В, 50 Гц
QF1
4
QF2
2 2
ХР4
ХР7
ХР6
1 2 3 4
1 2
1 2
Красный
Синий
Синий
А4
Термодатчик
SB1
Красный
Х4
-
12 В, 17 Ач
Х3
+
Х2
-
ХТ5
1 2
Х1
Датчик
вскрытия

+Uin
2
1
2
3
4
Выход
оптореле
"Авария"
2
ХТ3.2 "N"
ХТ3.1 "L"
8
Порядок выключения
1. Отключить внешнее питание 220 В
2. Выключить автоматы QF1 и QF2
3. Отсоединить клеммы от батарей
ХТ2
1. Подключить защитное заземление к клемме XT1.3:2
2. Установку и замену батарей производить при отключенном напряжении 220 В и выключенном автомате QF1
Порядок включения
1. Подключить батареи согласно схеме
2. Подключить ШПС к сети 220 В (фаза - к XT1.1:2), включить внешнее питание 220В
3. Включить автоматы QF1 и QF2
Заземление
Нейтраль
Фаза
2 2 2
Во избежание поражения электрическим током
1
Подп. и дата
ВНИМАНИЕ !
Изолированный
интерфейс RS-485 №1
А3
"БК-12
RS-485"
502/1-2/25-ПС1
Изолированный
интерфейс RS-485 №2
Изм. Кол.уч Лист № док. Подп.
Крюкова
Разраб.
Проверил
Видус
Видус
ГИП
Дата
07.25
07.25
07.25
+
Видус
Система пожарной сигнализации (СПС),
зоны склада
Стадия
Лист
Листов
Р
10
12
Схема расположения оборудования и
подключения ШПС-12 исп.12 и SHA
12 В, 17 Ач
Н. контр.
Складской комплекс ООО «Хавейл Мотор Мануфэкчуринг Рус» по адресу:
Тульская область, Узловский район, тер. Индустриальный парк, ул. Индустриальная, здание 11к1
07.25
Формат А1

27.

Ввод 380В 50±1 Гц
см. ЭС
ШКП-10RS
N
КМ1
1
3
5
2
4
6
1
3
5
2
4
6
1
2
3 10 11 12 13 14 15 16 17 18 19 20 21 22 23 24 25 26 27 28 29 30 31 32
Инв. № подл.
Подп. и дата
Взам. инв. №
Реле 3
ЭМ
RS-485(A2)
RS-485(B2)
RS-485(A1)
RS-485(B1)
С
В
А
Согласовано:
ППГнг(А)-FRHF 4x2,5
0B
QF
Реле 4
А
SHP2.1.15
С
В
ШС4...ШС10
КОПСЭнг(А)-FRHF 1х2х0.8
КОПСЭнг(А)-FRHF 1х2х0.8
Вентилятор
N=5,18кВт U=380В
502/1-2/25-ПС1
Изм. Кол.уч Лист № док. Подп.
Крюкова
Разраб.
Проверил
Видус
Видус
ГИП
Н. контр.
Видус
Дата
Складской комплекс ООО «Хавейл Мотор Мануфэкчуринг Рус» по адресу:
Тульская область, Узловский район, тер. Индустриальный парк, ул. Индустриальная, здание 11к1
07.25
07.25
07.25
Система пожарной сигнализации (СПС),
зоны склада
Стадия
Лист
Листов
Р
10
12
Схема подключения вентилятора к
ШКП-10RS
07.25
Формат А3

28.

Несущая конструкция
перекрытия
150 мм (min.)
Схема установки световых и звуковых оповещателей
Уровень потолка
LPA
Кристалл-12
Кристплл-12
min 500мм
Монтажный комплект М
2300 мм
ИПР 513-3АМ ИСП.01 IP67
2000 мм (min.)
не менее 750 мм
1500 мм±0.1м
Перегородка
25...600 (150)мм
100 мм
Размещение точечного пожарного извещателя на перекрытии
Инв. № подл.
Подп. и дата
Взам. инв. №
Согласовано:
Уровень пола
502/1-2/25-ПС1
Изм. Кол.уч Лист № док. Подп.
Крюкова
Разраб.
Проверил
Видус
Видус
ГИП
Н. контр.
Видус
Дата
Складской комплекс ООО «Хавейл Мотор Мануфэкчуринг Рус» по адресу:
Тульская область, Узловский район, тер. Индустриальный парк, ул. Индустриальная, здание 11к1
07.25
07.25
07.25
Система пожарной сигнализации (СПС),
зоны склада
Стадия
Лист
Листов
Р
10
12
Схема установки оповещателей и
извещателей
07.25
Формат А3

29.

Расчет резервного электропитания оборудования беспроводной сети систем пожарной сигнализации и
оповещения для ШПС№2.1
Ток потрбеления Ток потребления
Суммарный ток
Суммарный ток
Кол-во.
в дежурном
в режиме
потребления в дежурном потребления в режиме
Тип прибора
(шт.)
режиме. (мА)
тревоги. (мА)
режиме. (мА)
тревога. (мА)
ШПС1-12 исп.12
1
200
200
200.000000
200.000000
С2000-КДЛ
2
80
160
160.000000
320.000000
С2000-СП4/220
1
15
20
15.000000
20.000000
С2000-КПБ
0
45
100
0.000000
0.000000
С2000-СП2
11
1
1
11.000000
11.000000
С2000-АР8
5
4
4
20.000000
20.000000
ДИП-34А-03
0
0.600
0.600
0.000000
0.000000
ДИП-34А-04
0
0.600
ИПР 513-3АМ
8
0.600
ИСП.01 IP67
УДП 513-3АМ
3
0.600
Кристалл-12
0
20.000
СПЖ
0
50
Всего:
Резерв на 24 часа:
Резерв на 1 час:
Всего c коэффициентом старения 1.25:
3.300
0.000000
0.000000
3.300
4.800000
26.400000
3.300
20.000
109
1.800000
0.000000
0
412.600000
9902.400000
9.900000
0.000000
0
607.300000
607.300000
13137
Требуемая емкость АКБ определена из условия работы системы 24 часа в дежурном режиме + 1 час в
режиме тревоги. Также учтен коэффициент эксплуатационного запаса емкости аккумулятора 1,2. В
качестве
источника
бесперебойного
питания
устанавливаются аккумуляторы 17 Ач-2шт.
Согласовано:
Расчет резервного электропитания оборудования беспроводной сети систем пожарной сигнализации и
оповещения для ШПС№2.2
Ток потрбеления Ток потребления
Суммарный ток
Суммарный ток
Кол-во.
в дежурном
в режиме
потребления в дежурном потребления в режиме
Тип прибора
(шт.)
режиме. (мА)
тревоги. (мА)
режиме. (мА)
тревога. (мА)
ШПС1-12 исп.12
1
200
200
200.000000
200.000000
2
80
160
160.000000
320.000000
С2000-СП4/220
1
15
20
15.000000
20.000000
С2000-СП2
11
1
1
11.000000
11.000000
С2000-АР8
ИПР 513-3АМ
ИСП.01 IP67
УДП 513-3АМ
5
4
4
20.000000
20.000000
7
0.600
3.300
4.200000
23.100000
1
0.600
3.300
0.600000
3.300000
С2000-КПБ
1
45
100
45.000000
100.000000
20.000
460.000000
915.800000
21979.200000
460.000000
1157.400000
Кристал-12
23
20.000
Всего:
Резерв на 24 часа:
Резерв на 1 час:
Всего c коэффициентом старения 1.25:
Взам. инв. №
Подп. и дата
Инв. № подл.
С2000-КДЛ
1157.400000
28921
Требуемая емкость АКБ определена из условия работы системы 24 часа в дежурном режиме + 1 час в
режиме тревоги. Также учтен коэффициент эксплуатационного запаса емкости аккумулятора 1,2. В
качестве
источника
бесперебойного
питания
устанавливаются аккумуляторы 17 Ач-2шт.
502/1-2/25-ПС1 .РР
Изм. Кол.уч Лист № док. Подп.
Крюкова
Разраб.
Проверил
Видус
Видус
ГИП
Н. контр.
Видус
Дата
Складской комплекс ООО «Хавейл Мотор Мануфэкчуринг Рус» по адресу:
Тульская область, Узловский район, тер. Индустриальный парк, ул. Индустриальная, здание 11к1
07.25
07.25
07.25
Система пожарной сигнализации (СПС),
зоны склада
Стадия
Лист
Листов
Р
1
124
Расчет резервированных источников
питания
07.25
Формат А4

30.

Расчет резервного электропитания оборудования беспроводной сети систем пожарной сигнализации и
оповещения для SHA№8.1
Ток потрбеления Ток потребления
Суммарный ток
Суммарный ток
Кол-во.
в дежурном
в режиме
потребления в дежурном потребления в режиме
Тип прибора
(шт.)
режиме. (мА)
тревоги. (мА)
режиме. (мА)
тревога. (мА)
БК-12-RS485-01
1
150
150
150.000000
150.000000
С2000-КПБ
Кристал-12
1
28
45
20.000
100
20.000
Всего:
Резерв на 24 часа:
Резерв на 1 час:
Всего c коэффициентом старения 1.25:
45.000000
560.000000
755.000000
18120.000000
100.000000
560.000000
810.000000
810.000000
23663
Требуемая емкость АКБ определена из условия работы системы 24 часа в дежурном режиме + 1 час в
режиме тревоги. Также учтен коэффициент эксплуатационного запаса емкости аккумулятора 1,2. В
качестве
источника
бесперебойного
питания
устанавливаются аккумуляторы 17 Ач-2шт.
Инв. № подл.
Подп. и дата
Взам. инв. №
Согласовано:
Расчет резервного электропитания оборудования беспроводной сети систем пожарной сигнализации и
оповещения для ШПС№3.1
Ток потрбеления Ток потребления
Суммарный ток
Суммарный ток
Кол-во.
в дежурном
в режиме
потребления в дежурном потребления в режиме
Тип прибора
(шт.)
режиме. (мА)
тревоги. (мА)
режиме. (мА)
тревога. (мА)
ШПС1-12 исп.12
1
200
200
200.000000
200.000000
С2000-КДЛ
2
80
160
160.000000
320.000000
С2000-СП4/220
1
15
20
15.000000
20.000000
С2000-СП2
11
1
1
11.000000
11.000000
С2000-АР8
ИПР 513-3АМ
ИСП.01 IP67
УДП 513-3АМ
5
4
4
20.000000
20.000000
17
0.600
3.300
10.200000
56.100000
3
0.600
3.300
1.800000
9.900000
С2000-СП2
7
1
1
7.000000
7.000000
С2000-АР8
3
4
4
12.000000
12.000000
ДИП-34А-03
6
0.600
0.600
3.600000
3.600000
ДИП-34А-04
11
0.600
3.300
6.600000
36.300000
С2000-СП4/220
2
15
20
30.000000
40.000000
109
150
627.200000
15052.800000
327
1062.900000
СПЖ
3
50
Всего:
Резерв на 24 часа:
Резерв на 1 час:
Всего c коэффициентом старения 1.25:
1062.900000
20145
Требуемая емкость АКБ определена из условия работы системы 24 часа в дежурном режиме + 1 час в
режиме тревоги. Также учтен коэффициент эксплуатационного запаса емкости аккумулятора 1,2. В
качестве
источника
бесперебойного
питания
устанавливаются аккумуляторы 17 Ач-2шт.
502/1-2/25-ПС1 .РР
Изм. Кол.уч Лист № док. Подп.
Крюкова
Разраб.
Проверил
Видус
Видус
ГИП
Н. контр.
Видус
Дата
Складской комплекс ООО «Хавейл Мотор Мануфэкчуринг Рус» по адресу:
Тульская область, Узловский район, тер. Индустриальный парк, ул. Индустриальная, здание 11к1
07.25
07.25
07.25
Система пожарной сигнализации (СПС),
зоны склада
Стадия
Лист
Листов
Р
2
125
Расчет резервированных источников
питания
07.25
Формат А4

31.

Расчет резервного электропитания оборудования беспроводной сети систем пожарной сигнализации и
оповещения для SHA№5.1
Ток потрбеления Ток потребления
Суммарный ток
Суммарный ток
Кол-во.
в дежурном
в режиме
потребления в дежурном потребления в режиме
Тип прибора
(шт.)
режиме. (мА)
тревоги. (мА)
режиме. (мА)
тревога. (мА)
БК-12-RS485-01
1
150
150
150.000000
150.000000
С2000-КПБ
Кристал-12
1
20
45
20.000
100
20.000
Всего:
Резерв на 24 часа:
Резерв на 1 час:
Всего c коэффициентом старения 1.25:
45.000000
400.000000
595.000000
14280.000000
100.000000
400.000000
650.000000
650.000000
18663
Требуемая емкость АКБ определена из условия работы системы 24 часа в дежурном режиме + 1 час в
режиме тревоги. Также учтен коэффициент эксплуатационного запаса емкости аккумулятора 1,2. В
качестве
источника
бесперебойного
питания
устанавливаются аккумуляторы 17 Ач-2шт.
Согласовано:
Расчет резервного электропитания оборудования беспроводной сети систем пожарной сигнализации и
оповещения для ШПС№4.1
Ток потрбеления Ток потребления
Суммарный ток
Суммарный ток
Кол-во.
в дежурном
в режиме
потребления в дежурном потребления в режиме
Тип прибора
(шт.)
режиме. (мА)
тревоги. (мА)
режиме. (мА)
тревога. (мА)
ШПС1-12 исп.12
1
200
200
200.000000
200.000000
1
80
160
80.000000
160.000000
С2000-СП4/220
2
15
20
30.000000
40.000000
С2000-СП2
9
1
1
9.000000
9.000000
С2000-АР8
3
4
4
12.000000
12.000000
С2000-АР2
ИПР 513-3АМ
ИСП.01 IP67
УДП 513-3АМ
6
1
1
6.000000
6.000000
4
0.600
3.300
2.400000
13.200000
2
0.600
3.300
1.200000
6.600000
ДИП-34А-03
2
0.600
0.600
1.200000
1.200000
ДИП-34А-04
2
0.600
3.300
1.200000
6.600000
СПЖ
1
50
109
50
109
С2000-КПБ
1
45
100
45.000000
100.000000
Кристал-12
15
20.000
20.000
300.000000
738.000000
17712.000000
300.000000
963.600000
Всего:
Резерв на 24 часа:
Резерв на 1 час:
Всего c коэффициентом старения 1.25:
Взам. инв. №
Подп. и дата
Инв. № подл.
С2000-КДЛ
963.600000
23344
Требуемая емкость АКБ определена из условия работы системы 24 часа в дежурном режиме + 1 час в
режиме тревоги. Также учтен коэффициент эксплуатационного запаса емкости аккумулятора 1,2. В
качестве
источника
бесперебойного
питания
устанавливаются аккумуляторы 17 Ач-2шт.
502/1-2/25-ПС1 .РР
Изм. Кол.уч Лист № док. Подп.
Крюкова
Разраб.
Проверил
Видус
Видус
ГИП
Н. контр.
Видус
Дата
Складской комплекс ООО «Хавейл Мотор Мануфэкчуринг Рус» по адресу:
Тульская область, Узловский район, тер. Индустриальный парк, ул. Индустриальная, здание 11к1
07.25
07.25
07.25
Система пожарной сигнализации (СПС),
зоны склада
Стадия
Лист
Листов
Р
2
125
Расчет резервированных источников
питания
07.25
Формат А4

32.

Расчет уровня звукового давления.
Инв. № подл.
Подп. и дата
Взам. инв. №
Согласовано:
К установке принимаются широкополосный настенный громкоговоритель LPA-6W и звуковой прожектор LPA-20P
Согласно СП 3.13130.2009 п. 4.1 Звуковые сигналы СОУЭ должны обеспечивать общий уровень звука (уровень звука постоянного
шума вместе со всеми сигналами, производимыми оповещателями) не менее 75 дБА на расстоянии 3 м от оповещателя, но не более 120
дБ в любой точке защищаемого помещения.
Согласно 4.2 Звуковые сигналы СОУЭ должны обеспечивать уровень звука не менее чем на 15 дБА выше допустимого уровня
звука постоянного шума в защищаемом помещении.
Для обеспечения заданного уровня сигнала оповещения во всем помещении, сигнал оповещателя должен превышать это
значение на величину затухания при его распространении в наиболее удаленную часть помещения. В технических характеристиках на
оповещатель LPA-6W и LPA-20P приводится уровень звукового сигнала на расстоянии 1 м, находящийся в пределах 102дБ(А) и 108
дБ(А) соответственно. Определение уровня сигнала на произвольном расстоянии производится сложением паспортного значения (на 1 м)
с величиной ослабления сигнала (со знаком "минус") для данного расстояния.
При расстановке звуковых оповещателей учитывалось, что снижение уровня сигнала в дБ(А) на расстоянии L в метрах,
относительно его величины на расстоянии 1м от оповещателя выражается формулой
r=10Lg(1/L2)
Расчеты дальности работы оповещателей приведены ниже.:
502/1-2/25-ПС1 .РР
Изм. Кол.уч Лист № док. Подп.
Крюкова
Разраб.
Проверил
Видус
Видус
ГИП
Дата
Н. контр.
07.25
Складской комплекс ООО «Хавейл Мотор Мануфэкчуринг Рус» по адресу:
Тульская область, Узловский район, тер. Индустриальный парк, ул. Индустриальная, здание 11к1
07.25
07.25
07.25
Система пожарной сигнализации (СПС),
зоны склада
Стадия
Лист
Листов
Р
2
125
Расчет речевых оповещателей
Видус
Формат А4

33.

Расчет резервного электропитания оборудования беспроводной сети систем пожарной сигнализации и
оповещения для SHA№2.1
Ток потрбеления Ток потребления
Суммарный ток
Суммарный ток
Кол-во.
в дежурном
в режиме
потребления в дежурном потребления в режиме
Тип прибора
(шт.)
режиме. (мА)
тревоги. (мА)
режиме. (мА)
тревога. (мА)
ШПС1-12 исп.12
1
200
200
200.000000
200.000000
С2000-КПБ
Кристал-12
1
39
45
20.000
100
20.000
Всего:
Резерв на 24 часа:
Резерв на 1 час:
Всего c коэффициентом старения 1.25:
45.000000
780.000000
1025.000000
24600.000000
100.000000
780.000000
1080.000000
1080.000000
32100
Требуемая емкость АКБ определена из условия работы системы 24 часа в дежурном режиме + 1 час в
режиме тревоги. Также учтен коэффициент эксплуатационного запаса емкости аккумулятора 1,2. В
качестве
источника
бесперебойного
питания
устанавливаются аккумуляторы 17 Ач-2шт.
Инв. № подл.
Подп. и дата
Взам. инв. №
Согласовано:
Расчет резервного электропитания оборудования беспроводной сети систем пожарной сигнализации и
оповещения для ШПС№5.1
Ток потрбеления Ток потребления
Суммарный ток
Суммарный ток
Кол-во.
в дежурном
в режиме
потребления в дежурном потребления в режиме
Тип прибора
(шт.)
режиме. (мА)
тревоги. (мА)
режиме. (мА)
тревога. (мА)
ШПС1-12 исп.12
1
200
200
200.000000
200.000000
С2000-КДЛ
2
80
160
160.000000
320.000000
С2000-СП4/220
1
15
20
15.000000
20.000000
С2000-СП2
12
1
1
12.000000
12.000000
С2000-АР8
3
4
4
12.000000
12.000000
С2000-АР2
ИПР 513-3АМ
ИСП.01 IP67
УДП 513-3АМ
2
1
1
2.000000
2.000000
13
0.600
3.300
7.800000
42.900000
4
0.600
3.300
2.400000
13.200000
СПЖ
1
50
Всего:
Резерв на 24 часа:
Резерв на 1 час:
Всего c коэффициентом старения 1.25:
109
50
461.200000
11068.800000
109
731.100000
731.100000
14750
Требуемая емкость АКБ определена из условия работы системы 24 часа в дежурном режиме + 1 час в
режиме тревоги. Также учтен коэффициент эксплуатационного запаса емкости аккумулятора 1,2. В
качестве
источника
бесперебойного
питания
устанавливаются аккумуляторы 17 Ач-2шт.
502/1-2/25-ПС1 .РР
Изм. Кол.уч Лист № док. Подп.
Крюкова
Разраб.
Проверил
Видус
Видус
ГИП
Н. контр.
Видус
Дата
Складской комплекс ООО «Хавейл Мотор Мануфэкчуринг Рус» по адресу:
Тульская область, Узловский район, тер. Индустриальный парк, ул. Индустриальная, здание 11к1
07.25
07.25
07.25
Система пожарной сигнализации (СПС),
зоны склада
Стадия
Лист
Листов
Р
5
125
Расчет резервированных источников
питания
07.25
Формат А4

34.

Расчет резервного электропитания оборудования беспроводной сети систем пожарной сигнализации и
оповещения для ШПС№4.2
Ток потрбеления Ток потребления
Суммарный ток
Суммарный ток
Кол-во.
в дежурном
в режиме
потребления в дежурном потребления в режиме
Тип прибора
(шт.)
режиме. (мА)
тревоги. (мА)
режиме. (мА)
тревога. (мА)
ШПС1-12 исп.12
1
200
200
200.000000
200.000000
С2000-КДЛ
1
80
160
80.000000
160.000000
С2000-СП4/220
1
15
20
15.000000
20.000000
С2000-СП2
14
1
1
14.000000
14.000000
С2000-АР8
3
4
4
12.000000
12.000000
С2000-АР2
ИПР 513-3АМ
ИСП.01 IP67
УДП 513-3АМ
8
1
1
8.000000
8.000000
8
0.600
3.300
4.800000
26.400000
3
0.600
3.300
1.800000
9.900000
ДИП-34А-03
2
0.600
0.600
1.200000
1.200000
СПЖ
4
50
109
200
436
С2000-КПБ
1
45
100
45.000000
100.000000
20.000
380.000000
961.800000
23083.200000
380.000000
1367.500000
Кристал-12
19
20.000
Всего:
Резерв на 24 часа:
Резерв на 1 час:
Всего c коэффициентом старения 1.25:
1367.500000
30563
Инв. № подл.
Подп. и дата
Взам. инв. №
Согласовано:
Требуемая емкость АКБ определена из условия работы системы 24 часа в дежурном режиме + 1 час в
режиме тревоги. Также учтен коэффициент эксплуатационного запаса емкости аккумулятора 1,2. В
качестве
источника
бесперебойного
питания
устанавливаются аккумуляторы 17 Ач-2шт.
502/1-2/25-ПС1 .РР
Изм. Кол.уч Лист № док. Подп.
Крюкова
Разраб.
Проверил
Видус
Видус
ГИП
Н. контр.
Видус
Дата
Складской комплекс ООО «Хавейл Мотор Мануфэкчуринг Рус» по адресу:
Тульская область, Узловский район, тер. Индустриальный парк, ул. Индустриальная, здание 11к1
07.25
07.25
07.25
Система пожарной сигнализации (СПС),
зоны склада
Стадия
Лист
Листов
Р
1
121
Расчет резервированных источников
питания
07.25
Формат А4

35.

Поз.
Наименование и техническая характеристика
1.
Оборудование
1.1.
Шкаф ШКВАЛ-ЛК
Шкаф с резервированным источником питания для монтажа
средств пожарной автоматики
Блок контрольно-пусковой
1.2.
Инв. № подл.
Подп. и дата
Взам. инв. №
Согласовано
1.3.
Тип, марка,
обозначение
документа,
опросного листа
Заводизготовитель,
поставщик
Ед.
измерения
Кол.
ШКВАЛ-ЛК-02-(ЦШ+ЦШ)-Х
Веза
шт.
9
ШПС-12 исп.12
Болид
шт.
6
ШКП-10RS
Болид
шт.
1
Код
продукции
1.4.
Контроллер двухпроводной линии связи
С2000-КДЛ
Болид
шт.
9
1.5.
Контрольно-пусковой блок
С2000-КПБ
Болид
шт.
6
1.6.
Блок сигнально-пусковой
С2000-СП2
Болид
шт.
30
1.7.
Блок сигнально-пусковой адресный С2000-СП4/220
С2000-СП4/220
Болид
шт.
5
1.8.
Адресный расширитель
С2000-АР8
Болид
шт.
17
1.9.
Адресный расширитель
С2000-АР2
Болид
шт.
18
1.10.
Устройство коммутационное
УК-ВК исп.02
Болид
шт.
2
1.11.
Модуль подключения нагрузки МПН
МПН
шт.
125
1.12.
Извещатель пожарный дымовой адресно-аналоговый
ДИП-34А-03
Болид
Болид
шт.
21
1.13.
Извещатель пожарный дымовой адресно-аналоговый
ДИП-34А-04
Болид
шт.
8
1.14.
Извещатель пожарный ручной адресный
ИПР 513-3АМ ИСП.01 IP67
Болид
шт.
61
1.15.
Устройство дистанционного пуска адресное
УДП 513-3АМ исп.02
Болид
шт.
16
1.16.
Извещатели охранные магнитоконтактные адресные
С2000-СМК исп.07
шт.
4
1.17.
Оповещатель охранно-пожарный световой (табло) "Выход"
Болид
Электротехника и
автоматика
Электротехника и
автоматика
Электротехника и
автоматика
шт.
35
шт.
58
шт.
56
1.18.
1.19.
Оповещатель охранно-пожарный световой (табло) "Стрелка
вправо"
Оповещатель охранно-пожарный световой (табло) "Стрелка
влево "
92-197-010
10-460-001
Кристалл-12
Кристалл-12
Кристалл-12
Масса
1 ед,
кг
Примечание
502/1-2/25-ПС2.СО
Складской комплекс ООО «Хавейл Мотор Мануфэкчуринг Рус»
по адресу: Тульская область, Узловский район, тер. Индустриальный парк, ул. Индустриальная, здание 11к1
Кол.
уч.
Разработал
Лист № док. Подпись
Дата
Крюкова
07.25
Проверил
Видус
07.25
Система автоматической пожарной
сигнализации (СПС)
Н. контр.
Видус
07.25
ГИП
Видус
07.25
Спецификация оборудования, изделий
и материалов
Изм.
Стадия
Лист
Листов
Р
1
3
Формат А3

36.

Поз.
Наименование и техническая характеристика
Тип, марка,
обозначение
документа,
опросного листа
Код
продукции
Заводизготовитель,
поставщик
Ед.
измерения
Кол.
1.20.
Широкополосный настенный громкоговоритель
LPA-6W
LPA
шт.
31
1.21.
Звуковой прожектор, 20 / 10 / 5 Ватт
LPA-20P
LPA
шт.
93
1.22.
Конденсатор 6,8 мкФ для LPA-EVA
250V 6.8UF
шт.
124
1.23.
Резистор металлооксидный MO-200 (С2-23) 2 Вт, 10 кОм, 5%
Тайвань
шт
12
1.24.
Аккумуляторная батарея 17 Ач
Delta
шт.
18
1.25.
Корпус металлический
IEK
шт.
3
1.26.
Блок коммутации БК-12-RS485-01
Модуль источника питания
Болид
шт.
3
Болид
шт.
3
компл.
8
Промрукав
шт.
60
АВВ
шт.
3
АВВ
шт.
3
YKM40-03-54
МИП-12 исп.20 (МИП-12-3/П5Р-RS)
Взам. инв. №
2.
DTM 1217
ЩМП-3-0 74 У2 IP54
650х500х220мм
2.5.
Материалы
Узел крепления СПЖ в составе:
Коробка ответвительная алюминиевая окрашенная,
IP66/IP67, RAL9006, 90х90х53мм (65300)-1 шт.; Дин-рейка
для диагональной установки в коробки 90х90 мм(653020) -1
ПНК-Д-2023.ПС.006
шт.; Клемма керамическая латунь 2,5 мм² 2 пары контактов -2 шт.
Коробка огнестойкая для о/п 40-0210-FR1.5-6 Е15-Е120
ПНК-Д-2023.ПС.007
RAL2004 80х80х40
Автоматический выключатель
S202 C3А/2п/ 6,0кА на Dinрейку 2CDS252001R0034 C3
Автоматический выключатель
S202 C16А/2п/ 6,0кА на Dinрейку 2CDS252001R0164 C16
Муфта вводная усиленная для гофрированных труб
ВМУ-ГТ-25 (М25)
PR08.3274
Промрукав
шт.
9
2.6.
Муфта вводная усиленная для гофрированных труб
ВМУ-ГТ-20 (М20)
PR08.3273
Промрукав
шт.
63
2.7.
Кабель-канал 50х50 перфорированный
kk50-50 EKF
kk50-50
EKF
м
18
Подп. и дата
1.27.
14378
3.
Огнестойкая кабельная линия в составе:
Кабели парной скрутки огнестойкие для систем пожарной
сигнализации
Кабели парной скрутки огнестойкие для систем пожарной
сигнализации
КПСЭнг(А)-FRHF 1х2х0.75
СегментЭНЕРГО
м
5500
КПСЭнг(А)-FRHF 1х2х1.5
СегментЭНЕРГО
м
15400
2.1.
2.2.
2.3.
2.4.
3.1.
Инв. № подл.
3.2.
Изм.
Масса
1 ед,
кг
Примечание
ДКС
Кол.
уч.
Лист
№док.
Подпись
Дата
502/1-2/25-ПС2.СО
Лист
2
Формат А3

37.

Поз.
Кол.
КОПСЭнг(А)-FRHF 1х2х0.8
СегментЭНЕРГО
м
3500
ППГнг(А)-FRHF 4x1,5
СегментЭНЕРГО
м
7000
ППГнг(А)-FRHF 4x2,5
СегментЭНЕРГО
м
50
PR.01420
Промрукав
м
4500
6008-20L3
ДКС
м
15000
Промрукав
шт.
900
3.7.
Труба жесткая оцинкованная ø20x1x3000 мм
3.8.
3.9.
Труба жесткая ПВХ 3-х метровая d32
Узел крепления ПВХ трубы к бетону
ПНК-Д-2023.ПС.009
шт.
45000
3.10.
Узел соединения жестких ПВХ труб d20 мм
ПНК-Д-2023.ПС.011
шт.
1500
3.11.
Узел углового соединения ПВХ труб d20 мм
ПНК-Д-2023.ПС.010
шт.
2000
3.12.
Узел крепления жесткой оцинкованной трубы
ПНК-Д-2023.ПС.013
шт.
15000
3.13.
Узел соединения жесткой оцинкованной трубы
ПНК-Д-2023.ПС.014
шт.
7500
3.14.
КП-ПМ-КТ-125
ПНК-Д-2023.ПС.004
шт.
шт.
30
3.15.
Узел монтажа кабельной проходки
Узел монтажа извещателя пожарного ручного
77
3.16.
Узел монтажа на стену оповещателя светового
ПНК-Д-2023.ПС.005
шт.
144
3.17.
Узел опуска к ЩД
ПНК-Д-2023.ПС.008
шт.
9
3.18.
Лоток неперфорированный 100х100, L=3000, 1.0мм
3.19.
3.5.
Взам. инв. №
Ед.
измерения
3.6.
3.4.
Подп. и дата
Заводизготовитель,
поставщик
Код
продукции
Кабели огнестойкие симметричные, для промышленного интерфейса RS-485
Кабели парной скрутки огнестойкие для систем пожарной
сигнализации
Кабели парной скрутки огнестойкие для систем пожарной
сигнализации
Труба жесткая ПВХ 3-х метровая легкая серая д20
3.3.
Инв. № подл.
Наименование и техническая характеристика
Тип, марка,
обозначение
документа,
опросного листа
PR.01432
3510110
ДКС
шт.
130
Узел крепления лотка к профнастилу
DKC-2018.В5.12
ДКС
110
3.20.
Узел соединения лотка
DKC-2018.S5.01
ДКС
шт.
шт.
100
3.21.
Узел ответвителя Т-образного DPT
DKC-2018.S5.07
ДКС
шт.
1
3.22.
Узел шарнирного изменения угла трассы
DKC-2018.S5.23
ДКС
шт.
2
3.23.
Узел монтажа лотка на стене
шт.
20
3.24.
3.25.
Узел угла вертикальный внутренний 90 градусов 100х100
Узел угла горизонтальный 90 градусов 100х100
3.26.
Узел маркировки кабельных линий
ПНК-Д-2023.ПС.015
DKC-2018.S5.16
ДКС
шт.
9
DKC-2018.S5.05
ДКС
шт.
9
шт.
6000
ПНК-Д-2023.ПС.012
Изм.
Кол.
уч.
Лист
№док.
Подпись
Дата
Масса
1 ед,
кг
502/1-2/25-ПС2.СО
Примечание
Лист
3
Формат А3

38.

Инв. № подл.
Пордл. И дата
Взам. Инв. №
Согласовано
Задание на электроснабжение
1 Предусмотреть электроснабжение по I категории электроснабжения и системе заземления
(TN-S) для следующих электроприемников:
Категория
Обозначе КолРуст (ед.),
Электроприемник
Uн, B
электроснабПримеч.
ние
во
кВт
жения
Блок контрольно- ~ 50 ±1
См. лист 4
пусковой ШКПГц,
SHP2.1.15
1
I
0,095
10RS
380B
1 ~ 50
ШПС-12 исп.12
Гц,
ШПС№2.1
1
I
0,12
См. лист 2
(ШПС№2.1)
220B
1 ~ 50
ШПС-12 исп.12
Гц,
ШПС№2.2
1
I
0,12
См. лист 2
(ШПС№2.2)
220B
1 ~ 50
SHA№2.1
Гц,
SHA№2.1
1
I
0,12
См. лист 2
220B
1 ~ 50
ШПС-12 исп.12
Гц,
ШПС№3.1
1
I
0,12
См. лист 2
(ШПС№3.1)
220B
1 ~ 50
SHA№5.1
Гц,
SHA№5.1
1
I
0,12
См. лист 2
220B
1 ~ 50
ШПС-12 исп.12
Гц,
ШПС№4.1
1
I
0,12
См. лист 2
(ШПС№4.1)
220B
1 ~ 50
ШПС-12 исп.12
Гц,
ШПС№4.2
1
I
0,12
См. лист 2
(ШПС№4.2)
220B
1 ~ 50
ШПС-12 исп.12
Гц,
ШПС№5.1
1
I
0,12
См. лист 2
(ШПС№4.1)
220B
1 ~ 50
SHA№8.1
Гц,
SHA№8.1
1
I
0,12
См. лист 2
220B
230 В
±10%
2SC2.86-90
2SC2.86перемен
1
I
См. лист 2
С2000-С4/220
90
ного
тока
230 В
±10%
3SC1.86-90
3SC1.86-90
перемен
1
I
См. лист 2
С2000-С4/220
ного
тока
4SC1.86-90
230 В 4SC1.86-90 1
I
См. лист 2
502/1-2/25-ПС1.Э
Изм. Кол. уч. Лист
N док. Подпись
Дата
Разработал
Крюкова
07.25
Стадия
Лист
Листов
ГИП
Видус
07.25
Р
1
2
Т. контр.
Видус
07.25
Видус
07.25
Н,контр.
Задание на электроснабжение

39.

±10%
перемен
ного
тока
230 В
±10%
5SC1.86-90
5SC1.86-90
перемен
1
I
См. лист 2
С2000-С4/220
ного
тока
230 В
±10%
3SC1.81-85
3SC2.81перемен
1
I
См. лист 2
С2000-С4/220
85
ного
тока
2 Предусмотреть заземление всех металлических нетоковедущих частей
электрооборудования.
3 Качество электроэнергии должно соответствовать ГОСТ 29322-2014.
4 Питание электроприемников СПЗ должно осуществляется от панели
противопожарных устройств (ППУ) с устройством автоматического включения резерва от
главного распределительного щита с устройством АВР, в соответствии с требованиями СП
6.13130.2021.
5 Кабельные линии питания должны быть выполнены огнестойким кабелем с пределом
огнестойкости ПО1 по ГОСТ 31565-2012.
6 Размещение оборудования уточнить при монтаже.
Инв. № подл.
Пордл. И дата
Взам. Инв. №
С2000-С4/220
502/1-2/25-ПС2.Э
Изм. Кол. уч. Лист
N док. Подпись
Дата
Лист
2

40.

Обозначение
Обозначение
Трасса
Кабель
По проекту
Начало
Конец
Марка
Проложен
Способ прокладки
Длина, м
Способ прокладки
Длина,
м
Стадия
Лист
Листов
Р
1
17
Марка
Линия ДПЛС 2.1.1
D2.1.1.1
ШПС№2.1
ARK2.1.1
2UDP1.10
КПСнг(А)-FRHF 1х2х0,75
Труба жесткая
оцинкованная
80
D2.1.1.2
2UDP1.10
2BTM1.1
КПСнг(А)-FRHF 1х2х0,75
Труба жесткая
оцинкованная
20
D2.1.1.3
2BTM1.1
ШК1
КПСнг(А)-FRHF 1х2х0,75
Труба жесткая
оцинкованная
20
D2.1.1.4
ШК1
2SC1.70-71
КПСнг(А)-FRHF 1х2х0,75
Труба жесткая
оцинкованная
20
D2.1.1.5
2SC1.70-71
2BTM1.2
КПСнг(А)-FRHF 1х2х0,75
Труба жесткая
оцинкованная
70
КПСнг(А)-FRHF 1х2х0,75
Труба жесткая
оцинкованная;
Труба жесткая
ПВХ
80
КПСнг(А)-FRHF 1х2х0,75
Труба жесткая
оцинкованная;
Труба жесткая
ПВХ
60
80
D2.1.1.6
Инв. № подл.
Подп. и дата
Взам.инв.№
Согласовано
D2.1.1.7
2BTM1.2
2BTM1.3
2BTM1.3
2BTM1.4
D2.1.1.8
2BTM1.4
2BTM1.5
КПСнг(А)-FRHF 1х2х0,75
Труба жесткая
оцинкованная;
Труба жесткая
ПВХ
D2.1.1.9
2BTM1.5
2BTM1.6
КПСнг(А)-FRHF 1х2х0,75
Труба жесткая
оцинкованная
60
D2.1.1.10
2BTM1.6
ШК3
КПСнг(А)-FRHF 1х2х0,75
Труба жесткая
оцинкованная
60
D2.1.1.11
ШК3
2BTM1.7
КПСнг(А)-FRHF 1х2х0,75
Труба жесткая
оцинкованная
20
D2.1.1.12
2BTM1.7
2UDP1.11
КПСнг(А)-FRHF 1х2х0,75
Труба жесткая
оцинкованная
20
502/1-2/25-ПС1.КЖ
Изм. К.уч. Лист №док Подпись Дата
07.25
Видус .
Проверил
07.25
Разработал Крюкова
07.25
Видус
ГИП
Н. контр
Видус
Кабельный журнал
07.25
Формат А4

41.

D2.1.1.13
2UDP1.11
ШК2
КПСнг(А)-FRHF 1х2х0,75
Труба жесткая
оцинкованная
50
D2.1.1.14
ШК2
2BTM1.8
КПСнг(А)-FRHF 1х2х0,75
Труба жесткая
оцинкованная
20
D2.1.1.15
2BTM1.8
SHK№1
КПСнг(А)-FRHF 1х2х0,75
Труба жесткая
оцинкованная
20
D2.1.1.16
SHK№1
2UDP1.9
КПСнг(А)-FRHF 1х2х0,75
Труба жесткая
оцинкованная
6
2UDP1.9
ШПС№5.1
ARK5.1.1
КПСнг(А)-FRHF 1х2х0,75
Труба жесткая
оцинкованная;
Труба жесткая
ПВХ
6
D2.1.1.17
Линия контроля открытия-закрытия ворот
Z70.1
2SC2.70-71
Ворота
КПСнг(А)-FRHF 1х2х0,75
Труба жесткая
оцинкованная
15
Z72.1
2SC2.72-73
Ворота
КПСнг(А)-FRHF 1х2х0,75
Труба жесткая
оцинкованная
15
Инв. № подл.
Подп. и дата
Взам.инв.№
Линия ДПЛС 2.2.1
D2.2.1.1
ШПС№2.2
ARK2.2.1
2BTM2.1
КПСнг(А)-FRHF 1х2х0,75
Труба жесткая
оцинкованная
20
D2.2.1.2
2BTM2.1
2BTM2.2
КПСнг(А)-FRHF 1х2х0,75
Труба жесткая
оцинкованная
60
D2.2.1.3
2BTM2.2
2BTM2.3
КПСнг(А)-FRHF 1х2х0,75
Труба жесткая
оцинкованная
60
D2.2.1.4
2BTM2.3
2BTM2.4
КПСнг(А)-FRHF 1х2х0,75
Труба жесткая
оцинкованная
60
D2.2.1.5
2BTM2.4
2BTM2.5
КПСнг(А)-FRHF 1х2х0,75
Труба жесткая
оцинкованная
80
КПСнг(А)-FRHF 1х2х0,75
Труба жесткая
оцинкованная;
Труба жесткая
ПВХ
20
D2.2.1.6
2BTM2.5
2UDP2.13
Лист
502/1-2/25-ПС1.КЖ
Изм. К.уч. Лист №док
.
Подп.
2
Дата
Формат А4

42.

Инв. № подл.
Подп. и дата
Взам.инв.№
D2.2.1.7
2UDP2.13
SHA№4.1
КПСнг(А)-FRHF 1х2х0,75
Труба жесткая
оцинкованная;
Труба жесткая
ПВХ
30
50
D2.2.1.8
SHA№4.1
2SC2.70-71
КПСнг(А)-FRHF 1х2х0,75
Труба жесткая
оцинкованная;
Труба жесткая
ПВХ
D2.2.1.9
2SC2.70-71
2BTM2.6
КПСнг(А)-FRHF 1х2х0,75
Труба жесткая
оцинкованная
10
D2.2.1.10
2BTM2.6
ШК5
КПСнг(А)-FRHF 1х2х0,75
Труба жесткая
оцинкованная
60
D2.2.1.11
ШК5
2BTM2.7
КПСнг(А)-FRHF 1х2х0,75
Труба жесткая
оцинкованная
20
D2.2.1.12
2BTM2.7
2BTM2.8
КПСнг(А)-FRHF 1х2х0,75
Труба жесткая
оцинкованная
50
D2.2.1.13
2BTM2.8
2BTM2.9
КПСнг(А)-FRHF 1х2х0,75
Труба жесткая
оцинкованная
30
D2.2.1.14
2BTM2.9
ШК4
КПСнг(А)-FRHF 1х2х0,75
Труба жесткая
оцинкованная
20
D2.2.1.15
ШК4
2BTM2.10
КПСнг(А)-FRHF 1х2х0,75
Труба жесткая
оцинкованная
20
D2.2.1.16
2BTM2.10
2SC2.72-73
КПСнг(А)-FRHF 1х2х0,75
Труба жесткая
оцинкованная
20
D2.2.1.17
2SC2.72-73
2SC2.86-90
КПСнг(А)-FRHF 1х2х0,75
Труба жесткая
оцинкованная
40
D2.2.1.18
2SC2.86-90
2BTM2.11
КПСнг(А)-FRHF 1х2х0,75
Труба жесткая
оцинкованная
4
D2.2.1.19
2BTM2.11
SHK№3
КПСнг(А)-FRHF 1х2х0,75
Труба жесткая
оцинкованная
50
D2.2.1.20
SHK№3
ШПС№2.2
ARK2.2.1
КПСнг(А)-FRHF 1х2х0,75
Труба жесткая
оцинкованная;
Труба жесткая
ПВХ
6
Линия контроля открытия-закрытия ворот
Лист
502/1-2/25-ПС1.КЖ
Изм. К.уч. Лист №док
.
Подп.
3
Дата
Формат А4

43.

Z70.1
2SC1.70-71
Ворота
КПСнг(А)-FRHF 1х2х0,75
Труба жесткая
оцинкованная
15
Z72.1
2SC1.72-73
Ворота
КПСнг(А)-FRHF 1х2х0,75
Труба жесткая
оцинкованная
15
Инв. № подл.
Подп. и дата
Взам.инв.№
Линия ДПЛС 3.1.1
D3.1.1.1
ШПС№3.1
ARK3.1.1
SHA№5.1
КПСнг(А)-FRHF 1х2х0,75
лоток
10
D3.1.1.2
SHA№5.1
3UDP1.4
КПСнг(А)-FRHF 1х2х0,75
лоток
10
D3.1.1.3
3UDP1.4
3BTM1.1
КПСнг(А)-FRHF 1х2х0,75
Труба жесткая
оцинкованная
40
D3.1.1.4
3BTM1.1
3AR1.102103
КПСнг(А)-FRHF 1х2х0,75
Труба жесткая
оцинкованная;
Труба жесткая
ПВХ
40
D3.1.1.5
3AR1.102103
3AR1.100101
КПСнг(А)-FRHF 1х2х0,75
Труба жесткая
оцинкованная;
Труба жесткая
ПВХ
5
D3.1.1.6
3AR1.100101
3BTH1.5
КПСнг(А)-FRHF 1х2х0,75
Труба жесткая
оцинкованная;
Труба жесткая
ПВХ
40
D3.1.1.7
3BTH1.5
3BTM1.2
КПСнг(А)-FRHF 1х2х0,75
Труба жесткая
оцинкованная
20
D3.1.1.8
3BTM1.2
3BTH1.7
КПСнг(А)-FRHF 1х2х0,75
Труба жесткая
оцинкованная
20
D3.1.1.9
3BTH1.7
3BTH1.8
КПСнг(А)-FRHF 1х2х0,75
Труба жесткая
оцинкованная
10
D3.1.1.10
3BTH1.8
3BTH1.9
КПСнг(А)-FRHF 1х2х0,75
Труба жесткая
оцинкованная
10
D3.1.1.11
3BTH1.9
3BTH1.10
КПСнг(А)-FRHF 1х2х0,75
Труба жесткая
оцинкованная
10
D3.1.1.12
3BTH1.10
3BTH1.11
КПСнг(А)-FRHF 1х2х0,75
Труба жесткая
оцинкованная
10
Лист
502/1-2/25-ПС1.КЖ
Изм. К.уч. Лист №док
.
Подп.
4
Дата
Формат А4

44.

D3.1.1.13
3BTH1.11
3BTH1.12
КПСнг(А)-FRHF 1х2х0,75
Труба жесткая
оцинкованная
10
D3.1.1.14
3BTH1.12
3BTM1.3
КПСнг(А)-FRHF 1х2х0,75
Труба жесткая
оцинкованная
20
10
D3.1.1.15
3BTM1.3
3BTH1.6
КПСнг(А)-FRHF 1х2х0,75
Труба жесткая
оцинкованная;
Труба жесткая
ПВХ
D3.1.1.16
3BTH1.6
ШПС№3.1
ARK3.1.1
КПСнг(А)-FRHF 1х2х0,75
Труба жесткая
оцинкованная
50
Инв. № подл.
Подп. и дата
Взам.инв.№
Линия ДПЛС 3.2.1
D3.2.1.1
ШПС№3.1
ARK3.2.1
3BTM2.1
КПСнг(А)-FRHF 1х2х0,75
Труба жесткая
оцинкованная;
Труба жесткая
ПВХ
40
D3.2.1.2
3BTM2.1
3BTM2.2
КПСнг(А)-FRHF 1х2х0,75
Труба жесткая
оцинкованная
40
D3.2.1.3
3BTM2.2
3UDP2.15
КПСнг(А)-FRHF 1х2х0,75
Труба жесткая
оцинкованная
10
D3.2.1.4
3UDP2.15
3BTM2.3
КПСнг(А)-FRHF 1х2х0,75
Труба жесткая
оцинкованная
20
D3.2.1.5
3BTM2.3
3SC2.70-71
КПСнг(А)-FRHF 1х2х0,75
Труба жесткая
оцинкованная
20
D3.2.1.6
3SC2.70-71
3SC2.81-85
КПСнг(А)-FRHF 1х2х0,75
Труба жесткая
оцинкованная
15
D3.2.1.7
3SC2.81-85
3SC2.72-73
КПСнг(А)-FRHF 1х2х0,75
Труба жесткая
оцинкованная
20
D3.2.1.8
3SC2.72-73
3BTM2.4
КПСнг(А)-FRHF 1х2х0,75
Труба жесткая
оцинкованная
12
D3.2.1.9
3BTM2.4
3BTM2.5
КПСнг(А)-FRHF 1х2х0,75
Труба жесткая
оцинкованная
12
D3.2.1.10
3BTM2.5
3UDP2.16
КПСнг(А)-FRHF 1х2х0,75
Труба жесткая
оцинкованная
12
D3.2.1.11
3UDP2.16
3SC1.74-75
КПСнг(А)-FRHF 1х2х0,75
Труба жесткая
оцинкованная
12
Лист
502/1-2/25-ПС1.КЖ
Изм. К.уч. Лист №док
.
Подп.
5
Дата
Формат А4

45.

3SC1.74-75
ШК7
КПСнг(А)-FRHF 1х2х0,75
Труба жесткая
оцинкованная
30
D3.2.1.13
ШК7
3BTM2.6
КПСнг(А)-FRHF 1х2х0,75
Труба жесткая
оцинкованная
30
D3.2.1.14
3BTM2.6
3SC1.86-90
КПСнг(А)-FRHF 1х2х0,75
Труба жесткая
оцинкованная
20
D3.2.1.15
3SC1.86-90
2BTM2.7
КПСнг(А)-FRHF 1х2х0,75
Труба жесткая
оцинкованная;
Труба жесткая
ПВХ
20
D3.2.1.16
2BTM2.7
3BTH1.17
КПСнг(А)-FRHF 1х2х0,75
Труба жесткая
оцинкованная
6
D3.2.1.17
3BTH1.17
3BTH1.18
КПСнг(А)-FRHF 1х2х0,75
Труба жесткая
оцинкованная
6
D3.2.1.18
3BTH1.18
3AR2.100101
КПСнг(А)-FRHF 1х2х0,75
Труба жесткая
оцинкованная
6
D3.2.1.19
3AR2.100101
3AR2.102103
КПСнг(А)-FRHF 1х2х0,75
Труба жесткая
оцинкованная
6
D3.2.1.20
3AR2.102103
3AR2.104105
КПСнг(А)-FRHF 1х2х0,75
Труба жесткая
оцинкованная
6
D3.2.1.21
3AR2.104105
3AR2.106107
КПСнг(А)-FRHF 1х2х0,75
Труба жесткая
оцинкованная
6
D3.2.1.22
3AR2.106107
2SC2.72-73
КПСнг(А)-FRHF 1х2х0,75
Труба жесткая
оцинкованная
6
D3.2.1.23
2SC2.72-73
3BTM2.8
КПСнг(А)-FRHF 1х2х0,75
Труба жесткая
оцинкованная
6
Взам.инв.№
D3.2.1.24
3BTM2.8
3BTH2.21
КПСнг(А)-FRHF 1х2х0,75
Труба жесткая
оцинкованная
6
D3.2.1.25
3BTH2.21
3BTH2.22
КПСнг(А)-FRHF 1х2х0,75
Труба жесткая
оцинкованная
6
Подп. и дата
D3.2.1.26
3BTH2.22
3BTH2.23
КПСнг(А)-FRHF 1х2х0,75
Труба жесткая
оцинкованная
6
D3.2.1.27
3BTH2.23
3BTM2.9
КПСнг(А)-FRHF 1х2х0,75
Труба жесткая
оцинкованная
6
Инв. № подл.
D3.2.1.12
Лист
502/1-2/25-ПС1.КЖ
Изм. К.уч. Лист №док
.
Подп.
6
Дата
Формат А4

46.

Взам.инв.№
Подп. и дата
Инв. № подл.
D3.2.1.28
3BTM2.9
3BTH2.24
КПСнг(А)-FRHF 1х2х0,75
Труба жесткая
оцинкованная
6
D3.2.1.29
3BTH2.24
3BTH2.19
КПСнг(А)-FRHF 1х2х0,75
Труба жесткая
оцинкованная
10
D3.2.1.30
3BTH2.19
3BTH2.25
КПСнг(А)-FRHF 1х2х0,75
Труба жесткая
оцинкованная
6
D3.2.1.31
3BTH2.25
3BTH2.26
КПСнг(А)-FRHF 1х2х0,75
Труба жесткая
оцинкованная
6
D3.2.1.32
3BTH2.26
3BTH2.27
КПСнг(А)-FRHF 1х2х0,75
Труба жесткая
оцинкованная
6
D3.2.1.33
3BTH2.27
3BTH2.28
КПСнг(А)-FRHF 1х2х0,75
Труба жесткая
оцинкованная
6
D3.2.1.34
3BTH2.28
3BTH2.29
КПСнг(А)-FRHF 1х2х0,75
Труба жесткая
оцинкованная
6
D3.2.1.35
3BTH2.29
3BTM2.10
КПСнг(А)-FRHF 1х2х0,75
Труба жесткая
оцинкованная
6
D3.2.1.36
3BTM2.10
3BTH2.30
КПСнг(А)-FRHF 1х2х0,75
Труба жесткая
оцинкованная
6
D3.2.1.37
3BTH2.30
3BTH2.31
КПСнг(А)-FRHF 1х2х0,75
Труба жесткая
оцинкованная
6
D3.2.1.38
3BTH2.31
3BTH2.20
КПСнг(А)-FRHF 1х2х0,75
Труба жесткая
оцинкованная
6
D3.2.1.39
3BTH2.20
3BTM2.11
КПСнг(А)-FRHF 1х2х0,75
Труба жесткая
оцинкованная
40
D3.2.1.40
3BTM2.11
3BTM2.12
КПСнг(А)-FRHF 1х2х0,75
Труба жесткая
оцинкованная
1
D3.2.1.41
3BTM2.12
3BTM2.13
КПСнг(А)-FRHF 1х2х0,75
Труба жесткая
оцинкованная
24
D3.2.1.42
3BTM2.13
3BTM2.14
КПСнг(А)-FRHF 1х2х0,75
Труба жесткая
оцинкованная
50
D3.2.1.43
3BTM2.14
ШК6
КПСнг(А)-FRHF 1х2х0,75
Труба жесткая
оцинкованная
50
D3.2.1.44
ШК6
ШПС№3.1
ARK3.2.1
КПСнг(А)-FRHF 1х2х0,75
Труба жесткая
оцинкованная
2
Лист
502/1-2/25-ПС1.КЖ
Изм. К.уч. Лист №док
.
Подп.
7
Дата
Формат А4

47.

Линия контроля открытия-закрытия ворот
Z70.1
3SC1.70-71
Ворота
КПСнг(А)-FRHF 1х2х0,75
Труба жесткая
оцинкованная
15
Z72.1
3SC1.72-73
Ворота
КПСнг(А)-FRHF 1х2х0,75
Труба жесткая,
кабельный лоток
15
Z74.1
3SC1.74-75
Ворота
КПСнг(А)-FRHF 1х2х0,75
Труба жесткая,
кабельный лоток
15
Инв. № подл.
Подп. и дата
Взам.инв.№
Линия контроля КСК
ZR1.1
4AR1.104111
КСК1
КПСнг(А)-FRHF 1х2х0,75
лоток
14
ZR1.2
4AR1.104111
КСК1
КПСнг(А)-FRHF 1х2х0,75
лоток
14
ZR2.1
4AR1.104111
КСК2
КПСнг(А)-FRHF 1х2х0,75
лоток
14
ZR2.2
4AR1.104111
КСК2
КПСнг(А)-FRHF 1х2х0,75
лоток
14
ZR3.1
4AR1.104111
КСК3
КПСнг(А)-FRHF 1х2х0,75
лоток
14
ZR3.2
4AR1.104111
КСК3
КПСнг(А)-FRHF 1х2х0,75
лоток
14
ZR4.1
4AR1.104111
КСК4
КПСнг(А)-FRHF 1х2х0,75
лоток
14
ZR4.2
4AR1.104111
КСК4
КПСнг(А)-FRHF 1х2х0,75
лоток
14
ZR5.1
4AR1.112119
КСК5
КПСнг(А)-FRHF 1х2х0,75
лоток
14
ZR5.2
4AR1.112119
КСК5
КПСнг(А)-FRHF 1х2х0,75
лоток
14
ZR6.1
4AR1.112119
КСК6
КПСнг(А)-FRHF 1х2х0,75
лоток
14
ZR6.2
4AR1.112119
КСК6
КПСнг(А)-FRHF 1х2х0,75
лоток
14
Лист
502/1-2/25-ПС1.КЖ
Изм. К.уч. Лист №док
.
Подп.
8
Дата
Формат А4

48.

ZR7.1
4AR1.112119
КСК7
КПСнг(А)-FRHF 1х2х0,75
лоток
14
ZR7.2
4AR1.112119
КСК7
КПСнг(А)-FRHF 1х2х0,75
лоток
14
Линия контроля открытия-закрытия ворот
Z70.1
4SC1.70-71
Ворота
КПСнг(А)-FRHF 1х2х0,75
Труба жесткая
оцинкованная
15
Z72.1
4SC1.72-73
Ворота
КПСнг(А)-FRHF 1х2х0,75
Труба жесткая,
кабельный лоток
15
Z74.1
4SC1.74-75
Ворота
КПСнг(А)-FRHF 1х2х0,75
Труба жесткая,
кабельный лоток
15
КПСнг(А)-FRHF 1х2х0,75
лоток
10
КПСнг(А)-FRHF 1х2х0,75
лоток
10
Линия ДПЛС 4.1.1
ШПС№4.1
ARK4.1.1
4AR1.100101
4AR1.100101
4AR1.102103
D4.1.1.3
4AR1.102103
4BTH1.7
КПСнг(А)-FRHF 1х2х0,75
лоток
10
D4.1.1.4
4BTH1.7
4BTH1.9
КПСнг(А)-FRHF 1х2х0,75
Труба жесткая
оцинкованная
10
D4.1.1.5
4BTH1.9
4BTH1.10
КПСнг(А)-FRHF 1х2х0,75
Труба жесткая
оцинкованная
10
D4.1.1.6
4BTH1.10
4BTH1.8
КПСнг(А)-FRHF 1х2х0,75
Труба жесткая
оцинкованная
10
D4.1.1.7
4BTH1.8
ШК10
КПСнг(А)-FRHF 1х2х0,75
Труба жесткая
оцинкованная
20
D4.1.1.8
ШК10
4BTM1.1
КПСнг(А)-FRHF 1х2х0,75
Труба жесткая
оцинкованная
30
D4.1.1.9
4BTM1.1
4SC1.70-71
КПСнг(А)-FRHF 1х2х0,75
Труба жесткая
оцинкованная
20
D4.1.1.10
4SC1.70-71
4SC2.72-73
КПСнг(А)-FRHF 1х2х0,75
Труба жесткая
оцинкованная
20
D4.1.1.11
4SC2.72-73
4BTM1.2
КПСнг(А)-FRHF 1х2х0,75
Труба жесткая
оцинкованная
20
D4.1.1.1
Инв. № подл.
Подп. и дата
Взам.инв.№
D4.1.1.2
Лист
502/1-2/25-ПС1.КЖ
Изм. К.уч. Лист №док
.
Подп.
9
Дата
Формат А4

49.

D4.1.1.12
4BTM1.2
4SC1.74-75
КПСнг(А)-FRHF 1х2х0,75
Труба жесткая
оцинкованная
40
D4.1.1.13
4SC1.74-75
4BTM1.3
КПСнг(А)-FRHF 1х2х0,75
Труба жесткая
оцинкованная
30
D4.1.1.14
4BTM1.3
ШК9
КПСнг(А)-FRHF 1х2х0,75
Труба жесткая
оцинкованная
30
D4.1.1.15
ШК9
4BTM1.4
КПСнг(А)-FRHF 1х2х0,75
Труба жесткая
оцинкованная;
Труба жесткая
ПВХ
90
D4.1.1.16
4BTM1.4
4UDP1.6
КПСнг(А)-FRHF 1х2х0,75
Труба жесткая
оцинкованная
10
D4.1.1.17
4UDP1.6
SHA№7.1
КПСнг(А)-FRHF 1х2х0,75
Труба жесткая
оцинкованная
2
D4.1.1.18
SHA№7.1
ШПС№4.1
КПСнг(А)-FRHF 1х2х0,75
Труба жесткая
оцинкованная
2
Инв. № подл.
Подп. и дата
Взам.инв.№
Линия контроля КСК
ZR1.1
4AR1.104111
КСК1
КПСнг(А)-FRHF 1х2х0,75
лоток
14
ZR1.2
4AR1.104111
КСК1
КПСнг(А)-FRHF 1х2х0,75
лоток
14
ZR2.1
4AR1.104111
КСК2
КПСнг(А)-FRHF 1х2х0,75
лоток
14
ZR2.2
4AR1.104111
КСК2
КПСнг(А)-FRHF 1х2х0,75
лоток
14
ZR3.1
4AR1.104111
КСК3
КПСнг(А)-FRHF 1х2х0,75
лоток
14
ZR3.2
4AR1.104111
КСК3
КПСнг(А)-FRHF 1х2х0,75
лоток
14
ZR4.1
4AR1.104111
КСК4
КПСнг(А)-FRHF 1х2х0,75
лоток
14
ZR4.2
4AR1.104111
КСК4
КПСнг(А)-FRHF 1х2х0,75
лоток
14
ZR5.1
4AR1.112119
КСК5
КПСнг(А)-FRHF 1х2х0,75
лоток
14
Лист
502/1-2/25-ПС1.КЖ
Изм. К.уч. Лист №док
.
Подп.
10
Дата
Формат А4

50.

ZR5.2
4AR1.112119
КСК5
КПСнг(А)-FRHF 1х2х0,75
лоток
14
ZR6.1
4AR1.112119
КСК6
КПСнг(А)-FRHF 1х2х0,75
лоток
14
ZR6.2
4AR1.112119
КСК6
КПСнг(А)-FRHF 1х2х0,75
лоток
14
ZR7.1
4AR1.112119
КСК7
КПСнг(А)-FRHF 1х2х0,75
лоток
14
ZR7.2
4AR1.112119
КСК7
КПСнг(А)-FRHF 1х2х0,75
лоток
14
Линия контроля открытия-закрытия ворот
Z70.1
4SC1.70-71
Ворота
КПСнг(А)-FRHF 1х2х0,75
Труба жесткая
оцинкованная
15
Z72.1
4SC1.72-73
Ворота
КПСнг(А)-FRHF 1х2х0,75
Труба жесткая,
кабельный лоток
15
Z74.1
4SC1.74-75
Ворота
КПСнг(А)-FRHF 1х2х0,75
Труба жесткая,
кабельный лоток
15
Инв. № подл.
Подп. и дата
Взам.инв.№
Линия ДПЛС 4.2.1
D4.2.1.1
ШПС№4.2
ARK4.2.2
4UDP2.9
КПСнг(А)-FRHF 1х2х0,75
Труба жесткая
оцинкованная
10
D4.2.1.2
4UDP2.9
4SC2.70-71
КПСнг(А)-FRHF 1х2х0,75
Труба жесткая
оцинкованная
20
D4.2.1.3
4SC2.70-71
4AR2.100101
КПСнг(А)-FRHF 1х2х0,75
Труба жесткая
оцинкованная
10
D4.2.1.4
4AR2.100101
4AR2.102103
КПСнг(А)-FRHF 1х2х0,75
Труба жесткая
оцинкованная
10
D4.2.1.5
4AR2.102103
4SC2.72-73
КПСнг(А)-FRHF 1х2х0,75
Труба жесткая
оцинкованная
20
D4.2.1.6
4SC2.72-73
4BGB2.14
КПСнг(А)-FRHF 1х2х0,75
Труба жесткая
оцинкованная
5
D4.2.1.7
4BGB2.14
4BGB2.15
КПСнг(А)-FRHF 1х2х0,75
Труба жесткая
оцинкованная
5
Лист
502/1-2/25-ПС1.КЖ
Изм. К.уч. Лист №док
.
Подп.
11
Дата
Формат А4

51.

4BGB2.15
4SC2.74-75
КПСнг(А)-FRHF 1х2х0,75
Труба жесткая
оцинкованная
10
D4.2.1.9
4SC2.74-75
4BGB2.16
КПСнг(А)-FRHF 1х2х0,75
Труба жесткая
оцинкованная
5
D4.2.1.10
4BGB2.16
4BGB2.17
КПСнг(А)-FRHF 1х2х0,75
Труба жесткая
оцинкованная
5
D4.2.1.11
4BGB2.17
4BTM2.1
КПСнг(А)-FRHF 1х2х0,75
Труба жесткая
оцинкованная
10
D4.2.1.12
4BTM2.1
4UDP2.10
КПСнг(А)-FRHF 1х2х0,75
Труба жесткая
оцинкованная
10
D4.2.1.13
4UDP2.10
4BTM2.2
КПСнг(А)-FRHF 1х2х0,75
Труба жесткая
оцинкованная;
Труба жесткая
ПВХ
60
D4.2.1.14
4BTM2.2
4SC2.76-77
КПСнг(А)-FRHF 1х2х0,75
Труба жесткая
оцинкованная
10
D4.2.1.15
4SC2.76-77
ШК8
КПСнг(А)-FRHF 1х2х0,75
Труба жесткая
оцинкованная
30
D4.2.1.16
ШК8
4BTM2.3
КПСнг(А)-FRHF 1х2х0,75
Труба жесткая
оцинкованная
15
D4.2.1.17
4BTM2.3
4BTM2.4
КПСнг(А)-FRHF 1х2х0,75
Труба жесткая
оцинкованная
30
D4.2.1.18
4BTM2.4
4SC2.78-79
КПСнг(А)-FRHF 1х2х0,75
Труба жесткая
оцинкованная
30
D4.2.1.19
4SC2.78-79
4BTM2.5
КПСнг(А)-FRHF 1х2х0,75
Труба жесткая
оцинкованная
20
Взам.инв.№
D4.2.1.20
4BTM2.5
4AR2.104105
КПСнг(А)-FRHF 1х2х0,75
Труба жесткая
оцинкованная
40
D4.2.1.21
4AR2.104105
4AR2.106107
КПСнг(А)-FRHF 1х2х0,75
Труба жесткая
оцинкованная
5
Подп. и дата
D4.2.1.22
4AR2.106107
4SC2.80-81
КПСнг(А)-FRHF 1х2х0,75
Труба жесткая
оцинкованная
5
D4.2.1.23
4SC2.80-81
4SC2.82-83
КПСнг(А)-FRHF 1х2х0,75
Труба жесткая
оцинкованная
20
Инв. № подл.
D4.2.1.8
Лист
502/1-2/25-ПС1.КЖ
Изм. К.уч. Лист №док
.
Подп.
12
Дата
Формат А4

52.

Взам.инв.№
D4.2.1.24
4SC2.82-83
4AR2.108109
КПСнг(А)-FRHF 1х2х0,75
Труба жесткая
оцинкованная
20
D4.2.1.25
4AR2.108109
4AR2.110111
КПСнг(А)-FRHF 1х2х0,75
Труба жесткая
оцинкованная
10
D4.2.1.26
4AR2.110111
4SC2.84-85
КПСнг(А)-FRHF 1х2х0,75
Труба жесткая
оцинкованная
20
D4.2.1.27
4SC2.84-85
4BTM2.6
КПСнг(А)-FRHF 1х2х0,75
Труба жесткая
оцинкованная
30
D4.2.1.28
4BTM2.6
4BTH2.12
КПСнг(А)-FRHF 1х2х0,75
Труба жесткая
оцинкованная
20
D4.2.1.29
4BTH2.12
4BTM2.7
КПСнг(А)-FRHF 1х2х0,75
Труба жесткая
оцинкованная
10
D4.2.1.30
4BTM2.7
4BTH2.13
КПСнг(А)-FRHF 1х2х0,75
Труба жесткая
оцинкованная
10
D4.2.1.31
4BTH2.13
4UDP2.11
КПСнг(А)-FRHF 1х2х0,75
Труба жесткая
оцинкованная
10
D4.2.1.32
4UDP2.11
4SC2.8690(4BO1.1)
КПСнг(А)-FRHF 1х2х0,75
Труба жесткая
оцинкованная
15
D4.2.1.33
4SC2.8690(4BO1.1)
4AR2.112113
КПСнг(А)-FRHF 1х2х0,75
Труба жесткая
оцинкованная
20
D4.2.1.34
4AR2.112113
4AR2.114115
КПСнг(А)-FRHF 1х2х0,75
Труба жесткая
оцинкованная
15
D4.2.1.35
4AR2.114115
SHA№6.1
КПСнг(А)-FRHF 1х2х0,75
Труба жесткая
оцинкованная;
Труба жесткая
ПВХ
20
D4.2.1.36
SHA№6.1
4BTM2.8
КПСнг(А)-FRHF 1х2х0,75
Труба жесткая
оцинкованная
10
D4.2.1.37
4BTM2.8
ШПС№4.2
ARK4.2.2
КПСнг(А)-FRHF 1х2х0,75
Труба жесткая
оцинкованная
4
Инв. № подл.
Подп. и дата
Линия контроля открытия-закрытия ворот
Z70.1
4SC2.70-71
Ворота
КПСнг(А)-FRHF 1х2х0,75
Труба жесткая
оцинкованная
15
Z72.1
4SC2.72-73
Ворота
КПСнг(А)-FRHF 1х2х0,75
Труба жесткая,
кабельный лоток
15
Лист
502/1-2/25-ПС1.КЖ
Изм. К.уч. Лист №док
.
Подп.
13
Дата
Формат А4

53.

Z74.1
4SC2.74-75
BTH1.3
КПСнг(А)-FRHF 1х2х0,75
Труба жесткая,
кабельный лоток
15
Z76.1
4SC2.76-77
BTH1.4
КПСнг(А)-FRHF 1х2х0,75
Труба жесткая,
кабельный лоток
15
Z78.1
4SC2.78-79
BTH1.1
КПСнг(А)-FRHF 1х2х0,75
Труба жесткая,
кабельный лоток
15
Z80.1
4SC2.80-81
BTH1.2
КПСнг(А)-FRHF 1х2х0,75
Труба жесткая,
кабельный лоток
15
Z82.1
4SC2.82-83
BTH1.3
КПСнг(А)-FRHF 1х2х0,75
Труба жесткая,
кабельный лоток
15
Z84.1
4SC2.84-85
BTH1.4
КПСнг(А)-FRHF 1х2х0,75
Труба жесткая,
кабельный лоток
15
70
Инв. № подл.
Подп. и дата
Взам.инв.№
Линия ДПЛС 5.1.1
D5.1.1.1
ШПС№5.1
ARK5.1.1
4AR1.100101
КПСнг(А)-FRHF 1х2х0,75
Труба жесткая
оцинкованная;
Труба жесткая
ПВХ
D5.1.1.2
4AR1.100101
4AR1.102103
КПСнг(А)-FRHF 1х2х0,75
Труба жесткая
оцинкованная
10
D5.1.1.3
4AR1.102103
5BTH1.1
КПСнг(А)-FRHF 1х2х0,75
Труба жесткая
оцинкованная
20
D5.1.1.4
5BTH1.1
5BTM1.2
КПСнг(А)-FRHF 1х2х0,75
Труба жесткая
оцинкованная
40
D5.1.1.5
5BTM1.2
5BTM1.3
КПСнг(А)-FRHF 1х2х0,75
Труба жесткая
оцинкованная
30
D5.1.1.6
5BTM1.3
ШК11
КПСнг(А)-FRHF 1х2х0,75
Труба жесткая
оцинкованная
10
D5.1.1.7
ШК11
5UDP1.9
КПСнг(А)-FRHF 1х2х0,75
Труба жесткая
оцинкованная
10
D5.1.1.8
5UDP1.9
5BTM1.4
КПСнг(А)-FRHF 1х2х0,75
Труба жесткая
оцинкованная
20
D5.1.1.9
5BTM1.4
ШК12
КПСнг(А)-FRHF 1х2х0,75
Труба жесткая
оцинкованная
20
D5.1.1.10
ШК12
5UDP1.10
КПСнг(А)-FRHF 1х2х0,75
Труба жесткая
оцинкованная
20
Лист
502/1-2/25-ПС1.КЖ
Изм. К.уч. Лист №док
.
Подп.
14
Дата
Формат А4

54.

D5.1.1.11
5UDP1.10
5BTM1.5
КПСнг(А)-FRHF 1х2х0,75
Труба жесткая
оцинкованная
10
D5.1.1.12
5BTM1.5
5SC1.70-71
КПСнг(А)-FRHF 1х2х0,75
Труба жесткая
оцинкованная
30
D5.1.1.13
5SC1.70-71
5BTM1.6
КПСнг(А)-FRHF 1х2х0,75
Труба жесткая
оцинкованная
20
D5.1.1.14
5BTM1.6
5BTM1.7
КПСнг(А)-FRHF 1х2х0,75
Труба жесткая
оцинкованная
30
D5.1.1.15
5BTM1.7
5SC1.72-73
КПСнг(А)-FRHF 1х2х0,75
Труба жесткая
оцинкованная
30
D5.1.1.16
5SC1.72-73
5UDP1.8
КПСнг(А)-FRHF 1х2х0,75
Труба жесткая
оцинкованная
40
D5.1.1.17
5UDP1.8
SHA№8.1
КПСнг(А)-FRHF 1х2х0,75
Труба жесткая
оцинкованная
4
D5.1.1.18
SHA№8.1
ШПС№5.1
ARK5.1.1
КПСнг(А)-FRHF 1х2х0,75
Труба жесткая
оцинкованная
4
Линия контроля открытия-закрытия ворот
Z70.1
5SC1.70-71
Ворота
КПСнг(А)-FRHF 1х2х0,75
Труба жесткая
оцинкованная
15
Z72.1
5SC1.72-73
Ворота
КПСнг(А)-FRHF 1х2х0,75
Труба жесткая
оцинкованная
15
Инв. № подл.
Подп. и дата
Взам.инв.№
Линия ДПЛС 5.2.1
D5.2.1.1
ШПС№5.1
ARK5.1.1
5UDP2.7
КПСнг(А)-FRHF 1х2х0,75
Труба жесткая
оцинкованная
20
D5.2.1.2
5UDP2.7
5SC2.86-90
КПСнг(А)-FRHF 1х2х0,75
Труба жесткая
оцинкованная
50
D5.2.1.3
5SC2.86-90
5BTM2.1
КПСнг(А)-FRHF 1х2х0,75
Труба жесткая
оцинкованная
15
D5.2.1.4
5BTM2.1
5SC2.70-71
КПСнг(А)-FRHF 1х2х0,75
Труба жесткая
оцинкованная
30
D5.2.1.5
5SC2.70-71
5SC2.72-73
КПСнг(А)-FRHF 1х2х0,75
Труба жесткая
оцинкованная
30
D5.2.1.6
5SC2.72-73
5BTM2.2
КПСнг(А)-FRHF 1х2х0,75
Труба жесткая
оцинкованная
10
Лист
502/1-2/25-ПС1.КЖ
Изм. К.уч. Лист №док
.
Подп.
15
Дата
Формат А4

55.

D5.2.1.7
5BTM2.2
ШК13
КПСнг(А)-FRHF 1х2х0,75
Труба жесткая
оцинкованная
30
D5.2.1.8
ШК13
5BTM2.3
КПСнг(А)-FRHF 1х2х0,75
Труба жесткая
оцинкованная
10
D5.2.1.9
5BTM2.3
5BTM2.4
КПСнг(А)-FRHF 1х2х0,75
Труба жесткая
оцинкованная
70
D5.2.1.10
5BTM2.4
5BTM2.5
КПСнг(А)-FRHF 1х2х0,75
Труба жесткая
оцинкованная
60
50
D5.2.1.11
5BTM2.5
5BTM2.6
КПСнг(А)-FRHF 1х2х0,75
Труба жесткая
оцинкованная;
Труба жесткая
ПВХ
D5.2.1.12
5BTM2.6
ШПС№5.1
ARK5.1.1
КПСнг(А)-FRHF 1х2х0,75
Труба жесткая
оцинкованная;
Труба жесткая
ПВХ
80
Линия контроля открытия-закрытия ворот
Z70.1
5SC2.70-71
Ворота
КПСнг(А)-FRHF 1х2х0,75
Труба жесткая
оцинкованная
15
Z72.1
5SC2.72-73
Ворота
КПСнг(А)-FRHF 1х2х0,75
Труба жесткая
оцинкованная
15
Итого общая длина:
ARK2
SHA№2.1
КОПСЭнг(А)-FRHF
1х2х0.8
Труба жесткая оцинкованная
550
RS2.2
ARK2
SHA№2.1
КОПСЭнг(А)-FRHF
1х2х0.8
Труба жесткая
оцинкованная
550
Взам.инв.№
RS3.1
ARK3
SHA№5.1
КОПСЭнг(А)-FRHF
1х2х0.8
Труба жесткая
оцинкованная
400
RS3.2
ARK3
SHA№5.1
КОПСЭнг(А)-FRHF
1х2х0.8
Труба жесткая
оцинкованная
400
RS4.1
ARK4
ШПС№4.2
КОПСЭнг(А)-FRHF
1х2х0.8
Короб
перфорированный
50x50
400
RS4.2
ARK4
ШПС№4.2
КОПСЭнг(А)-FRHF
1х2х0.8
Короб
перфорированный
50x50
400
Инв. № подл.
RS2.1
Подп. и дата
Линия RS-485
Лист
502/1-2/25-ПС1.КЖ
Изм. К.уч. Лист №док
.
Подп.
16
Дата
Формат А4

56.

RS5.1
ARK5
SHA№8.1
КОПСЭнг(А)-FRHF
1х2х0.8
Короб
перфорированный
50x50
400
RS5.2
ARK5
SHA№8.1
КОПСЭнг(А)-FRHF
1х2х0.8
Короб
перфорированный
50x50
400
Итого общая длина:
Кабели системы СОУЭ
КПСЭнг(А)FRHF 1х2х1.5
ППГнг(А)FRHF 4x1,5
15400
7000
Инв. № подл.
Подп. и дата
Взам.инв.№
Кабели системы ДУ
3500
Лист
502/1-2/25-ПС1.КЖ
Изм. К.уч. Лист №док
.
Подп.
17
Дата
Формат А4

57.

Министерство Российской Федерации
по делам гражданской обороны,
чрезвычайным ситуациям и ликвидации
последствий стихийных бедствий
Информация
из реестра физических лиц, аттестованных на право проектирования средств
обеспечения пожарной безопасности зданий и сооружений, которые введены в
эксплуатацию, по состоянию на 02:05 14.06.2025
1. Статус лицензии: Действителен
2. Регистрационный номер: Т002-00101-77/00619812
3. Срок действия аттестации: с 03.10.2022 до 03.10.2027
4. Фамилия, имя и отчество (при наличии) лица, аттестованного на право проектирования
средств обеспечения пожарной безопасности зданий и сооружений, которые введены в
эксплуатацию: Крюкова Виктория Александровна
5. Номер и дата протокола территориального органа об аттестации:
Протокол ГУ МЧС России по г. Москве № 1520 от 03.10.2022
Документ носит информационный характер, после его составления в реестр пожарной безопасности могли быть внесены изменения.
Powered by TCPDF (www.tcpdf.org)

58.

Cпецификация оборудования, изделий и материалов
Позиция
1
1
2
3
4
5
6
7
8
9
10
11
12
13
14
15
16
17
18
19
20
21
22
1
2
3
4
5
6
7
8
9
108/Тула_к.1/20.10.2025/Haval/4
Наименование и техническая характеристика
Тип, марка, обозначение
документа, опросного листа
Код оборудования
изделия,
материала
Завод-изготовитель
Единица
измерения
Пакет 2
Пакет 3
Масса
единицы , кг
Примечание
2
3
4
5
6
7
8
9
10
ШПС-12 исп.12
Болид
шт
6
6
С2000-КДЛ-2И
С2000-КПБ
С2000-СП2
С2000-АР8
ДИП-34А-03
ДИП-34А-04
ИПР 513-3АМ ИСП.01 IP67
МПН
УК-ВК исп.12
РИП-12 исп.54
DTM 1207
DTM 1217
YKM40-03-54
С2000-АР2 исп.02
Болид
Болид
Болид
Болид
Болид
Болид
Болид
Болид
Болид
Болид
Delta
Delta
IEK
Болид
шт
шт
шт
шт
шт
шт
шт
шт
шт
шт
шт
шт
шт
шт
12
6
12
6
2
2
27
48
6
6
6
12
6
35
9
6
30
17
21
8
61
151
2
0
0
18
3
18
Болид
шт
35
0
Болид
Болид
Болид
Болид
Болид
шт
шт
шт
шт.
шт.
0
0
0
0
0
4
16
1
5
3
Болид
шт.
0
3
«LPA»
«LPA»
«LPA»
шт
шт
шт
шт
шт
шт
40
10
0
40
10
0
93
0
31
0
124
12
шт
15
35
шт
16
58
шт
17
56
Склад. Оборудование СПС
Шкаф с резервированным источником питания для монтажа средств
пожарной автоматики
Контроллер двухпроводной линии связи
Контрольно-пусковой блок
Блок сигнально-пусковой
Адресный расширитель на 8 зон
Извещатель пожарный дымовой адресно-аналоговый
Извещатель пожарный дымовой адресно-аналоговый
Извещатель пожарный ручной адресный
Модуль подключения нагрузки МПН
Устройство коммутационное УК-ВК исп.12
Резервированный источник питания с интерфейсом RS-485
Аккумуляторная батарея, 12В,17Ач DTM 1207
Аккумуляторная батарея, 12В,17Ач DTM 1217
Корпус металлический ЩМП-3-0 650х500х220 У2 IP54
Адресный расширитель
Адресный измеритель влажности С2000-ВТ
Извещатели охранные магнитоконтактные адресные
Устройство дистанционного пуска адресное
Блок контрольно-пусковой
Блок сигнально-пусковой адресный С2000-СП4/220
Блок коммутации БК-12-RS485-01
Модуль источника питания
С2000-ВТ
С2000-СМК исп.07
УДП 513-3АМ исп.02
ШКП-10RS
С2000-СП4/220
АЦДР.413614.00
1
МИП-12 исп.20 (МИП-12-3/П5Р-RS)
Склад. Оборудование СОУЭ
Широкополосный настенный громкоговоритель
Широкополосный настенный громкоговоритель
Широкополосный настенный громкоговоритель
Конденсатор 3,3 мкФ для LPA-EVA
Конденсатор 6,8 мкФ для LPA-EVA
Резистор металлооксидный MO-200 (С2-23) 2 Вт, 10 кОм, 5%
LPA-20P
LPA-10W
LPA-6W
250V 3.3UF
250V 6.8UF
Оповещатель охранно-пожарный световой (табло) "Выход"
Кристал-12
Оповещатель охранно-пожарный световой (табло) "Стрелка вправо"
Кристал-12
Оповещатель охранно-пожарный световой (табло) "Стрелка влево"
Кристал-12
СПС и СОУЭ
14378
Тайвань
Электротехника и
автоматика
Электротехника и
автоматика
Электротехника и
автоматика
502/1-2/25-ПС1.С_ПНК

59.

Cпецификация оборудования, изделий и материалов
Позиция
1
1
2
3
108/Тула_к.1/20.10.2025/Haval/4
Наименование и техническая характеристика
Тип, марка, обозначение
документа, опросного листа
Код оборудования
изделия,
материала
Завод-изготовитель
Единица
измерения
Пакет 2
Пакет 3
Масса
единицы , кг
Примечание
2
3
4
5
6
7
8
9
10
ВЕЗА
AVT1969
ВЕЗА
шт
шт
шт
35
35
0
0
0
9
Склад. Оборудование ДУ
Шкаф ШКВАЛ-ЛК
Обогрев контура в люках дымоудаления
Шкаф ШКВАЛ-ЛК
ШКВАЛ-ЛК-02-(ЦШ+ЦШ)-Х
ДУ
502/1-2/25-ПС1.С_ПНК

60.

Cпецификация оборудования, изделий и материалов
Позиция
1
1
2
3
4
5
6
1
2
3
4
5
6
7
8
9
10
11
12
13
14
15
16
17
18
19
20
21
22
23
24
25
26
27
28
29
108/Тула_к.1/20.10.2025/Haval/4
Наименование и техническая характеристика
Тип, марка, обозначение
документа, опросного листа
Код оборудования
изделия,
материала
Завод-изготовитель
Единица
измерения
Пакет 3
Масса
единицы , кг
Примечание
2
3
4
5
6
7
8
9
компл.
70
Склад. Материалы
Узел монтажа и подключения ДЗ,СПЖ, ОЗК
ПНК-Д-2023.ПС.006
Автоматический выключатель
S202 C3А/2п/ 6,0кА на Dinрейку 2CDS252001R0034 C3
АВВ
шт.
3
Автоматический выключатель
S202 C16А/2п/ 6,0кА на Dinрейку 2CDS252001R0164 C16
АВВ
шт.
3
Промрукав
Промрукав
EKF
шт.
шт.
м
9
63
18
Муфта вводная усиленная для гофрированных труб
Муфта вводная усиленная для гофрированных труб
Кабель-канал 50х50 перфорированный
Огнестойкая кабельная линия ОКЛ, серии ЖТ, МЛ, СТ Сертификат
соответствия №ССБК RU.ПБ21.Н.00149 в составе:
Кабели парной скрутки огнестойкие для систем пожарной сигнализации
Кабели парной скрутки огнестойкие для систем пожарной сигнализации
КПСЭнг(А)-FRHF 1х2х0.75
КПСЭнг(А)-FRHF 1х2х1.5
СегментЭНЕРГО
СегментЭНЕРГО
м
м
5500
15400
Кабели огнестойкие симметричные, для промышленного интерфейса RS-485
КОПСЭнг(А)-FRHF 1х2х0.8
СегментЭНЕРГО
м
3500
ППГнг(А)-FRHF 4x1,5
ППГнг(А)-FRHF 4x2,5
PR.01420
6008-20L3
PR.01432
ПНК-Д-2023.ПС.009
ПНК-Д-2023.ПС.011
ПНК-Д-2023.ПС.010
ПНК-Д-2023.ПС.009
ПНК-Д-2023.ПС.011
ПНК-Д-2023.ПС.010
ПНК-Д-2023.ПС.013
ПНК-Д-2023.ПС.014
КП-ПМ-КТ-125
ПНК-Д-2023.ПС.004
ПНК-Д-2023.ПС.005
ПНК-Д-2023.ПС.008
3510110
DKC-2018.В5.12
DKC-2018.S5.01
DKC-2018.S5.07
DKC-2018.S5.23
ПНК-Д-2023.ПС.015
DKC-2018.S5.16
DKC-2018.S5.05
ПНК-Д-2023.ПС.012
СегментЭНЕРГО
СегментЭНЕРГО
Промрукав
ДКС
Промрукав
м
м
м
м
шт.
шт.
шт.
шт.
шт.
шт.
шт.
шт.
шт.
шт.
шт.
шт.
шт.
шт.
шт.
шт.
шт.
шт.
шт.
шт.
шт.
шт.
7000
50
4500
15000
900
4500
1500
2000
900
300
300
15000
7500
30
77
149
9
130
110
100
1
2
20
9
9
12000
Кабели парной скрутки огнестойкие для систем пожарной сигнализации
Кабели парной скрутки огнестойкие для систем пожарной сигнализации
Труба жесткая ПВХ 3-х метровая легкая серая д20
Труба жесткая оцинкованная ø20x1x3000 мм
Труба жесткая ПВХ 3-х метровая d32
Узел крепления ПВХ трубы d20 мм к бетону
Узел соединения жестких ПВХ труб d20 мм
Узел углового соединения ПВХ труб d20 мм
Узел крепления ПВХ трубы d32 мм к бетону
Узел соединения жестких ПВХ труб d32 мм
Узел углового соединения ПВХ труб d32 мм
Узел крепления жесткой оцинкованной трубы
Узел соединения жесткой оцинкованной трубы
Узел монтажа кабельной проходки
Узел монтажа извещателя пожарного ручного
Узел монтажа на стену оповещателя светового
Узел опуска к ЩД
Лоток неперфорированный 100х100, L=3000, 1.0мм
Узел крепления лотка к профнастилу
Узел соединения лотка
Узел ответвителя Т-образного DPT
Узел шарнирного изменения угла трассы
Узел монтажа лотка на стене
Узел угла вертикальный внутренний 90 градусов 100х100
Узел угла горизонтальный 90 градусов 100х100
Узел маркировки кабельных линий
ВМУ-ГТ-25 (М25)
ВМУ-ГТ-20 (М20)
kk50-50 EKF
ПС
PR08.3274
PR08.3273
kk50-50
ДКС
ДКС
ДКС
ДКС
ДКС
ДКС
ДКС
502/1-2/25-ПС1.С_Подряд
English     Русский Rules