13.96M
Category: draftingdrafting

Лекция 2. Особенности выполнения архитектурно - строительных чертежей

1.

Лекция 2
ОСОБЕННОСТИ ВЫПОЛНЕНИЯ
АРХИТЕКТУРНО - СТРОИТЕЛЬНЫХ ЧЕРТЕЖЕЙ
2025
Лектор - Лукина Ирина Кимовна

2.

Строительству любого здания
предшествует
разработка
проектно-сметной документации.
Проектирование
может
осуществляться в одну стадию
(рабочий проект) или в две
стадии
(проект
и
рабочая
документация)

3.

Строительными чертежами называют чертежи, которые содержат проекционные
изображения строительных объектов или их частей и другие данные, необходимые для их
возведения, а также для изготовления строительных изделий и конструкций.
При выполнении строительных чертежей необходимо руководствоваться ГОСТами ЕСКД
(единая система конструкторской документации) и СПДС (система проектной
документации для строительства).

4.

5.

Архитектурно-строительный чертеж

6.

7.

Изображения сооружений на строительных чертежах имеют свои названия:
фасад, план, разрез.
На фасаде показывают видимые элементы здания. В зависимости от
направления взгляда фасады бывают главные, дворовые, торцовые.
Фасад – фронтальная
проекция (обычно имеется
ввиду главный фасад)
боковой
фасад–
профильная проекция
Фасады изображаются в масштабах 1:200; 1:100; 1:50; 1:25.

8.

9.

Чертеж плана – горизонтальная проекция (горизонтальный разрез, т.е.
изображение,
полученное
при
мысленном
рассечении
здания
горизонтальной плоскостью на уровне чуть выше подоконников).

10.

Планы бывают этажные, крыши, перекрытия, фундамента и.т.д.
При взгляде сверху вниз (план) или снизу вверх (плафон)
Планы зданий вычерчиваются в масштабах 1:200; 1:100; 1:50; 1:25

11.

Разрез – это изображение здания, мысленно рассеченного вертикальной
плоскостью, проходящей , как правило, по осям оконных и дверных проемов

12.

Чертежи архитектурных разрезов
Чертежи архитектурных разрезов изображаются в масштабах 1:100; 1:50; 1:25
(иногда - в масштабах 1:75; 1:40; 1:20; 1:10; 1:5)

13.

Иногда разрезы совмещают с частью фасада

14.

15.

Чертеж архитектурной детали –
условное ортогональное изображение проекций архитектурных деталей,
как элементов архитектурной пластики фасадов и интерьеров здания
Архитектурная деталь изображается в масштабе 1:25; 1:10; 1:5; 1:2; 1:1

16.

17.

Чертеж разверток стен –
условное изображение ортогональных проекций поверхностей стен
интерьеров
Масштаб чертежей разверток 1:100; 1:50; 1:25; 1:10

18.

Чертеж генерального плана (генплан) –
ортогональное изображение комплекса зданий и сооружений.
На генплане показывают или планы сооружений, или проекции
сооружений с обозначением очертания его кровли (чертеж кровли)
Генпланы выполняются в масштабах 1:5000; 1:2000; 1:1000; 1:500; 1:200.
(Иногда - 1:4000; 1:3000; 1:400; 1:250; 1:200)

19.

20.

Изображение рельефа местности
Для изображения на планах рельефа местности и определения
относительной высоты различных точек поверхности применяется так
называемый способ горизонталей. При этом методе изображения рельефа
все точки поверхности, имеющие одинаковую высоту, будут лежать на
одной и той же линии — горизонтали.

21.

Изгибы горизонталей соответствуют формам рельефа местности, а по числу
их можно судить об относительной высоте возвышенности, если известно
вертикальное расстояние между секущими плоскостями. В тех местах, где
скаты пологие, расстояние между горизонталями больше, а в тех местах, где
скаты круче, горизонтали ложатся ближе одна к другой.
Бергштрих
Холм
Впадина

22.

«Роза ветров»
На генеральных планах нередко дают направление и частоту
господствующих ветров в данной местности при помощи особого графика,
называемого «розой ветров». На этом графике откладываются в
определенном масштабе величины повторяемости ветра, выраженные в
процентах к общему количеству наблюдений ветров.
Отложенные точки соединяют прямыми линиями, которые и образуют «розу
ветров». Этот график показывает, откуда дует ветер и как часто он дует.

23.

24.

25.

26.

3
КООРДИНАЦИОННЫЕ ОСИ ЗДАНИЯ
Здание или сооружение в плане разделяется осевыми линиями на ряд
элементов. Эти линии, определяющие расположение основных несущих
конструкций (стен, колонн), называются координационными осями.

27.

Координационные оси наносят на изображения здания, сооружения
тонкими штрихпунктирными линиями с длинными штрихами (до 30
мм), обозначают арабскими цифрами и прописными буквами русского
алфавита (за исключением букв: Ё, З, Й, О, Х, Ц, Ч, Щ, Ъ, Ы, Ь) в
кружках диаметром 6-12 мм

28.

Маркировка координационных осей производится арабскими цифрами
и прописными буквами, за исключением символов: 3, Й, О, X,Ы, Ъ, Ь.
Высота шрифта обозначающего координационные оси выбирается на
один-два номера больше, чем величина чисел на этом же листе.
Направление маркировки осей наносят слева направо, по горизонтали
и снизу вверх, по вертикали.
Маркировка осей располагается, как правило, по левой и нижней
сторонам плана здания.

29.

Интервал между координационными осями в плане здания
называют шагом, а по преобладающему направлению шаг
может быть продольным или поперечным.
В том случае если расстояние, между координационными
продольными осями, совпадает с пролётом, перекрытием или
покрытием, основной несущей конструкции, то этот интервал
называют пролетом.

30.

Капитальные стены привязывают к координационным осям, т.е.
определяют расстояния от внутренней и наружной плоскости стены до
координационной оси здания
Расстояние от координационной оси до грани или геометрической
оси элемента называется привязкой.

31.

Координационные оси не всегда должны совпадать с геометрическими осями
стен.
Существуют следующие виды привязок:
двухсторонняя
односторонняя (нулевая)
односторонняя с зазором

32.

В наружных несущих стенах координационная ось проходит от внутренней
плоскости стен на расстоянии, равном половине номинальной толщины
внутренней несущей стены, кратном модулю или его половине. В
кирпичных стенах это расстояние чаще всего принимают равным 200 мм,
или равным модулю, т.е. 100 мм.
Наружная плоскость стены

33.

В наружных самонесущих стенах, если панели перекрытий не заходят в
нее, для удобства расчета количества стандартных элементов
перекрытия координационную ось совмещают с внутренней гранью
стены, что получило наименование нулевой привязки.
Наружная плоскость стены

34.

Если элементы перекрытия опираются на наружную стену по всей ее
толщине, координационная ось совмещается с наружной гранью стены.
Наружная плоскость стены

35.

Во внутренних стенах геометрическая ось симметрии совмещается с
координационной осью.
Наружная плоскость стены
Отступление от этого правила допускается для стен лестничных клеток и
стен с вентиляционными каналами.

36.

Координационную ось наружной стены располагают на расстоянии, а = 100 мм,
соблюдая отступ для установки плит перекрытия

37.

4
РАЗМЕРЫ НА СТРОИТЕЛЬНЫХ ЧЕРТЕЖАХ

38.

Размеры на строительных чертежах
Размеры в миллиметрах на строительных чертежах, как правило,
наносят в виде замкнутой цепочки без указания единицы
измерения.

39.

Размерные линии на строительных чертежах оформляют засечками
вместо стрелок (короткими штрихами длиной 2–4 мм, проводимыми под
углом 45º к размерной линии).

40.

Толщина линии засечки равна толщине сплошной основной толстой линии.
Размерные линии должны выступать за крайние выносные линии на 2–3 мм.
Размерное число располагают над размерной линией на расстоянии 0,8–1,0 мм.
Выносная линия должна выступать за размерную на 1–5 мм.

41.

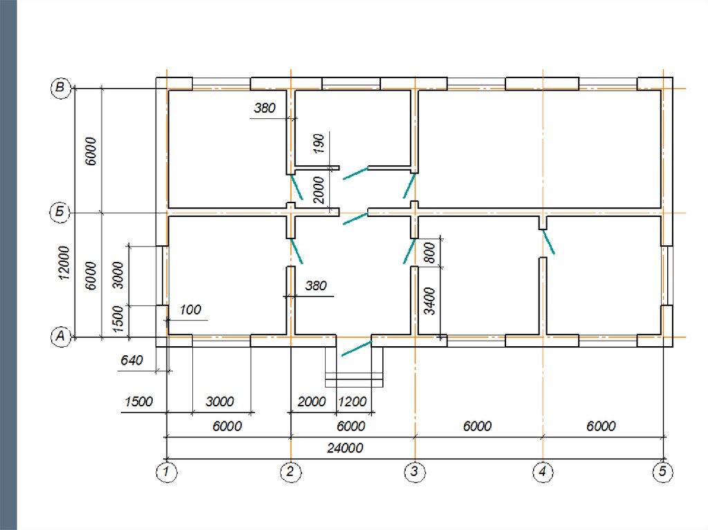
Простановка размеров на планах зданий
Первая размерная линия располагается на расстоянии 15—
20 мм от внешнего контура здания. Если здание имеет
выступающие части (эркер, крыльцо, ступени входа), то это
расстояние принимают от наиболее выступающей части.
Размерные линии следует располагать на расстоянии 7—10 мм
друг от друга.

42.

На чертеже плана здания необходимо указать три линии (цепочки)
размеров:
а) на первой размерной линии указывают размеры проемов и простенков;

43.

б) на второй размерной линии проставляют размеры между модульными
разбивочными осями несущих конструкций (наружных стен, внутренних
капитальных стен или столбов);
в) на третьей размерной линии указывают общие (габаритные) размеры
между осями наружных стен здания.

44.

Отметки высот
Отметкой называется выраженное в
метрах превышение уровня данной
горизонтальной плоскости над уровнем,
принятым на нуль. За нулевую отметку
принимают обычно уровень чистого
пола 1 этажа (ур. ч.п. 0.000).
Отметка 0,000 – уровень чистого
пола (то есть той поверхности, по
которой ходят люди)

45.

Отметки выше пола 1 этажа обозначают знаком + (плюс),
ниже пола 1 этажа знаком — (минус)

46.

Знак отметки уровня, на строительных чертежах наносится в виде
стрелки с прямым углом, указывающей на местоположение уровня.

47.

48.

Простановка отметок на разрезах и фасадах

49.

За высоту этажа Нэт принимается расстояние от уровня пола
выбранного этажа до уровня пола вышерасположенного
этажа.

50.

На фасаде указывают только высотные отметки

51.

Вне контура на разрезе наносятся следующие размеры:
•расстояние между координационными осями и крайними осями;
•вертикальные размеры проемов и простенков;
•высотные размеры проемов и простенков.

52.

Внутри контура наносятся следующие размеры:
•высота помещений;
•толщина перегородок

53.

Линии-выноски, как правило, заканчиваются полками, на которые
наносят краткие указания. Линию-выноску, пересекающую контур
изображения и не идущую от какой-либо линии, заканчивают
точкой. Линию-выноску, отводимую от линии видимого или
невидимого контура, а также от линий, обозначающих
поверхность, заканчиваются стрелкой

54.

Оконные и дверные проёмы
Проёмами называют отверстия в стенах или перегородках.
В зависимости от назначения различают оконные и дверные
проёмы, которые заполняются, соответственно, оконными и
дверными блоками.
Верхние и боковые поверхности, ограничивающие проём,
называют откосами или притолоками. В проёмах наружних
кирпичных стен откосы обычно делают с «четвертями», т. е.
выступами кирпича на 1/4 часть (65 мм) с наружной стороны стены
внутрь проёма.
«Четверти» уменьшают продуваемость окон и облегчают
установку в проёмы оконных и дверных блоков. «Четверть» в
верхней притолоке получают за счёт укладки железобетонных
перемычек по верху проёма.

55.

«Четверть» и её изображение на чертеже

56.

•наружная дверь должна открываться только по направлению
выхода из здания;
•направление открывания внутриквартирных (межкомнатных) дверей
выбирать исходя из удобства эксплуатации помещений;
• двери ведущие из квартир на лестницу, должны открываться во
внутрь квартиры.
Проем для наружной двери выполняется с четвертью. Дверное
полотно на плане изобразить толстой сплошной линией под углом
30.

57.

58.

В разговорной практике строителей, да и в литературе,
встречаются выражения: стена в два кирпича, перегородка в
кирпич и др.
красный кирпич и его размеры
Размер 250 мм называют размером в кирпич, размер 120 мм
– размером в полкирпича, размер 65 мм называют размером в
четверть кирпича, толщина стены в два кирпича равна 510 мм,
где 10 мм толщина шва, толщина стены в полтора кирпича – 380
мм и др.

59.

Изображение на плане дверей и окон

60.

Оконные и дверные проемы. На разрезах стены изображают сплошными
основными линиями, оконные проемы - сплошными тонкими линиями. На
планах в местах дверных проемов линий не проводят, но показывают
полотно двери и направление, куда открывается дверь. На вертикальных
разрезах в местах дверных проемов проводят тонкие линии.
Обрыв стен показывают тонкими волнистыми линиями.

61.

62.

63.

5
ЭТАПЫ ВЫЧЕРЧИВАНИЯ ПЛАНА ЗДАНИЯ
План рекомендуется выполнять в следующей последовательности:
1. Наносят координационные оси, сначала продольные, потом
поперечные. Эти оси являются условными геометрическими
линиями. Они служат для привязки здания к строительной
координационной сетке и реперам генерального плана, а также
для определения положения несущих конструкций, так как эти
оси проводят только по капитальным стенам и колоннам. В
отдельных случаях они могут не совпадать с осями симметрии
стен.

64.

Продольные и поперечные координационные оси

65.

2. Прочерчивают тонкими линиями (толщиной 0,3—0,4 мм)
контуры продольных и поперечных наружных и внутренних
капитальных стен и колонн
3. Вычерчивают контуры перегородок тонкими линиями
Вычерчивание стен и перегородок

66.

4. Выполняют разбивку оконных и дверных проемов . Обводят контуры стен и
перегородок.
5. Вычерчивают условные обозначения лестниц, санитарно-технического и
прочего оборудования. Указывают направление открывания дверей.
6. Наносят выносные, размерные линии, кружки координационных осей.
Вычерчивание проёмов, сантехнических приборов

67.

7. Проставляют необходимые размеры, марки осей и других элементов. В
габаритах плана указывают на размеры помещений, толщину стен,
перегородок, привязку внутренних стен к координационным осям, перегородок
к внутренним и наружным стенам или к разбивочным осям. Наносят размеры
проемов во внутренних стенах, в кирпичных перегородках, а также их привязку
к контуру стен или к координационным осям.
Простановка размеров и надписей

68.

То на сколько насыщен тот или иной архитектурный план различными деталями,
во многом зависит от его масштаба. Зависимость в данном случае наблюдается
прямо пропорциональная: чем масштаб выше, тем больше внимания нужно
уделять деталям.
Современные архитектурно-строительные планы различных зданий часто
бывают очень насыщенны множеством разнообразных деталей. Поэтому
зачастую бывает очень важно отыскать именно такой метод их графического
выполнения, который даст возможность наилучшим образом выявить все
конструкционные достоинства того или иного сооружения, а также особенности
архитектурно-конструктивного построения плана.

69.

70.

71.

Порядок вычерчивания разреза здания
1. Сначала для всех основных несущих стен проводят вертикальные
координационные оси.
2. Затем проводят горизонтальные линии уровней, которые располагаются
перпендикулярно координационным осям. Таковыми являются линии
поверхности земли, условного верха карниза и чердачного перекрытия, а
также полов всех этажей.

72.

3. При помощи тонких линий производят нанесение контуров входящих в
разрез внутренних, наружных стен, перегородок. Кроме того, указывают
высоты чердачного и междуэтажных перекрытий, а также конька крыши.
Помимо этого вычерчивают скат крыши, выносы цоколя и карниза от стены.
Нанесение контуров наружных и внутренних стен

73.

4. Во внутренних и наружных стенах и перегородках намечают оконные и
дверные проемы, находящиеся за секущей плоскостью, видимые дверные
проемы и прочие элементы зданий.
5. Проводят выносные и размерные линии, знаки, с помощью которых
производится простановка высотных отметок, а также кружков, которыми
маркируются координационные оси.
Оконные и дверные проемы

74.

6. На заключительном этапе построения и вычерчивания разрезов
зданий
производят
окончательное
обведение
сечений,
проставляют все размеры и высотные отметки, наносят
необходимые поясняющие надписи, наименования, а также
удаляют лишние линии.
Простановка высотных отметок и размеров

75.

76.

Задание № 1
Выполнить чертеж плана этажа в масштабе 1:100
Указать конструкционные оси и необходимые размеры
Оформить чертеж рамкой и основной надписью
Все надписи выполняются либо чертежным шрифтом, либо узким
архитектурным
English     Русский Rules