Выпускная квалификационная работа Совершенствование технологического процесса восстановления выгрузного шнека зерноуборочного
1.40M
Category: industryindustry
Similar presentations:

Совершенствование технологического процесса восстановления выгрузного шнека зерноуборочного комбайна

1. Выпускная квалификационная работа Совершенствование технологического процесса восстановления выгрузного шнека зерноуборочного

комбайна
25.663.19
Выполнил:
Руководитель: д.т.н., доцент
Смолькин А.А.
Морозов А.В.

2.

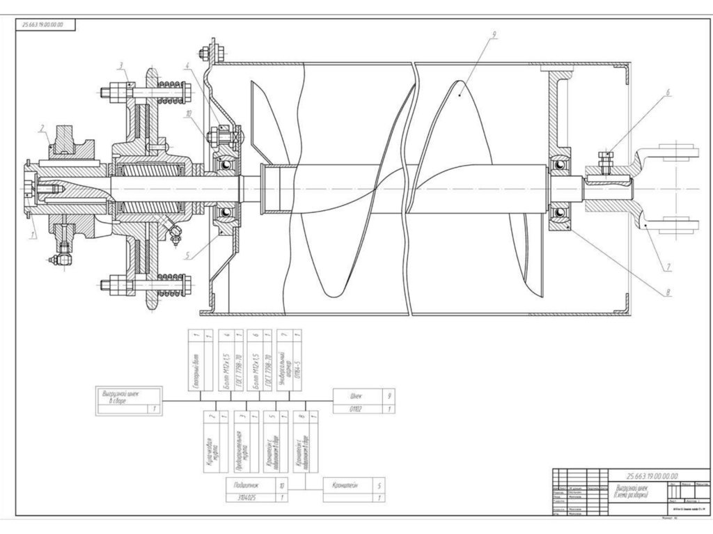
Цель ВКР: Повышение эффективности восстановления выгрузного
шнека зерноуборочного комбайна
Задачи ВКР:
- выполнить анализ дефектов выгрузного шнека зерноуборочного
комбайна;
- разработать технологический процесс восстановления выгрузного
шнека зерноуборочного комбайна;
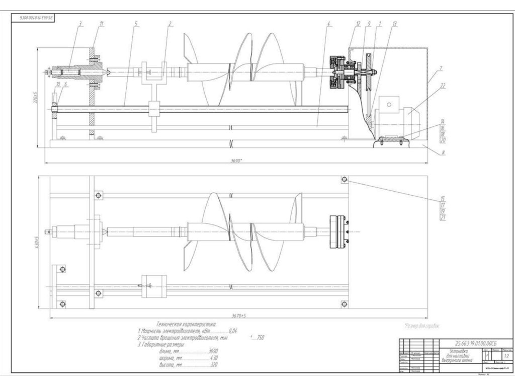
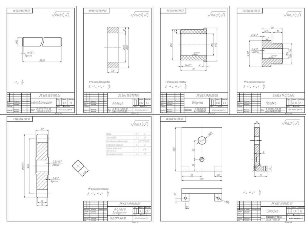
- разработать приспособление для механизированной наплавки цапф
выгрузного шнека зерноуборочного комбайна Енисей-950. Выполнить
технологические и прочностные расчеты приспособления;
- разработать мероприятия по безопасности и экологичности при
реализации
технологии
восстановления
выгрузного
шнека
зерноуборочного комбайна;
- рассчитать экономическую эффективность от применения
разработанной технологии восстановления выгрузного шнека комбайна
Енисей-950.

3.

4.

5.

6.

7.

8.

9.

ОБЩИЕ ВЫВОДЫ
Выполнен
анализ
условий
эксплуатации
и
дефектов
выгрузного
шнека
зерноуборочного комбайна Енисей – 950, на основании которого установлено, что до
87 % приходится на износ поверхности цапфы.
Разработан технологический процесс восстановления выгрузного шнека комбайна
Енисей-950, суммарное время на восстановление составляет 6,7 часа.
На
основании
патентного
анализа
разработано
приспособление
для
механизированной наплавки цапф выгрузного шнека комбайна Енисей-950, которое
также может применяться и для наплавки других деталей типа «вал». Выполнены
технологические и прочностные расчеты основных деталей данного приспособления.
Разработаны
мероприятия
по
обеспечению
безопасности
труда
при
восстановлении цапф выгрузного шнека зерноуборочного комбайна.
Предложены мероприятия, позволяющие улучшить экологическую обстановку на
участке восстановления.
Установлено, что предлагаемая технология экономически целесообразна. При
дополнительных капиталовложениях 1027,6 тыс. руб. годовой экономический эффект
составит 693,2 тыс. руб. при сроке окупаемости капитальных вложений 1,5 года.

10.

Спасибо за внимание!
English     Русский Rules