Дом купца О.К. Полуэктова
15.25M
Category: historyhistory

Дом купца О.К. Полуэктова

1. Дом купца О.К. Полуэктова

Рабочая группа: студенты 3-4
курса СамГТУ ФАиД
Терешко Александр
Владимирович,
Палухина Виктория
Владимировна,
Максимова Татьяна Павловна
Саша Буравова ,Вика
Даша Кадушкина, Ирина
Сардушкина, Вадим, Элина
Руководитель проекта:
Наталья Алексеевна Косенкова

2.

1930 г.
1980-90е г.
2025 г.
«Дом купца О.К. Полуэктова» по адресу г. Самара, ул. А. Толстого, 118‑120, литера А

3.

Архивные материалы и
статус объекта
«Дом купца О.К. Полуэктова» является
памятником истории и имеет статус
объектом культурного наследия
регионального значения.
Архитектор не известен.
Время создания 1880г.
Предмет охраны:
Первоначальный внешний облик
здания, композиционное построение,
декор фасадов;

4.

ГРАДОСТРОИТЕЛЬНЫЙ АНАЛИЗ

5.

6.

ФАСАД
1

7.

КАРТОГРАММА УТРАТ

8.

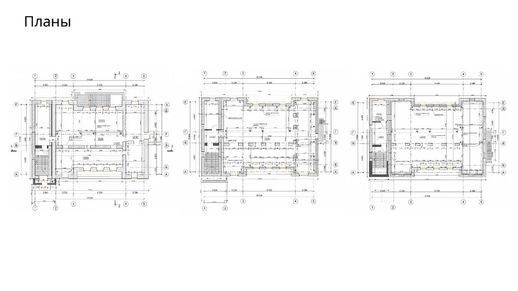
Планы

9.

Детали
English     Русский Rules