14.11M
Category: industryindustry

Организация технической эксплуатации, обслуживания и ремонта электрооборудования вентиляционной установки

1.

Государственное профессиональное образовательное учреждение
Тульской области
«Тульский государственный машиностроительный колледж
имени Никиты Демидова»
(ГПОУ ТО «ТГМК им. Н. Демидова»)
Курсовой проект
«Организация технической эксплуатации, обслуживания и ремонта
электрооборудования вентиляционной установки»
Специальность: «МДК 01.03 Основы технической эксплуатации и обслуживания
электрического и электромеханического оборудования»
Разработал:
студент группы 1921
Н.Е. Соломатов
Руководитель:
Ю.А. Рыбаков

2.

Цели и Задачи Курсового Проекта
Цели
Задачи
Исследование и систематизация подходов к
КРУ 10 кВ.
организации эксплуатации комплектных
распределительных устройств (КРУ) 10 кВ.
Изучить теоретические основы и принципы устройства
Разработка рекомендаций по эффективному
Проанализировать существующие подходы к эксплуатации
и техническому обслуживанию КРУ 10 кВ.
обслуживанию и ремонту электрооборудования КРУ 10
кВ.
Обосновать методы и порядок выполнения ремонтных
работ для КРУ 10 кВ.
Сформулировать рекомендации по повышению
эффективности и безопасности эксплуатации КРУ 10 кВ.

3.

Назначение КРУ 10 кВ
Распределение энергии
От источников к потребителям.
Защита оборудования
От коротких замыканий, перегрузок.
Безопасность персонала
Закрытая конструкция, блокировки.

4.

5.

Применение КРУ 10 кВ
Широкое использование
Промышленность: заводы, буровые
Энергетика: подстанции, АВР
Городская инфраструктура: жилые районы, метро
Возобновляемая энергетика: солнечные, ветровые
станции

6.

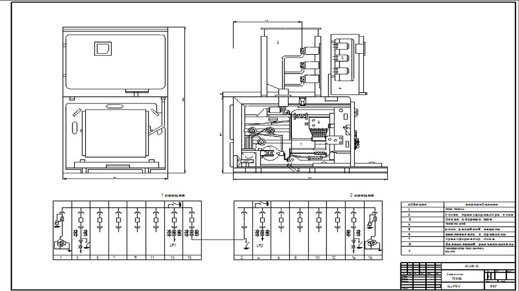
Устройство КРУ 10 кВ
1
4
Корпус
2
3
Отсеки
Выключатели
Прочная сталь, антикоррозийное
Для безопасности,
Вакуумные, масляные,
покрытие.
предотвращения аварий.
элегазовые.
Релейная защита
Микропроцессорные терминалы.
5
Системы безопасности
Блокировки, сигнализация.

7.

Основы ремонта КРУ 10 кВ
1
Подготовка
Отключение, заземление, плакаты.
2
Диагностика
Осмотр, измерение изоляции, контактов.
3
Устранение неисправностей
Контакты, выключатели, трансформаторы.
4
Испытания
После ремонта, проверка защит.
5
Безопасность
Наряд-допуск, СИЗ, проверка напряжения.

8.

Оборудование для ремонта КРУ 10 кВ
Измерительные приборы
Мегаомметры
Микроомметры
Тепловизоры
Инструменты
Диэлектрические отвертки
Динамометрические ключи
Подъемные механизмы
Средства безопасности
Диэлектрические перчатки
Указатели напряжения
Переносные заземления

9.

Эксплуатация и обслуживание
КРУ 10 кВ
Требования
ПУЭ, ПТЭЭП, нормативные документы.
Персонал
Обучение, квалификация, медосмотры.
Контроль
Токи, температура, изоляция, вентиляция.
Обслуживание
Ежедневные, ежемесячные, ежегодные осмотры.

10.

Ремонт и безопасность КРУ 10 кВ
Виды ремонта
Меры безопасности
Текущий (замена
Наряд-допуск, отключение,
предохранителей), капитальный
заземление, СИЗ.
(полная разборка).
Испытания после ремонта
Сопротивление изоляции,
повышенное напряжение,
проверка защит.

11.

Сдача в эксплуатацию КРУ 10
кВ
Подготовка
Документация, визуальный осмотр, электрические проверки.
Пусконаладка
Механические, электрические испытания, проверка защит.
Приемка комиссией
Проверка документов, осмотр, тестирование, акт приемки.
Оформление
Акт ввода, паспорта, технический отчет, журнал.
English     Русский Rules