37.15M
Category: industryindustry

Технический проект прирельсового асфальтобетонного завода в деревне Рауш Давлекановского района РБ

1.

Технически проект прирельсового
асфальтобетонного завода в деревне Рауш
Давлекановского района РБ
Выполнил студент группы С3-21
Бахтияров Т.И
Руководитель Молчанова Л.Г

2.

Данный проект посвящен
разработке
высокопроизводительного и
экологически безопасного
прирельсового асфальтобетонного
завода.
Цель — оптимизация производства
асфальта для нужд дорожного
строительства, используя передовые
технологии.

3.

Введение: Актуальность и Преимущества
Актуальность
Развитие современной транспортной инфраструктуры требует эффективных решений для дорожного строител
Логистика
Прирельсовое расположение оптимизирует доставку сырья .
Экономия
Снижает затраты на транспортировку материалов и сокращает сроки снабжения объектов.

4.

Выбор Технологии Производства
Для обеспечения высокого качества и эффективности, выбран циклический тип АБЗ с принудительным
перемешиванием. Это позволяет точно контролировать состав смесей и производить различные марки
асфальта, соответствующие ГОСТ.
Тип Завода
Мощность
Прирельсовый
Производительность до 160
асфальтобетонный завод .
тонн асфальта в час.
Качество
Высокое качество смесей,
соответствующее
ГОСТ Р 58406.

5.

Охрана Труда и Экология
Меры Безопасности
Экологические Технологии
Обязательное использование СИЗ.
Рециклинг старого асфальта (до 50% RAP).
Регулярные инструктажи по технике безопасности.
Низкотемпературные асфальтобетонные смеси
Автоматические системы аварийной остановки.
(100–130°C).
Современные системы пылеулавливания
(эффективность 99,8%).

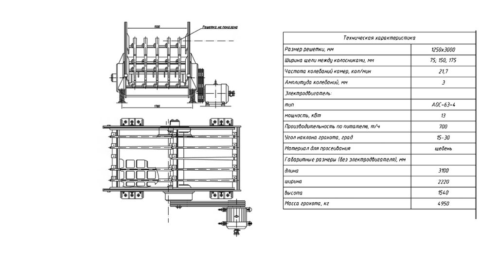
6.

7.

8.

9.

Заключение
Итоги проекта:
Разработана и внедрена технология производства, соответствующая всем стандартам ГОСТ. Это
включает в себя использование современного оборудования и строгое соблюдение технологических
процессов для обеспечения высокого качества асфальтобетонных смесей.
Обеспечена высокая экологическая безопасность производства. Благодаря применению передовых
технологий рециклинга и современных систем очистки выбросов, завод минимизирует негативное
воздействие на окружающую среду, способствуя устойчивому развитию региона.
Достигнута значительная экономическая эффективность проекта. Прирельсовое расположение завода
существенно сокращает логистические издержки на доставку сырья и готовой продукции, что повышает
рентабельность и конкурентоспособность предприятия.

10.

Спасибо за
внимание!
English     Русский Rules