1.35M

Выпускная квалификационная работа: Метизный цех ОАО «Северстальметиз»

1.

Выпускная квалификационная
работа
Метизный цех ОАО «Северстальметиз»
Иваненко

2.

Архитектура и конструкция
• Одноэтажное здание, пролеты 18 и 24 м,
высота 14,4 м
• Каркасная схема, шаг колонн – 6 м, крыша –
уклон 12%
• Окна металлопластиковые, ворота
металлические, полы асфальтобетонные

3.

Фундаменты и материалы
• Фундаменты: монолитные столбчатые,
глубина заложения – 1,8 м
• Стены и крыша – сэндвич-панели,
внутренний водоотвод

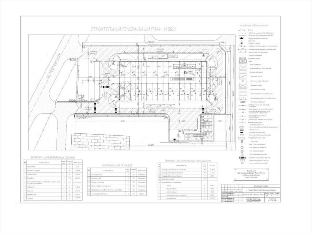
4.

Планировка и зонирование
• Площадки, дороги, привязка к местности
• Участки: поставка, штамповка, цинкование,
тестирование, упаковка

5.

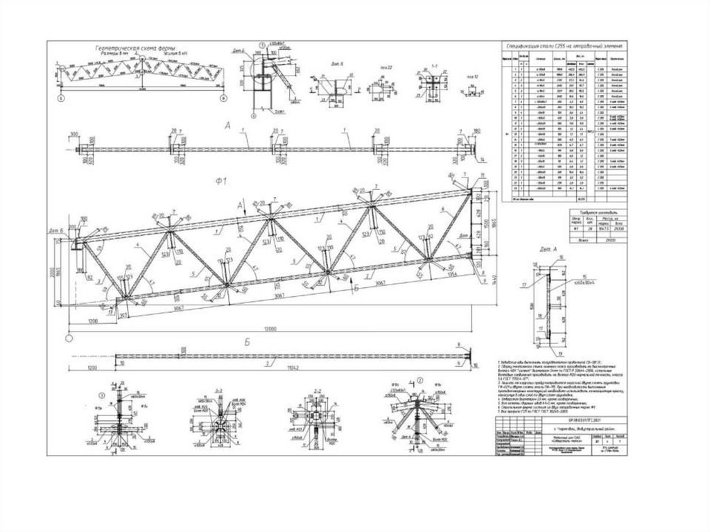
Конструкции и расчёты
• Расчёт стропильной фермы 24 м в SCAD
Office
• Проверки на прочность, устойчивость,
чертежи фермы

6.

Строительство и монтаж
• Технология монтажа покрытия, выбор
крана
• Графики производства и движения рабочих

7.

Экономика и безопасность
• Стоимость строительства: 89,3 млн руб
• Трудоёмкость: 2534,4 чел-дн,
продолжительность: 14 месяцев
• Охрана труда и экологические мероприятия
English     Русский Rules