2.19M
Category: industryindustry
Similar presentations:

Проектирование осветительных установок на производственном объекте. Вариант № 4

1.

МИНИСТЕРСТВО СЕЛЬСКОГО ХОЗЯЙСТВА РОССИЙСКОЙ ФЕДЕРАЦИИ
ФЕДЕРАЛЬНОЕ ГОСУДАРСТВЕННОЕ БЮДЖЕТНОЕ ОБРАЗОВАТЕЛЬНОЕ УЧРЕЖДЕНИЕ ВЫСШЕГО ОБРАЗОВАНИЯ
«ДАЛЬНЕВОСТОЧНЫЙ ГОСУДАРСТВЕННЫЙ АГРАРНЫЙ УНИВЕРСИТЕТ»
Факультет: Электроэнергетический
Кафедра: Электроэнергетика и электротехника
Направление/специальность:13.03.02 Электроэнергетика и электротехника
Профиль/специализация: «Электрооборудование и электрохозяйство
предприятий организаций и учреждений»
КУРСОВАЯ РАБОТА
По дисциплине «Светотехника»
Тема " Проектирование осветительных установок на производственном объекте "
Вариант № 4
Выполнил: Дмитриенко Н.А.
студент 3 курса гр. 7-1212
Руководитель: Шевченко М. В. , кандидат c/х
наук, зав. каф. ЭиЭ
Благовещенск, 2025 г

2.

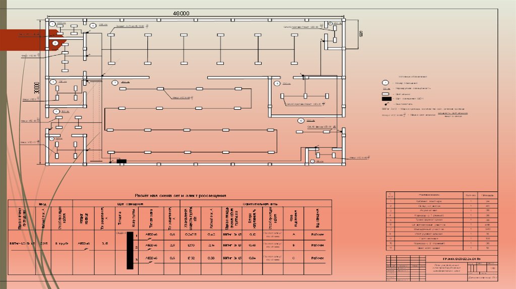
Светотехнический расчёт установки

3.

Точечный метод расчета

4.

Метод удельной мощности
Методом удельной мощности пользуются для приближенного расчета осветительных
установок помещений, к освещению которых не предъявляются особые требования, например,
вспомогательные складские помещения, кладовые и коридоры.
По расчетной высоте подвеса ℎр , м и площади освещаемого помещения S, м2 для выбранного
типа светильника: промышленный подвесной светодиодный светильник VSL Prom-B 10
определяют табличное значение удельной мощности Руд , Вт/м2, которое затем корректируют для
приведения в соответствии с данными таблиц.
Базы данных с табличными значениями удельной мощности устарели, так как не отображают
изменений в светотехнической продукции за последние 10-15 лет. Значения удельной мощности
для светодиодных световых приборов полностью отсутствуют. Следовательно, не представляется
возможным произвести расчет осветительной установки методом удельной мощности для
выбранного ранее промышленного подвесного светодиодного светильника VSL Prom-B 10.

5.

6.

7.

Электротехнический расчёт осветительной установки

8.

Спасибо за внимание
English     Русский Rules