ТЕМА 5. Конструкции и компоновки распределительных устройств электрических станций и подстанций Лекция 5 Классификация
1.29M
Category: industryindustry

Классификация распределительных устройств и требования предъявляемые к ним. Закрытые распределительные устройства (ЗРУ)

1. ТЕМА 5. Конструкции и компоновки распределительных устройств электрических станций и подстанций Лекция 5 Классификация

распределительных
устройств и требования предъявляемые к
ним. Закрытые распределительные
устройства (ЗРУ)
6В07106 ‒ Электроэнергетика
Разработчик и лектор: к.т.н., профессор
кафедры Электроэнергетики Леньков
Юрий Аркадьевич

2.

ТЕМА 5. Конструкции и компоновки распределительных
устройств электрических станций и подстанций
5.1 Классификация распределительных устройств и
требования, предъявляемые к ним
Распределительное устройство служит для приема и
распределения
электрической
энергии
одного
класса
напряжения. По месту расположения распределительные
устройства подразделяются на:
- закрытые (ЗРУ);
- открытые (ОРУ);
- комплектные (КРУ).
ЗРУ – это распределительное устройство, оборудование
которого установлено в закрытых помещениях и защищено от
атмосферных осадков, ветра, резких изменений температуры,
пыли и вредных химических агентов в воздухе.
ЗРУ сооружаются обычно при напряжении 6 – 20 кВ. Однако
при ограниченной площади под РУ или при повышенной

3.

загрязненности атмосферы применяются ЗРУ на напряжения
35 – 220 кВ.
ОРУ – это распределительное устройство, оборудование
которого установлено на открытом воздухе и подвергается
воздействию окружающей среды.
КРУ – это распределительное устройство, собранное в
заводских условиях из типовых унифицированных блоков.
Комплектные распределительные устройства изготавливаются
как для внутренней (КРУ), так и для наружной установки
(КРУН).
Распределительное устройство любого вида должно отвечать
требованиям безопасности, надежности и экономичности.
Обслуживание РУ должно быть удобным и безопасным.
Размещение оборудования в РУ должно обеспечивать
хорошую обозреваемость, удобство ремонтных работ, полную
безопасность при ремонтах и осмотрах.

4.

Неизолированные токоведущие части во избежание
случайных прикосновений к ним должны быть помещены в
камеры или ограждены. Ограждение может быть сплошным или
сетчатым. Высота ограждения должна быть не меньше 1,9 м,
при этом сетки должны иметь отверстия размером не более 25 х
25 мм, а ограждения запираться на замок.
Осмотры
оборудования
производятся
из
коридора
обслуживания, ширина которого должна не менее 1 м при
одностороннем и 1,2 м при двустороннем расположении
оборудования.
Если в коридоре ЗРУ размещены приводы разъединителей и
выключателей, то ширина такого коридора управления
увеличивается до 1,5 м при одностороннем и 2 м при
двустороннем расположении оборудования.
Если в ЗРУ применяются ячейки КРУ, то в этом случае при
одностороннем расположении ячеек ширина коридора
определяется длиной тележки плюс 0,6 м, при двустороннем
расположении- длиной тележки плюс 0,8 м.

5.

При наличии прохода с задней стороны КРУ его ширина
должна быть не менее 0,8 м.
Из помещений ЗРУ предусматриваются выходы наружу
или в помещения с несгораемыми стенами и перекрытиями:
- один выход при длине РУ до 7 м;
- два выхода по концам при длине от 7 до 60 м;
- при длине более 60 м – два выхода по концам и
дополнительные выходы с боку с таким расчетом, чтобы
расстояние от любой точки коридоров РУ до выхода не
превышало 30 м.
Двери из РУ должны открываться наружу и иметь
самозапирающиеся замки, открываемые без ключа со стороны
РУ.
ЗРУ должно обеспечивать пожарную безопасность. При
проектировании ЗРУ предусматриваются меры для ограничения
распространения возникшей аварии. Для этого оборудование
отдельных элементов РУ устанавливается в камерах –
помещениях, ограниченных со всех сторон стенами,

6.

перекрытиями, ограждениями.
При установке в ЗРУ масляных трансформаторов
предусматриваются меры для сбора и отвода масла в
маслосборную систему.
В ЗРУ предусматривается естественная вентиляция
помещений трансформаторов и реакторов, а также аварийная
вытяжная вентиляция коридоров обслуживания открытых камер
с маслонаполненным оборудованием.
Распределительное
устройство
должно
быть
экономичным. Для уменьшения стоимости строительной части
применяют здания РУ из сборных железобетонных
конструкций.
Для уменьшения стоимости электромонтажных работ и
ускорения сооружения РУ широко применяются укрупненные
узлы. Такими узлами являются камеры и шкафы со встроенным
электрооборудованием:
-камеры для сборных шин и шинных разъединителей;

7.

- шкафы управления выключателями;
- шкафы линейных разъединителей и т.п.
5.2 Закрытые распределительные устройства (ЗРУ)
5.2.1 Распределительные устройства 6-10 кВ с одной
системой сборных шин
5.2.1.1 Распределительные устройства 6-10 кВ с одной
системой сборных шин без реакторов на отходящих линиях
Данные распределительные устройства широко применяются
на промышленных предприятиях и в городских сетях.
В таких РУ устанавливаются КРУ в одной камере которого
размещается все оборудование одного присоединения.
Строительная часть ЗРУ выполняется из стандартных
железобетонных элементов. Габариты зданий ЗРУ должны быть
кратны:
‒ длина — 6 м;
‒ ширина — 3 м;
‒ высота — 0,6 м.

8.

Длина
ЗРУ
определяется
его
схемой,
принятой
конфигурацией сборных шин, количеством и размером ячеек.
Компоновка электрооборудования в ЗРУ складывается из
размещения секций сборных шин в здании ЗРУ, распределения
ячеек всех присоединений в пределах каждой секции и в
размещении электрооборудования в пределах каждой ячейки
(для сборных РУ). При этом не должно быть никаких
отступлений от разработанной ранее электрической схемы.
Приступая к компоновке, нужно сначала определить общее
количество вcex присоединений и их шинных разъединителей
для каждой секции сборных шин, включая межсекционные и
междушинные соединения, заземляющие разъединители на
сборных шинах, трансформаторы напряжения и все другие
присоединения, предусмотренные схемой электрических
соединений. Для каждой секции выявляется потребное
количество ячеек или камер для размещения шинных
разъединителей,
выключателей,
реакторов
(если
они
предусмотрены с учетом способа их установки), измерительных

9.

трансформаторов напряжения, разрядников и другого
оборудования. Составляется схема заполнения ЗРУ, которая
отображает действительное взаимное расположение основного
оборудования и аппаратуры.
Все аппараты и соединения между ними показываются в
условных обозначениях, принятых для схем, в пределах
контуров тех камер ЗРУ, в которых они устанавливаются.
Чертеж выполняется не в масштабе. На нем показывают в плане
все камеры, а также коридоры и проходы. Стенки и перегородки,
отделяющие камеры друг от друга и от проходов и коридоров, и
перекрытия между этажами наносятся тонкими сплошными
линиями.
На рисунке 1 приведена схема электрических соединений
ЗРУ 6 ‒ 10 кВ комплектной подстанции.
На рисунке 2 ‒ показана схема заполнения ЗРУ 6 ‒ 10 кВ,
соответствующая упрощённой схеме электрических соединений
подстанции, изображённой на рисунке 1.

10.

Рисунок 1 ‒Схема электрических соединений ЗРУ 6 ‒ 10 кВ
комплектной подстанции

11.

Рисунок 2 ‒ Схема заполнения ЗРУ 6 ‒10 кВ

12.

При определении конфигурации сборных шин и
расположения секций следует учитывать удобство эксплуатации
и требования надежности. В частности, как при однорядном, так
и при двухрядном расположении камер РУ, секции вдоль здания
располагаются одна за другой, что позволяет отделить секции
одну от другой поперечными перегородками и избежать
распространения аварии на другие секции. Вместе с
расположением секции следует наметить и расположение
шинных перемычек между сборными шинами одной секции,
находящимися по разные стороны коридора управления, а также
межсекционные связи.
Важной
частью
компоновки
является
определение
местоположения вводов в РУ от питающих трансформаторов.
Расположение камер для этих присоединений должно быть
выбрано так, чтобы соединения с шинами получились
короткими и прямыми. Ячейки для отходящих линий
желательно распределить по обе стороны от вводов, чтобы
потоки

13.

мощности от них распределились в сборных шинах примерно
поровну в обе стороны от вводов.
Камеры для трансформаторов напряжения, разрядников,
трансформаторов собственных нужд (ТСН) размещают в
последнюю очередь, занимая свободные камеры.
5.2.1.2 Распределительные устройства 6-10 кВ с одной
системой сборных шин с секционными и линейными
реакторами
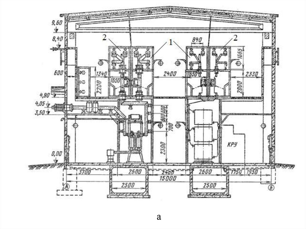
Данное распределительное устройство применяется на ТЭЦ,
рисунок 3.
В ГРУ расположены три секции сборных шин, к каждой из
которых присоединен генератор Г1, Г2 и Г3. К секциям 1 и 3
присоединены трехобмоточные трансформаторы связи Т1 и Т2.
На каждой секции установлены по два сдвоенных групповых
реактора и четыре сборки КРУ.
Здание ГРУ одноэтажное, с пролетом 18 м, выполненное из

14.

стандартных железобетонных конструкций. В центральной
части здания в два ряда расположены блоки сборных шин и
шинных разъединителей, а так же ячейки генераторных,
трансформаторных и секционных выключателей, групповых и
секционных реакторов и шинных трансформаторов напряжения.
У стен здания расположены шкафы КРУ. Все кабели проходят в
двух кабельных туннелях.
Воздух для охлаждения реакторов подается специальными
вентиляторами, установленными в трех вентиляционных
камерах 11, 12 и 13.
Обслуживание оборудования осуществляется из трех
коридоров:
- центрального коридора управления шириной два метра;
- коридора вдоль шкафов КРУ, который рассчитан на выкатку
тележек с выключателями;
- коридора обслуживания вдоль ряда генераторных
выключателей.

15.

Соединение секций сборных шин ГРУ
производится снаружи здания гибкой связью.
а
в
«кольцо»

16.

б
а – разрез по цепям генератора и группового реактора; б – плансхема заполнения; 1 – трансформатор тока; 2 – проходной
изолятор; 3 – камера генераторного выключателя; 4 – привод
выключателя; 5 – блок сборных шин; 6 – блок шинных
разъединителей; 7 – привод шинных разъединителей; 8 – камера
сдвоенного реактора; 9 – шинопровод; 10 – ячейки КРУ; 11, 12,
13 − вентиляционные камеры.
Рисунок 3 – ГРУ 6 – 10 кВ с одной системой сборных шин с
секционными и групповыми реакторами

17.

5.2.2 Распределительные устройства 6-10 кВ с двумя
системами сборных шин с секционными и линейными
реакторами
Данные распределительные устройства широко применялись
на действующих ТЭЦ с турбоагрегатами до 100 МВт.
Электрооборудование размещено в двухэтажном здании в два
ряда с коридорами обслуживания в середине и по бокам,
рисунок 4.
На втором этаже расположены сборные шины, шинные
разъединители и трансформаторы напряжения, присоединенные
к сборным шинам. Рабочие секции сборных шин 1 расположены
в ячейках среднего коридора, а резервная система шин 2
расположена в ячейках боковых коридоров, рисунок 4.
Рабочие секции сборных шин 1 и резервная система шин 2
разделены легкими асбоцентными плитами, укрепленными на
стальном каркасе.
Приводы шинных разъединителей расположены в коридорах
соответствующих камер.

18.

а

19.

б
Рисунок 4 – Схема ГРУ 6 – 10 кВ с двумя системами сборных
шин с секционными и линейными реакторами

20.

Тяжелое оборудование - генераторные выключатели МГ-I0
или МГ-20, секционные и групповые реакторы, ячейки КРУ расположено на первом этаже, фундаментом для него служат
железобетонные конструкции туннелей для силовых и
контрольных кабелей. Специальные вентиляционные туннели
не сооружаются, подвод охлаждающего воздуха в камеры
реакторов и для сборных шин осуществляется из центрального
коридора первого этажа. Нагретый воздух выбрасывается через
проемы с жалюзи на втором этаже. В типовом проекте
предусмотрена возможность объединения рабочей системы шин
в кольцо с помощью шинной перемычки, находящейся в
боковом коридоре второго этажа.
5.2.3
Закрытые
распределительные
устройства
напряжением
35 – 220 кВ
ЗРУ 35 – 220 кВ дороже ОРУ на то же напряжение. В ЗРУ
применяют
воздушные,
элегазовые,
вакуумные
или
маломасляные выключатели.

21.

Установка баковых масляных выключателей привела бы к
значительному увеличению стоимости РУ за счет сооружения
специальных камер и маслосборных устройств.
На рисунке 5 показано ЗРУ 110 кВ с двумя рабочими и
обходной системами шин. Здание зального типа, одноэтажное.
Сборные шины выполнены гибкими проводами и закреплены на
гирляндах изоляторов (фазы А и В) и стержневых опорных
изоляторах (фаза С). В ЗРУ 110 кВ могут устанавливаться
выключатели ВВБ-110 и ВНВ -110.
Так же, как и для ГРУ 6 – 10 кВ, наиболее прогрессивным
является применение комплектных РУ 35 – 220 кВ.

22.

1 – выключатель ВНВ-110; 2- первая система шин; 3-шинные разъединители;
4-вторая система шин; 5-обходная система шин; 6-обходной разъединитель;
7-конденсатор связи; 8-линейный разъединитель
Рисунок 5 – ЗРУ 110 кВ зального типа. Разрез по ячейке
воздушной линии
English     Русский Rules