38.14M
Category: ConstructionConstruction

Промышленные и гражданские здания

1.

ПРОМЫШЛЕННЫЕ
И ГРАЖДАНСКИЕ
ЗДАНИЯ
Преподаватель: Николаева Алина Андреевна
nikolaeva.roat@gmail.com

2.

Требования к промышленным зданиям
1. Функциональные (обеспечение нормального функционирования
размещаемого технологического оборудования и нормальный ход
технологического процесса в целом)
2. Технические (обеспечении прочности, устойчивости, долговечности
зданий)
3. Архитектурно-художественные (придание зданию выразительного
архитектурного облика)
4. Экономические

3.

Классификация промышленных зданий
◦ По назначению:
- производственные
- подсобнопроизводственные
- энергетические
- складские
- транспортные
◦ По архитектурноконструктивным
признакам:
◦ По ширине пролетов:
- мелкопролетные (L<12 м)
- крупнопролетные (L>12 м)
- одноэтажные
- многоэтажные
- смешанной этажности
- санитарно-технические
◦ От количества
пролетов:
- вспомогательные и
общезаводские
- однопролетные
- многопролетные
◦ По расположению
внутренних опор :
- ячейковые
- пролетные
- зальные

4.

Объемно-планировочные параметры
одноэтажных промышленных зданий
Основные крановые
механизмы:
Подвесные краны
Q=2,5…5 т
Мостовые краны
Q=10…600 т

5.

Подвесные краны
Основные параметры подвесных
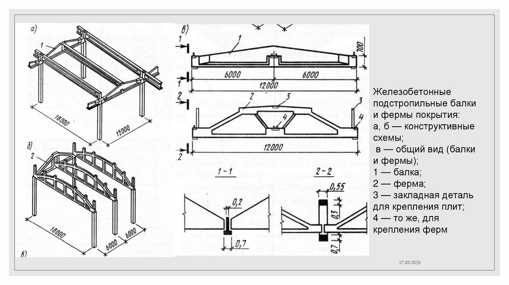
однобалочных кранов

6.

7.

8.

1 - мост подвесного крана, 2 - колонна каркаса здания,
3 - несущая конструкция покрытия, 4 - балки пути движения крана.

9.

Размещение кранов на
плане пролета
здания (два крана по
ширине пролета):
1 - мост подвесного крана,
2 - колонна каркаса здания,
3 - несущая конструкция
покрытия,
4 - балки пути движения
крана
5 - пути движения крана.

10.

Размещение кранов на плане
пролета здания (один кран по
ширине пролета):
1 - мост подвесного крана,
2 - колонна каркаса здания,
3 - несущая конструкция
покрытия,
4 - балки пути движения крана
5 - пути движения крана.
27.03.2025

11.

27.03.2025

12.

Мостовые краны
Грузоподъемность, габариты и основные параметры мостовых кранов

13.

27.03.2025

14.

15.

Объемно-планировочные параметры
одноэтажных промышленных зданий
◦ Ширина пролета в промышленном здании (L) –
расстояние между продольными
координационными осями – складывается из
величины пролета мостового крана (Lк) и
удвоенного расстояния между осью рельса
подкранового пути и модульной координационной
осью (2К): L= Lк + 2К
◦ Шаг колонн – расстояние между поперечными
координационными осями – назначают с учетом
габаритов и способа расстановки технологического
оборудования, размеров выпускаемых изделий,
вида внутрицехового транспорта.
◦ Высота пролета – расстояние от уровня чистого
пола до низа несущих конструкций покрытия
К определению параметров пролета
◦ Н=Н1+Н2

16.

17.

27.03.2025

18.

Деформационные швы в промышленных
зданиях
◦ По назначению:
- температурнодеформационные
(ТДШ);
- осадочные;
- антисейсмические.
◦ По расположению:
- продольные;
- поперечные.
схема разрезки здания на
температурные блоки

19.

27.03.2025

20.

Типизация и унификация промышленных
зданий
◦ Для промышленного строительства установлен единый модуль М=600 мм
как для вертикальных, так и для горизонтальных измерений. При
проектировании используют укрупненные модули, кратные единому модулю
(6М ).
◦ В одноэтажных зданиях для ширины пролетов и шага колонн принимают
укрупненный модуль 10М, а для высоты (от чистого пола здания до низа
несущих конструкций покрытия) – 1М.
◦ В многоэтажных зданиях для ширины пролетов принимают укрупненный
модуль 5М, для шага колонн – 10М и высоты этажа – 1М и 2М.

ГОСТ 28984-2011 Модульная координация размеров в строительстве

21.

Размеры параметров одноэтажных зданий:
◦ Пролеты (L) для бескрановых зданий принимают от 12 до 36 м; для зданий с мостовыми кранами – от 18 до
36 м , кратно 6 м.

Шаг колонн (а) принимают, как правило, 6 или 12 м.

Высота здания (Н) назначается от 3 до 6 м, кратно 0,6 м и от 7,2 до 18 м, кратно 1,2 м.

Размеры параметров многоэтажных зданий:

Пролеты (L) могут быть 6, 9, 12 м и > (кратные 6 м).

Шаг колонн (а) принимают 6 и 12 м.

Высоту этажа (hэ) назначают равной:
при L= 6 м - 3,6; 4,2; 4,8 и 6м (для 1-го этажа - 7,2 м);
при L= 9 м - 3,6; 4,2; 4,8 и 6м;
при L= 12 м - 4,2; 4,8; 6 и 7,2м.

22.

Привязка конструктивных элементов к
модульным координационным осям
Нулевая привязка
Привязки «250» и «500»
Привязка колонн в торце здания

23.

Поперечный температурно-деформационный
шов (ТДШ)
Привязка колонн в поперечном ТДШ:
а) при длине температурного блока менее 144 м;
б) при длине температурного блока 144 м и более

24.

ТДШ в перепадах высот параллельных и взаимно
перпендикулярных пролетов.
Устройство ТДШ в местах перепада высот
параллельных пролетов
Устройство ТДШ в местах перепада высот
взаимно-перпендикулярных пролетов

25.

Привязки колонн многоэтажных зданий
Привязка торцевых колонн
Привязка колонн в местах ТДШ
Привязка колонн в местах ТДШ

26.

Железобетонный каркас
одноэтажных
промышленных зданий
Фрагмент железобетонного каркаса

27.

Фундаменты
разрез подколонника
Общий вид монолитного фундамента ступенчатой формы с
подколонником стаканного типа под крайнюю колонну

28.

фундамент под стальные колонны
Сечения фундаментных балок:
а) для шага колонн 6 м;
б) для шага колонн 12 м
Монолитные фундаменты под стальные колонны:
а) колонны постоянного сечения;
б) колонны двухветвевые (сквозного сечения)

29.

Деталь цоколя одноэтажного промышленного здания

30.

Железобетонные колонны
колонны постоянного сечения
для бескрановых зданий
Типы сплошных железобетонных колонн для зданий с
мостовыми опорными кранами

31.

Типы двухветвевых железобетонных колонн для зданий
с мостовыми опорными кранами

32.

Двухветвевые железобетонные колонны
с проходами в уровне крановых путей

33.

Крепление к колоннам ферм,
подкрановых балок и стеновых
панелей:
27.03.2025

34.

Колонны фахверков
Конструкции колонн фахверков
Высота Н,
м
3 – 4,2
4,8 – 6
7,2 – 9,6
Тип I
Тип II
Вид железобетонных
несущих
конструкций покрытия
балки
фермы
I
II
II

35.

Фахверковые колонны

36.

Сопряжение свай с ростверком:
а — под колонны каркаса; 1 — цокольная панель; 2 — колонна; 3 — монолитный ростверк; 4 —
выравнивающий сло‘й; 5 — бетон; б — сваи; б — то же, фахверка; 1 — цокольная панель; 2 —
колонна; 3 — бетон; 4 — свая; 5 — сборный ростверк
27.03.2025

37.

Железобетонные колонны фахверка:
а — в торцовых стенах;
в — крепление стойки торцового фахверка каркаса к ферме;
г — верх фахверковой стойки;
1 — колонна основного каркаса;
2 — основная и вспомогательная стойки фахверка;
3 — стены панельные или из штучных элементов;
4 —стальная стойка фахверка;
5 — фундаменты фахверка;
6 — фундаментная балка;
7 — стальная надставка фахверковой колонны;
8 — стальной уголок (на высоту парапета);
9 — стропильная балка или ферма;
10—планка для крепления плит покрытия;
11 — лист, закрепляющий верх фахверковой стойки

38.

Железобетонные колонны фахверка:
б — в продольных стена;
д — при стенах из штучных материалов;
1 — колонна основного каркаса;
2 — основная и вспомогательная стойки фахверка;
3 — стены панельные или из штучных элементов;
6 — фундаментная балка
27.03.2025

39.

Железобетонные подкрановые балки
Q = 100кН;
L ≤ 24м;
а = 6м;
Н = 8,4м;
Q ≤ 300кН;
L ≤ 30м;
а = 6м;
Н = 9.6-18м;
Q ≤ 300кН;
L ≤ 30м;
а = 12м;
Н = 9.6-18м;

40.

Крепление подкрановых балок к колоннам
рядовая балка
торцевая балка

41.

Стальной каркас одноэтажных. Стальные колонны
Стальные колонны постоянного сечения
для бескрановых
зданий высотой
до 8.4 м
для бескрановых
зданий высотой
9.6 -18 м
для зданий с опорными
мостовыми кранами
грузоподъемностью до 200 кН
средняя колонна

42.

◦ Стальные двухветвевые колонны
средняя колонна с проходом
вдоль подкранового пути
типы колонн для зданий с мостовыми опорными
кранами грузоподъемностью 100 – 500 кН

43.

Раздельные колонны
при расширении здания
при низко расположенных тяжелых кранах

44.

Базы стальных колонн
База центрально
сжатой колонны
из одной плиты
Базы стальных колонн:
База центрально сжатой
а – под центрально сжатую колонну сплошного
колонны с траверсами
сечения;
сжатой колонны траверсами с
б - под внецентренно сжатую двухветвевую колонну
траверсами

45.

Стальные стойки фахверка
Узлы крепления стоек фахверка к покрытию:
а – к верхнему поясу фермы; б – к нижнему поясу фермы
Узел крепления стойки
фахверка к фундаменту

46.

Стальные подкрановые балки
Крепления стальных подкрановых балок:
а – к стальной колонне;
б – между собой

47.

Крепление стальных подкрановых балок к железобетонным колоннам

48.

Обеспечение пространственной жесткости и
устойчивости одноэтажных промышленных зданий
Группа зданий
по высоте
Низкие
Средние
Высокие
с беспрогонными
кровлями
с
мостовыми
кранами
без
мостовых
кранов
А–а-I
А – а - II
А – а - III
А–б-I
А – б - II
А – б - III
с кровлей по прогонам
с
мостовым
и
кранами
Б–а-I
Б – а - II
Б – а - III
без
мостовых
кранов
Б –б - I
Б –б - II
Б –б - III

49.

Вертикальные связи по
железобетонным колоннам
крестовые связи при шаге колонн 6 м
портальные связи при шаге колонн 12 м

50.

Вертикальные связи по стальным колоннам
крестовые связи
портальные связи
крестовые сдвоенные связи

51.

Схема расположения ветровой фермы в уровне
подкрановых балок

52.

◦ Схема связей в покрытии по стальным фермам

53.

Схема расположения связей покрытия при
железобетонном каркасе в пределах
температурного блока:
а — горизонтальных по нижнему поясу ферм
(балок);
б — вертикальных между несущими
конструкциями покрытия;
1 — связевая ферма;
2 — распорка
27.03.2025

54.

Покрытия промышленных зданий
◦ По теплотехническим
качествам :
◦ По конструктивным
схемам:
- утепленные
- плоскостные
- неутепленные
- пространственные
◦ Покрытия должны иметь
хорошую гидроизоляцию, теплозащиту, должны быть прочными,
долговечными и надежными в эксплуатации, обладать необходимыми огнестойкостью и пожарной
безопасностью, быть индустриальными, иметь простые и надежные узловые сопряжения конструктивных
элементов.

Покрытия промышленных зданий, как правило, устраивают бесчердачными. Состоят они из несущих и
ограждающих конструкций.
◦ Ограждение включает настил (железобетонные плиты, асбестоцементные или металлические листы и
т.п.), пароизоляцию, утеплитель, выравнивающую стяжку и гидроизоляцию.
◦ Несущие конструкции покрытий изготавливают из железобетона, металла, дерева и комбинированными
(из перечисленных выше материалов, напр. металлодеревянные фермы и т.п.).

55.

Железобетонные стропильные балки и фермы
Железобетонные балки пролетом 6, 9 и 12 м

56.

Двускатные железобетонные балки
сплошного сечения для L= 6, 9 м
Опирание железобетонной
балки на колонну

57.

Опирание железобетонной фермы на колонну
Очертания поясов ферм: а – сегментное;
б – полигональное;
в – трапецеидальное; г – с параллельными поясами;
д - треугольное

58.

Опирание железобетонной фермы на колонну

59.

Железобетонные
подстропильные балки
и фермы покрытия:
а, б — конструктивные
схемы;
в — общий вид (балки
и фермы);
1 — балка;
2 — ферма;
3 — закладная деталь
для крепления плит;
4 — то же, для
крепления ферм
27.03.2025

60.

Железобетонные подстропильные балки и фермы
Подстропильная железобетонная балка:
конструкция балки;
опирание стропильных балок на подстропильную
Подстропильная железобетонная
ферма для скатных
покрытий

61.

Подстропильная железобетонная ферма
для малоуклонных покрытий
конструкция
опирание стропильных ферм
на подстропильную

62.

Стальные стропильные и подстропильные фермы
покрытий
Схемы решеток ферм: а) треугольная; б) треугольная со стойками; в, г) раскосная; д) шпренгельная; е)
крестовая; ж) перекрестная; и) ромбическая; к) полураскосная

63.

Типы сечений стальных ферм: а) трубчатые; б) прямоугольное гнутозамкнутое;
в,г,д,е) из парных уголков; ж) из одиночных уголков; и) из тавров - для поясов
ферм; к,л) то же, из двутавра или двух швеллеров

64.

Схемы стропильных ферм нормальной высоты
из прокатных уголков

65.

Опирание стальной фермы
на железобетонную колонну
Подстропильные фермы
нормальной высоты пролетом 12м
рядовые
у торца здания

66.

Стальные прогоны
Сечения стальных 6-метровых прогонов покрытия
Схемы решетчатых прогонов:
а) рядовой; б) крайний (у торцов и ТДШ); 1 – ось стропильной фермы

67.

Конструкция решетчатого прогона

68.

Ограждающая часть покрытия
Утепленное покрытие
по железобетонным плитам
(в коньке)
по стальному профнастилу
(примыкание в месте перепада высоты)
коньковый узел в покрытии
из панелей типа «сэндвич»

69.

Асбестоцементные кровли
Кровля из асбестоцементных листов:
крепление листов к прогонам
деформационный шов

70.

Металлические кровли
Кровля из профилированных листов
крепление профилированных листов к прогонам;
2 - самонарезающие болты
деформационный шов;
4 - прогоны; 5 - самонарезающие болты;
6 - ось поперечного температурного шва

71.

Водоотвод с покрытий
Максимальная площадь водосбора, м2
Тип кровли
q20 , л/с на 1га
более 120
q20 , л/с на 1га
120 - 100
q20 , л/с на 1га
менее 100
Скатные
600
800
1200
Плоские
900
1200
1800
Плоские,
заполняемые водой
750
1000
1500
q20 , л/с на 1га – интенсивность дождя
продолжительностью 20 минут

72.

Водоприемная воронка

73.

Легкосбрасываемые покрытия
Устройство легкосбрасываемой кровли

74.

Стены промышленных зданий
Требованиям к стенам промышленных зданий:
- температурно-влажностный режим, необходимый технологическому процессу и комфортному труду людей;
- прочность и устойчивость при действии статических и динамических нагрузок;
- огнестойкость и долговечность;
- индустриальность;
- эстетичность;
- экономичность.
◦ По статической
работе:
- несущие
- самонесущие
- навесные
◦ По материалу и
технологии возведения :
- каменные (ручной кладки)
- бетонные (из монолитного
бетона, крупных блоков или
панелей)
- стены из небетонных
материалов (фахверковые и
каркасно-панельные)
◦ По
конструктивному
решению :
- однослойные
- многослойные

75.

Навеска железобетонных панелей на колонну в местах
устройства опорных консолей
Угол здания при привязке «0»

76.

Стена из панелей «сэндвич» вертикальной разрезки

77.

Устройство парапета
из панелей «сэндвич»:
Вертикальный стык панелей «сэндвич»:
1 – ригель;
2 – болт М8;
3 – прокладка из пенополиуретана;
4 – шайба диаметром 40 мм
1– наружная грань колонны;
2– ригель;
3 – самонарезающие болты;
4 – болты;
5 – погонажные изделия из
тонколистовой стали;
6 – комбинированные
заклепки;
7 – герметик;
8 – антисептированный
брусок;
9 – толевые гвозди;
10 – шурупы;
11 – бортики из минераловатных плит повышенной
жесткости

78.

Металлические стены послойной сборки
конструкция стены послойной сборки и отдельных ее деталей
1- рядовой ригель; 2-болт;
3- опорная консоль; 4- полиэти-леновая пленка;
5- ст. лист;6- минераловатные плиты;
7-бумага;8-самонарезающий винт;
9- заклепка

79.

Металлические стены послойной сборки
1- комбинированная заклепка;
2-Z-образный профиль;
3- полиэтиленовая пленка; 4- мин.ватные плиты;
5-болт; 6-цем.-песч. раствор;
7- гнутый профиль; 8-цоколь; 9-опорная консоль;
10-слив из оцинкованной стали;
11-костыль; 12-прокладка из фанеры;
13- самонарезающий винт; 14-уголок;
15- бумага мешочная; 16-листовая обшивка

80.

Металлические стены послойной сборки
1- опорный ригель;
2- опорная консоль;
3- уголок обрешетки;
4,7,10- слив из стали;
5- комбинир. заклепка;
6- самонарезающий винт;
8- болт;
9- минераловатная плита;
11- опорные полосы;
12 - прокладка из
фанеры;
13- самонарезающий винт

81.

Металлические стены послойной сборки
1 - деревянный брусок;
2-шуруп; 3-слив;
4-гнутый уголок;
5-мин.ватн.плита;
6-опорная консоль;
7-фанера; 8-болт; 9- опорный ригель;
12-самонарезающий винт;
13- полиэтиленовая пленка;
14- бумага мешочная;
15-комбинированная заклепка;
16-нащельник из стали;
17-лист обшивки

82.

Асбестоцементные каркасные
панели
крепление панелей к колонне
сопряжение панели с цоколем
1 – колонна каркаса; 2 – стальной ригель; 3 – стальной опорный столик; 4 –
стальной закладной уголок для крепления панели; 5 – болт; 6 – стеновая панель; 7
- продух; 8 – цоколь; 9 – рези-новая пористая прокладка; 10 – слив из
оцинкованной стали; 11 – набетонка из легкого бетона; 12 – цементный раствор

83.

Сопряжение асбестоцементных каркасных панелей
с окном
1 – колонна каркаса;
2 – стальной ригель;
3 – стальной опорный столик;
4 – стальной закладной уголок;
5 – болт;
6 – стеновая панель;
7 – продух;
8 – окно со стальными переплетами

84.

Горизонтальный стык асбестоцементных
каркасных панелей
Вертикальный стык асбестоцементных
каркасных панелей
1- стеновая панель; 2- ригель;
4- мастика; 5- стальной слив;
6- нащельник; 7- прокладка;
8- утеплитель

85.

Окна промышленных зданий
Сопряжение стальных переплетов со стенами
1 – стеновая панель;
2 – ригель;
3 – крепежный элемент;
4 – планка на переплете;
5 – окно;
6 – уголок;
7 – слив;
8 – уплотнитель;
9 – нащельник;
10 - утеплитель

86.

Сопряжение алюминиевых переплетов со стенами
1 – окно;
2 – утеплитель;
3 - планка;
4 – болт;
5 – нащельник;
6 – уплотнитель;
7 – стена;
8 – скоба;
9 – термовкладыш;
10 – ригель;
11 – слив;
12 - винт

87.

Узлы сопряжения створок деревянных окон с рамой переплета
1 – рама; 2 – стеклопакет;
3 – штапик;
4 - уплотнитель;
5 – створка; 6 – мастика;
7 – прокладка; 8 – петля;
9 – отверстие для стока воды

88.

Типоразмеры профильного стекла (стекора):
а) стекор швеллерного типа;
б) стекор двойного швеллерного типа;
в) стекор коробчатого типа

89.

Оконные заполнения из стеклопрофилита
а) крепление коробчатого
стекора к перемычечной панели;
б) крепление стекора швеллерного типа к ригелю;

90.

Фонари промышленных зданий
Фонари надстроечного типа: а – треугольный;
б – прямоугольный; в – трапециевидный;
г – М–образный; д – шедовый

91.

Общий вид фонаря с кровлей по стальному
профилированному настилу

92.

Конструкция фонарной панели

93.

Схема разрезов по фонарю шириной 6 м
Схема разрезов по фонарю шириной 12 м

94.

Конструкция светоаэрационного фонаря
карнизный узел фонаря
бортовой элемент фонарной панели

95.

Общий вид аэрационного фонаря

96.

Схема разреза по аэрационному фонарю шириной 12 м

97.

Расположение зенитных фонарей в покрытии

98.

Конструкция светопроницаемого купола из органического стекла размером 1,8х1,5 м

99.

Полы промышленных зданий
◦ Требования, предъявляемые к полам промышленных зданий:
- высокая механическая прочность;
- ровная и гладкая поверхность;
- не скользить;
- мало истираться;
- не пылить;
- иметь хорошую эластичность, чтобы не повреждать предметы, падающие на пол;
- бесшумность при ходьбе и езде;
- стойкость при возгорании;
- водонепроницаемость;
- стойкость к агрессивной среде (к щелочам, кислотам и т.п.);
- не вызывать искрения;
- быть индустриальными;
- легко ремонтироваться и очищаться;
- быть экономичными (стоимость полов составляет от 5 до 25% от общей стоимости одноэтажного
производственного здания).

100.

Основные типы полов производственных зданий:

101.

Лестницы, двери и ворота промышленных
зданий
Детали раздвижных ворот
1 - Колонна фахверка
(для торцовой стены)
или основная колонна
(для продольной стены);
2 - стеновая панель;
3 - стойка рамы ворот;
4 - ригель рамы ворот;
5 - створка ворот

102.

Типы ворот промышленных зданий:

103.

Основы проектирования промышленных
зданий
Основными направлениями повышения технического уровня и снижения стоимости строительства ПЗ:

- объединение предприятий в промышленные узлы с использованием общих инженерных коммуникаций,
вспомогательных, складских и обслуживающих зданий;

- блокирование производственных, вспомогательных и др. цехов (объединение нескольких цехов под одной крышей);

- строительство, в основном, одноэтажных промышленных зданий с пролетами одного направления, одинаковой высоты
и ширины;

- использование универсальных типов промышленных зданий (павильонного типа, с межферменными этажами, с
подпольными этажами и т.п.);

- замена мостовых кранов более эффективными видами внутрицехового транспорта: подвесными или напольными
кранами, авто- и электрокарами и т.п.);

- снижение массы зданий за счет уменьшения расхода материалов;

- применение из стали и бетонов высоких марок, предварительно напряженных, тонкостенных и пространственных
прогрессивных большепролетных конструкций;

- размещение технологического оборудования вне зданий или под навесами;

- удобное размещение бытовых помещений по отношению к рабочим местам с применением новейшего санитарнотехнического оборудования.

104.

Общие принципы компоновки объемов
одноэтажных промышленных зданий
◦ 1. Блокирование в одном промышленном здании.
а) некоторых производственных помещений, обслуживающих один
технологический процесс
б) некоторых цехов с разными технологическими процессами
в) разных промышленных предприятий
г)объединение однородных вспомогательных цехов (ремонтных, складских
и т.д.) разных производительных процессов.
◦ 2. Принцип унификации, осуществляемый на основе УГС и УТП.
English     Русский Rules