Виды Бассейнов
Назначение и функциональные задачи
Характер забора воды в бассейн
Оборудование
По размерам
Температура воды в бассейне
Материалы ванны бассейна
Водообмен
Бассейн для прыжков в воду
бассейн для прыжков в воду оборудуется
Бассейны для водного поло
Гребные бассейны
1.64M
Category: sportsport

Виды бассейнов

1. Виды Бассейнов

ВИДЫ БАССЕЙНОВ

2. Назначение и функциональные задачи

НАЗНАЧЕНИЕ И ФУНКЦИОНАЛЬНЫЕ ЗАДАЧИ
Бассейны для
плавания.
Спортивные.
Детские.
Плескательные.
Универсальные
комплексы/учебнотренировочные
бассейны.
Оздоровительные.
Бассейны для
прыжков в воду.
Комплексные или
комбинированные
бассейны.
Демонстрационные.
Аквапарки.
Учебные.
Купальные.

3. Характер забора воды в бассейн

ХАРАКТЕР ЗАБОРА ВОДЫ В БАССЕЙН
Наливные
(искусственные)
бассейны.
Бассейны на
естественных
водоемах.

4. Оборудование

ОБОРУДОВАНИЕ
Крытый бассейн.
Открытый бассейн.
Мобильный бассейн.
Комплексный
бассейн.
Трансформирующийс
я бассейн.

5. По размерам

ПО РАЗМЕРАМ
Длинный.
«Взрослый» 50метровый бассейн.
Короткий. 25 метров.

6. Температура воды в бассейне

ТЕМПЕРАТУРА ВОДЫ В БАССЕЙНЕ
Оздоровительные
бассейны (26—29°С)
Учебные детские
бассейны (29—32°С)
Спортивные бассейны
(24—28°С)
Бассейны для
релаксации и бассейны с
гидромассажем (30—
32°С)

7. Материалы ванны бассейна

МАТЕРИАЛЫ ВАННЫ БАССЕЙНА
Композитные
Стекловолоконные
Каркасные
(стальные)
Полипропиленовые
Бетонные

8. Водообмен

ВОДООБМЕН
Рециркуляционные
Скиммерные
Переливные

9. Бассейн для прыжков в воду

БАССЕЙН ДЛЯ ПРЫЖКОВ В ВОДУ
Размер стороны, где
установлены устройства
для прыжков, - не менее
25 м
Глубина не менее 4,5 м
Вышка с площадками,
размещенными на высоте
1, 3, 5, 7,5 и 10 м над
поверхностью воды
Трамплины высотой от 1
до 3-х м над водной
поверхностью
Водонапорная башня,
позволяющая
регулировать уровень
воды от 0,5 до 4,5 м;

10. бассейн для прыжков в воду оборудуется

БАССЕЙН ДЛЯ ПРЫЖКОВ В ВОДУ
ОБОРУДУЕТСЯ
Стационарными
лестницами с поручнями
Противоскользящее
покрытие
Задняя и боковая
стороны платформы
вышки – перилами
высотой 1,2 м с отступом
от переднего края на 0,8
м.

11.

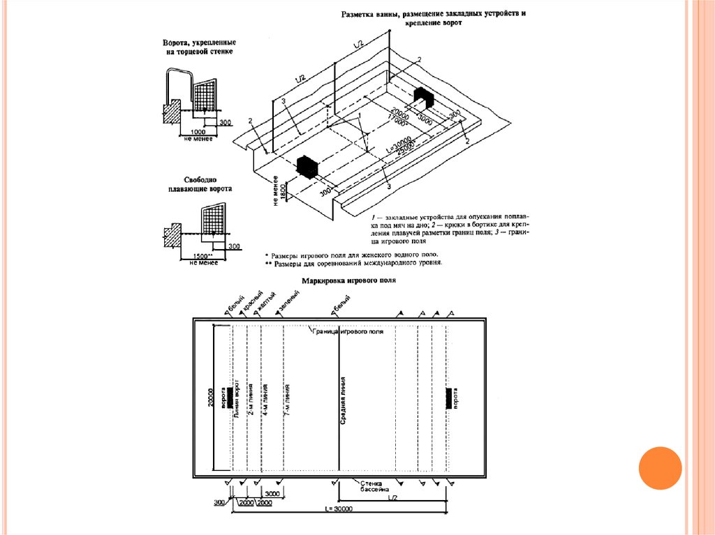
12. Бассейны для водного поло

БАССЕЙНЫ ДЛЯ ВОДНОГО ПОЛО
Глубина воды в
границах игрового
поля не менее 1,8 м
Размеры игрового
поля для мужчин
30х20 м
Размеры игрового
поля для женщин
25х17 м

13.

14. Гребные бассейны

ГРЕБНЫЕ БАССЕЙНЫ
Размер залов гребных бассейнов для академической
гребли — 21 х 15 м, высота 4,2 м. Искусственная
циркуляция воды в бассейне с О-образными
независимыми гидроканалами обеспечивается при
помощи насосов. Глубина ванны 60 см.
English     Русский Rules